
오늘날 우리나라 공동주택은 남향 선호, 고층 선호, 4베이 선호, 프라이버시 강조 등 극히 일부 몇 가지 요소만이 미덕으로 자리 잡았다. 본 프로젝트는 천연가스발전소 직원 사택으로 사용될 공동주택으로서, 용적률과 개발이익에 초점을 맞춘 지금의 도시 아파트에서 벗어나 본래의 집합주거가 가진 공동체적 가치를 찾는 데 초점을 맞췄다.
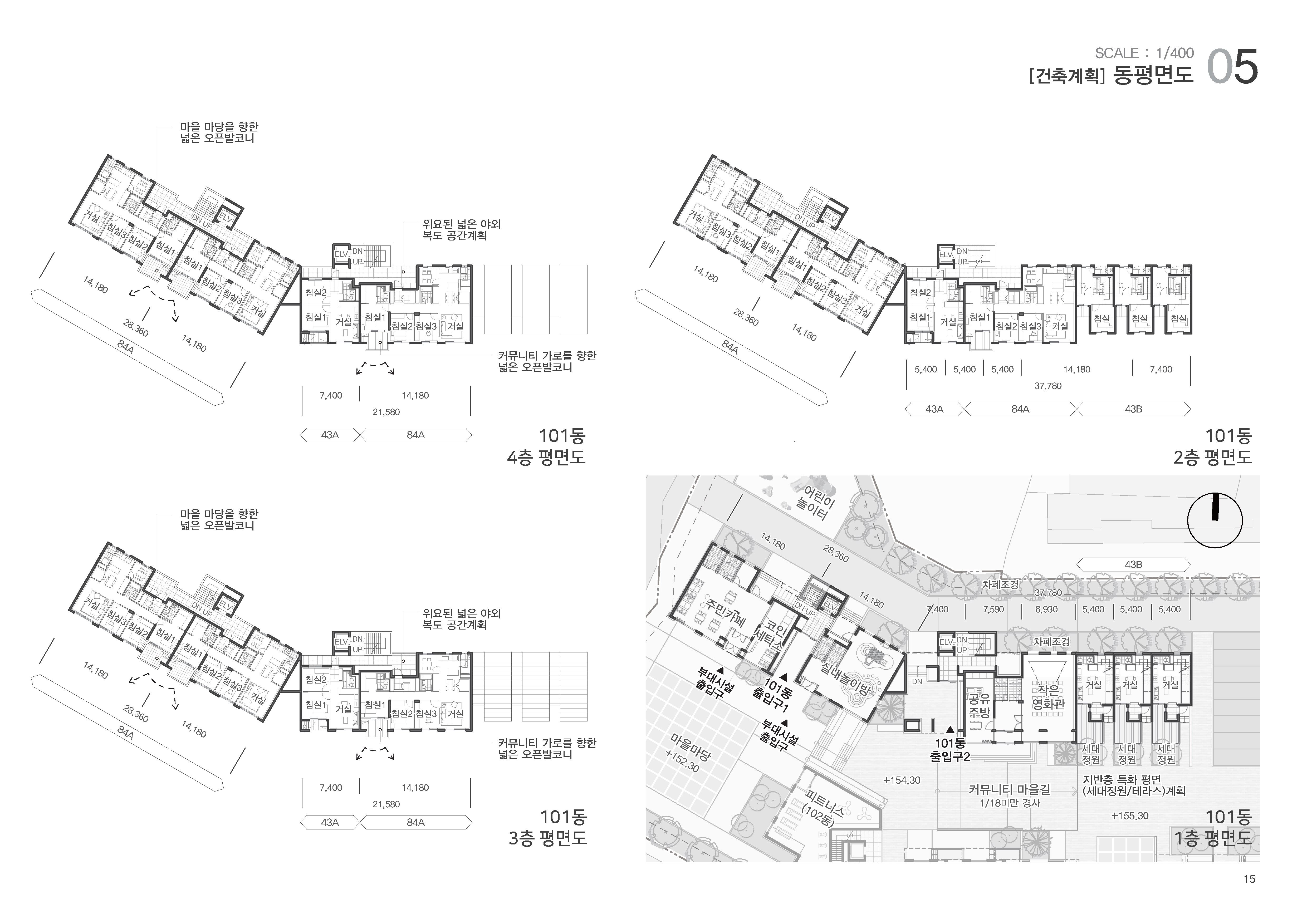
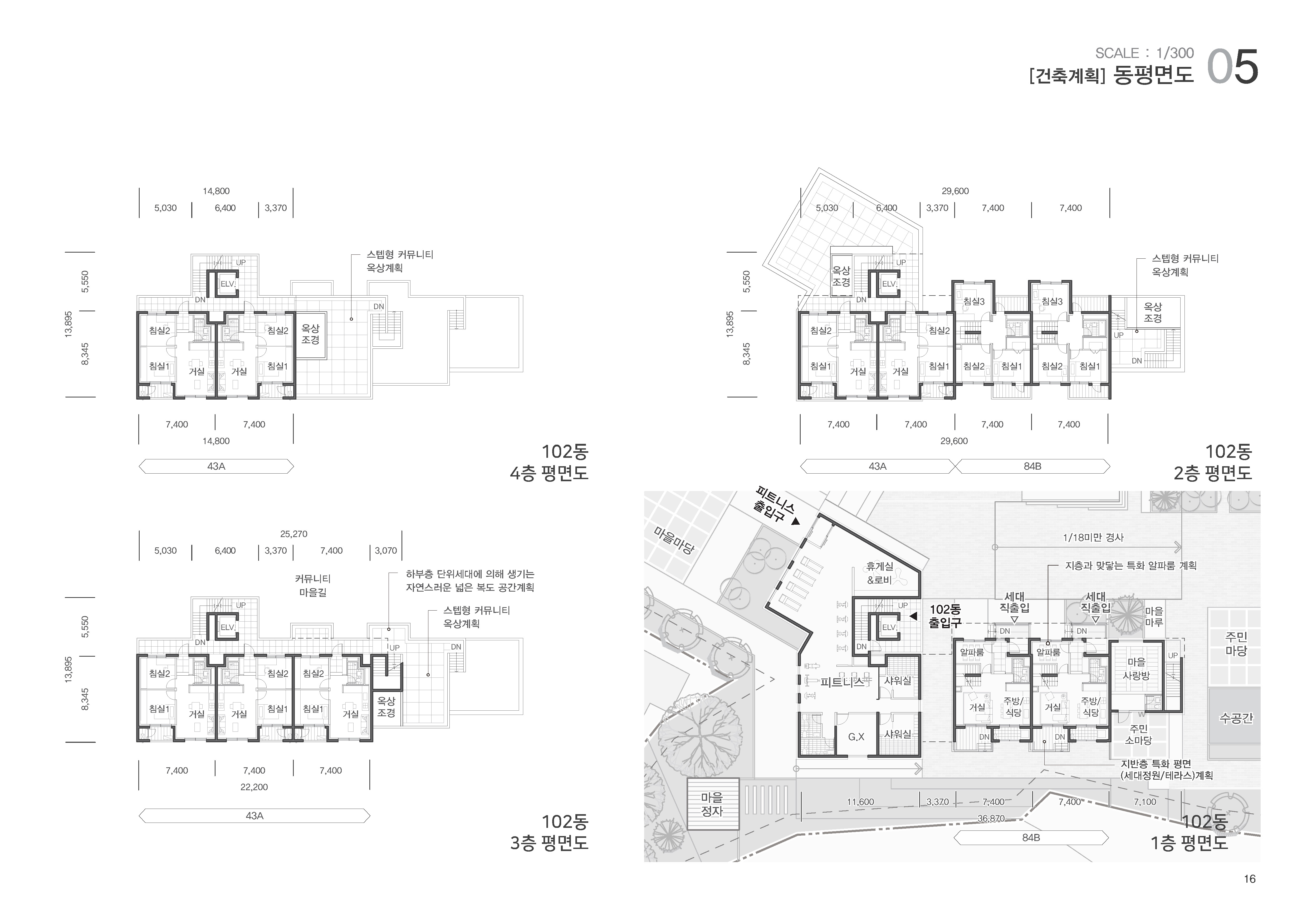
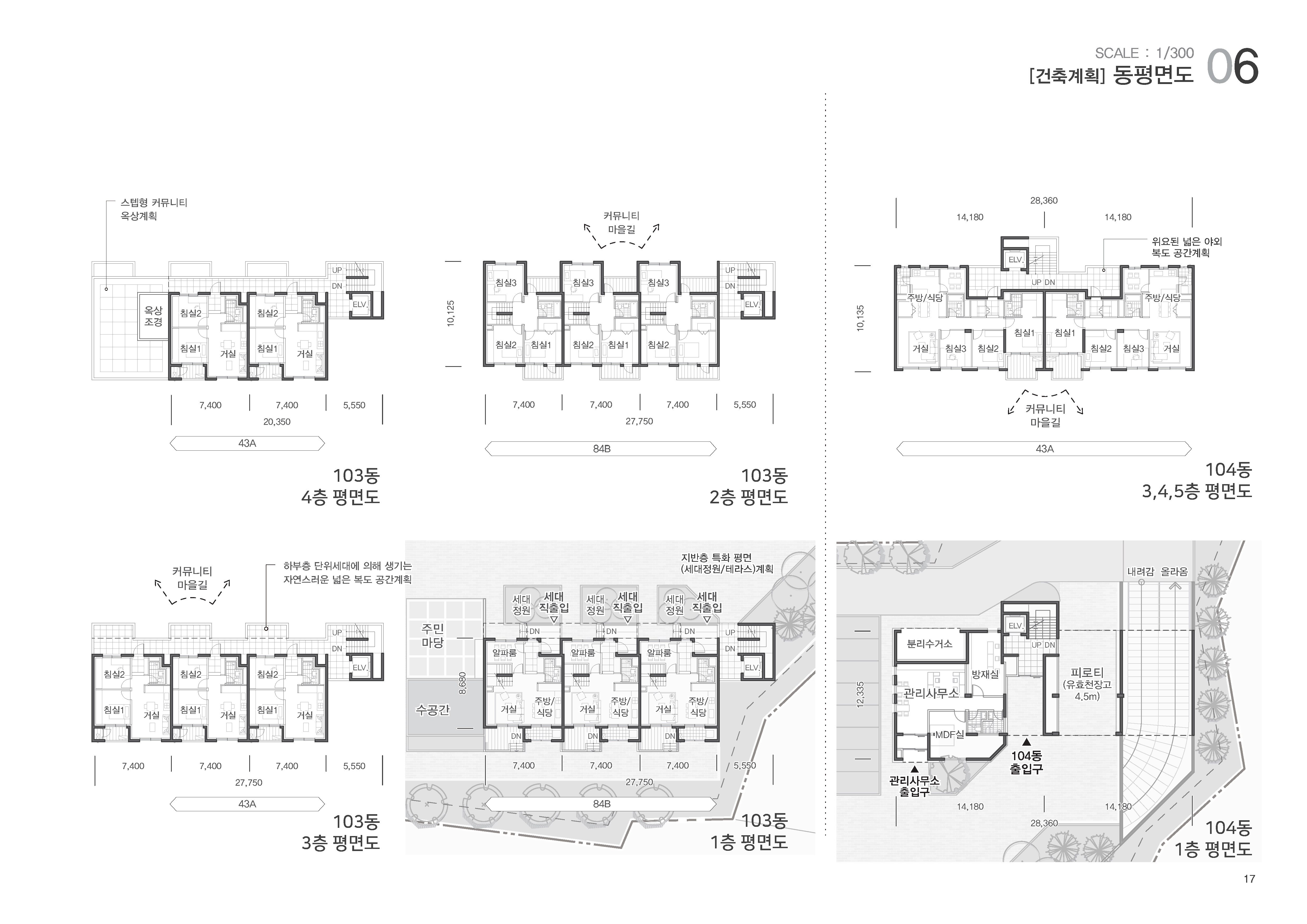
이를 위해 기존 무 자르듯 안과 밖을 나눈 기존 공동주택의 경계 사이에 다양한 스펙트럼의 중간 영역을 계획하였다. 주택단지 안과 밖의 경계 사이를 열어 넓은 마을 마당을 계획하였고, 향을 위해 서로의 등만 보던 기존 아파트의 주거동 사이에 커뮤니티 길을 계획하고 완충되며, 마주 볼 수 있는 외부공간을 계획 하였다. 또 단위세대 안 단위세대 밖 사이에 발코니, 테라스, 베란다 등을 반외부 반내부 공간을 적극적으로 계획하였다.
이러한 중간 영역의 공간들은 개인에게는 삶을 다채롭게 하고, 이웃 간 커뮤니티를 만들어 낼 것이다. 어느 날 와서 살다가는 그래서 옆집에 누가 사는지도 모르는 사택이 아니라, 각자의 필요에 맞게 각자가 주체가 되며 부담스럽지 않게 이웃에게 다가갈 수 있는 마을을 만들고자 하였다. 그렇게 삶의 공간이 확장되고 함께 일상을 공유할 수 있는 진정한 의미의 공동체 마을, 집합주거를 계획하고자 하였다.



















선그릇건축사사무소
3등작_ 선그릇건축사사무소 (https://www.instagram.com/linebowl_architects/)
대표건축가 김영인
대지면적 7,248.00㎡
연면적 6,550.06㎡(연면적 산정용 연면적: 4,269.85㎡)
건축면적 1,760.09㎡
건폐율 24.28%
용적률 58.91%
최고높이 14.30m
층수 지하 1층, 지상 5층
구조 철근콘크리트구조
대표건축가 김영인
조경면적 2624.38㎡
주차대수 59대
발주처 한국동서발전주식회사
'Plans' 카테고리의 다른 글
| 메이드 인 삼덕센터 건립 설계공모_ 4등작 / 리트에이앤디 건축사사무소 (0) | 2025.09.26 |
|---|---|
| 기장군도시관리공단 본부 신축사업 설계공모_ 3등작 / 주식회사 라움건축사사무소 (0) | 2025.09.25 |
| 충청남도 동물위생시험고 부여지소 신축사업 설계공모_ 3등작 / 건축사사무소 아이디어스 (0) | 2025.09.24 |
| 국립순천대학교 글로컬 교육문화복합관 증개축 설계용역_ 2등작 / (주)에스지파트너스 건축사사무소 (0) | 2025.09.24 |
| 신선그룹홈 조성사업_ 5등작 / 오더메이드 건축사사무소 (0) | 2025.09.23 |
마실와이드 | 등록번호 : 서울, 아03630 | 등록일자 : 2015년 03월 11일 | 마실와이드 | 발행ㆍ편집인 : 김명규 | 청소년보호책임자 : 최지희 | 발행소 : 서울시 마포구 월드컵로8길 45-8 1층 | 발행일자 : 매일



