
본 사업은 국립순천대학교 부지 내 노후화 된 평생교육원을 철거하고, 글로컬 교육문화 복합관을 증·개축하여 쾌적한 교육환경 조성 및 평생교육 특화 인프라를 구축하는 것을 목표로 한다. 또한 해외 유학생을 위한 정주시설을 확충해 환경을 개선하고자 추진되었다. ‘국립순천대학교 글로컬 교육문화복합관’은 캠퍼스와 연계된 배치계획, 선도적 디자인, 사용자 중심의 공간계획, 친환경 에너지 특화계획 등을 적용함으로써 다양한 국적과 전공의 유학생과 지역주민이 함께 성장하는 교육공간으로 자리매김하고자 한다.
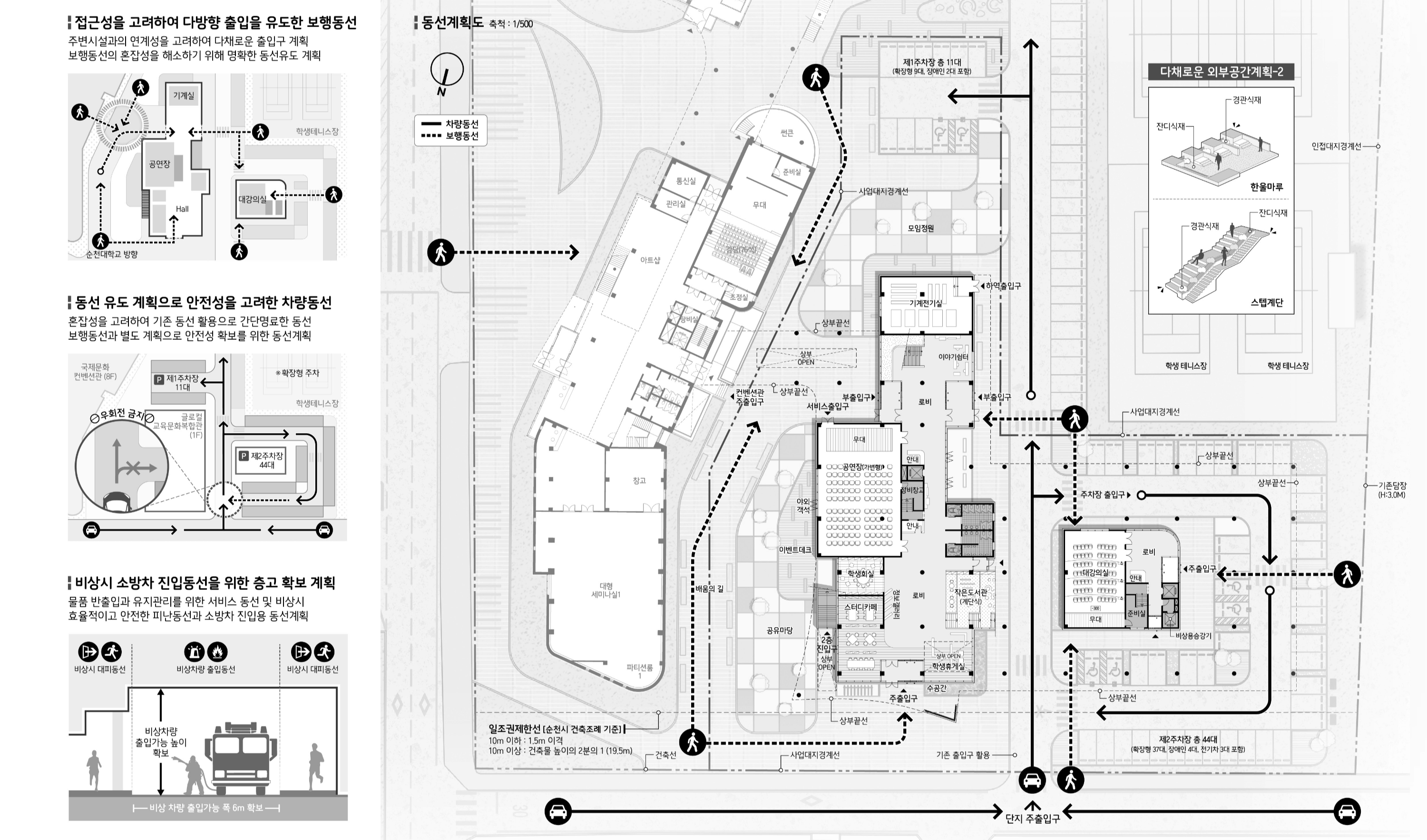
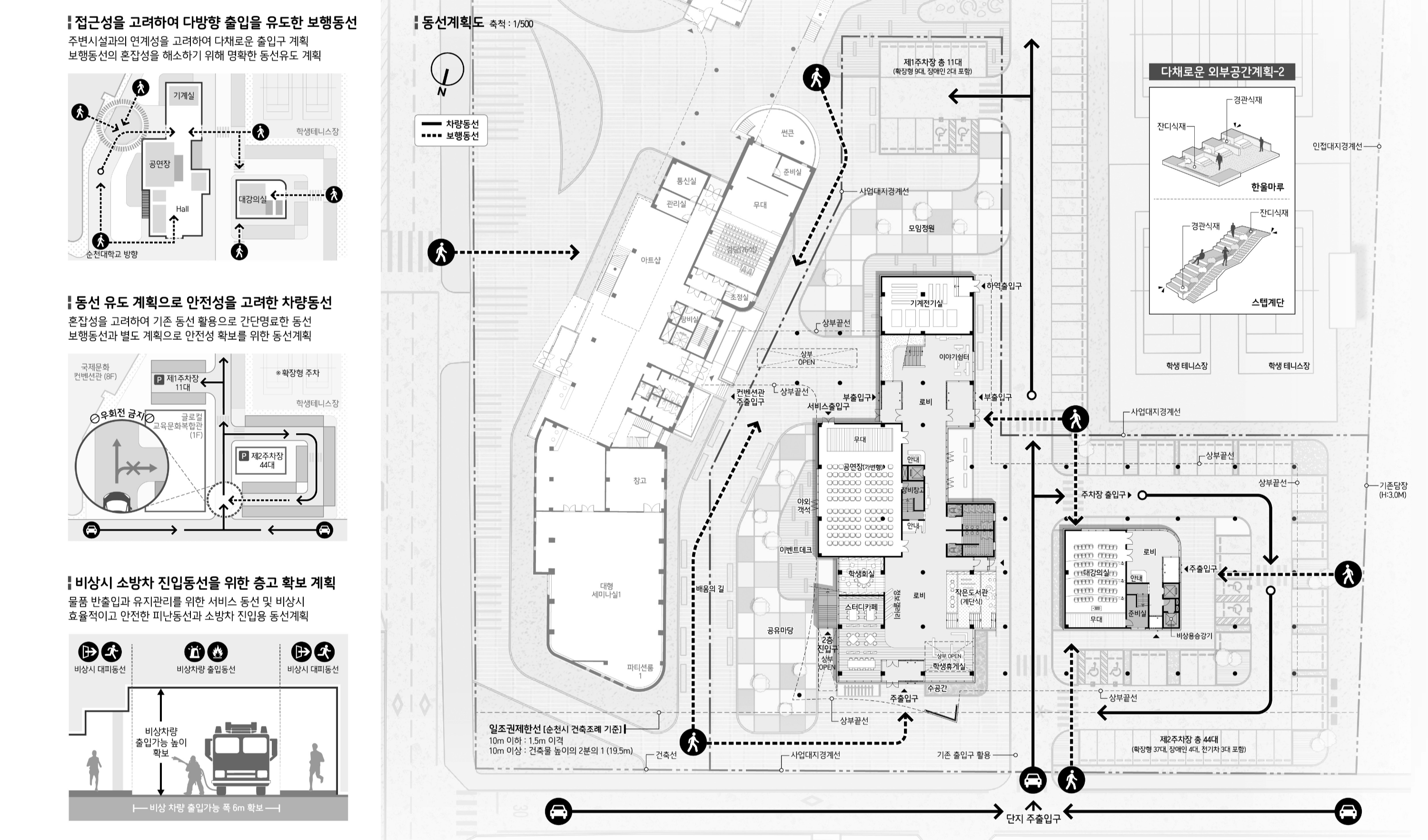
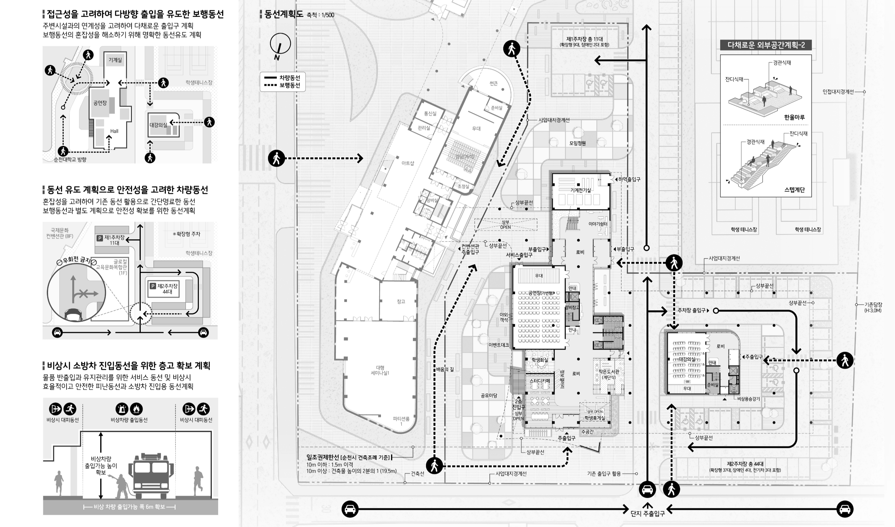
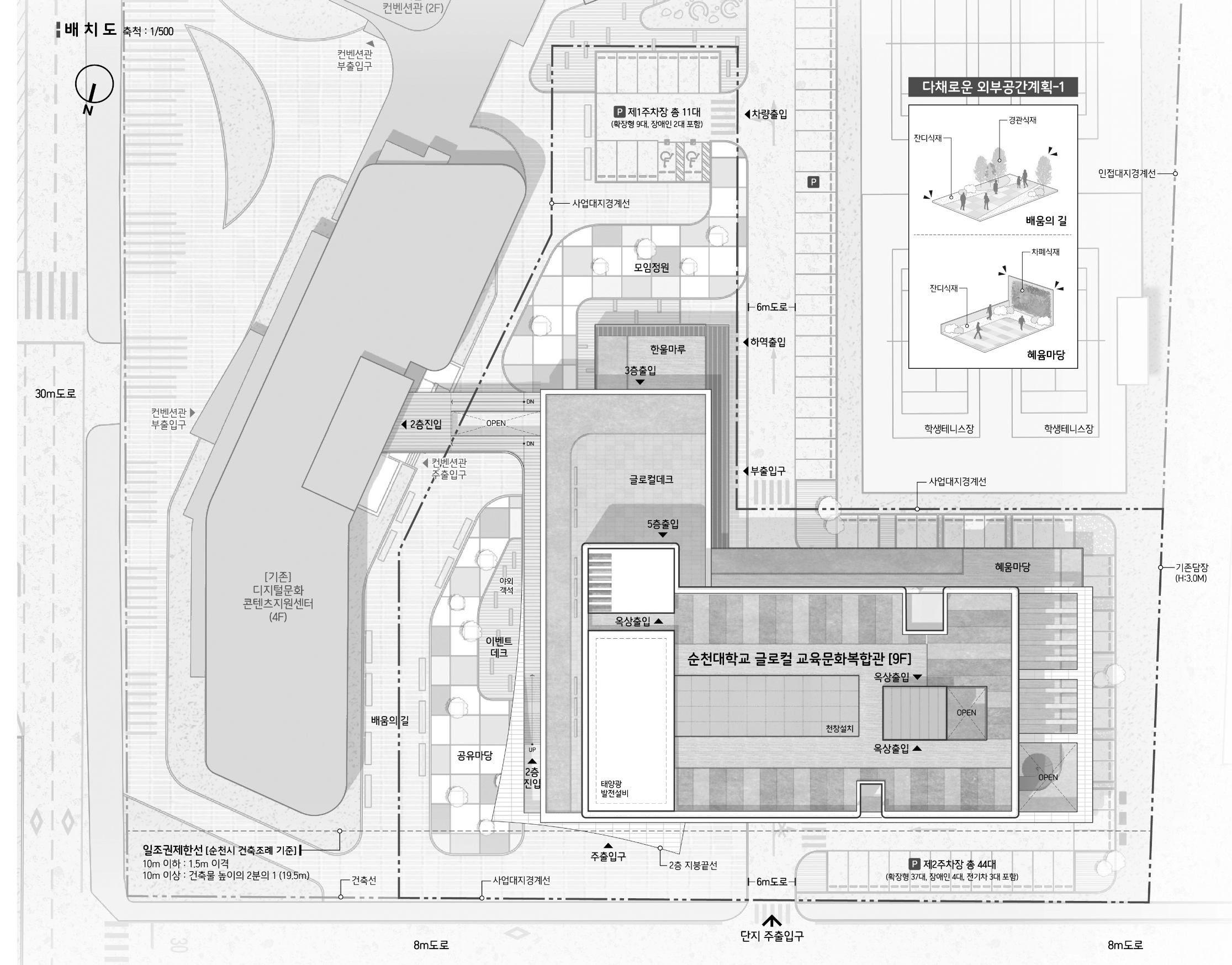
기존 건축물과의 연계성과 접근성을 고려해 다방면에서 접근가능한 출입구를 계획하고, 관계성을 반영한 완충공간을 마련하여 순천대학교 방향에서의 이용동선을 유도하였다. 또한 동선을 체계적으로 분리해 차량 혼잡을 최소화하고 보행의 안전성을 확보했으며, 비상 시 원활한 소방차 진입을 위해 적정층고와 효율적인 피난동선을 확보하였다.
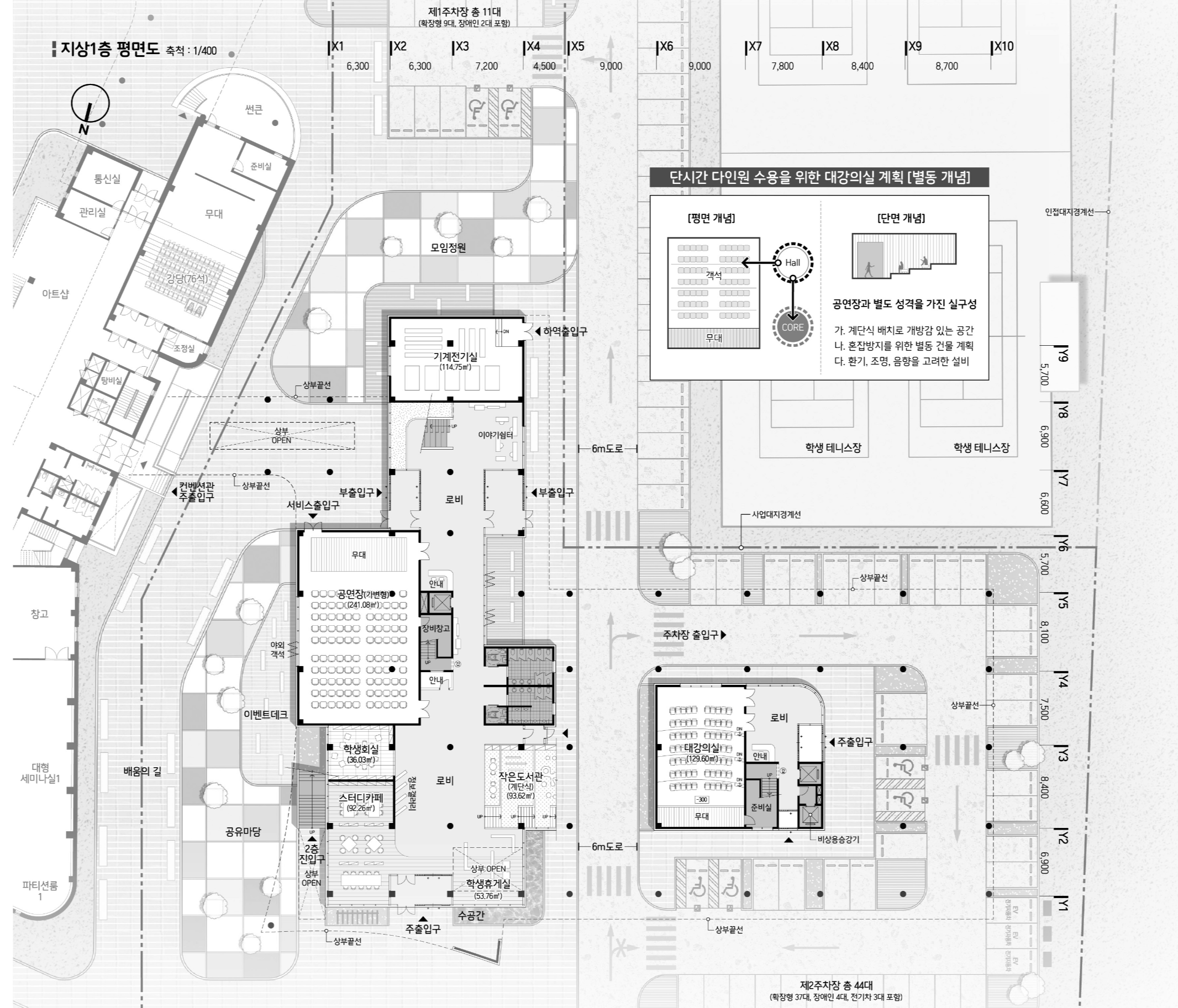
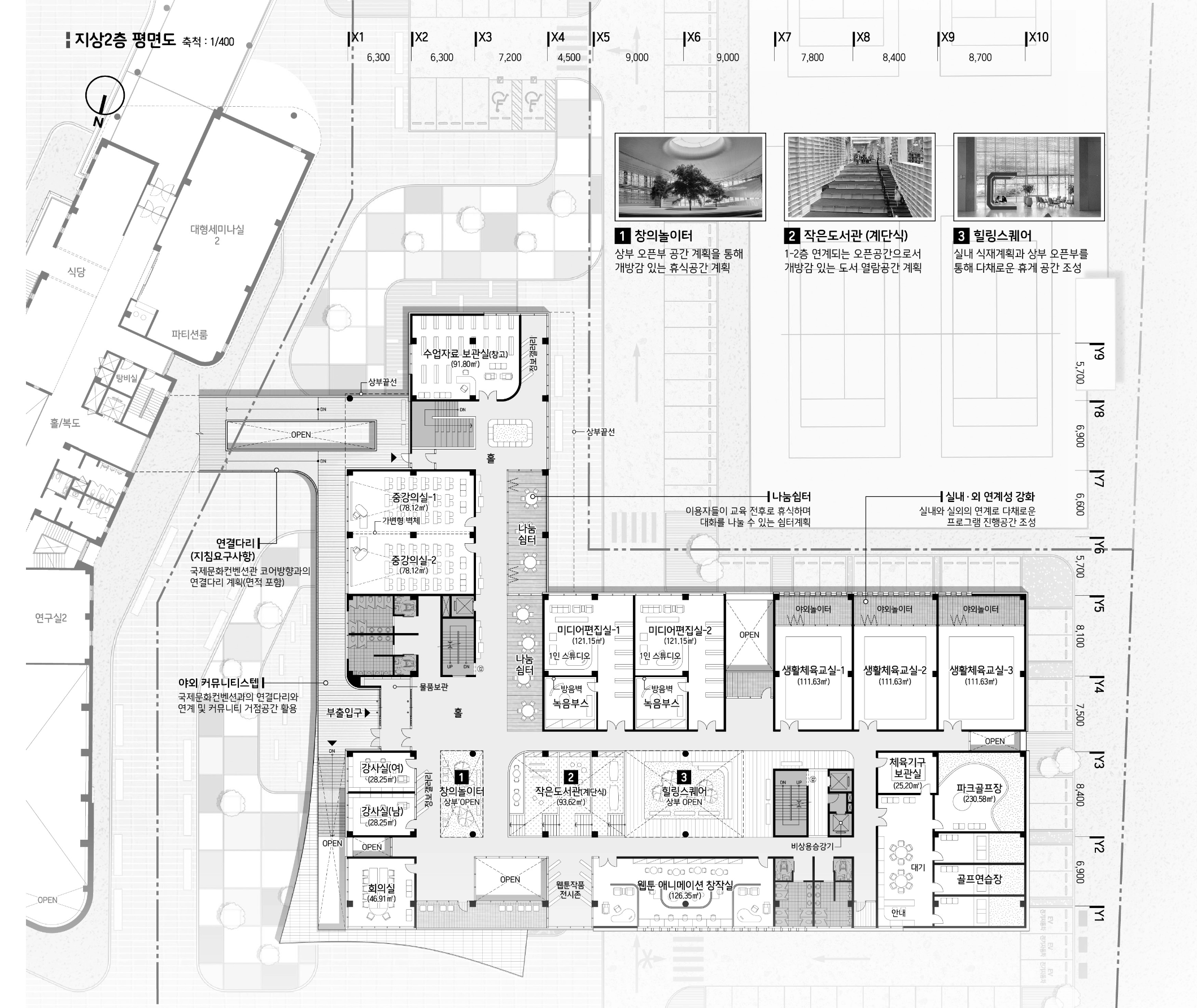
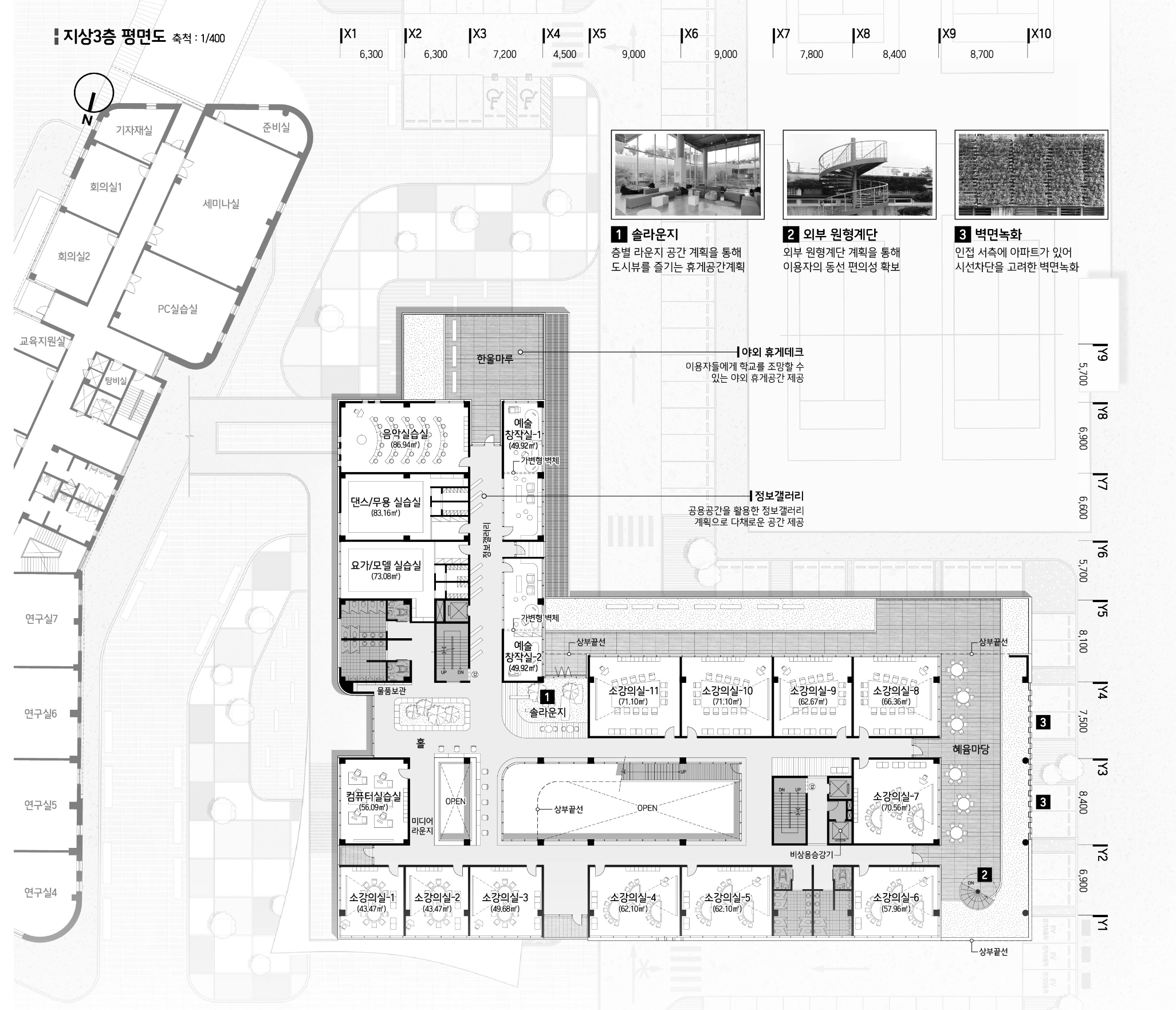
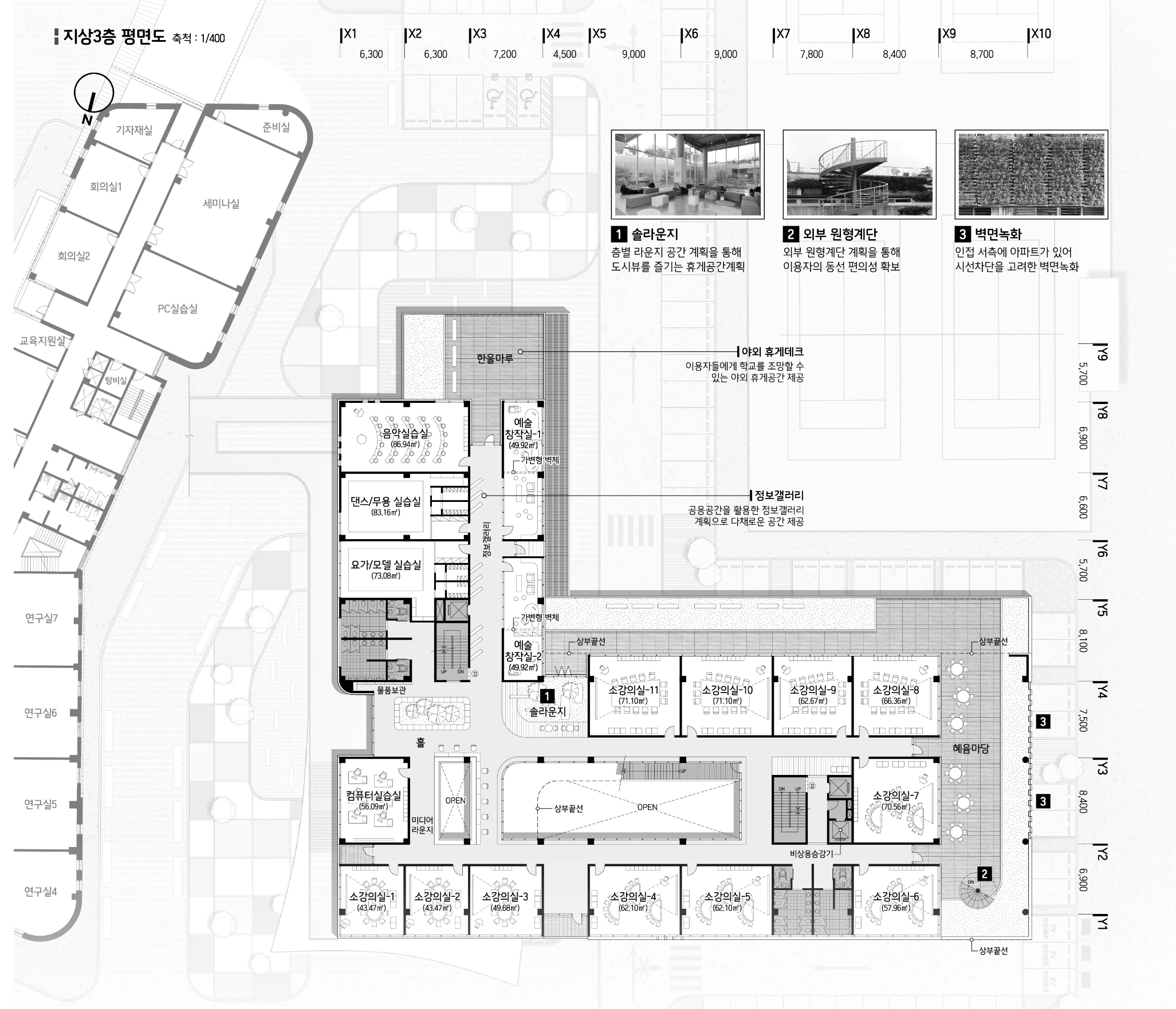
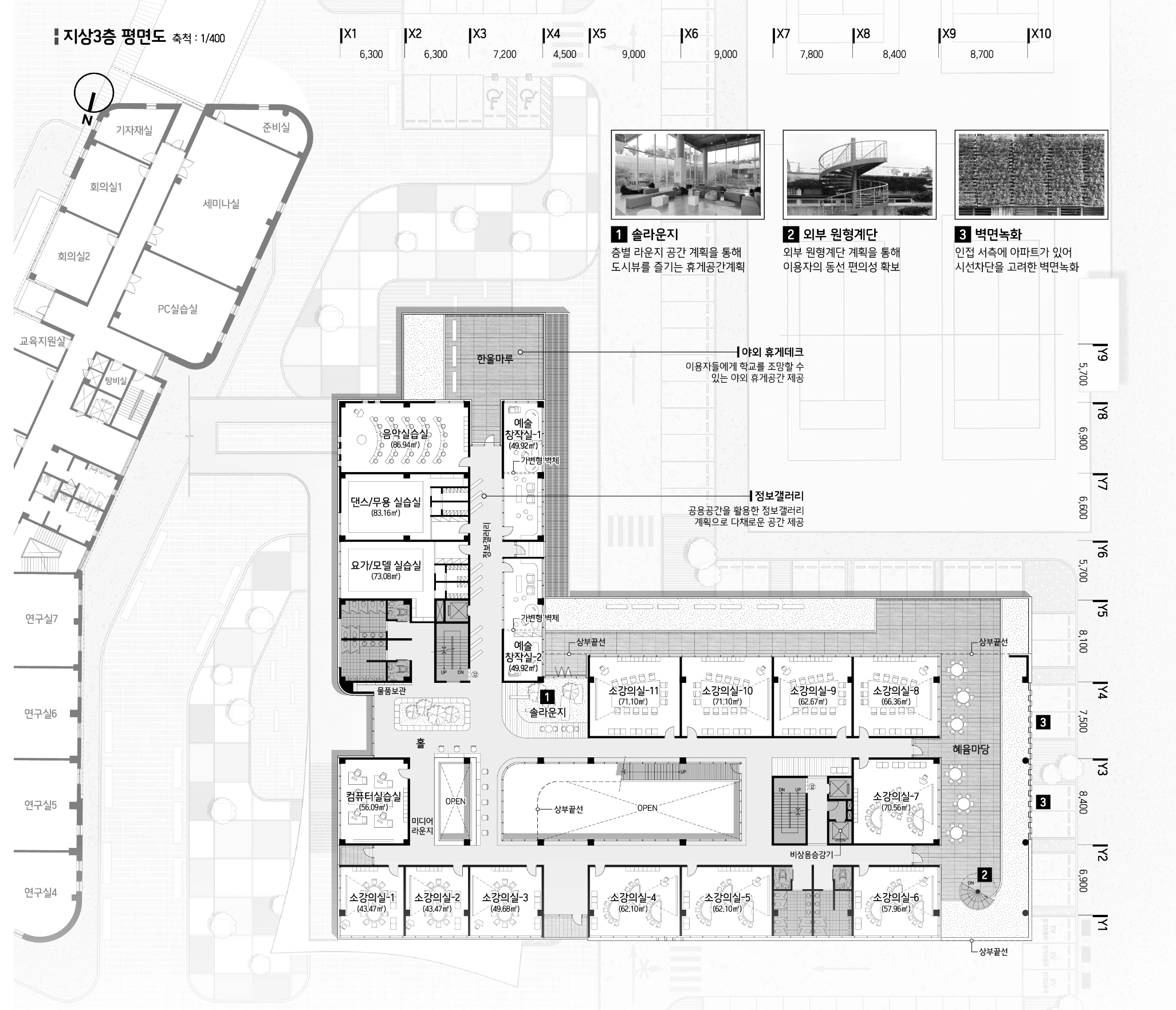
평생교육시설은 1-4층까지 계획하였다. 1층 공연장은 내외부 연계를 고려해 가변형으로 구성하고, 외부 이벤트 데크와 연결하여 다양한 프로그램 운영이 가능하도록 하였다. 2층은 국제문화컨벤션관과 연결다리를 설치해 이용편의를 높였으며, 내부는 실의 성격에 따라 집약 및 분리배치를 적용해 효율적인 조닝을 구현하였다. 3층은 세 가지 유형의 강의실을 배치해 이용 효율성과 만족도를 향상시켰다. 4층은 홀과 복도 등 공용공간을 외부와 연계해 가변적인 공간으로 계획하고, 내부 스텝계단과 수직동선을 통해 다양한 활동이 이루어질 수 있도록 하였다.
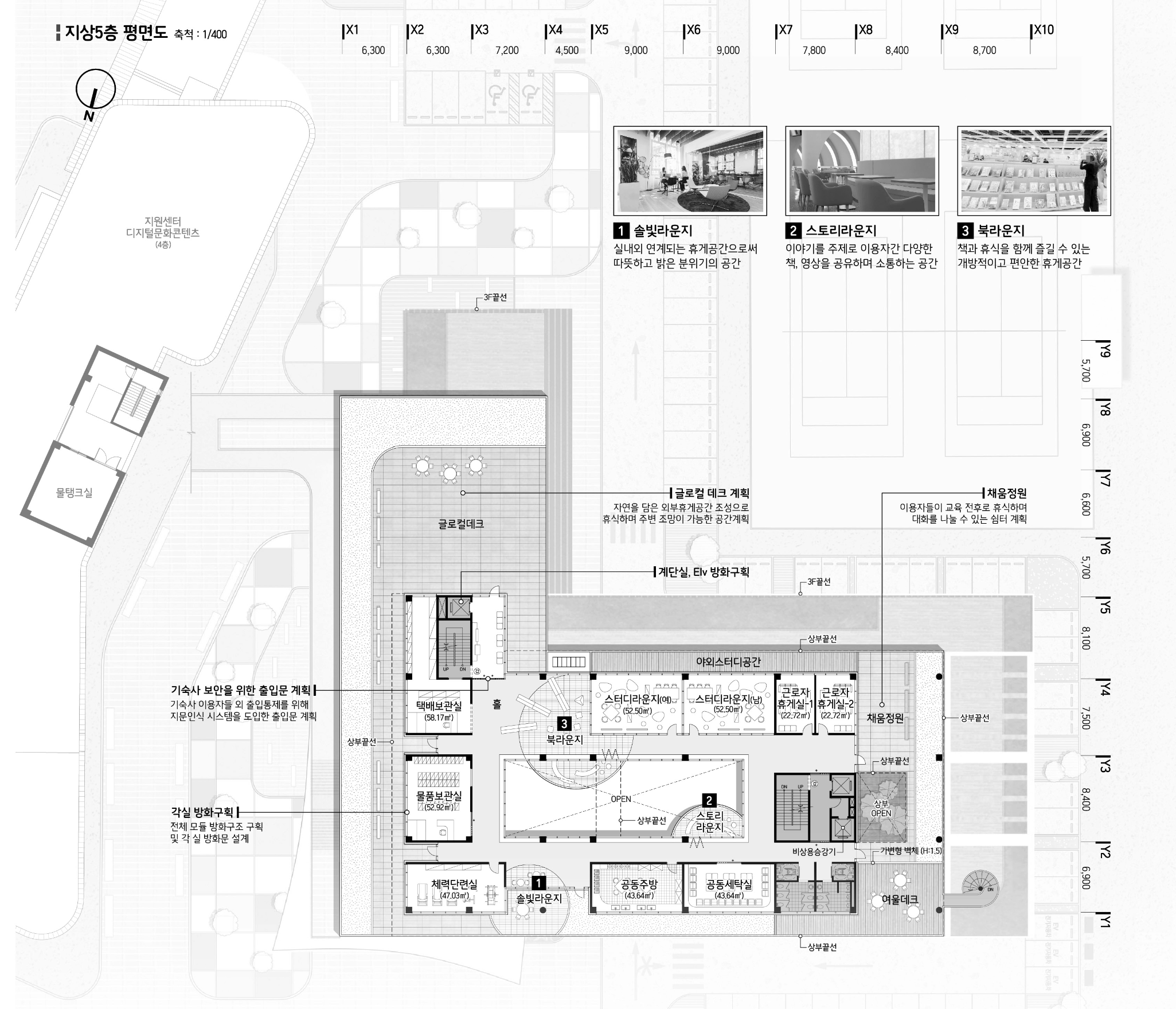
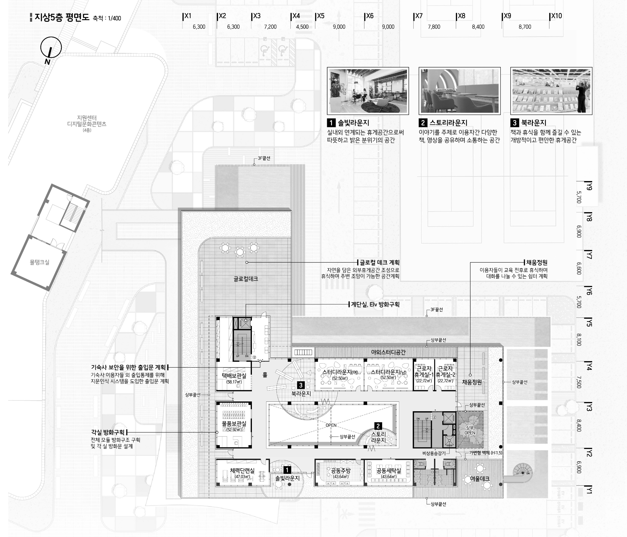
5-9층까지는 외국인기숙사를 계획하였다. 5층은 평생교육시설과 기숙사 사이의 완충공간으로, 기숙사 생활에 필요한 편의시설을 배치하고 공용공간과 연계해 교류가 활발한 환경을 조성하였다. 6-8층은 주로 2인실로 구성되며, 2인실에는 개별 발코니, 가벽, 분리형 화장실을 두어 프라이버시를 보장하였다. 또한 6층에는 관리를 위한 사감실과 약자를 배려한 장애인실을 계획하였다. 9층에는 기혼자실과 1인실을 배치하였으며, 기혼자실은 가족이 함께 거주할 수 있도록 다인용 모듈과 개별 취사공간을 마련해 편의성을 높였다. 기숙사 공용공간에 상부천창을 설치해 휴식, 자연채광 및 환기를 통한 쾌적성을 확보하였다.
국립순천대학교 글로컬대학 사업의 의미를 담은 입면은 다양한 문화의 공존을 재해석해 디자인을 도출하였다. 교육문화복합관의 기능적 특성을 반영하여 다문화 네트워크의 다양성과 통합성, 글로컬의 목표인 확장성과 연속성을 입면에 표현하였다. 시각적 개방감을 확보해 내외부로 열린 커뮤니티를 형성하였다. 다양한 국적의 학생들을 배려해 주로 편안한 색채를 사용하면서, 강조색을 기능적으로 디자인 요소로 활용하였다.
단면계획에서는 각 층에 라운지를 배치해 도시 경관을 조망할 수 있도록 하고, 상부 오픈공간을 통해 밝고 쾌적한 환경을 조성하였다. 중앙 오픈부에는 공용라운지를 두어 학생들의 여가활동 공간을 마련했으며, 프로그램의 특성에 맞는 적정층고를 적용하였다. 주변 주거단지와 관계성을 고려해 벽면녹화를 적용함으로써 시선차단과 친환경적인 이미지를 동시에 확보하였다. 각 기숙사실은 개별 발코니를 계획하여 조망확보 및 쾌적한 실내환경을 조성하였다.














(주)에스지파트너스 건축사사무소
2등작_ (주)에스지파트너스 건축사사무소 (www.sgpa.co.kr)
대표건축가 최기성
대지면적 21,199.00m²
연면적 13,352.96m²
건축면적 3,153.85m²
건폐율 31.57%
용적률 120.89%
최고높이 39m
층수 지상 9층
구조 철근콘크리트조, 벽식구조, 전이구조
대표건축가 최기성
디자인팀 김윤정, 박소영, 최윤호, 이가은
주차대수 61대 (장애인전용 7대, 전기차 3대 포함)
발주처 국립순천대학교
'Plans' 카테고리의 다른 글
| 음성천연가스발전소 직원사택 신축 설계공모_ 3등작 / 선그릇건축사사무소 (0) | 2025.09.25 |
|---|---|
| 충청남도 동물위생시험고 부여지소 신축사업 설계공모_ 3등작 / 건축사사무소 아이디어스 (0) | 2025.09.24 |
| 신선그룹홈 조성사업_ 5등작 / 오더메이드 건축사사무소 (0) | 2025.09.23 |
| 호매실 체육센터 건립공사_ 당선작 / MDA건축사사무소 (0) | 2025.09.22 |
| 호남선 신태인역 시설개선사업 설계공모_ 당선작 / 그레도건축사사무소 (0) | 2025.09.22 |
마실와이드 | 등록번호 : 서울, 아03630 | 등록일자 : 2015년 03월 11일 | 마실와이드 | 발행ㆍ편집인 : 김명규 | 청소년보호책임자 : 최지희 | 발행소 : 서울시 마포구 월드컵로8길 45-8 1층 | 발행일자 : 매일



