
열린, 그리고 닫힌
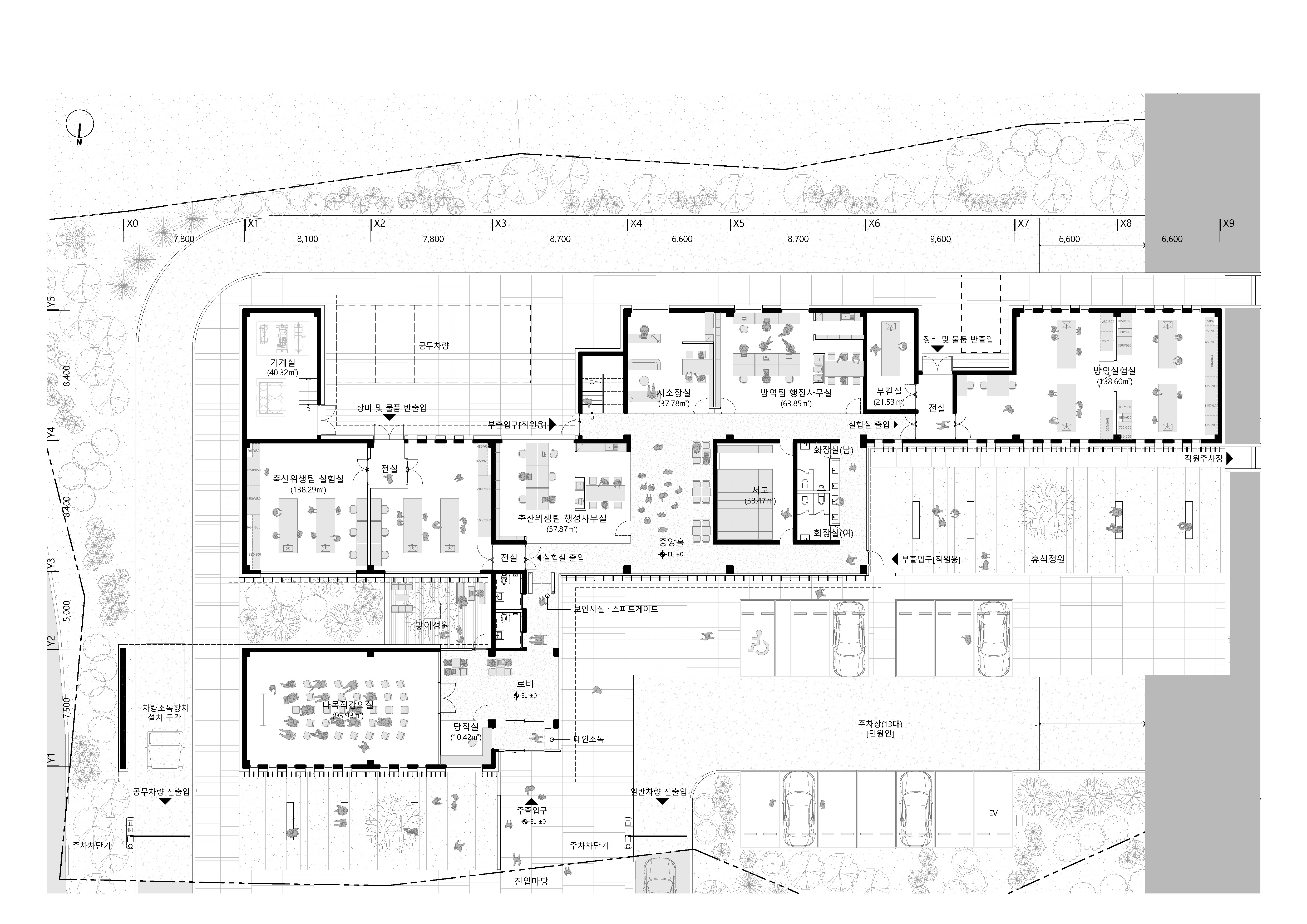
동물위생시험소는 주변을 둘러싸는 수목들과 그 안에 아파트와 방향을 나란히한 모습으로 자리한다. 주거지역을 향해 장방형의 모습을 노출하고 있지만 실들의 특성에 맞춰 창의 폭과 높이와 목재루버의 간격, 길이까지 다르게 적용하여 투명하지만 쉽게 내부가
보이지는 않는다.
자연의 중첩
장방형의 긴 건물은 여러개의 마당, 정원을 가진다. 시설과 보이드가 교차하면서 생기는 외부공간들은 커뮤니티를 형성하고 대지 주변의 자연과는 또 다른 자연을 공유하게 한다. 그리고 숨 쉴 수 있는 자리를 만들어 준다.
예민하지만 따스한 공간
길에서 보이는 동물위생시험소의 모습은 1층의 나지막한 모습 뒤로 2층이 얼핏 보이는 모습이다. 오염, 실험실, 부검실, 방역 등의 친숙하지 않은 단어들을 위한 곳이다보니 충분히 개방적인 모습을 가지기는 쉽지 않지만 따스한 재료와 일부 공용공간의 투명함, 전면에 나무 한그루와 쉬었다 갈 수 있는 벤치들이 거리감을 조금이나마 줄일 수 있게 한다.
간결한 지붕
길게 늘어선 지붕은 살짝 경사진 형태의 금속마감을 가진다. 전면의 아파트에서, 또는 남측의 몇몇 건축물들에서 보이는 모습은 단순하고 깔끔하다. 파라펫도 없고, 태양광패널을 사선으로 설치하기 위해 세우는 금속구조물도 없다.
















건축사사무소 아이디어스
3등작_ 건축사사무소 아이디어스 (http://www.ideaers.kr)
대표건축가 송재호
대지면적 4,309.00㎡
연면적 1,173.35㎡
건축면적 861.40㎡
건폐율 19.99%
용적률 27.23%
최고높이 8m
층수 지상 2층
구조 철근콘크리트구조
대표건축가 송재호
조경면적 1,185.29㎡
주차대수 30대
발주처 충청남도 동물위생시험소
'Plans' 카테고리의 다른 글
| 기장군도시관리공단 본부 신축사업 설계공모_ 3등작 / 주식회사 라움건축사사무소 (0) | 2025.09.25 |
|---|---|
| 음성천연가스발전소 직원사택 신축 설계공모_ 3등작 / 선그릇건축사사무소 (0) | 2025.09.25 |
| 국립순천대학교 글로컬 교육문화복합관 증개축 설계용역_ 2등작 / (주)에스지파트너스 건축사사무소 (0) | 2025.09.24 |
| 신선그룹홈 조성사업_ 5등작 / 오더메이드 건축사사무소 (0) | 2025.09.23 |
| 호매실 체육센터 건립공사_ 당선작 / MDA건축사사무소 (0) | 2025.09.22 |
마실와이드 | 등록번호 : 서울, 아03630 | 등록일자 : 2015년 03월 11일 | 마실와이드 | 발행ㆍ편집인 : 김명규 | 청소년보호책임자 : 최지희 | 발행소 : 서울시 마포구 월드컵로8길 45-8 1층 | 발행일자 : 매일



