
메이드인 삼덕센터: 자연과 역사를 담은 새로운 랜드마크
부산 사상구 덕포시장의 활성화와 브랜드화를 목표로 기획된 '메이드인 삼덕센터'는 단순한 건물을 넘어, 지역의 유산을 담아내는 상징적인 공간으로 재탄생합니다. 우리는 덕포시장이 지닌 고유한 역사성과 낙동강, 백양산의 아름다운 자연을 결합하여, 지역 주민뿐만 아니라 전 세계에 덕포를 알릴 수 있는 글로벌 랜드마크를 창조하고자 했습니다.
디자인 컨셉: 흐름을 담은 유기적인 공간
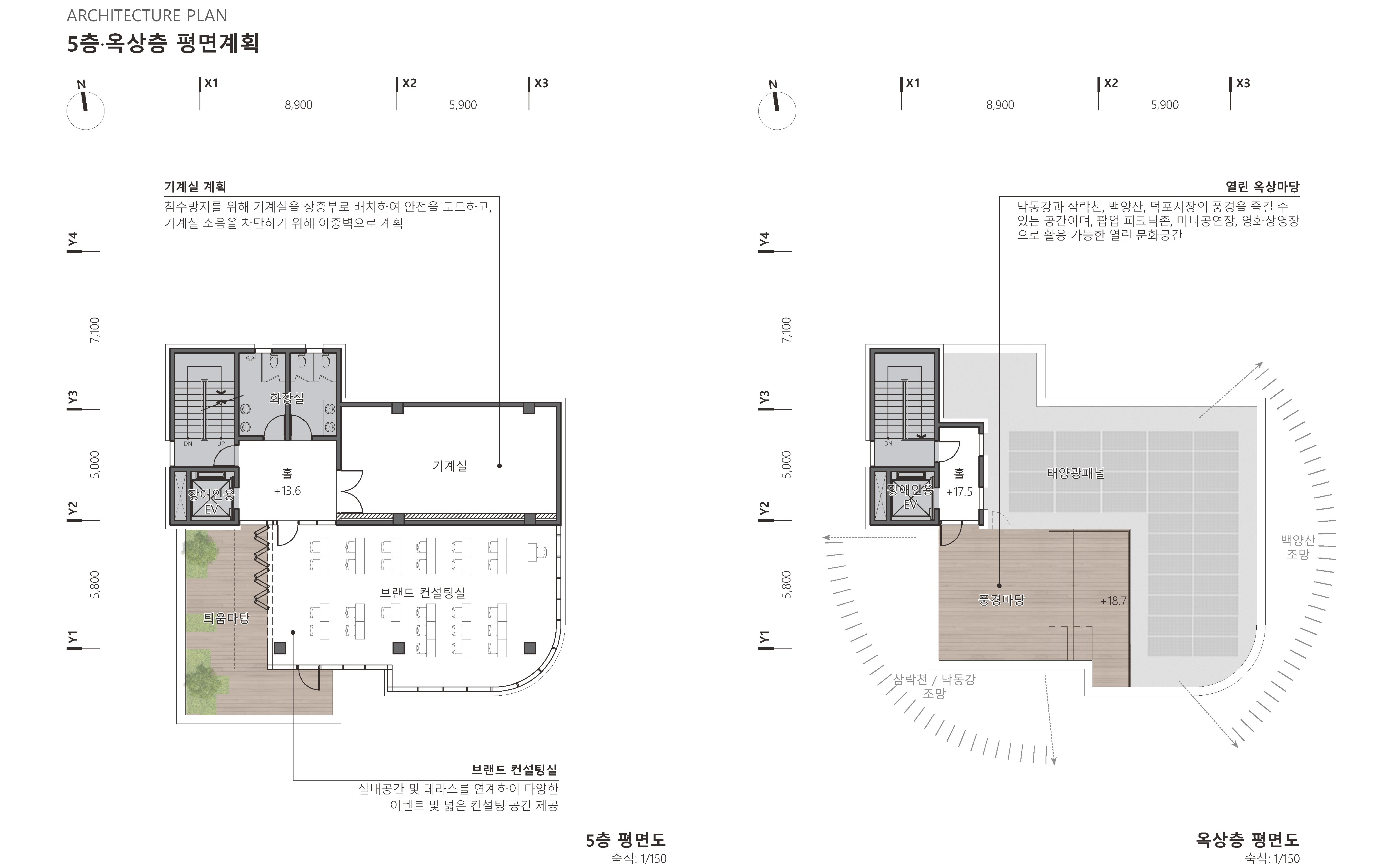
건축의 핵심은 두 가지 전략으로 압축됩니다. 첫째, 사상구의 자연 풍경인 낙동강과 백양산의 유기적인 흐름을 입면에 담아내는 '상징성' 입니다. 소규모 매스를 켜켜이 쌓아 올린 듯한 독특한 외관은 지역의 정체성을 표현하며, 사상구의 대표색을 활용한 루버는 건물을 한눈에 각인시키는 강렬한 인상을 선사합니다. 이 루버는 미적인 역할을 넘어, 4층 사무실의 일조량을 조절하는 기능성까지 갖추고 있습니다. 둘째, 방문객의 참여를 유도하는 '동선 계획' 입니다. 곡각지에 위치한 부지의 특성을 살려, 충분히 열린 외부 공간과 계단을 통해 방문객이 자연스럽게 내부로 유입되도록 동선을 구성했습니다. 1층의 이벤트 데크부터 2, 3층의 팝업스토어, 미디어실, 제조실까지 이어지는 동선은 다양한 체험을 제공하며 덕포시장의 활기를 외부로 확산시킬 것입니다.
공간 구성: 모든 층에 열린 소통의 장
'메이드인 삼덕센터'는 침수 위험에 대비해 지하 없이 지상 5개 층으로 계획되었습니다. 1층은 시장과 연계한 행사를 위한 개방형 이벤트 데크로, 2층과 3층은 외부 계단으로 연결되는 체험 공간으로 구성했습니다. 4층과 5층은 로컬 크리에이터와 상주 인원을 위한 사무 공간 및 컨설팅실로, 편의를 위해 내부 코어를 중심으로 배치했습니다. 특히, 모든 층에 외부 공간을 두어 내부와 외부의 경계를 허물었습니다. 옥상에는 백양산과 낙동강을 한눈에 조망할 수 있는 '풍경 마당'을 조성하여, 방문객과 상주 인원 모두에게 여유로운 휴식을 선물합니다. 다양한 사용자의 니즈를 충족시키기 위해 1~3층의 방문객 동선과 4~5층의 상주 인원 동선을 분리하여 효율성을 높였습니다.
이 프로젝트는 덕포시장이 지닌 잠재력을 발굴하고, 건축적 상상력과 실용적인 계획을 결합하여 지역의 새로운 미래를 제시합니다.












리트에이앤디 건축사사무소
4등작_ 리트에이앤디 건축사사무소 (https://www.litaandd.com/)
대표건축가 양수진
대지면적 585.00㎡
연면적 1,039.62㎡
건축면적 339.91㎡
건폐율 58.10%
용적률 177.71%
최고높이 17.5m
층수 지상 5층
구조 철근콘크리트구조
대표건축가 양수진
디자인팀 이예리, 조혜윤, 변희진
조경면적 79.16㎡
주차대수 9대
발주처 부산시 사상구청
'Plans' 카테고리의 다른 글
| 부자의령 상생협약프로젝트 실시설계 용역 설계공모_ 4등작 / (주)창조건축사사무소 (0) | 2025.09.29 |
|---|---|
| 청도군의회청사건립공사_ 2등작 / (주)건축사사무소 신정건축 (0) | 2025.09.26 |
| 기장군도시관리공단 본부 신축사업 설계공모_ 3등작 / 주식회사 라움건축사사무소 (0) | 2025.09.25 |
| 음성천연가스발전소 직원사택 신축 설계공모_ 3등작 / 선그릇건축사사무소 (0) | 2025.09.25 |
| 충청남도 동물위생시험소 부여지소 신축사업 설계공모_ 3등작 / 건축사사무소 아이디어스 (0) | 2025.09.24 |
마실와이드 | 등록번호 : 서울, 아03630 | 등록일자 : 2015년 03월 11일 | 마실와이드 | 발행ㆍ편집인 : 김명규 | 청소년보호책임자 : 최지희 | 발행소 : 서울시 마포구 월드컵로8길 45-8 1층 | 발행일자 : 매일



