
의회와 군청, 그리고 주민이 만들어가는 청도의 미래
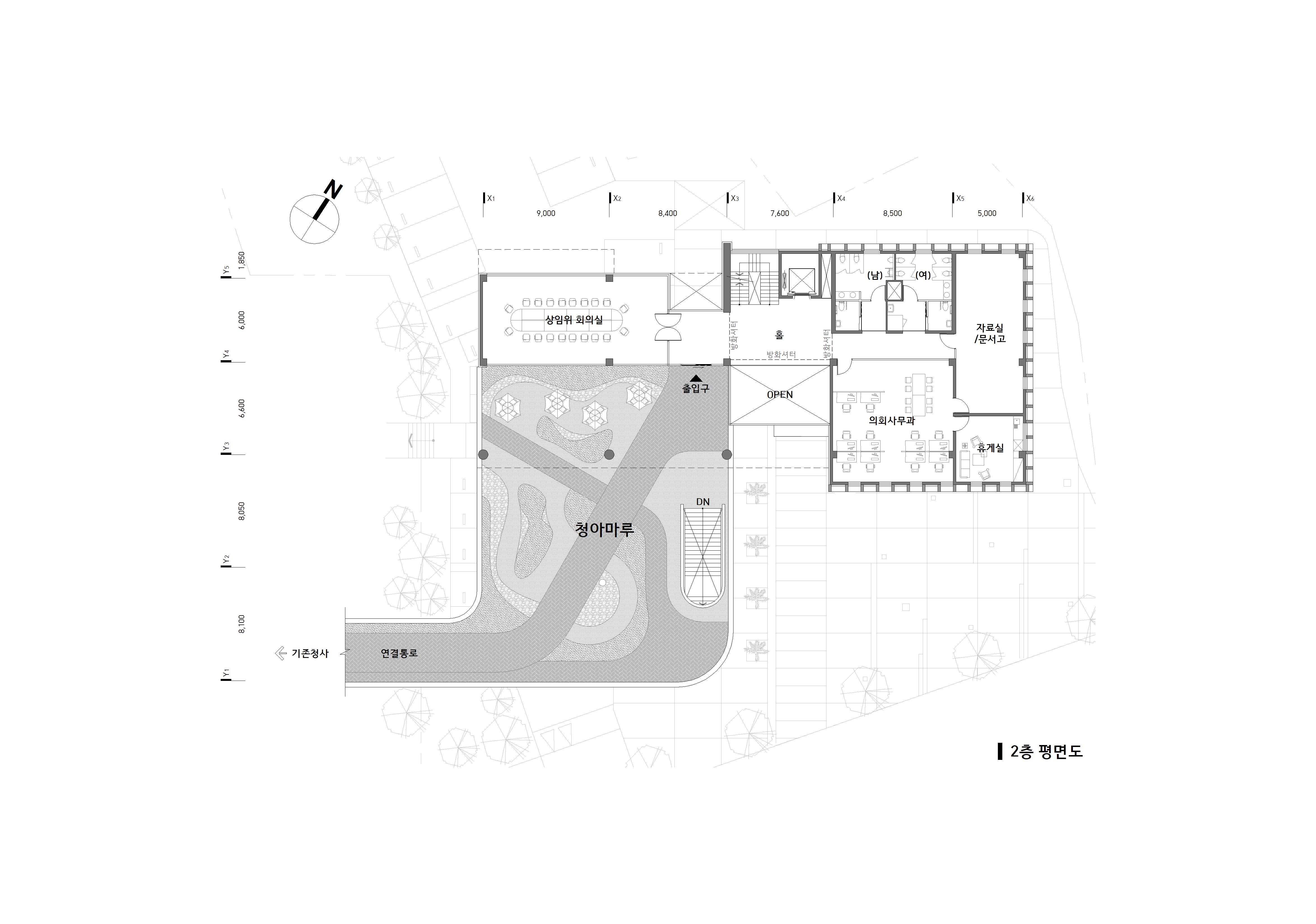
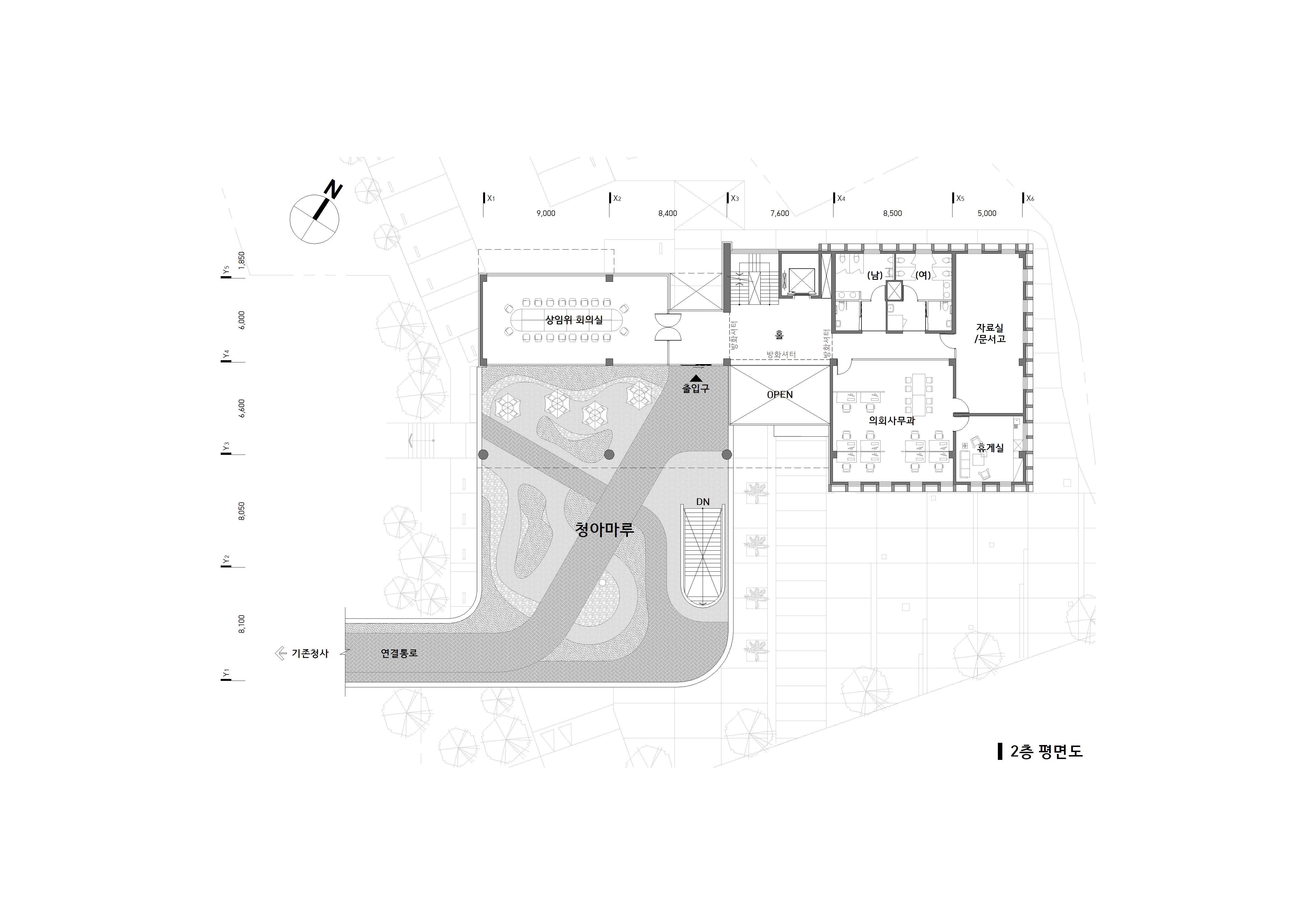
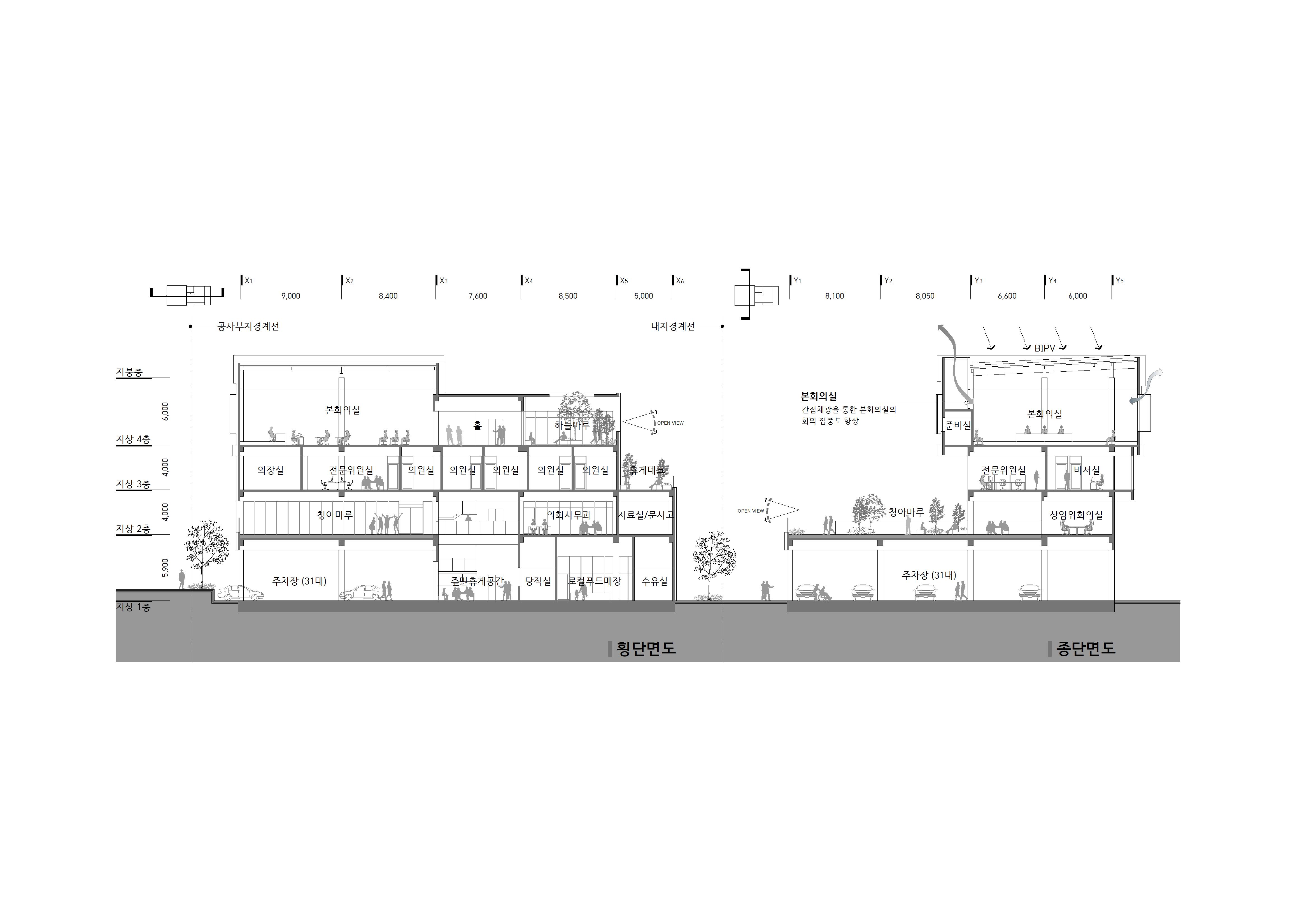
처음 청도군의회 청사 증축공모 설계를 위하여 군청을 방문하였을때 군청이라는 주민의 행정과 복지를 위한 영역에 대부분의 외부공간이 주차장으로 조성되어있어 주출입구에서 군청까지의 보행자 동선은 주차장을 가로질러 가야하며, 휴식을 취할 외부공간이 없는 상황이였다. 따라서 금회 의회청사 증축계획시 우선적으로 군청진입부분에 주민을 위한 마당을 조성하고 보행자동선과 차량동선의 분리를 통하여 주민과 교통약자가 안전하고 편리하게 군청과 의회를 이용하도록 구성하는 것을 계획의 주안점으로 삼았다.
의회와 군청의 유기적인 연결을 통한 주민과 행정부의 공조
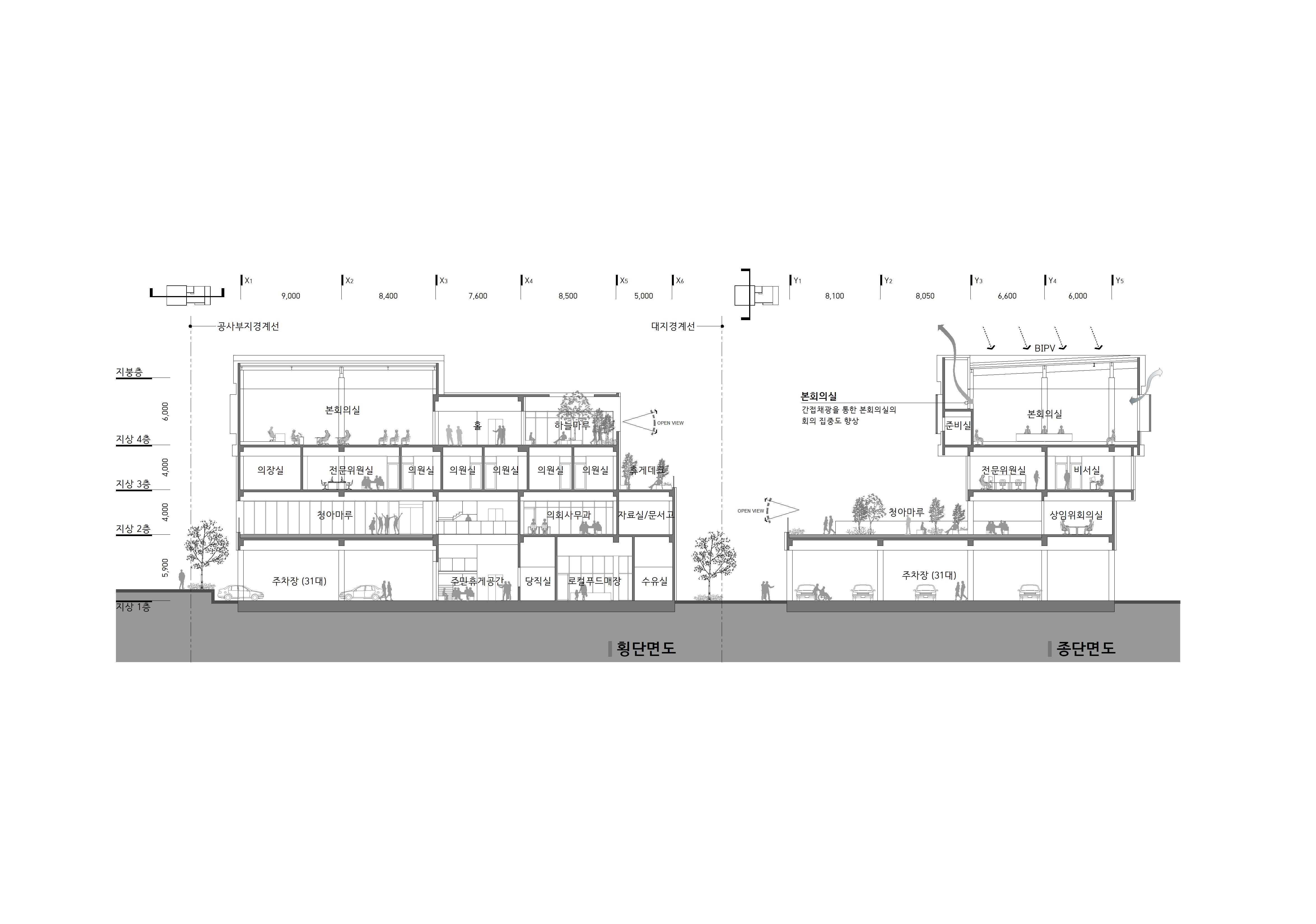
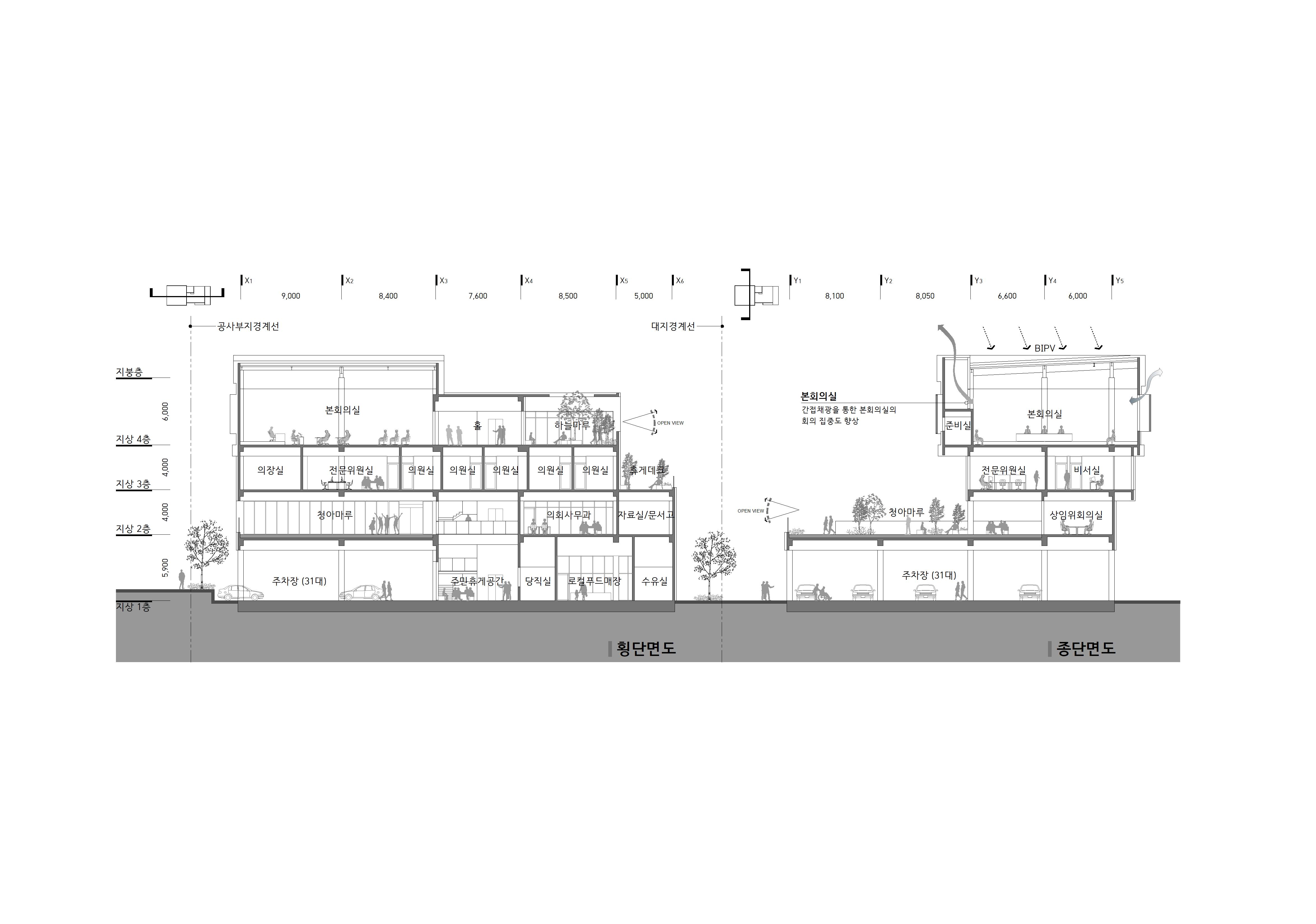
기존군청의 2층과 의회의 2층공간을 데크로 연결하여 상부의 청아마당을 통하여 군청과 의회의 업무적소통과 유기적인 연결을 꾀하였으며, 군청과 의회 근무자와 주민 모두가 이용하고 쉴수 있는 공간을 형성하였다.
청도의 역사와 지역의 정체성을 담아낸 공간 및 입면계획
청도의 역사성을 현대적으로 해석하여 공공건축에 필요한 열린 마당, 가변적 공간, 그리고 청도읍성의 다양한 요소인 성곽, 누각 그리고 기와등의 도입과 기존군청의 주재료인 석재사용을 통하여 새로운 의회청사가 기존군청과 공간적, 형태적 맥락을 같이 하여 어울리도록 하였다.
















(주)건축사사무소 신정건축
2등작_ (주)건축사사무소 신정건축(https://shinjeong.dothome.co.kr/)
대표건축가 최덕환
대지면적 2,392㎡
연면적 1,518.98㎡
건축면적 2,990.0㎡
최고높이 21.9m
층수 지상4층
구조 철근콘크리조, 철골조(상부)
주차대수 31대
대표건축가 최덕환
디자인팀 서영진, 한효경, 김지환
발주처 청도군
'Plans' 카테고리의 다른 글
| 목재문화체험장 조성사업 설계공모_ 당선작 / (주)건축사사무소 서강종합+그레도건축사사무소 (0) | 2025.10.02 |
|---|---|
| 부자의령 상생협약프로젝트 실시설계 용역 설계공모_ 4등작 / (주)창조건축사사무소 (0) | 2025.09.29 |
| 메이드 인 삼덕센터 건립 설계공모_ 4등작 / 리트에이앤디 건축사사무소 (0) | 2025.09.26 |
| 기장군도시관리공단 본부 신축사업 설계공모_ 3등작 / 주식회사 라움건축사사무소 (0) | 2025.09.25 |
| 음성천연가스발전소 직원사택 신축 설계공모_ 3등작 / 선그릇건축사사무소 (0) | 2025.09.25 |
마실와이드 | 등록번호 : 서울, 아03630 | 등록일자 : 2015년 03월 11일 | 마실와이드 | 발행ㆍ편집인 : 김명규 | 청소년보호책임자 : 최지희 | 발행소 : 서울시 마포구 월드컵로8길 45-8 1층 | 발행일자 : 매일



