
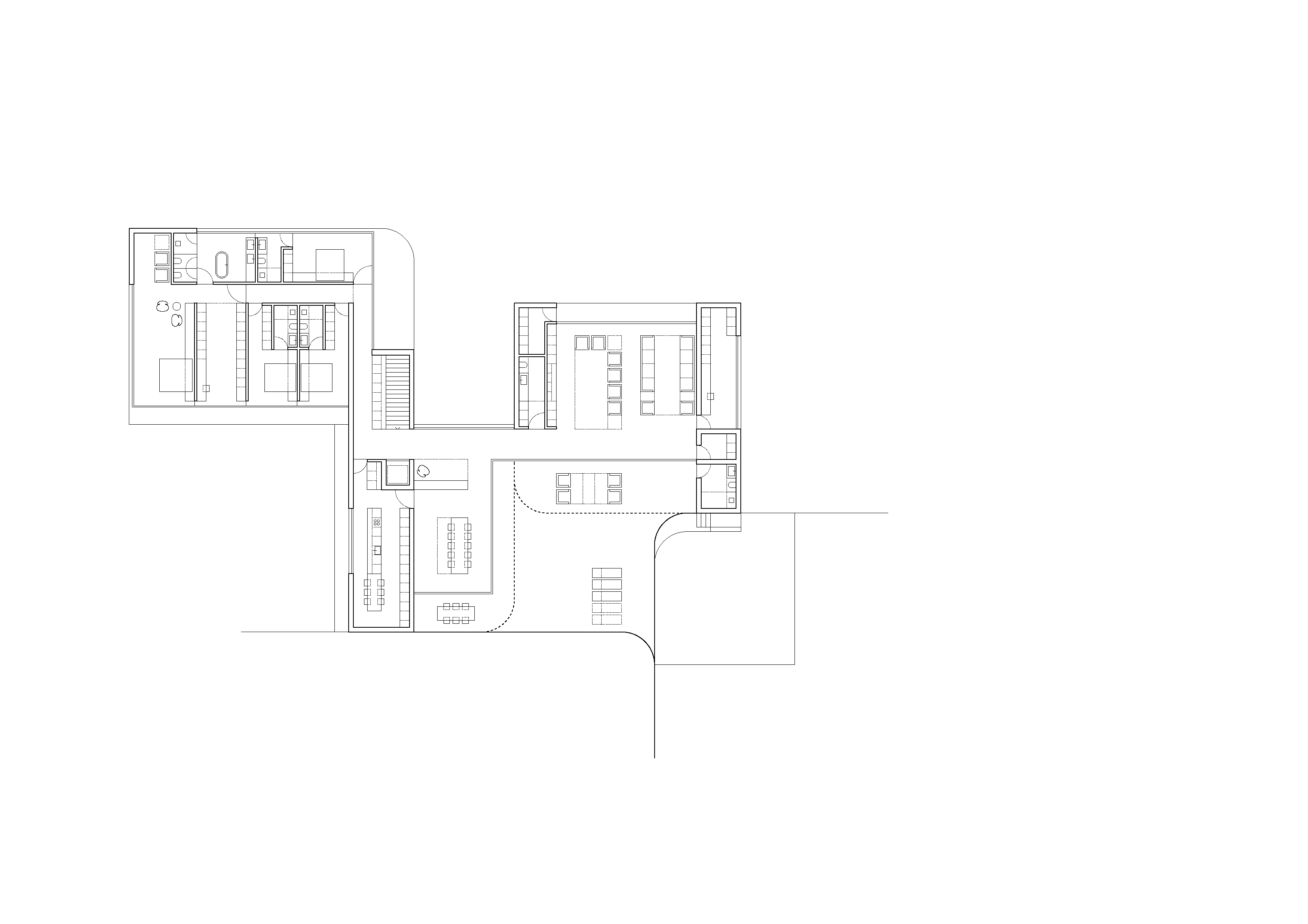
이 프로젝트는 마드리드 라 모랄레하 골프장의 호수를 향해 대각선의 시선을 열고 있다. 부지의 규모가 충분했기 때문에 주거 공간은 주로 단층으로 계획되었다. 낮 시간을 위한 영역은 서로 엇갈린 높이의 두 매스로 구성되며, 이 배치가 풍경을 향한 남동향의 테라스를 감싸 안는 구조를 형성한다. 메인 매스는 약 1.5층 높이를 가지며, 세 번째 매스는 야간 영역을 담고 있어 보다 사적인 외부 공간을 확보한다.
세 개의 매스가 얽히며 북측에 입구 마당을 형성하고, 이는 진입 경험에 뚜렷한 성격을 부여한다. 구조적 기능을 지닌 이러한 배치는 풍경을 지지대 없이 조망할 수 있도록 하여, 향후 새로운 용도와 사용자에 맞게 유연하게 변화할 수 있는 가능성을 열어두었다.
언어학자들에 따르면 이누이트와 북극권 사람들에게는 눈을 묘사하는 단어가 40가지가 넘는다고 한다. 이 프로젝트는 이와 유사하게 따뜻한 톤을 띠는 매우 구체적이고 다양한 ‘흰색’을 탐구하는 과정이었다. 콜메나르 천연석에서부터 마드리드 숲에서 자란 물푸레나무, 9016호에 가까운 황동의 다양한 색감, 그리고 2700K에 이르는 조명 온도까지, 이들의 조합을 통해 공간 안에 고요하고 안정된 분위기를 의도했다.
하부층에는 수영장, 헬스장 등 신체적 웰빙을 위한 프로그램이 배치되며, 천창을 통해 자연광이 스며든다. 각 매스는 모서리가 둥글게 처리되어 시각적으로 역동적인 흐름을 만든다. 이러한 곡선 요소는 개방된 테라스 영역에 배치되어 시공의 효율성을 높이면서도 내부 공간을 직교형으로 유지한다.
이 전략은 안드레우 알파로의 작업에서 자주 발견된다. 그의 조각은 직선과 곡선이 만나 끊김 없는 매듭을 이루며, 시선이 하나에서 다른 하나로 연속적으로 흘러가도록 만든다. 마데루엘로의 말처럼, 우리는 알파로 조각의 공간적 성질을 건축으로 ‘포착’하고자 했다. 그 결과 주택은 일종의 연속적인 여정이 되었다. 수영장은 테라스로 이어지고, 테라스는 매스의 파사드와 통합되며, 다시 수영장으로 돌아오는 순환적 경험을 완성한다. 이는 주택이 지닌 여러 기능 중 하나, 곧 ‘관조를 통해 누리는 공간’임을 드러낸다.













건축가 프란 실베스트레 아르키텍토스 (FRAN SILVESTRE ARQUITECTOS)
위치 스페인, 마드리드, 라 모랄레하
용도 단독주택
규모 지하 1층, 지상 2층
시공기간 2022. - 2024.
준공 2024
대표건축가 Fran Silvestre
프로젝트건축가 Fran Silvestr, María Masià, Estefanía Soriano, Carlos Lucas
디자인팀 Pablo Camarasa, Ricardo Candela, Sevak Asatrián, Andrea Baldo, Angelo Brollo, Javi Herrero, Paco Chinesta, Gino Brollo, Facundo Castro, Anna Alfanjarín, Laura Bueno, Toni Cremades, Susana León, David Cirocchi, Neus Roso, Nuria Doménech, Andrea Raga, Olga Martín, Víctor González, Pepe Llop, Alberto Bianchi, Pablo Simó, Andrea Blasco, Laura Palacio, Carlos Perez, Jovita Cortijo, Claudia Escorcia, Andrea García, Diana Murcia
인테리어 ALFARO HOFMANN
구조엔지니어 Estructuras Singulares
사진작가 Fernando Guerra
'Architecture Project > Single Family' 카테고리의 다른 글
| 숨은 정원과 선큰 파티오가 이어지는 소박한 안식처 / 5468796 아키텍처 (0) | 2025.09.26 |
|---|---|
| 45도 회전으로 완성한 입체적 주택 / 후지와라무로 아키텍츠 (0) | 2025.09.25 |
| 계절과 풍경을 담는 창, 일본적 삶을 담는 건축 / 아키트립 (0) | 2025.09.24 |
| 철새와 함께 머무는 집, 자연과 인간의 대화를 담은 레지던스 / 에이치에이에스 디자인 앤드 리서치 (0) | 2025.09.24 |
| 절벽 위에 세운 경사의 집, CAPO / 아틀리에 카를 (0) | 2025.09.23 |
마실와이드 | 등록번호 : 서울, 아03630 | 등록일자 : 2015년 03월 11일 | 마실와이드 | 발행ㆍ편집인 : 김명규 | 청소년보호책임자 : 최지희 | 발행소 : 서울시 마포구 월드컵로8길 45-8 1층 | 발행일자 : 매일



