
Living in Harmony with the Changing Seasons
우리는 야마가타현 요네자와시에 새로운 휴가용 주택을 설계하고 건설했다. 대지는 산악 지대에 위치하며 사방이 산으로 둘러싸인 자연이 풍부한 곳이다. 클라이언트는 미국 마이애미에 거주하며 일본을 방문할 때 머물 거점으로 이 건물을 계획했다. 산이 거의 없는 마이애미와 달리, 이 땅의 뚜렷한 일본적 풍경에 매료되어 이곳을 주택 부지로 선택했다.
이 프로젝트는 건축을 통해 계절의 변화와 지역 기후를 체험할 수 있게 한다. 이는 미국의 도시나 교외 생활에서는 얻을 수 없는 감각이다.
현관실을 지나면 주방과 다이닝 공간이 펼쳐진다. 이 공간은 일본 전통의 ‘도마(土間)’와 미국의 신발을 신고 생활하는 문화를 접목시켜, 건축을 통해 이국적 문화를 느낄 수 있게 한다.
일본 전통 건축은 다다미 방과 쇼지, 후스마를 활용해 공간의 쓰임과 외부와의 관계를 유연하게 조절했다. 이 건물은 그러한 유연성을 계획에 담아, 다수의 손님을 수용하거나 계절과 생활 방식에 따라 다양한 용도로 대응할 수 있도록 했다.
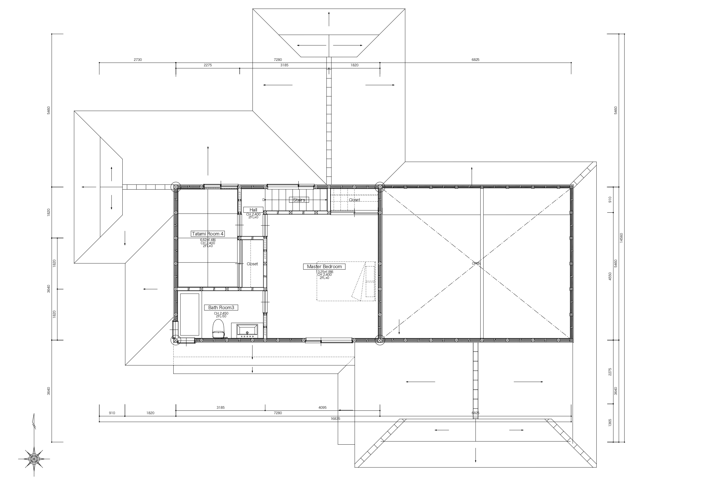
1층의 중심 기둥을 중심으로 내부와 외부의 관계가 역전된 평면을 구성했다. 실내는 도마 마루 공간과 연결되는 내마루(내부 베란다)로 이어지고, 외부는 일본 정원과 연결되는 외마루(외부 베란다)로 확장된다. 하나의 기둥을 중심으로 십자형으로 이어지는 마루는 모호한 경계를 형성한다.
하부에 유리 패널을 넣은 설경 쇼지(雪見障子)를 선택했다. 같은 공간, 같은 면적임에도 외부를 비추는 방식에 따라 전혀 다른 분위기가 연출된다. 시간과 공간의 확장, 그리고 기온의 차이마저도 느낄 수 있다.
주방-다이닝 공간은 도마 마루 바닥 위에 재활용 목재와 드러난 구조재를 사용해 역동적인 공간으로 구성했다. 국산 삼나무와 갈대를 사용해 은은한 향이 공간을 감싸도록 했다.
이 건물에서 창은 단순히 빛을 들이는 역할이 아니다. 창은 외부 풍경을 끌어들이고 계절의 변화를 체감하게 하며, 소유자가 일본을 방문했을 때 시간을 더욱 풍요롭게 보낼 수 있도록 한다. 창마다 시선은 달라진다. 가까운 나무를 비추거나, 멀리 산맥을 담아내며 다양한 경험을 선사한다.
이 건축은 낯선 문화 속에서도 묘한 향수를 불러일으키는 재료들을 통해 일본적 삶의 조각들을 곳곳에 흩뿌린다. 일본의 문화와 기후를 건물 자체를 통해 체험하도록 하는 의도가 담긴 프로젝트이다.
























건축가 아키트립 (Architrip Inc.)
위치 일본, 요네자와
용도 단독주택
연면적 137㎡
규모 지상 2층
준공 2025
프로젝트건축가 Shota Kuwana, Yutaka Harada
사진작가 Yoshiki Yokoyama
'Architecture Project > Single Family' 카테고리의 다른 글
| 45도 회전으로 완성한 입체적 주택 / 후지와라무로 아키텍츠 (0) | 2025.09.25 |
|---|---|
| 직선과 곡선이 엮인 연속의 여정 / 프란 실베스트레 아르키텍토스 (0) | 2025.09.24 |
| 철새와 함께 머무는 집, 자연과 인간의 대화를 담은 레지던스 / 에이치에이에스 디자인 앤드 리서치 (0) | 2025.09.24 |
| 절벽 위에 세운 경사의 집, CAPO / 아틀리에 카를 (0) | 2025.09.23 |
| 나무 사이에 숨은 하얀 집, M 하우스 / 아이딘 아키텍츠 (0) | 2025.09.23 |
마실와이드 | 등록번호 : 서울, 아03630 | 등록일자 : 2015년 03월 11일 | 마실와이드 | 발행ㆍ편집인 : 김명규 | 청소년보호책임자 : 최지희 | 발행소 : 서울시 마포구 월드컵로8길 45-8 1층 | 발행일자 : 매일



