
최근 지속적인 인구 감소와 고령화의 영향으로 도시의 중심 가로를 따라 흐르던 움직임은 점차 약화되었고, 과거에는 자연스럽게 스며들던 도시의 흐름조차 이제는 대상 건물까지 도달하지 못한 채 단절되어 있다. 주변 학교, 문화원, 창작센터, 소공원 등 주요 도시 요소들 또한 서로 유기적인 관계를 맺지 못한 채 각자 고립된 존재로 남아 있다. 이러한 상황 속에서 본 프로젝트가 제한적으로 나마 도시 흐름을 회복하고 단절된 장소들 사이에 새로운 연결의 가능성을 제시하고자 한다.
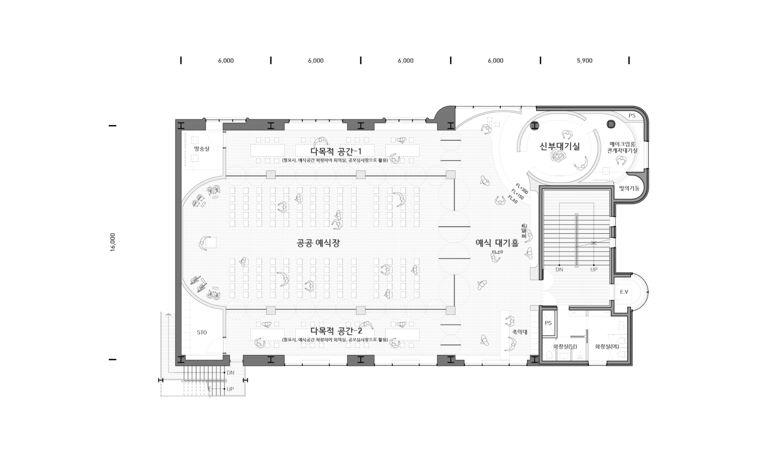
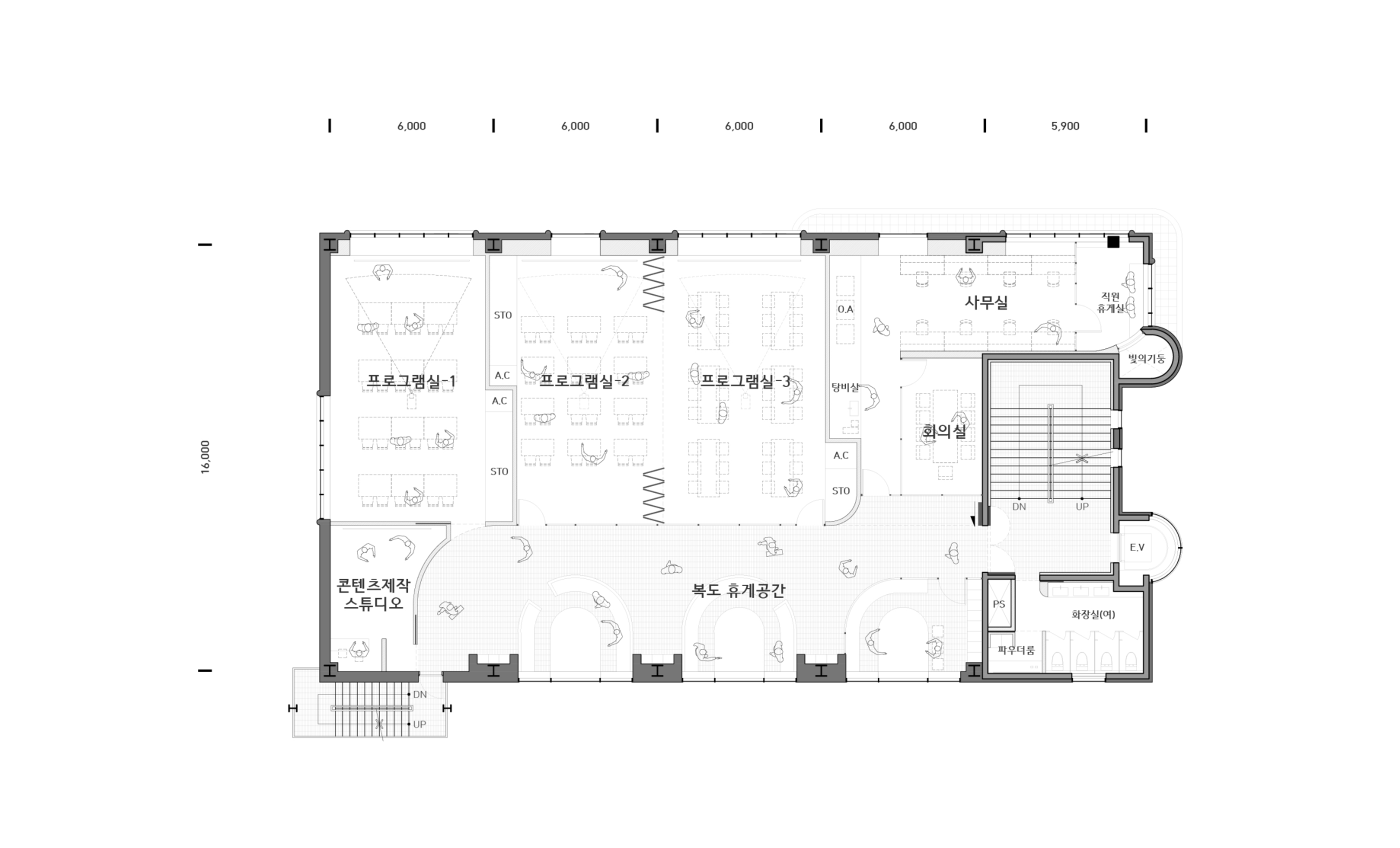
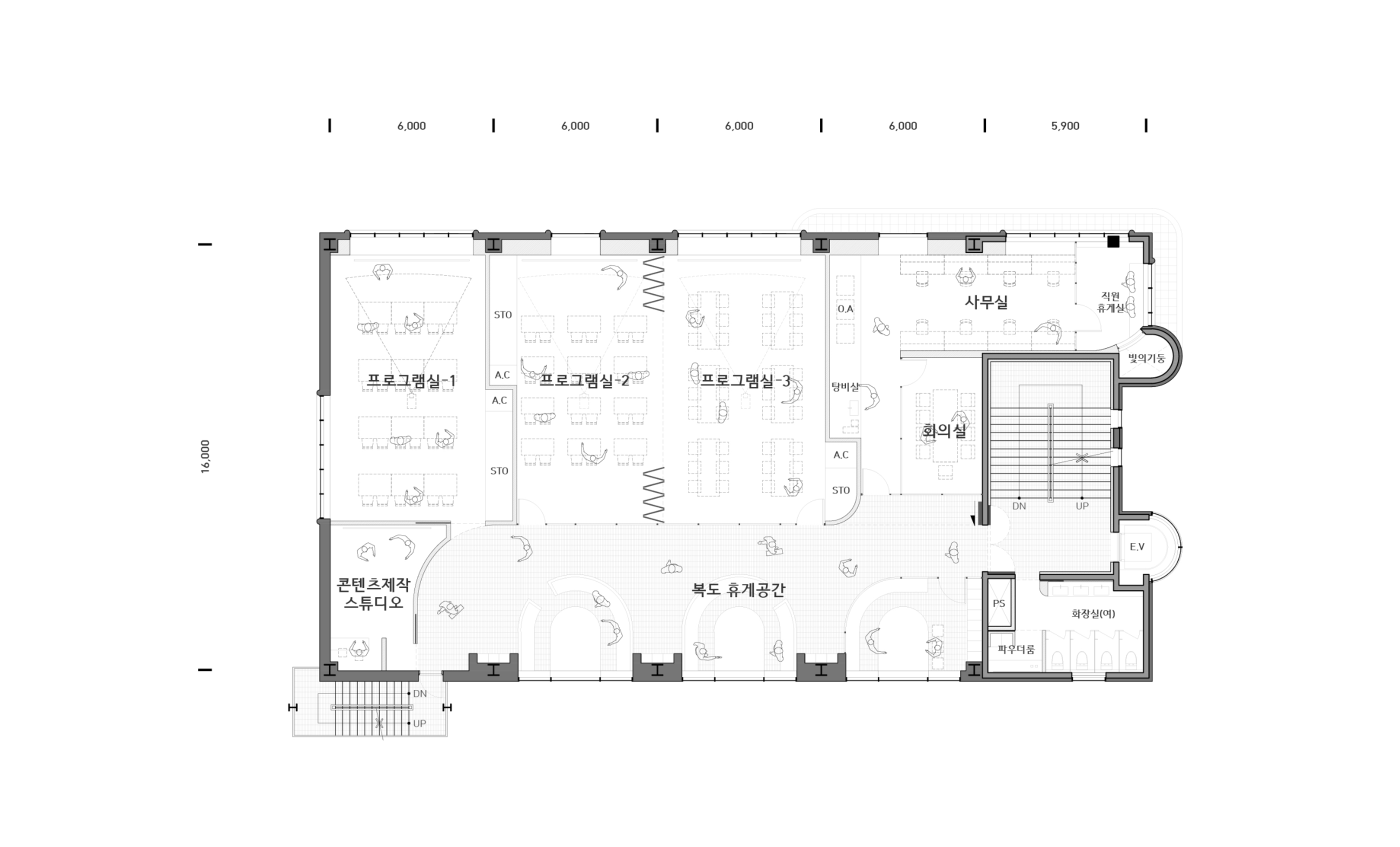
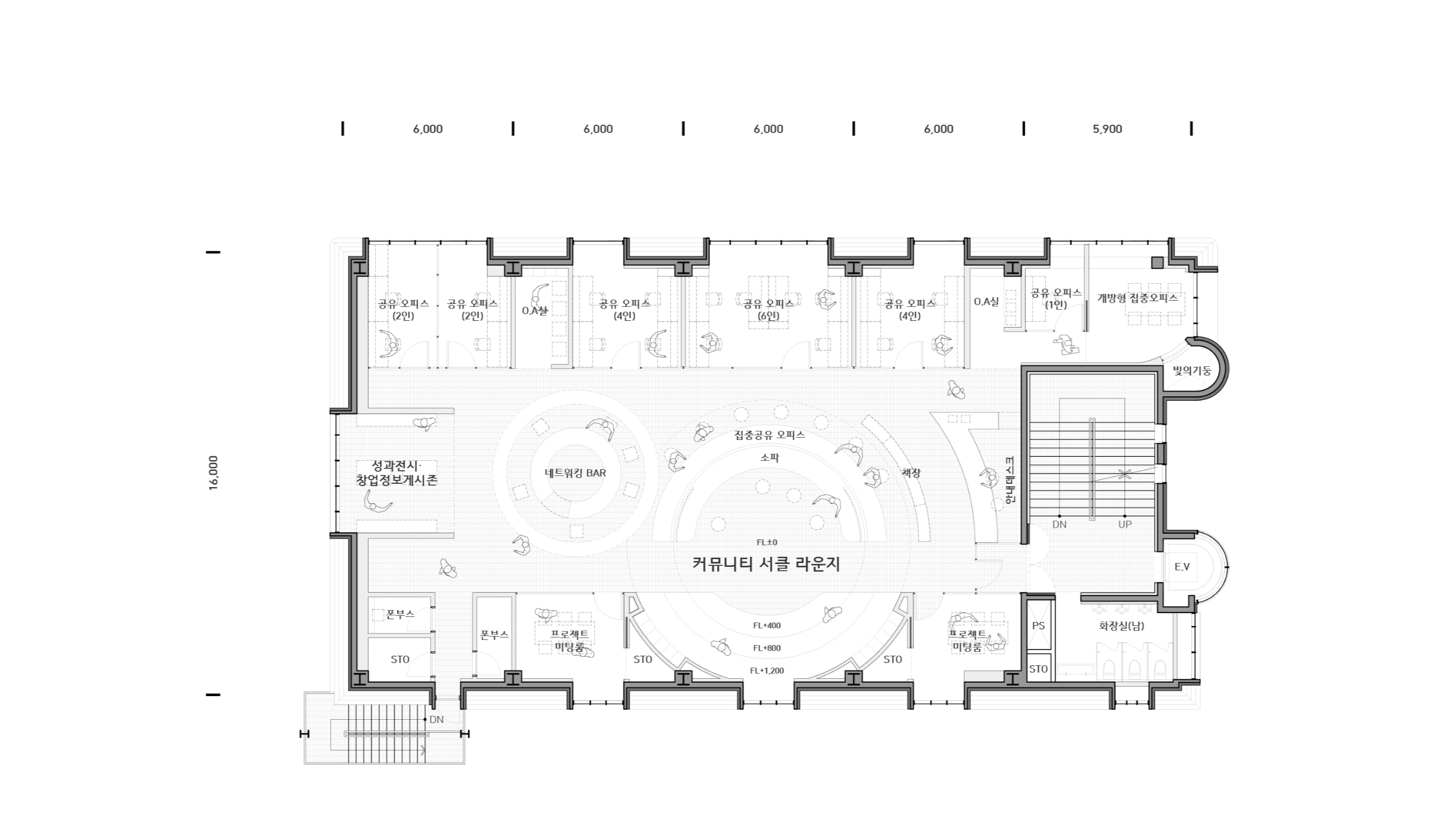
보령 청년센터로 변경되는 대상 건물은 넓은 대지 조건에도 불구하고 측면부에 과도하게 배치된 주차장과 기능 중심의 공간 구성으로 인해 도시와의 흐름이 단절되어 건축은 내, 외부 연계없이 독립된 구조물처럼 작동해왔다. 또한 기존 입면은 이형적인 조형의 반복과 장식적 요소들로 구성되어 과잉된 조형으로 표출되어 있다.
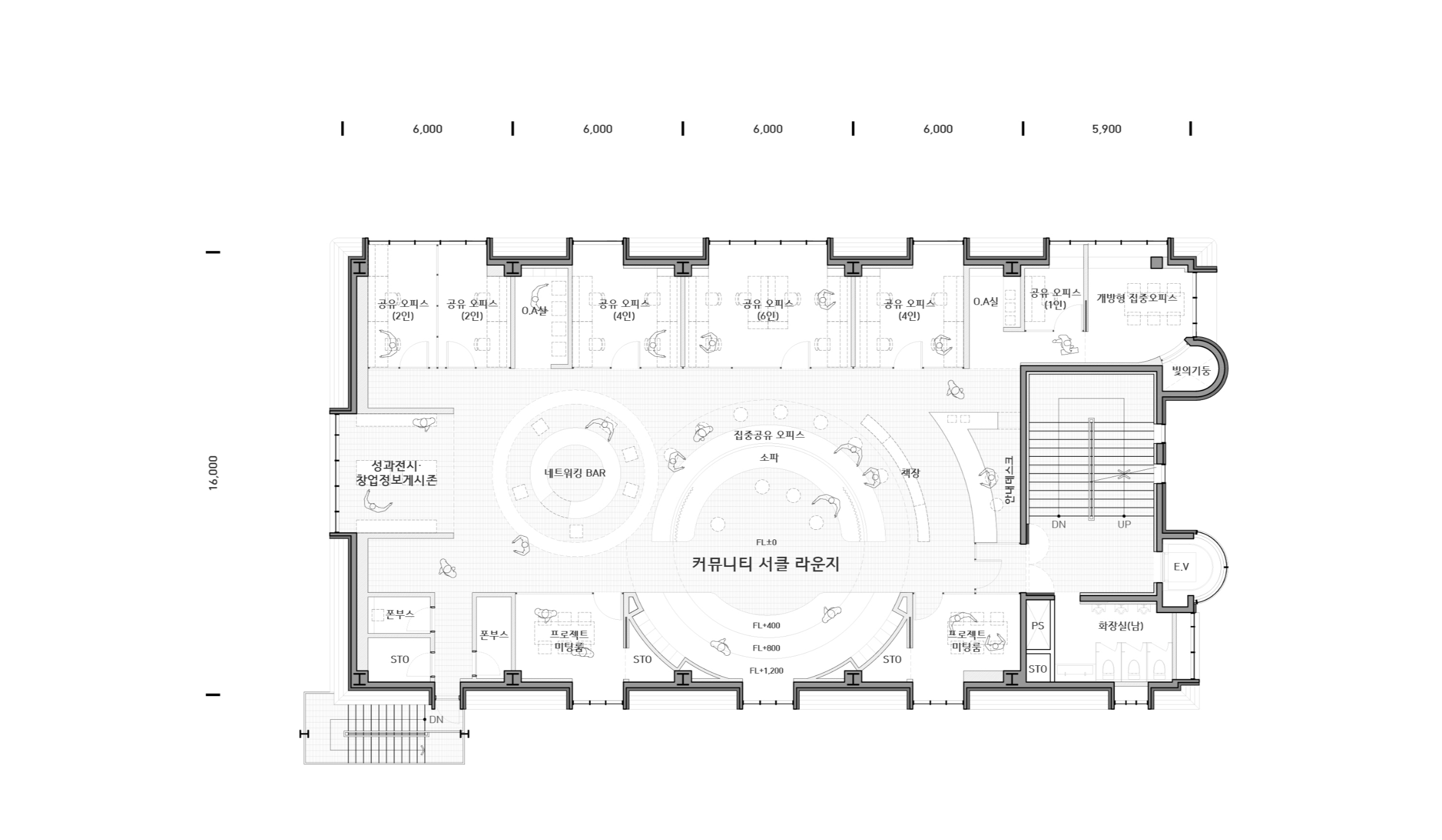
외부 공간 또한 충분한 잠재력을 지니고 있음에도 불구하고, 측면부 주차장을 중심으로 형성된 비활성 외부 공간은 실질적인 가로와의 연결성이나 장소로서의 조직 없이 방치되어 있었고, 그 결과 건축은 도시적 흐름 속에서 스스로를 분리시킨 채 고립된 존재로 기능하고 있었다. 이러한 구조적 문제를 정리하고 법적, 물리적 조건 안에서 가능한 개입을 통해 건축이 도시와 다시 관계 맺고, 주사용자인 청년과 주민들이 활발히 사용하는 장소로 회복되는 것을 목표로 한다. 이에 따라 우리는 건물의 외관을 바꾸는 대신, 사람들이 실제로 접촉하는 1층의 공간을 중심으로 도시와의 관계를 다시 설정하는 방식을 제안한다. 즉, 외벽을 덧입히는 것이 아니라, 내부와 외부 사이의 흐름을 다시 열어주고 도시의 흐름이 건물 안으로 스며들 수 있도록 조정하는 것이 보다 효과적인 도시적 전략이 될 수 있을 것이다. 건물은 외관으로 도시와 관계를 맺는 것이 아니라, 그 안에서부터 어떻게 도시를 받아들이고, 다시 도시로 열릴 수 있는가에 따라 작동한다.
본 프로젝트는 단순히 내부의 공간이나. 외부의 입면을 다시 구성하는 시각적 조정이 아니라, 도시의 흐름이 건축 내부로 자연스럽게 유입되고, 사용자가 그 안에서 장소를 경험할 수 있도록 조정하는 작업이다.














KODE Architects 건축사사무소
당선작_KODE Architects 건축사사무소 (https://www.kodearchitects.com/)
대표건축가 김민호
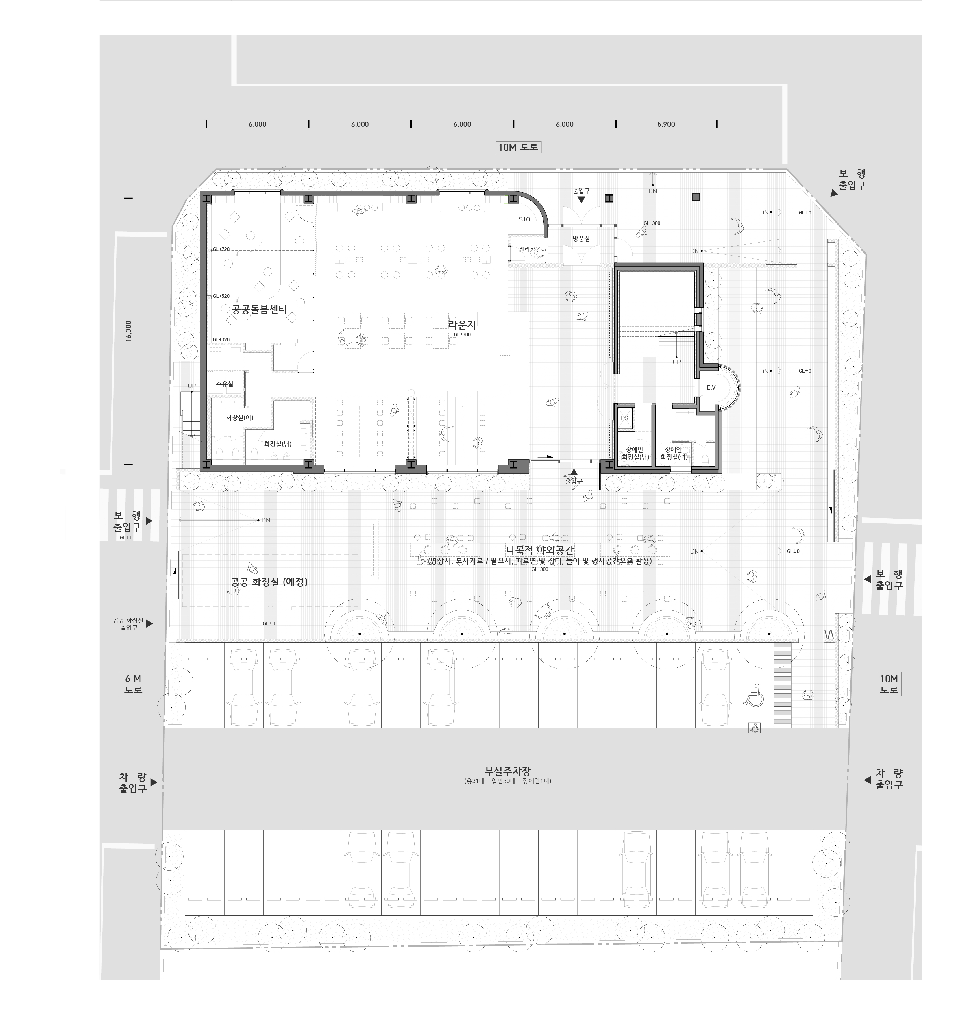
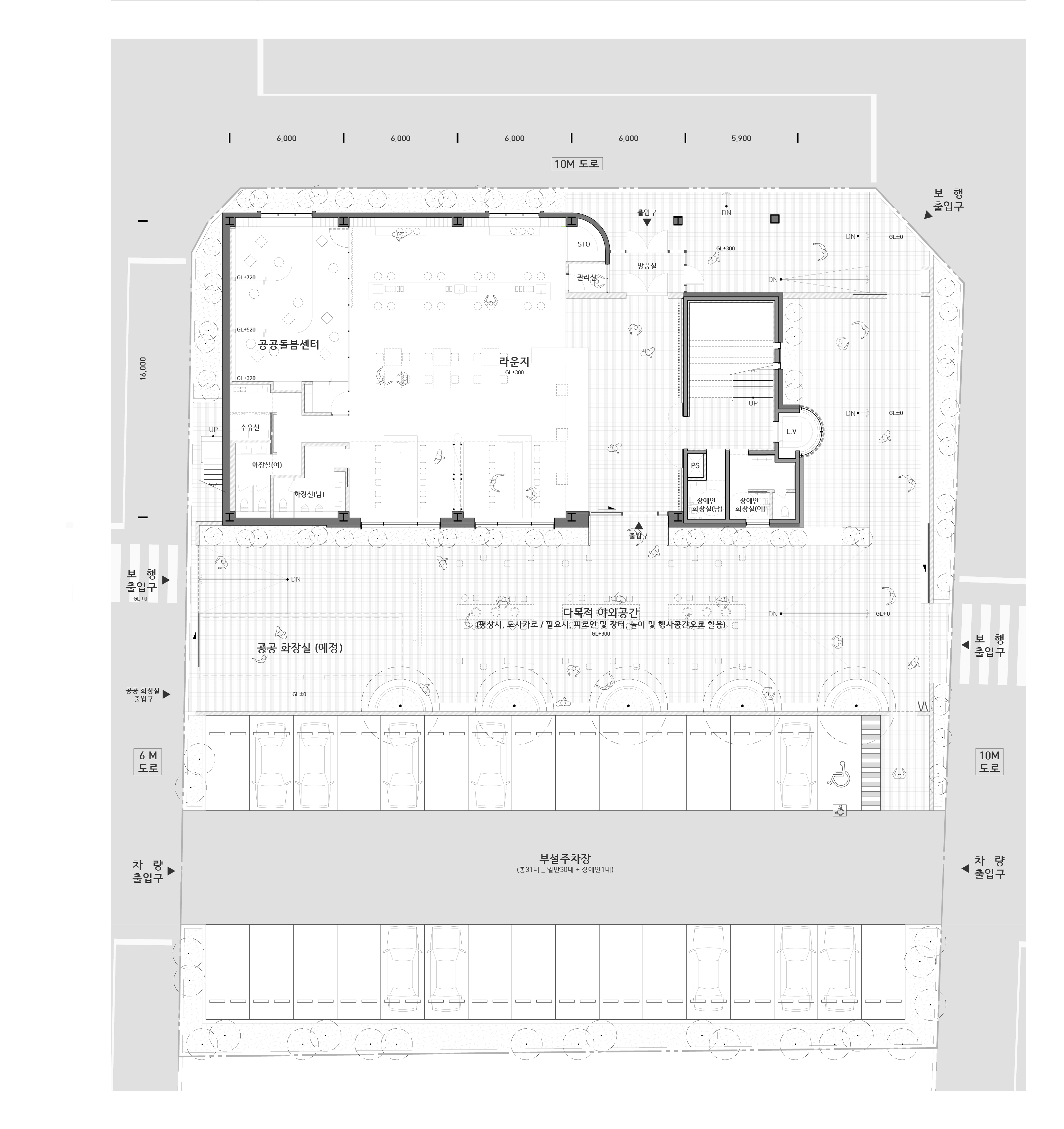
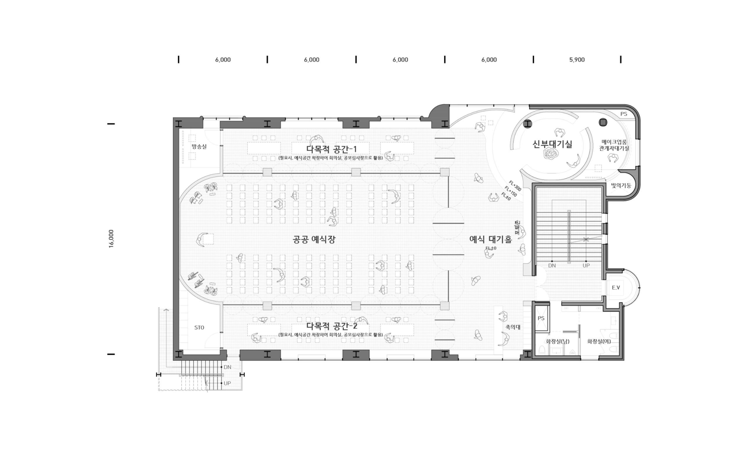
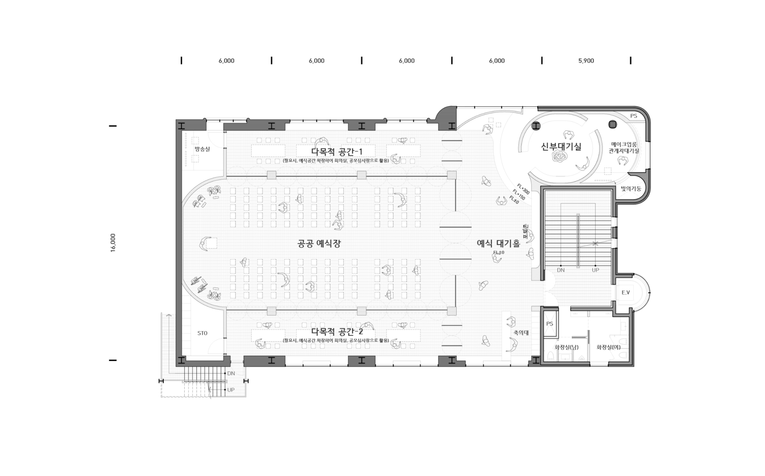
대지면적 1,785㎡
연면적 1,930.17㎡ (공중화장실 포함)
건축면적 564.34㎡ (공중화장실 포함)
건폐율 31.62%
용적률 108.13%
최고높이 18.40m
층수 지상 4층
구조 철골구조
대표건축가 김민호
디자인팀 김민호, 홍동관, 송석민, 추연태
조경면적 269.64㎡
주차대수 31대 (일반30대 / 장애인1대)
발주처 보령시청
'Plans' 카테고리의 다른 글
| 제2수목원 방문자센터 목조건축 건립사업 일반공모_ 4등작 / 오픈스튜디오 건축사사무소 (0) | 2025.08.29 |
|---|---|
| 송산문화스포츠센터 건립사업 건축설계 일반설계공모_ 5등작 / (주)제이알건축사사무소 + Yong Yeob kim Architects (0) | 2025.08.29 |
| 한국수산자원공단 서해본부 청사 증축 설계 공모_ 5등작 / (주)건축사사무소 토도 (0) | 2025.08.27 |
| 보령시 청년센터 조성사업 지명제안공모_ 4등작 / (주)아파랏체건축사사무소 (0) | 2025.08.27 |
| 한국수산자원공단 서해본부 청사 증축 설계 공모_ 4등작 / 수조건축사사무소(주) (0) | 2025.08.21 |
마실와이드 | 등록번호 : 서울, 아03630 | 등록일자 : 2015년 03월 11일 | 마실와이드 | 발행ㆍ편집인 : 김명규 | 청소년보호책임자 : 최지희 | 발행소 : 서울시 마포구 월드컵로8길 45-8 1층 | 발행일자 : 매일



