
Layerscape_적층된 풍경, 소통의 흐름
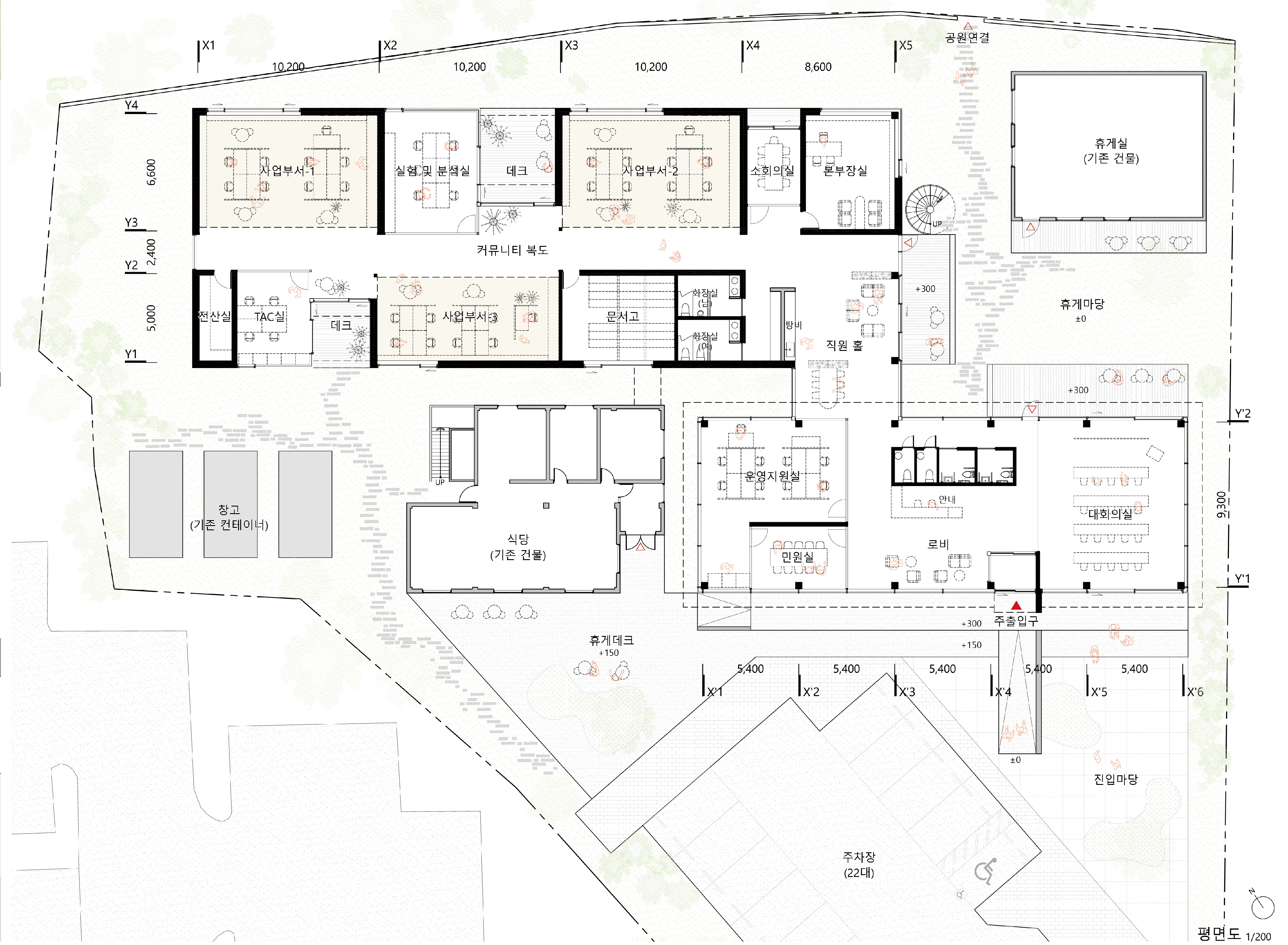
군산 내항은 일제강점기부터 형성된 근대건축물과 항만시설이 공존하는 장소로, 지역의 역사성과 장소성이 켜를 이루는 곳이다. 본 프로젝트는 붉은 벽돌, 모임 지붕, 뜬다리 등 주변 맥락을 유추적으로 해석하여 현대적으로 재구성하고, 이를 개방적이고 유연한 업무환경으로 구현하였다. 기존의 폐쇄적·단절적 구조에서 벗어나 커뮤니티 복도를 중심으로 한 열린 평면을 구성하고, 유리 파티션, 오픈 라운지, 외부 휴게공간 등을 통해 구성원 간의 자연스러운 소통과 협업을 유도한다. 증축 동은 기존 건물과 외부 공간을 매개로 수평·수직 입체 동선을 이루며 연결되고, 전면의 투명한 매스를 통해 진입부에서 시각적 인지성을 확보하는 동시에, 내부 공간에서 군산내항 친수공원으로 자연스럽게 이어지는 흐름을 통해 업무공간과 도시, 자연이 유연하게 연결되는 열린 업무 환경의 새로운 모델을 제시한다.
















수조건축사사무소(주)
4등작_수조건축사사무소(주) (sujoh.co.kr)
대표건축가 김석현, 허종현, 배진희
대지면적 3,874.0㎡
연면적 1,083.79 ㎡ (기존 306.08㎡ + 증축 777.71㎡)
건축면적 1,083.79 ㎡ (기존 306.08㎡ + 증축 777.71㎡)
건폐율 27.98 % (60% 이하)
용적률 27.98 % (300% 이하)
최고높이 6.5m
층수 지상 1층
구조 철근콘크리트구조
대표건축가 김석현, 허종현, 배진희
디자인팀 김석현, 허종현, 배진희
조경면적 1,081.74 ㎡ (대지면적의 27.92%)
주차대수 22대 (장애인 주차 1대, 전기차 2대 포함)
발주처 한국수산자원공단 서해본부
'Plans' 카테고리의 다른 글
| 한국수산자원공단 서해본부 청사 증축 설계 공모_ 5등작 / (주)건축사사무소 토도 (0) | 2025.08.27 |
|---|---|
| 보령시 청년센터 조성사업 지명제안공모_ 4등작 / (주)아파랏체건축사사무소 (0) | 2025.08.27 |
| 청룡초등학교 공간재구조화 리모델링 건축설계공모_ 당선작 / 주식회사 라움건축사사무소 (0) | 2025.08.21 |
| 밀양소방서 가곡119안전센터 신축사업 설계공모_ 4등작 / (주)지오건축사사무소 (0) | 2025.08.21 |
| 안성시 공공산후조리원 설계공모_ 당선작 / 건축사사무소 해윰 + 디오프레즌트 건축사사무소 (0) | 2025.08.20 |
마실와이드 | 등록번호 : 서울, 아03630 | 등록일자 : 2015년 03월 11일 | 마실와이드 | 발행ㆍ편집인 : 김명규 | 청소년보호책임자 : 최지희 | 발행소 : 서울시 마포구 월드컵로8길 45-8 1층 | 발행일자 : 매일



