
도시 등대 / 청년센터와 구도심
구도심이 겪고 있는 공동화 현상과 청년들의 도시 유출은 하나의 근원을 갖는다. 어느 한 쪽이 개발되면서 다른 쪽을 쇠퇴시키는 현상. 인구도 도시도 더이상 성장하지 않는 시기에 여전히 과거의 개발 패러다임에만 몰두한 도시화의 결과이다. 줄어가는 청년 인구를 위한 구심점이 옛 도심에 들어선다. 어찌 보면 작은 실천이고 달리 보면 중요한 사건이다. 멀리서도 훤히 보이는 대지의 특성상, 이 사건의 건축적 표현에 대해 고민했다. 상징적으로는 바다와 연관이 있었으면 좋겠고 기능적으로는 구도심의 어두울 밤을 밝혔으면 좋겠다.
파편들의 건축 / 최대한 물려 받고 최소한 개입하기
옛 예식장 건물에 새로운 청년센터를 조성하는 이번 사업은 여러가지 측면에서 최소한의 개입만을 요구하고 있다. 우선 당시 대중의 결혼에 대한 인식이 드러나는 이 건물의 역사성을 보존하기 위해서다. 또 다른 이유는 이 사업에 투입할 수 있는 시간도 재원도 빠듯하다는 점이다. 제한된 자원을 효율적으로 활용하기 위해서 기존의 건물을 세심하게 관찰하고 최대한 많은 것들을 이어 받는다. 다만 좁고 어두운 출입구, 급조된 듯한 돔 구조물, 무질서한 개구부 등은 새로운 청년센터에 맞게 개선한다. 최대한 물려받고 최소한 개입해 생겨난 파편들의 조합을 통해, 신축건물에서는 볼 수 없는 업사이클링의 아름다움을 구현할 수 있다.
사라지는 건물과 기억 / 기록하기
보령 구도심에 자리한 예식장은 더 이상 본래의 기능을 수행하지 못하고 문을 닫은 채 방치되어 있다. 건물의 외형은 다소 유치하고 과장된 상업적 장식으로 이루어져 있으며, 현재의 시각으로는 낯설거나 심미적으로 불편하게 느낄 수 있다. 그러나 이 예식장은 한때 수많은 사람들이 결혼식을 치른 사회적 기억의 장소이며, 보령의 산업화 / 도시화의 흔적이 담긴 곳이다. 단순히 낡은 상업시설이 아니라, 지역 주민의 삶과 문화가 스며들어 있으며 그간의 시간이 켜켜이 쌓인 공간이라는 점에서 존중할 가치가 충분하다. 보령 청년센터의 계획은 기존 건물의 주의 깊은 관찰에서 시작된다. 이 건물을 사진으로 접했을 때와 직접 방문해 공간을 살폈을 때의 감상은 사뭇 달랐다. 사진 속의 장난감 같던 여러 건물의 요소들이 공간 속에서 예상치 못한 광경들을 보여주었기 때문이다. 장식 몰딩에서부터 거북이창까지 이 건물에는 당시의 순수함과 허세가 동시에 드러나 있다.
존중과 재해석 / 겹쳐쓰기
기존 건물에는 무관한 요소들이 혼재되어 나타난다. 지붕은 베르사유 궁전의 만사르 스타일이고(Mansart Roof) 정면은 어쩐지 고딕성당을 떠올리게 한다. 첨탑으로 위장한 승강로 위에는 축소한 비잔틴 양식의 돔이 얹혀 있다. 계단실에는 마이클 그래이브스의 건물 파사드를 연상시키는 기둥 모양의 창이 있다. 건물 상층부에 있는 두 개 층 높이의 창은 십장생 중 하나인 거북을 본떠서 만든게 분명하다. 무질서해 보이지만, 90년대 결혼식에 대한 대중들의 인식을 엿볼 수 있는 유쾌한 흔적이다. 이를 긍정하고 출발선으로 삼는다. 기존 건물의 형태적이고 장식적인 성격을 유지하면서 청년센터라는 새로운 프로그램에 맞춰 최소한으로 개입한다. 바닥형태와 불일치하는 돔은 철거하고 적절한 형태의 라이트박스로 대체한다. 너무 복잡한 개구부 체계는 단순화해 건물의 인상을 정돈한다. 벤치로도 기능하는 울타리를 통해 청년센터를 적절히 구획하되 벤치는 5일장에서 유용하게 쓰이도록 한다.
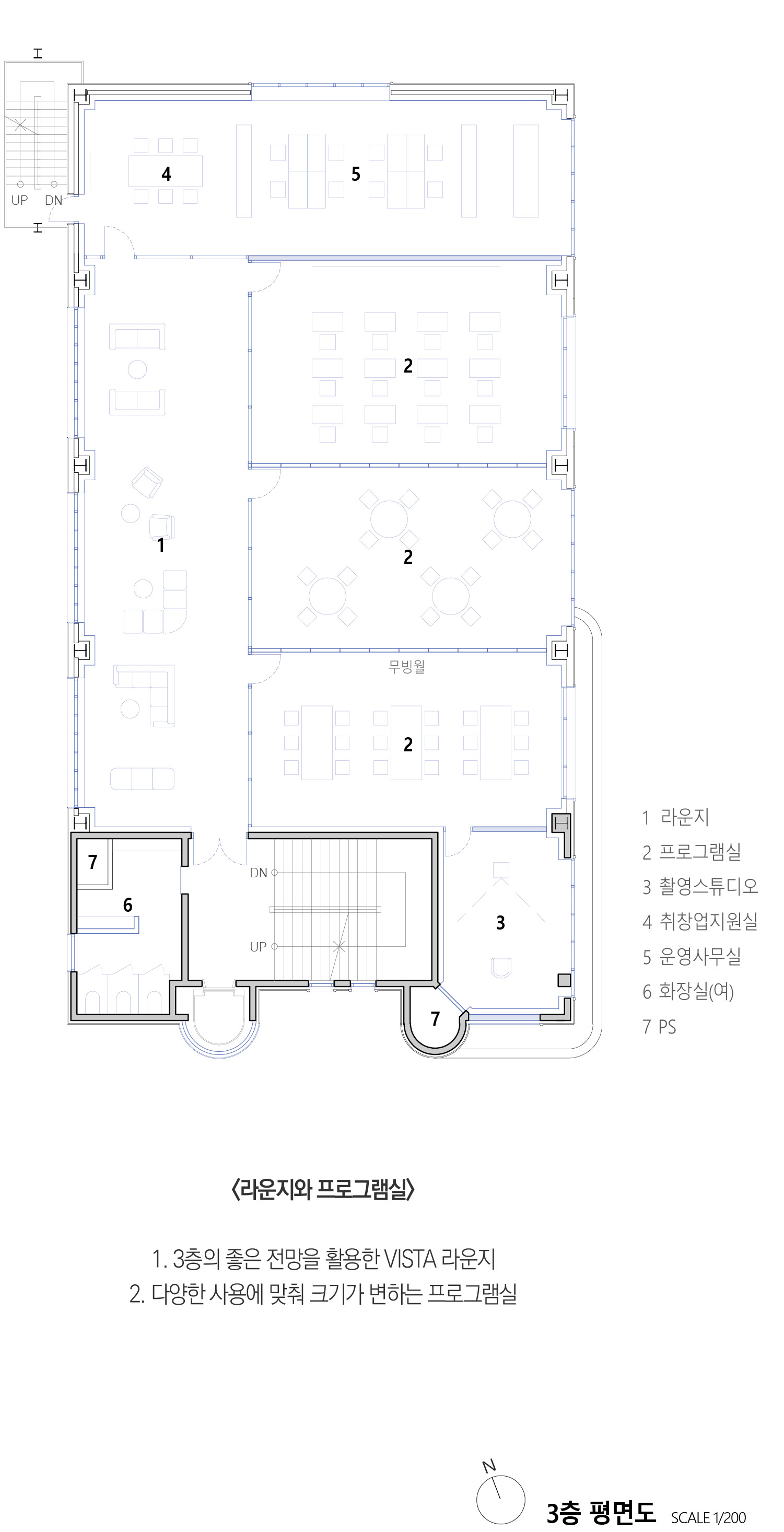
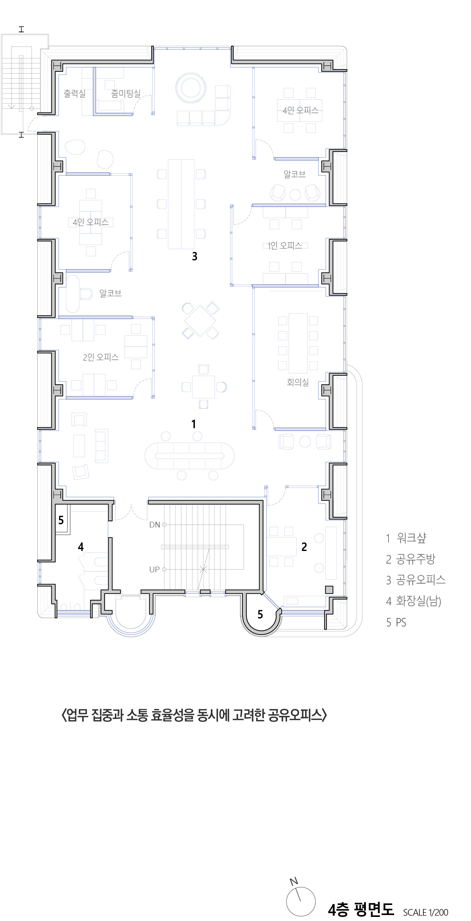
청년센터 / 정보 공유와 여론 형성의 場
지방 소도시의 청년 인구 감소는 이미 심각한 수준을 넘어섰다. 물론 청년센터의 건립만으로 이런 현상을 막을 수는 없다. 그러나 그들이 서로 교류하고 여론을 형성하며, 이를 바탕으로 정책까지 제안할 수 있도록 그들을 위한 공론의 장은 반드시 필요하다. 기존 부지는 구도심의 중심에 위치해 접근성이 좋고 건물 또한 24X16미터의 무주 공간으로 구성되어 있어, 여러 프로그램을 소화하기에 적합하다. 청년정책 아카이브실부터 로비(공론장), 각종 문화 및 예술 프로그램실, 공유 오피스 뿐만 아니라 공공예식장까지 그 용도가 복합적이고 다양하다. 최대한 옛 모습을 간직하도록 개입을 최소화 한 외부 형태와 달리, 내부 공간은 새로운 용도에 맞춰 적극적으로 변형한다.












(주)아파랏체건축사사무소
4등작_ (주)아파랏체건축사사무소 (http://apparat-c.com/)
대표건축가 최연웅, 이세웅
대지면적 1,785㎡
연면적 1,879,02㎡
건축면적 527.33㎡
건폐율 28.75%
용적률 103.44%
최고높이 18.4m
층수 지상 4층
구조 일반철골구조
대표건축가 최연웅, 이세웅
디자인팀 김소연, 김수환
조경면적 200.83 ㎡
주차대수 29대
발주처 보령시
'Plans' 카테고리의 다른 글
| 보령시 청년센터 조성사업 지명제안공모_ 당선작 / KODE Architects 건축사사무소 (0) | 2025.08.27 |
|---|---|
| 한국수산자원공단 서해본부 청사 증축 설계 공모_ 5등작 / (주)건축사사무소 토도 (0) | 2025.08.27 |
| 한국수산자원공단 서해본부 청사 증축 설계 공모_ 4등작 / 수조건축사사무소(주) (0) | 2025.08.21 |
| 청룡초등학교 공간재구조화 리모델링 건축설계공모_ 당선작 / 주식회사 라움건축사사무소 (0) | 2025.08.21 |
| 밀양소방서 가곡119안전센터 신축사업 설계공모_ 4등작 / (주)지오건축사사무소 (0) | 2025.08.21 |
마실와이드 | 등록번호 : 서울, 아03630 | 등록일자 : 2015년 03월 11일 | 마실와이드 | 발행ㆍ편집인 : 김명규 | 청소년보호책임자 : 최지희 | 발행소 : 서울시 마포구 월드컵로8길 45-8 1층 | 발행일자 : 매일



