
시간의 중첩 : 숨·쉼·숲
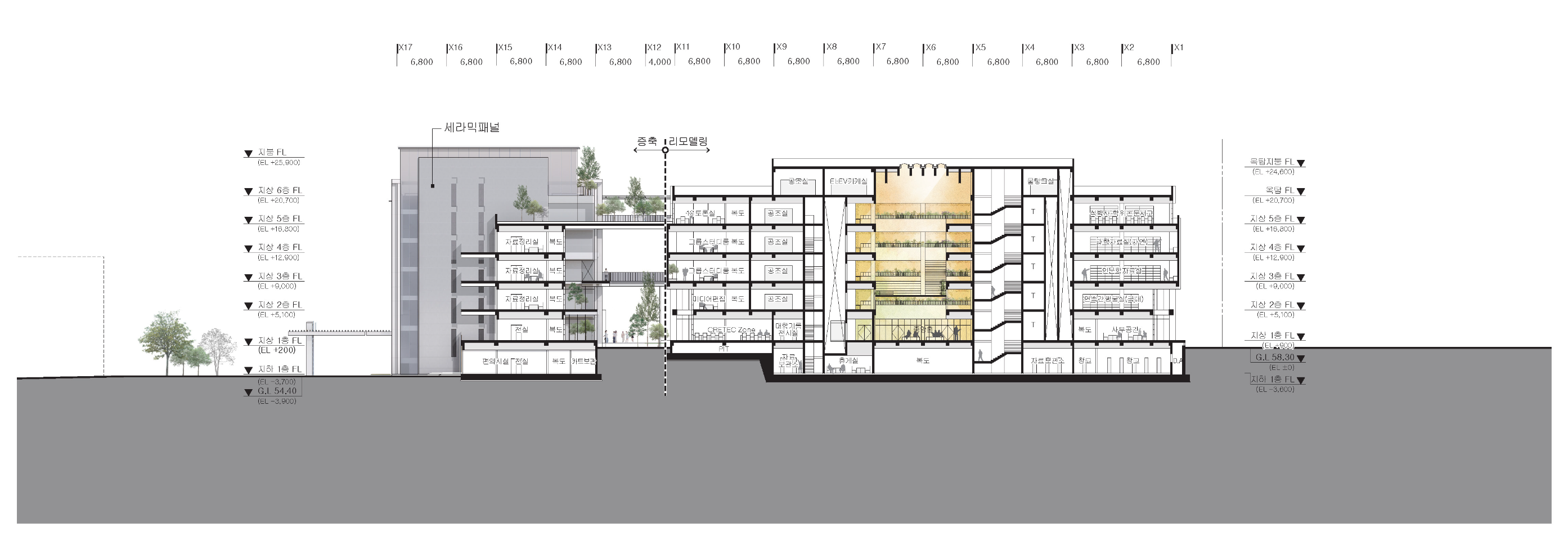
과거와 현재를 잇는 공간, 경북대학교의 상징성과 역사성은 유지하면서, 현대적 감성과 기술롸 설계한다. 이 두 건축 언어 사이의 ‘사이공간’은 시간의 층위를 보여주는 공간으로써, 리듬감 있는 동선과 빛의 흐름을 통해 자연스럽게 과거에서 현재로 이동하는 감각을 부여한다. 시각적 연속성을 확보해 기존과 신축 사이의 경계를 흐리게 하고 자연광을 적극적으로 도입해, 도서관 전체의 채광 환경을 개선하고, 동시에 에너지 효율을 높인다. 중정과 옥상정원을 배치해 생태적 요소를 도입해, 실내외를 넘나드는 풍경을 만들어, 이용자의 스트레스 완화 및 정서적 휴식공간을 제공한다. 도서관의 기능이 단순한 독서/학습 공간에서 벗어나 공동체적 교류 공간으로 확장됨에 따라. 사이공간은 비형식적 교류공간으로써, 다양한 스케일의 좌식, 스탠딩, 계단형 라운지 등을 조합해 유기적인 체류를 유도한다.
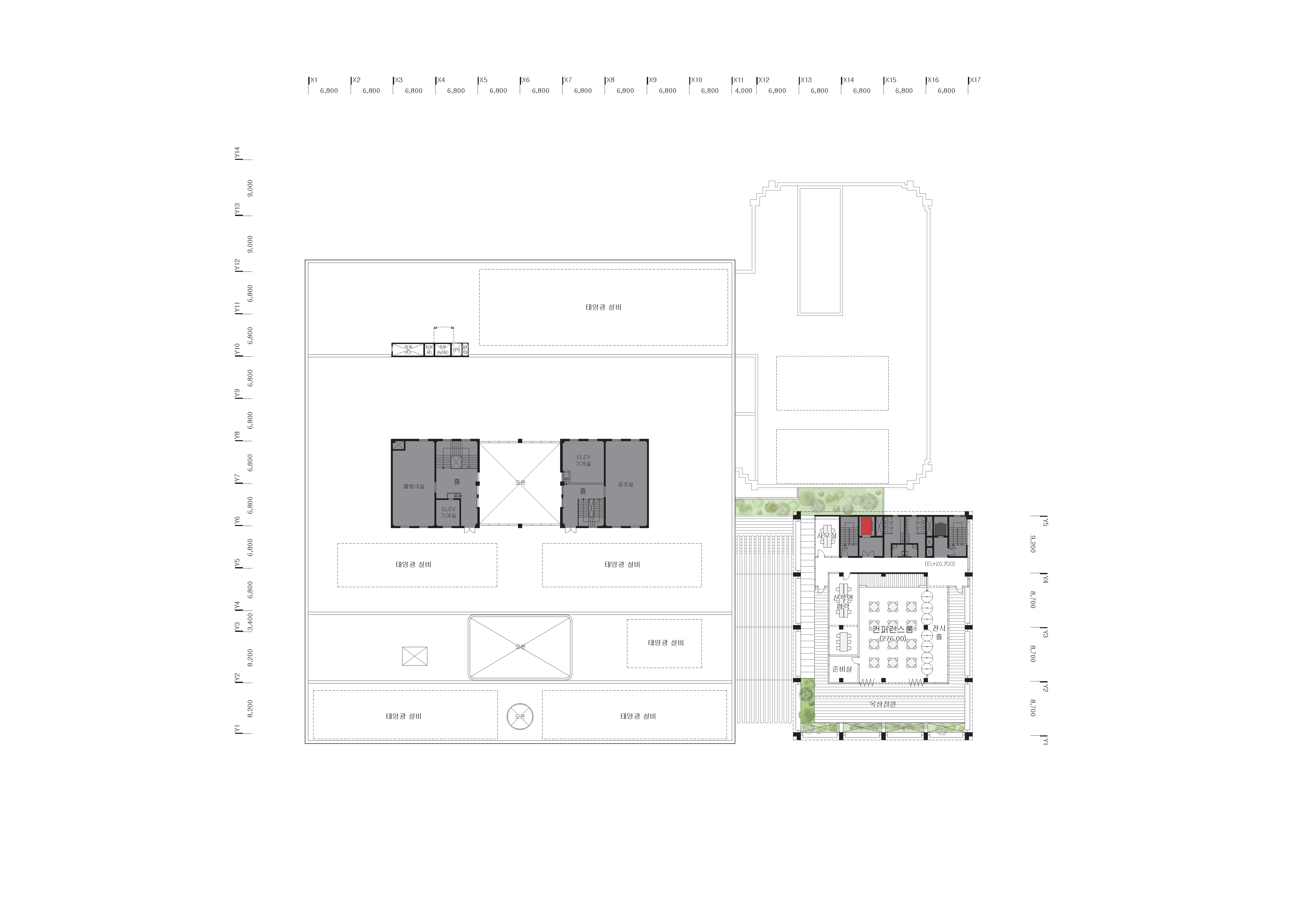
기존 동선구조의 비효율성과 단절 문제를 해소, 증축되는 영역과의 원활한 연계, 입체적으로 연결되는 공간구조를 조성한다. 현재 도서관의 가장 큰 문제인 증축부간의 물리적 단절을 해결하고자, 간단 명료한 그리드를 통해 주요 연결 동선의 기준을 설정한다. 모든 수직동선요소와 연결이 명확하며, 층별 컨디션에 따라 다양한 변경이 가능하다. 도서관에서의 바이오필릭은 공간의 본질과 지식의 본질을 재조명한다. 따로 작동하던 본관동의 아트리움과 보이드 공간을 통합하고 증축동의 사이공간을 활용하여 곳곳에 빛의 통로를 형성한다. 빛의 통로는 주 동선 및 공용부와 같이 작동하며, 곳곳에 실내 조경요소를 배치한다. 오픈공간 및 휴게공간에 풍성하게 들어오는 자연광과 식물요소를 통해 학습과 휴식, 채광과 공기질 정화의 효과를 가져온다.



















(주)에스샵건축사사무소
2등작_ (주)에스샵건축사사무소(https://jucj-architects.com)
대표건축가 정인호, 최은철
대지면적 738,483.00㎡
연면적 635,899.01㎡
건축면적 155,228.38㎡
층수 지하1층, 지상6층
구조 철근콘크리트조
외부마감 금속패널, 로이복층유리, 알루미늄 루버, 알루미늄 시트
대표건축가 정인호, 최은철
설계팀 오인환, 허연식, 노지혜, 오준환, 이지웅, 정구환 / 권민성, 신지은, 김기덕, 최지인, 김동찬, 박제현
발주처 경북대학교
'Plans' 카테고리의 다른 글
| 송산문화스포츠센터 건립사업 건축설계 일반설계공모_ 4등작 / 더코너즈 건축사사무소 (0) | 2025.08.20 |
|---|---|
| 송산문화스포츠센터 건립사업 건축설계 일반설계공모_ 3등작 / (주)건축사사무소 스튜디오 뮤트 (0) | 2025.08.14 |
| 송산문화스포츠센터 건립사업 건축설계 일반설계공모_ 당선작 / NIA건축+모노리스건축 (0) | 2025.08.12 |
| (가칭)충남체육문화복합센터 건립사업 일반 설계공모_ 당선작 / (주)에스샵건축사사무소 (0) | 2025.08.12 |
| 송산문화스포츠센터 건립사업 건축설계 일반설계공모_ 2등작 / 주식회사 건축사사무소 적재 (0) | 2025.08.08 |
마실와이드 | 등록번호 : 서울, 아03630 | 등록일자 : 2015년 03월 11일 | 마실와이드 | 발행ㆍ편집인 : 김명규 | 청소년보호책임자 : 최지희 | 발행소 : 서울시 마포구 월드컵로8길 45-8 1층 | 발행일자 : 매일



