
공원 속에 위치한 체육문화복합센터
기존의 학교는 담장으로 인해 지역 사회와 단절되어 있다. 우리는 학교의 경계부를 허물고, 공원을 매개로 마을과 자연스럽게 이어지도록 계획했다. 공원은 단순한 외부공간이 아니라 일상 속에서 학생과 주민이 함께 사용하는 공동의 마당이 되며 학교는 이웃과 교류하고 열린 관계를 형성하는 커뮤니티의 중심으로 재정의되고, 공공성을 회복한 학교는 마을과 일상을 공유하는 플랫폼이 된다.
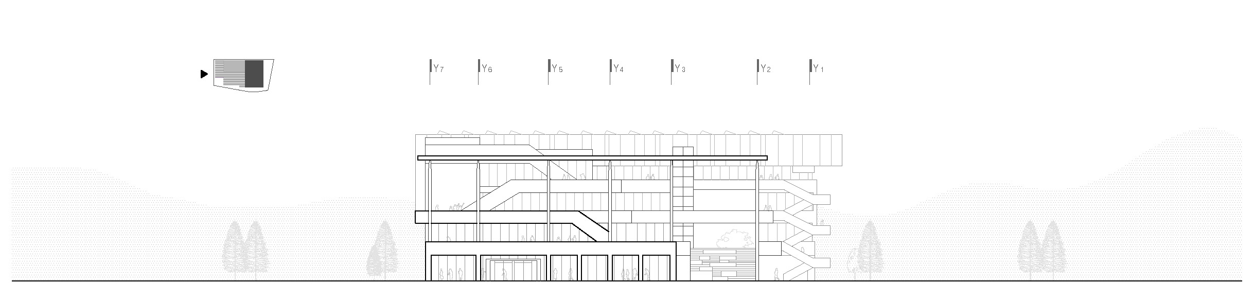
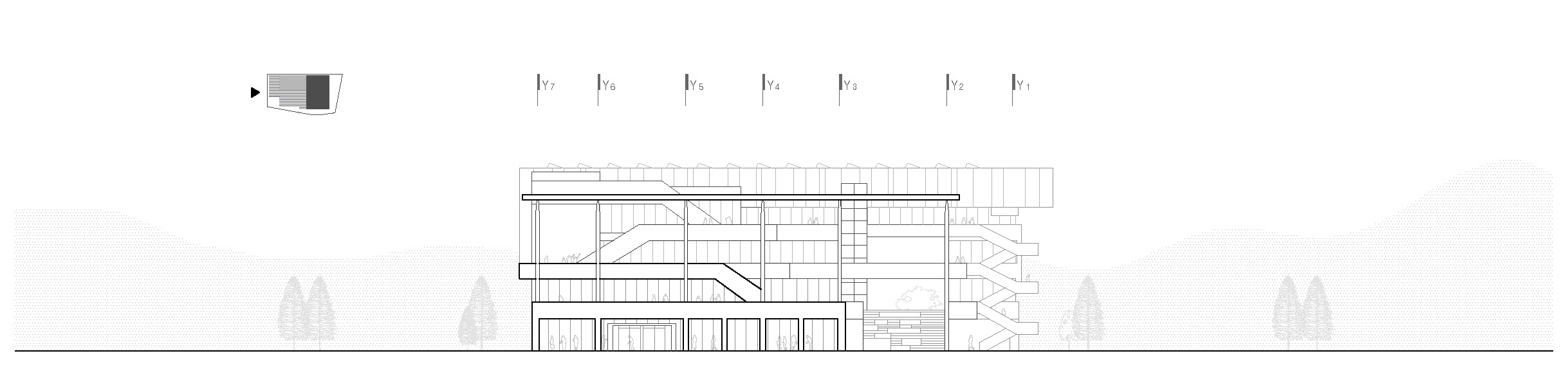
자연의 흐름을 반영한 스텝과 루프
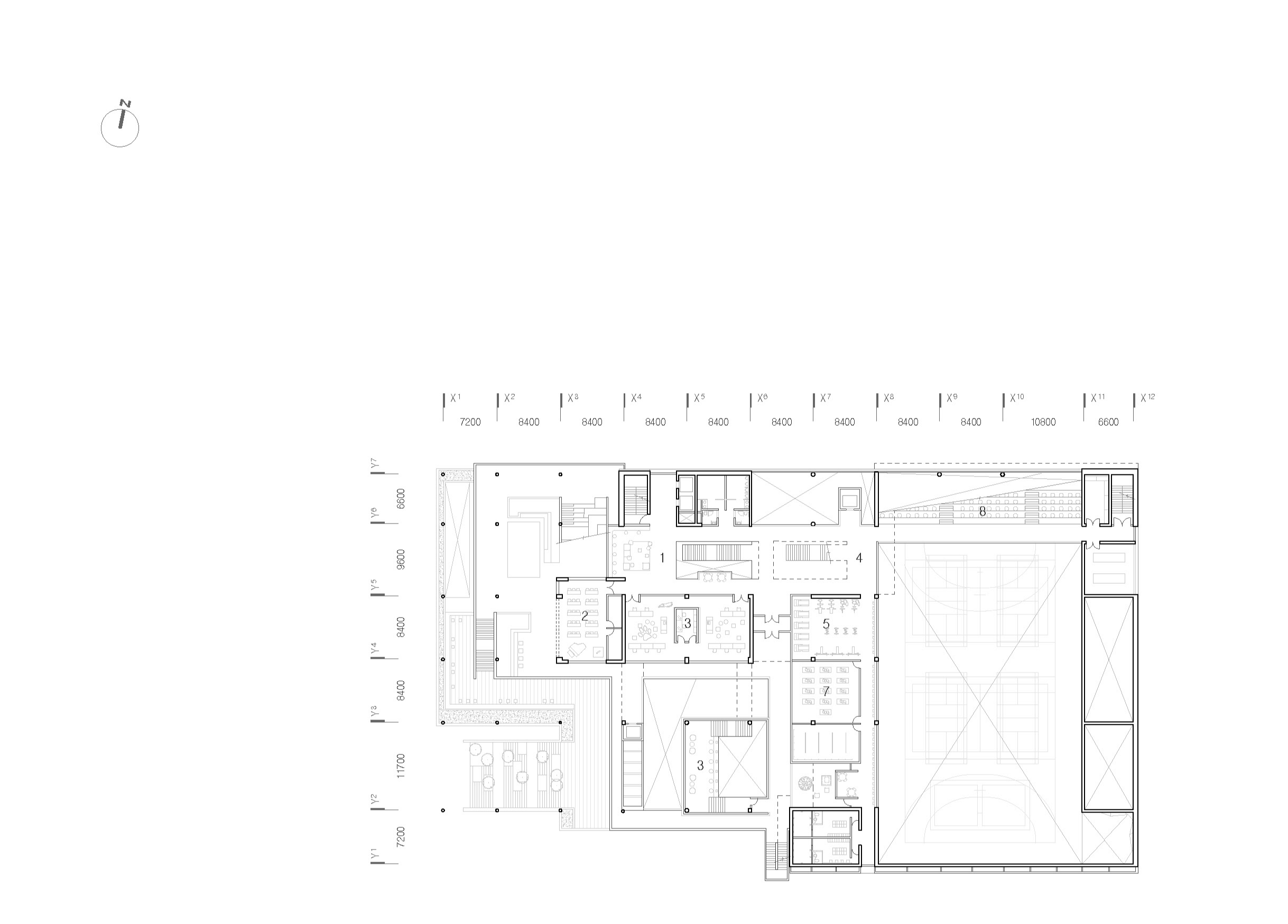
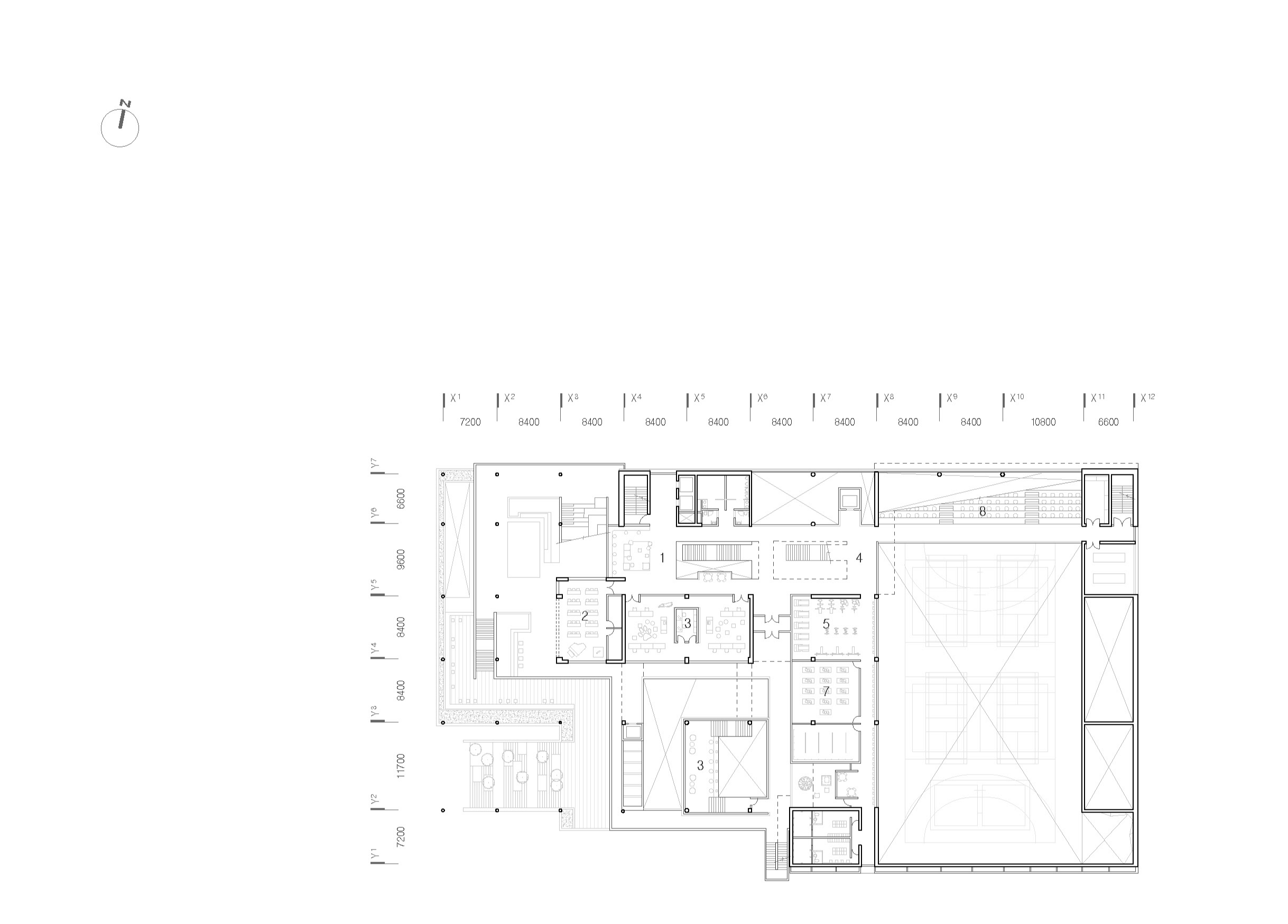
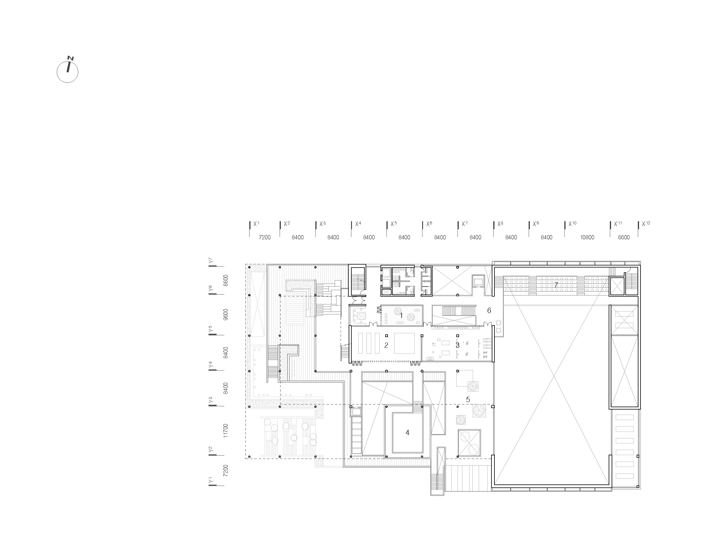
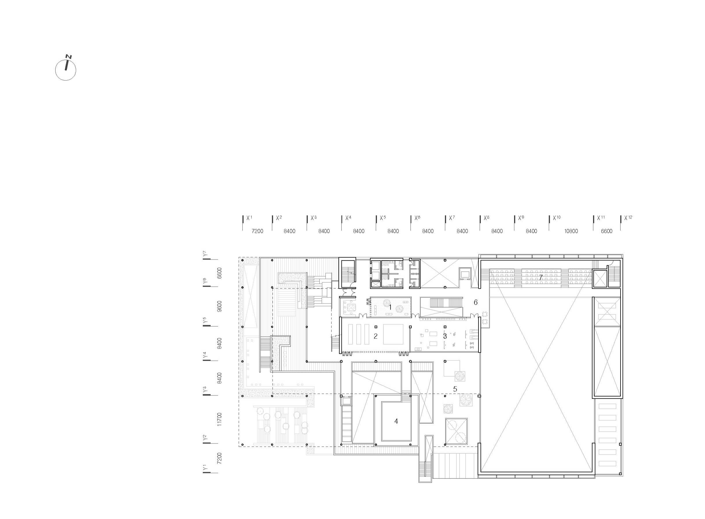
충남 체육문화복합센터는 공원과 함께 계획하는 것을 통해 자연의 흐름을 연결하며 경계를 허물어야 한다. 우리는 시각적·물리적으로도 경계를 허무는 것을 통해 서로를 스며들게 하는 한 흐름 안에 있도록 계획했다. 스텝형 매스와 루프 구조를 활용하여 외부 공간이 실내로 확장되고, 다양한 레벨의 외부 공간은 공원과 건물이 유기적으로 스며드는 공간 흐름을 가지질 수 있도록 구성하였다.
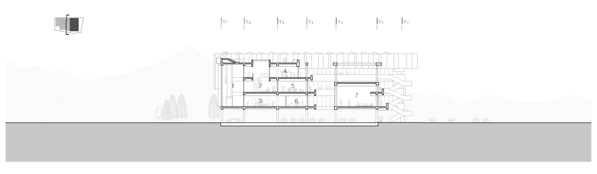
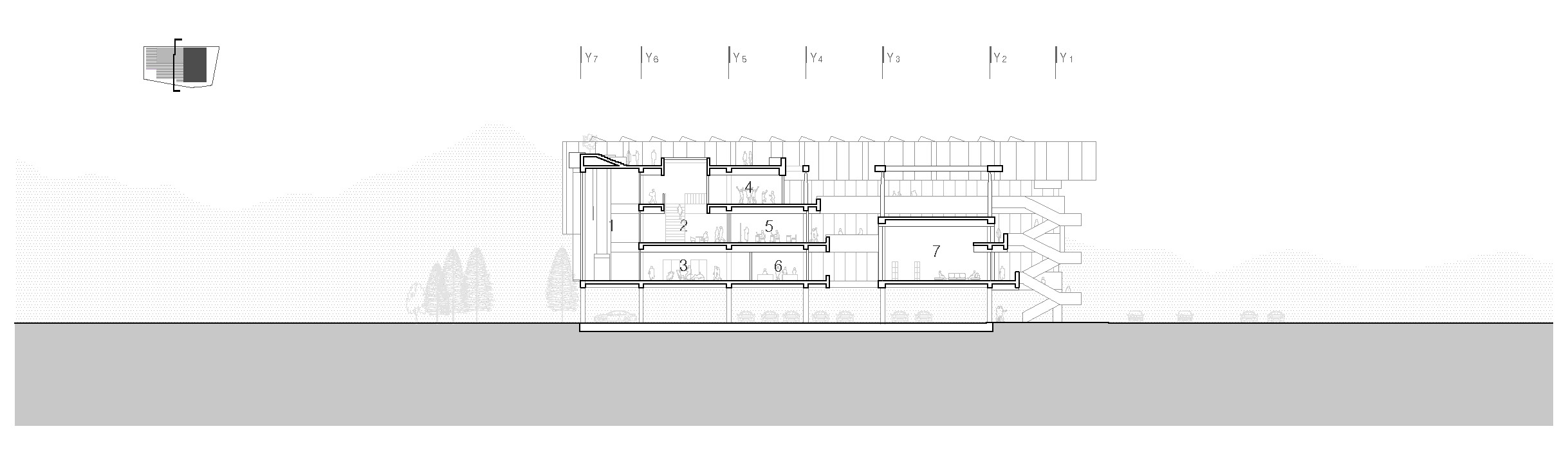
데크를 통한 주민과 학생의 화합
열린 흐름은 사람과 사람 사이의 관계로 확장되고 학생과 주민을 연결하는 다양한 프로그램과 공간으로 구체화된다. 데크, 테라스 등 공유공간을 통해 서로의 일상을 자연스럽게 공유할 수 있는 환경을 조성했으며 교육/여가/쉼이 교차하는 일상의 플랫폼으로써 관계 형성의 기반이 된다. 마을과 자연, 사람 사이의 경계를 허물고, 다양한 계층과 세대가 함께하는 체육문화복합센터를 구현하고자 한다.












(주)에스샵건축사사무소
당선작_ (주)에스샵건축사사무소(https://jucj-architects.com)
대표건축가 정인호, 최은철
대지면적 19,318㎡
연면적 31,293.14㎡
건축면적 17,141.48㎡
층수 지하1층, 지상 4층
구조 철근콘크리트조, 철골조
외부마감 목재루버, 로이복층유리, 세라믹패널, 메탈패브릭, 콘크리트블럭마감
대표건축가 정인호, 최은철
설계팀 강연우, 김성민, 이홍환, 김민우, 정창희, 민건영, 양미진
발주처 충청남도 천안교육지원청
'Plans' 카테고리의 다른 글
| 경북대학교 중앙도서관 리모델링 및 서고확장_ 2등작 / (주)에스샵건축사사무소 (0) | 2025.08.14 |
|---|---|
| 송산문화스포츠센터 건립사업 건축설계 일반설계공모_ 당선작 / NIA건축+모노리스건축 (0) | 2025.08.12 |
| 송산문화스포츠센터 건립사업 건축설계 일반설계공모_ 2등작 / 주식회사 건축사사무소 적재 (0) | 2025.08.08 |
| 천안아산지사 이전 신사옥 건립 설계용역_ 2등작 / (주)다주종합건축사사무소 (0) | 2025.08.08 |
| 충주시 청소년 수련관 건립_ 2등작 / 아이엠에이(IMA)건축사사무소 (0) | 2025.08.05 |
마실와이드 | 등록번호 : 서울, 아03630 | 등록일자 : 2015년 03월 11일 | 마실와이드 | 발행ㆍ편집인 : 김명규 | 청소년보호책임자 : 최지희 | 발행소 : 서울시 마포구 월드컵로8길 45-8 1층 | 발행일자 : 매일



