
새로운 시설이 작은 동네에 잘 맞게 들어가는 것이 중요하다.
마을의 스케일을 고려해야 하고, 마을길, 건물들에 대한 배려가 필요하다. 필요한 것들을 모아 거대한 매스를 만드는 것을 지양한다.
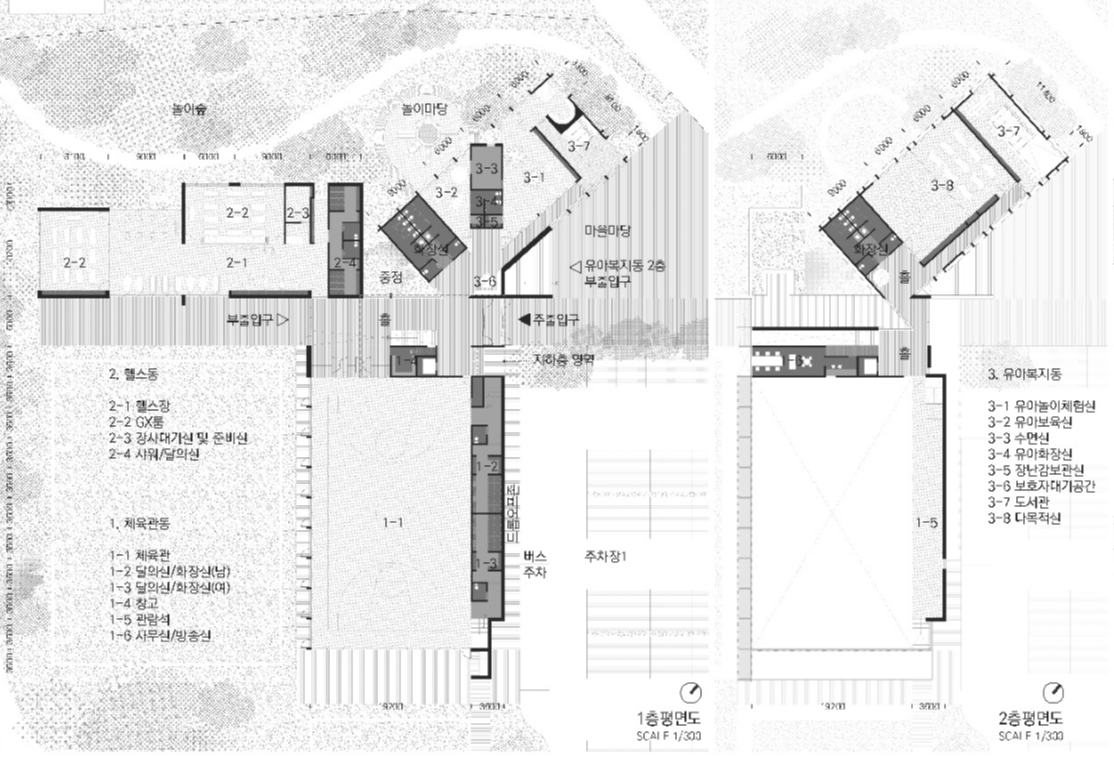
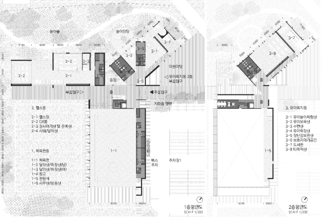
모여 있지만, 독립적인 세 개의 매스로 구성한다. 마을에 면해서는 익숙한 규모의 매스들을 배치하고, 도로에 면해서는 인지되기 쉬운 체육관의 매스를 둔다. 마을길과는 가깝게, 기존 주택들과는 적정한 거리를 이격 한다. 이렇게 마을길, 기존 주택들, 도로 등에 대응하는 각각의 매스들이 모여 또 다른 마을을 이룬다.
세 개의 매스가 만나는 곳의 중정은 엇갈린 시선의 교차를 통해 새로운 공간적 경험을 제공한다. 유아, 청소년, 성인 등 다양한 사용자의 특성에 맞춰 계획한 내부공간들은 야외 놀이터, 마을마당, 외부 활동공간 등과 연계된다.
운영에 따라 다양한 공간으로 분절 될 수 있고 이용자의 선택에 따라 달라질 수 있는 동선을 두었다. 곳곳에 적극적으로 캐노피를 두어, 외부와 내부가 원활히 연계될 수 있도록 고려했다. 거대한 대지의 장점을 살려 땅 전체를 순환하는 산책로를 제안하며, 이 산책로는 외부 활동공간들과 닿아있다. 수목의 밀도를 조절하여 도로와는 적절히 차단되고, 내부를 향해 열려있는 쾌적한 마을 공원을 조성하고자 한다.







주식회사 건축사사무소 적재
2등작_ 주식회사 건축사사무소 적재(https://jucj-architects.com)
대표건축가 정재원, 최진석, 탁충석 (주식회사 건축사사무소 적재)
대지면적 18,037㎡
연면적 2,394.42㎡
건축면적 1,991.40㎡
건폐율 10.88%
용적률 12.27%
최고높이 10.00m
층수 지하 1층, 지상 2층
구조 철근콘크리트 구조, 철골조
대표건축가 정재원, 최진석, 탁충석 (주식회사 건축사사무소 적재)
조경면적 2,750.00㎡
주차대수 103대(장애인6대, 버스주차 2대, 일반주차 97대)
발주처 당진시청
'Plans' 카테고리의 다른 글
| 송산문화스포츠센터 건립사업 건축설계 일반설계공모_ 당선작 / NIA건축+모노리스건축 (0) | 2025.08.12 |
|---|---|
| (가칭)충남체육문화복합센터 건립사업 일반 설계공모_ 당선작 / (주)에스샵건축사사무소 (0) | 2025.08.12 |
| 천안아산지사 이전 신사옥 건립 설계용역_ 2등작 / (주)다주종합건축사사무소 (0) | 2025.08.08 |
| 충주시 청소년 수련관 건립_ 2등작 / 아이엠에이(IMA)건축사사무소 (0) | 2025.08.05 |
| 김해시서부보건소 아이건강드림센터 조성사업 설계공모_입상작 / 건축사사무소 성문 (0) | 2025.08.04 |
마실와이드 | 등록번호 : 서울, 아03630 | 등록일자 : 2015년 03월 11일 | 마실와이드 | 발행ㆍ편집인 : 김명규 | 청소년보호책임자 : 최지희 | 발행소 : 서울시 마포구 월드컵로8길 45-8 1층 | 발행일자 : 매일



