
공원 및 도시(주변)와의 연계와 청소년 활동을 동시에 고려하는 수련관 계획
대지와 경계
본 대지는 택지개발지구와 구시가지의 경계, 도시와 교외지역의 경계에 위치한다.
대지 남측의 금봉대로(38m 도로)는 도시와 교외지역을 구분한다. 대지 북측에서 서남측으로 흐르는 충주천은 호암택지개발지구와 구시가지의 경계이자 두 지역의 완충지대이기도 하다.
연결
청소년수련원으로 진입하는 주 보행동선은 대지북측의 학교와 연결되는 토성공원과 시가지 및 주택단지와 연결되는 충주천변 수변공원을 통한 접근과, 대지 동측의 근린생활시설 단지(학원 등)과 연계하여 접근할 것으로 예상된다.
조망
대지는 사방으로 열린 조망을 확보하고있다. 남쪽으로 대림산, 서측으로 남산, 동측으로 도시, 북측으로 충주천과 수변공원을 조망한다. 특히, 북측의 경우 충주천이 흘러가는 방향을 조망하고 있기 때문에 영구적인 통경축이 확보되어, 도시와 하천 및 공원을 동시에 조망하여 균형 잡힌 풍경을 볼 수 있다.
자연을 품은 공간
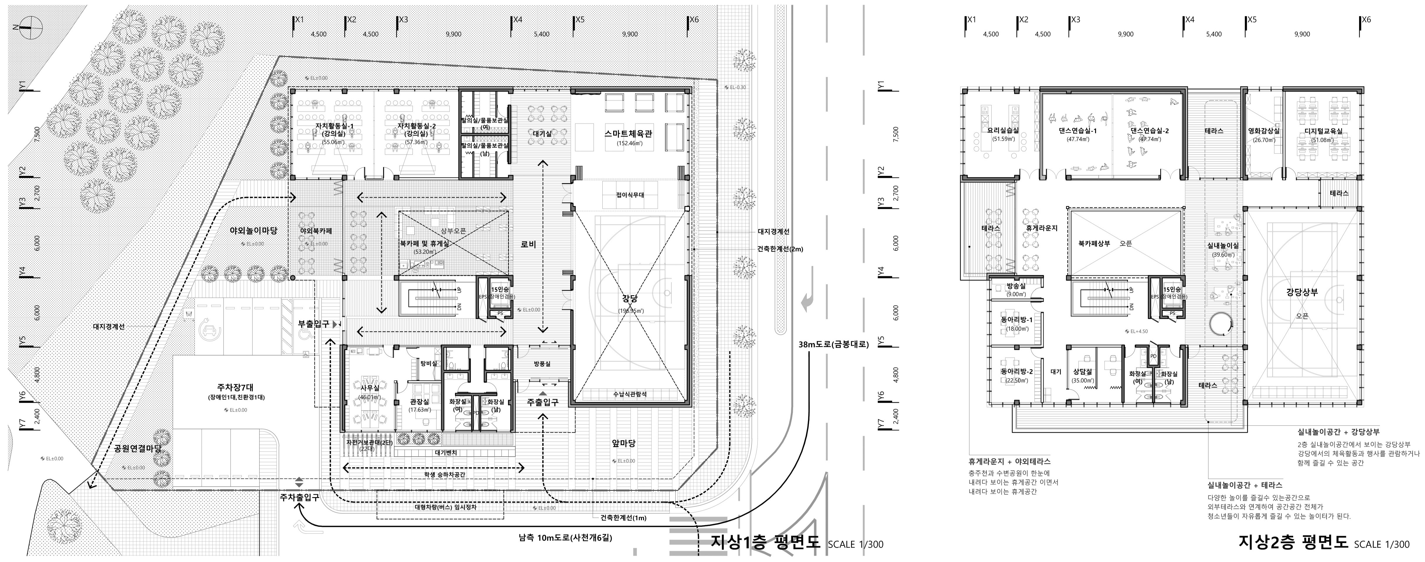
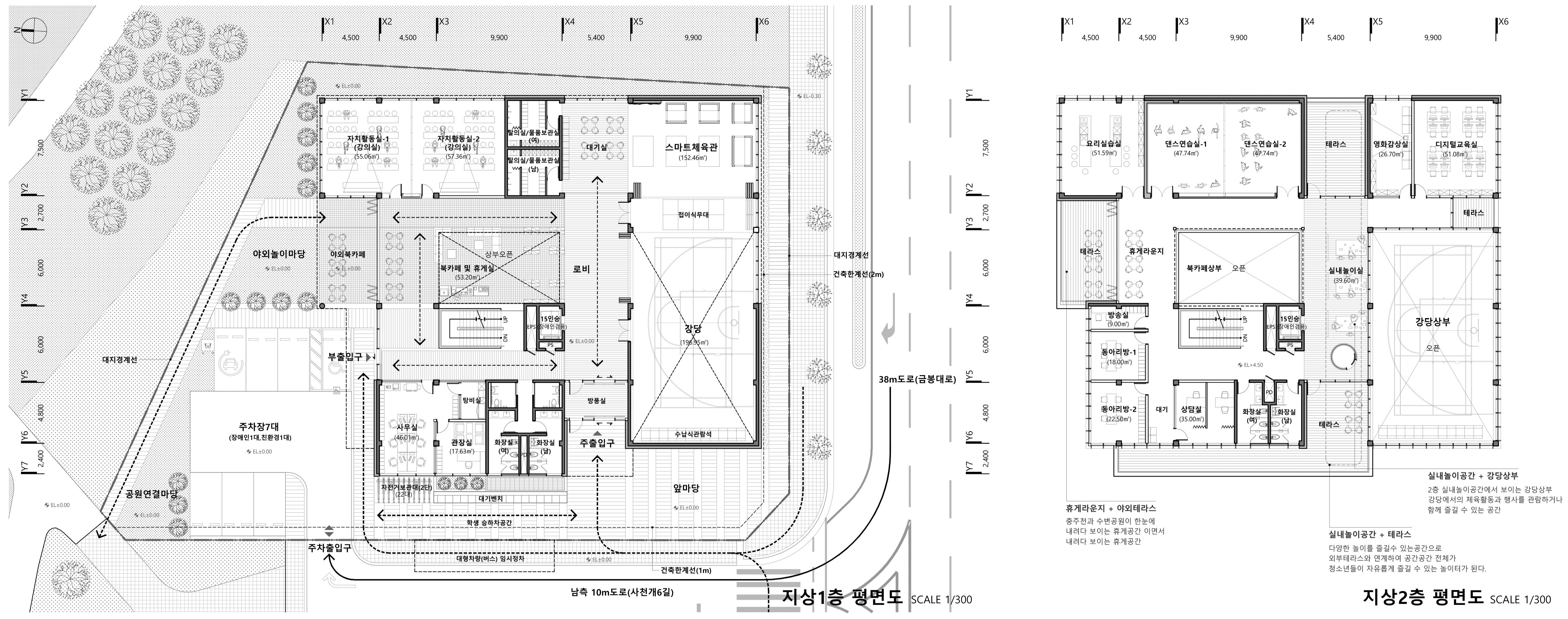
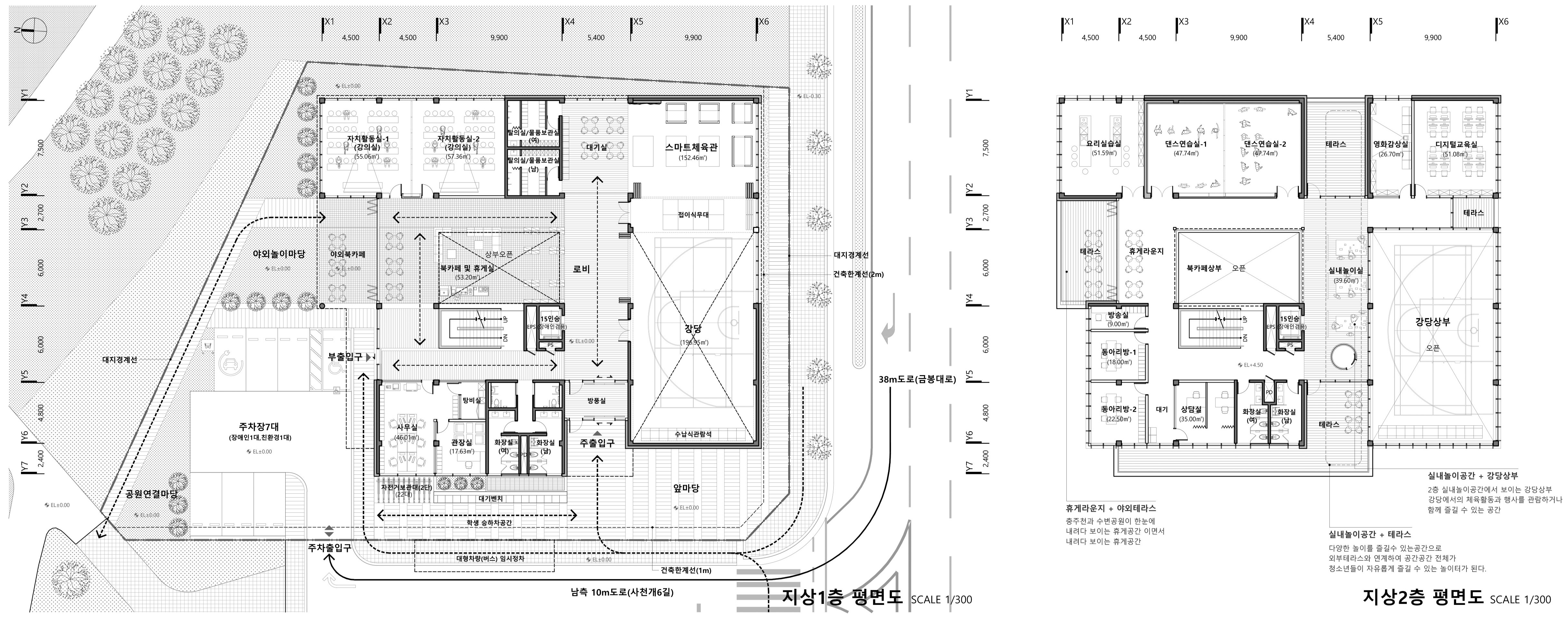
지상 1층은 공원과 자연스럽게 연결된 오픈된 공공공간으로서 공원과 대지와의 연속성을 유지하고 도시와의 연결성을 고려한다.
청소년을 품은 공간
청소년의 안전한 활동과 보호를 위해 2층으로 분리된 프로그램실들은 청소년들의 실질적인 안전과 보호를 제공하고, 청소년만을 위한 환경을 조성한다. 서측과 북측으로 열린 “진입마당”과 “놀이마당”은 남측 대로로부터 청소년의 안전을 실질적으로 담보한다.






아이엠에이(IMA)건축사사무소
2등작_ 아이엠에이(IMA)건축사사무소 (www.imaa.co.kr)
대표건축가 강진구
 대지면적 1,708.00㎡
연면적 1,625.03㎡
건축면적 958.13㎡
건폐율 56.10%
용적률 87.55%
최고높이 11.40m
층수 지하 1층, 지상 2층
구조 철근콘크리트 구조
대표건축가 강진구
조경면적 346.78㎡
주차대수 7대(장애인1대, 친환경 1대 포함)
발주처 충청북도 충주시 
'Plans' 카테고리의 다른 글
| 송산문화스포츠센터 건립사업 건축설계 일반설계공모_ 2등작 / 주식회사 건축사사무소 적재 (0) | 2025.08.08 | 
|---|---|
| 천안아산지사 이전 신사옥 건립 설계용역_ 2등작 / (주)다주종합건축사사무소 (0) | 2025.08.08 | 
| 김해시서부보건소 아이건강드림센터 조성사업 설계공모_입상작 / 건축사사무소 성문 (0) | 2025.08.04 | 
| 보령 충청수영 판옥선 선소공원 조성사업 간이제한공모_ 입상작 / (주) 미래건축사사무소 (0) | 2025.08.01 | 
| 정촌 체육시설(수영장) 건립사업_ 3등작 / (주)노말건축사사무소 (0) | 2025.07.30 | 
마실와이드 | 등록번호 : 서울, 아03630 | 등록일자 : 2015년 03월 11일 | 마실와이드 | 발행ㆍ편집인 : 김명규 | 청소년보호책임자 : 최지희 | 발행소 : 서울시 마포구 월드컵로8길 45-8 1층 | 발행일자 : 매일



