
송산문화스포츠센터_ 경작의 풍경
경작의 풍경: 느티나무의 기억
마을의 초입에 쓸쓸하게 남겨진 한 그루의 느티나무는 이제는 거의 사라져 버린 전형적인 시골 마을의 풍경을 환기시킨다. 마을 어귀 한 그루의 느티나무, 나무 아래 놓인 정자와 평상, 마을 사람들이 모여 더위를 식히고 볕 좋은 날 담소를 나두던 장소를 기억한다. 커다란 느티나무에서 시작된 진입로를 따라 펼쳐진 논과 밭의 풍경을 기억한다.
경작의 풍경: 영역성과 기반 구조들
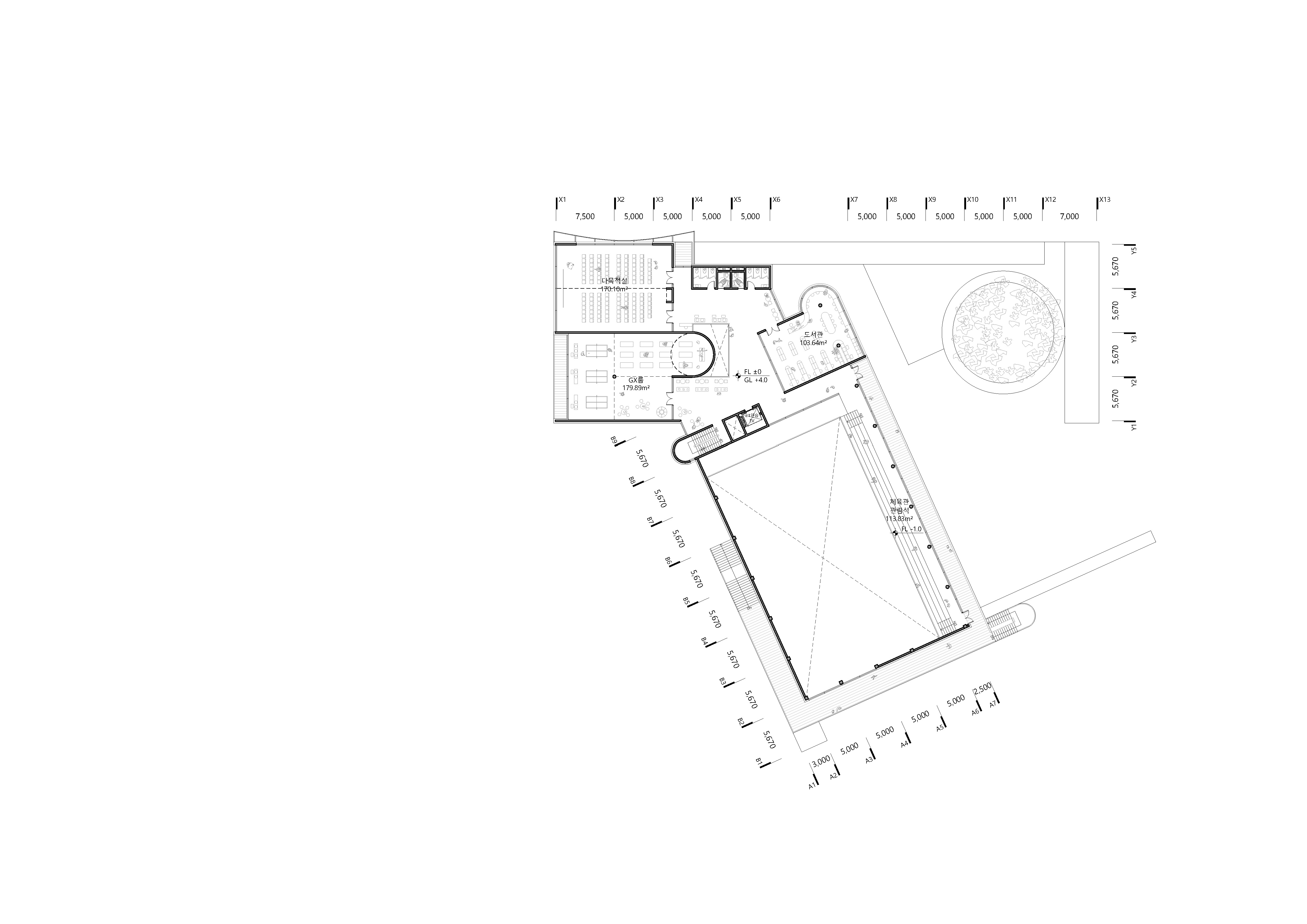
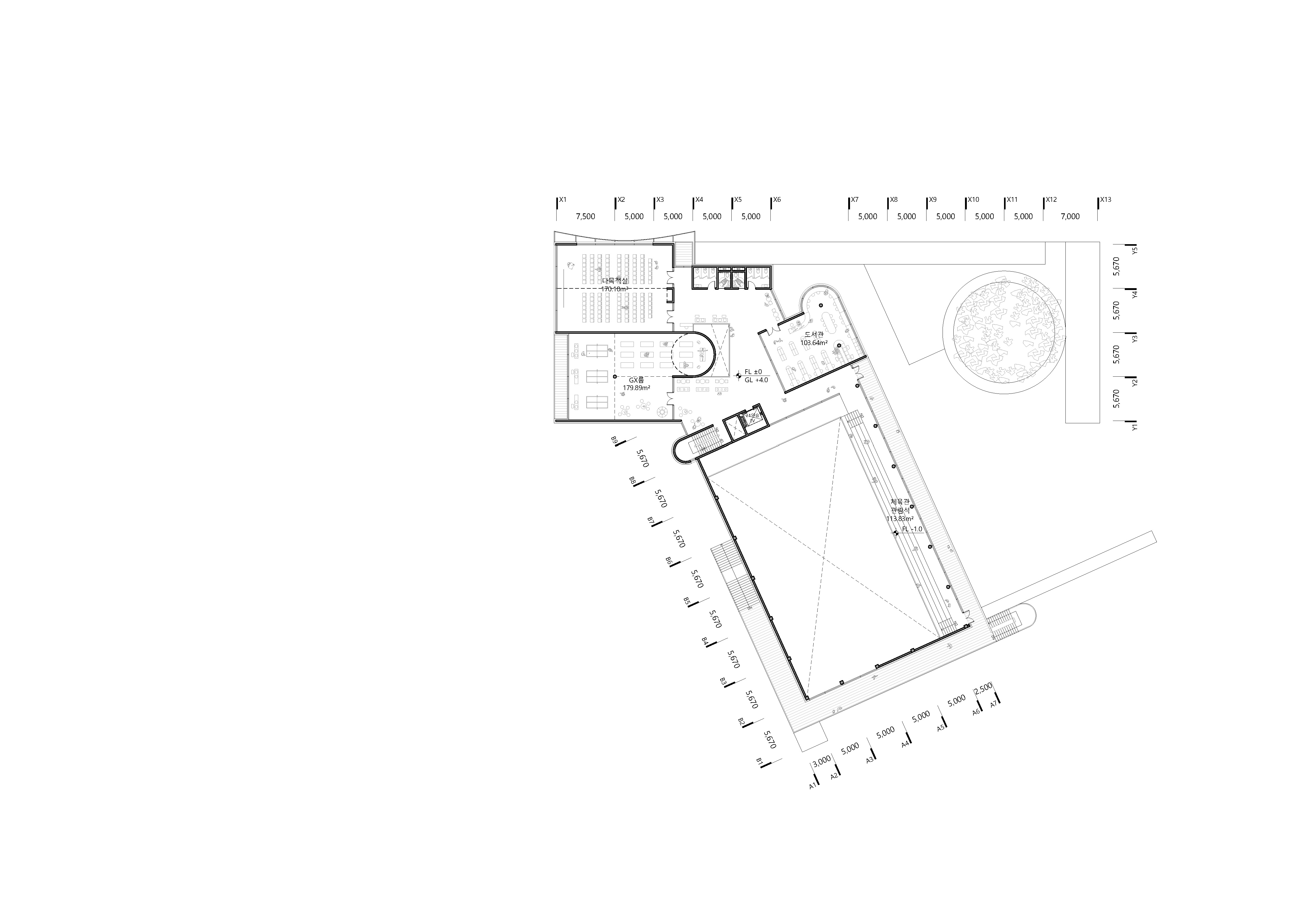
전면이 도로에 노출된 대상지의 산만한 특징에 대응한다. 두개의 엇갈린 “ㄱ자 형태”를 배치한다. “ㄱ자 형태”는 대지 전체로 확장되며 다양한 위계의 둘러싸인 영역을 형성하거나 선적인 요소의 하드스케이프로 대상지에 최소한의 인프라스트럭처로 개입한다. 진입로가 되거나 그늘막이되고 배관과 배선이 놓인다. 경작을 위한 장치가 된다.
경작의 풍경: 병치된 현실
풍경의 아름다움은 바라보고 휴식하는 것에서만 발생하는 것이 아니다. 모내기철의 반짝이는 물빛 논, 한여름의 푸른 벼, 가을의 황금들녁, 한 겨울의 거친 땅 등, 작물의 질감, 성장과 변화, 계절의 흐름에서도 발생된다. 병치된 현실이 만드는 새로운 경작의 풍경은 오래된 느티나무와 함께 대지의 고유한 장소성을 발생 시킨다.











(주)건축사사무소 스튜디오 뮤트
3등작_ (주)건축사사무소 스튜디오 뮤트 (http://www.studiomute.com)
대표건축가 이혜승, 서진석
대지면적 18,037㎡
연면적 2,396.93㎡
건축면적 2,278.98㎡
건폐율 12.64%
용적률 12.63%
최고높이 10.0m
층수 지하1층, 지상2층
구조 철근콘크리트(RC+PC)
대표건축가 이혜승, 서진석
디자인팀 소한서, 김서휘
조경면적 10,266.84㎡
주차대수 103대
발주처 당진시청
'Plans' 카테고리의 다른 글
| 안성시 공공산후조리원 설계공모_ 당선작 / 건축사사무소 해윰 + 디오프레즌트 건축사사무소 (0) | 2025.08.20 |
|---|---|
| 송산문화스포츠센터 건립사업 건축설계 일반설계공모_ 4등작 / 더코너즈 건축사사무소 (0) | 2025.08.20 |
| 경북대학교 중앙도서관 리모델링 및 서고확장_ 2등작 / (주)에스샵건축사사무소 (0) | 2025.08.14 |
| 송산문화스포츠센터 건립사업 건축설계 일반설계공모_ 당선작 / NIA건축+모노리스건축 (0) | 2025.08.12 |
| (가칭)충남체육문화복합센터 건립사업 일반 설계공모_ 당선작 / (주)에스샵건축사사무소 (0) | 2025.08.12 |
마실와이드 | 등록번호 : 서울, 아03630 | 등록일자 : 2015년 03월 11일 | 마실와이드 | 발행ㆍ편집인 : 김명규 | 청소년보호책임자 : 최지희 | 발행소 : 서울시 마포구 월드컵로8길 45-8 1층 | 발행일자 : 매일



