
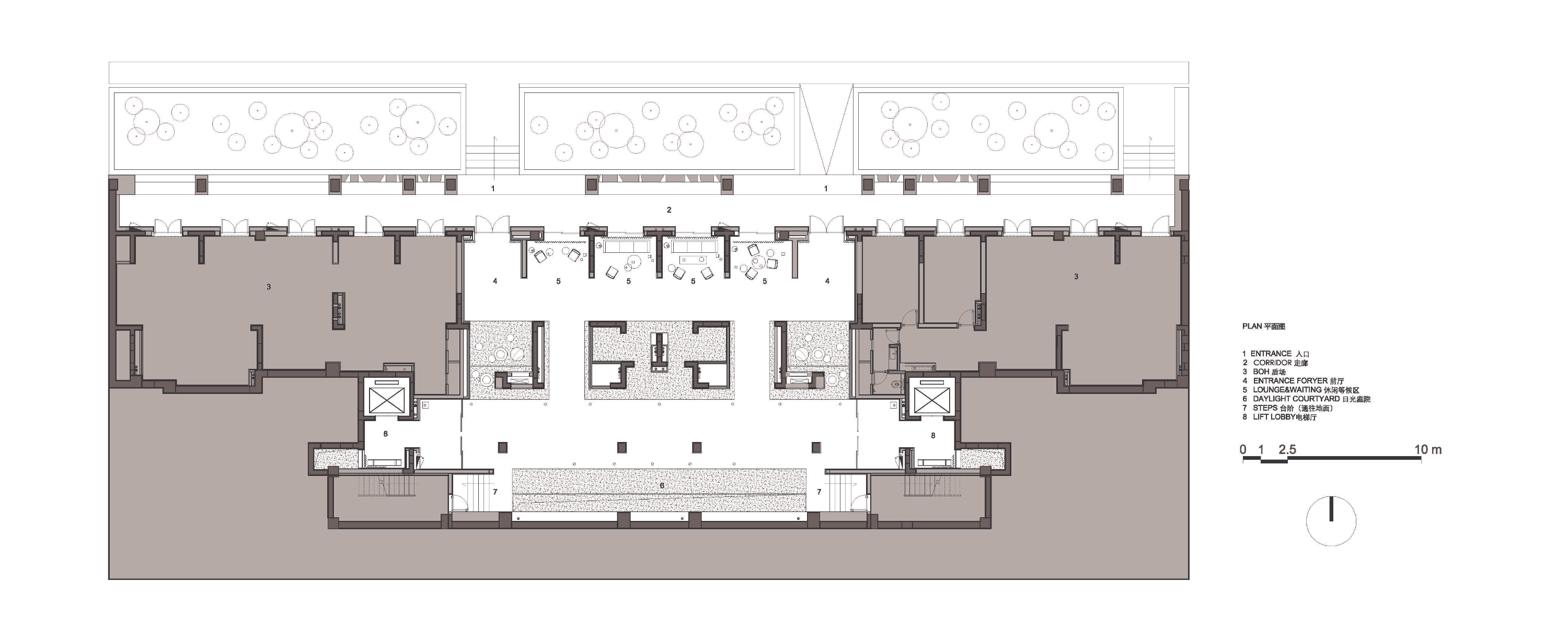
Sunlight Courtyard, Entrance Lobby of Aranya
2024년, SHISUO 디자인 오피스는 아란야(Aranya)의 의뢰를 받아 싼야(Sanya)에 위치한 산 조망 레지던스 두 동의 저층 로비 공간을 재구성하는 프로젝트를 진행하였다. 기존 건축은 대지의 고저차를 적극 활용하고 있으며, 한쪽은 산비탈과 맞닿아 좁은 채광정이 실내를 관통하고, 반대쪽은 계단식 플랫폼과 연결되어 다시 집으로 돌아온 거주자를 맞이하는 진입 공간을 형성하고 있다.

지붕이 덮인 복도는 집으로 향하는 여정의 서곡 역할을 한다. 벽면은 화산암으로 마감되어 창처럼 외부 풍경을 담는 개구부를 만들거나, 다공성 스크린으로 조합되어 빛이 틈새로 스며들도록 구성되었다. 이러한 명암의 대비는 길게 이어지는 공간에 리듬감을 부여하며, 실외와 실내 사이의 완충 지대를 형성한다. 실내에서는 기존의 채광정을 햇빛이 스며드는 중정으로 탈바꿈시켰다. 이 중정은 단순히 공간을 밝히는 것을 넘어, 귀환의 순간에 치유적 평온과 시적 울림을 불어넣는다. 과시적 장식으로 부를 드러내는 전형적인 로비와 달리, 이 공간은 일상에 밀착된 절제된 태도와 깊이 있는 감성을 담아낸다. 이곳에서는 햇빛, 즉 태양이 준 가장 소중한 선물이 신성한 장면 속에 포착된다. 대나무 스크린을 통과해 흩뿌려지는 빛줄기, 화산암 위를 흐르는 그림자, 산바람에 떨리는 리넨 커튼 등이 그 예다. 이 짧고도 찰나적인 상호작용들은 기능적 역할을 넘어, 돌아온 이들에게 위안을 건넨다.

공간을 걸어가다 보면 공조구, 스프링클러, 전선관, 조명 기구 등이 그릴 뒤로 숨겨져 있다. 상층에서 내려오는 전단벽(shear wall)은 평면 계획의 유연성을 제한하며, 수직 설비관과 전기 설비를 은폐해야 하는 조건이 추가되었다. 실내 설계는 이러한 구조적 조건을 수용하면서, 진입 로비를 두 개의 영역으로 나누어 계획하였다. 진입부 현관홀에는 전단벽이 리듬감 있게 배열되어 공간의 중심을 잡고, 아치형 대나무 그릴이 보호막처럼 천장을 덮으며, 일시적으로 머무르거나 대기할 수 있는 작은 공간들을 감싼다. 안쪽 중정은 자연광과 산바람이 흐르는 중심 공간으로, 양쪽 주거동의 엘리베이터 홀을 연결하는 매개체 역할을 한다.

이 두 공간 사이의 복도는 건축과 자연이 교차하는 장면을 양 끝단에 연출하며, 하나의 시각적 다리로 기능한다. 이는 단순한 동선을 명상적인 여정으로 전환시키는 공간 장치이다. 공간의 밀도와 완성도는 디테일을 통해 더욱 뚜렷하게 드러난다.
SHISUO는 기존 조건을 해결하고, 대지의 특성과 더불어 산바람, 햇빛, 음향을 설계에 녹여냄으로써, 사람들의 마음을 어루만지는 집 같은 공간을 만들고자 하였다.


건축가 스슈어 디자인 오피스(SHISUO Design Office)
위치 중국, 싼야
용도 공동주거(로비)
연면적 1,200㎡
프로젝트기간 2024. 6. - 11.
준공 2024
대표건축가 Sanif and Changshan
프로젝트건축가 Sanif, Changshan
디자인팀 Lin Zihan, Zhang Hn
조경 WTD GROUP
시공 Chongqing Hechuang Co., Ltd., Yuan Guibin, Zhang Chun, Wang Zhenkun, Lin Shu, Zhou Huaqaing, Hua Chuan, Wang Deshen, Zhao Mingjun, Ren Yunzhi, Ren Yunfu, Li Wanbin, Liu Chunhua, Xiong Delong, Zou Tao, Ming Jian, Zhao Guanyu, Liu Xueyan, Fu Shaorong, Xie Xinjian
발주자 Aranya
사진작가 Sanif
'Interior Project > Hospitality' 카테고리의 다른 글
| 자유와 휴식 그리고 존재의 본질을 묻는, 저어_그, 와타 / 100에이 어소시에이츠 (0) | 2025.11.10 |
|---|---|
| 힐튼 상하이 시티 센터 / 씨씨디 (0) | 2025.07.09 |
| 두 개의 별동을 지붕으로 연결한 일본식 전통가옥 리모델링 / 스튜디오 알루크 (0) | 2025.05.26 |
| 리젠트 상하이 온 더 번드 / 이씨에이디아이 + 씨씨디 (0) | 2025.04.08 |
| 휴가의 막이 오르는 호텔 / 펀 크리에이티브 디자인 컨설턴트 (0) | 2025.03.27 |
마실와이드 | 등록번호 : 서울, 아03630 | 등록일자 : 2015년 03월 11일 | 마실와이드 | 발행ㆍ편집인 : 김명규 | 청소년보호책임자 : 최지희 | 발행소 : 서울시 마포구 월드컵로8길 45-8 1층 | 발행일자 : 매일



