
Nazuna Kyoto Higashihonganji
이 프로젝트는 는 교토 히가시혼간지 고에이도 정문 앞 메인 거리변에 위치한 100년 이상 된 전통 가옥 마치야를 리모델링한 숙박 시설이다.


원래 동·서측으로 분리된 두 동의 건물은 지붕으로 연결되었으며, 다양한 시대의 개보수 흔적이 혼합되어 있는 구조였다 해체 과정에서 구조적 취약 요소가 발견되어 보강되었으며, 가능한 한 기존 목재 구조와 마감은 보존되었다.




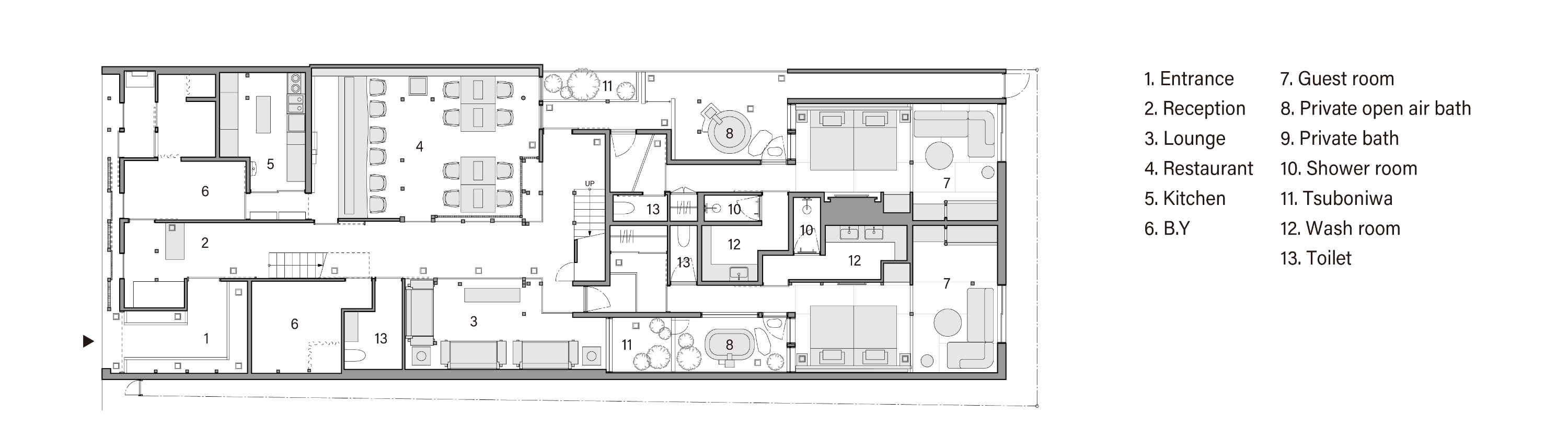
서측 건물 1층에는 흙바닥(도마)이 유지되어 있으며, 이 공간은 동측 건물의 남북 정원(쓰보니와)과 연결된다. 다이닝 공간과 라운지는 정원과 인접하여 채광이 부족한 마치야 구조 속에서도 자연광을 확보할 수 있도록 설계되었다. 가파른 계단을 올라가면 높은 경사지붕의 복도가 이어지고, 끝에는 성인이 허리를 숙여야 지나갈 수 있는 낮은 보가 드러나 과거의 목조건축 기술을 보여준다.


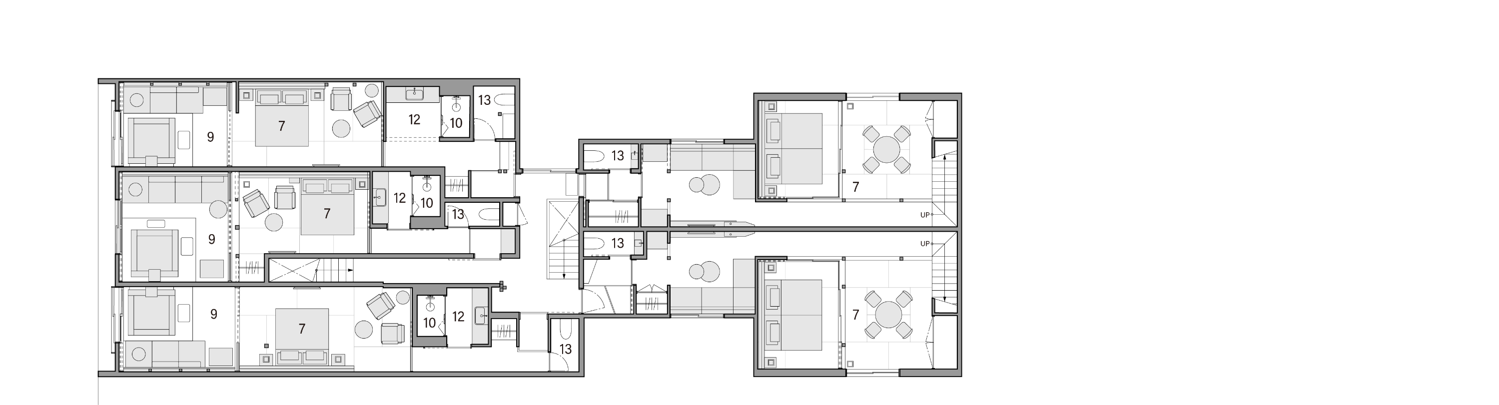
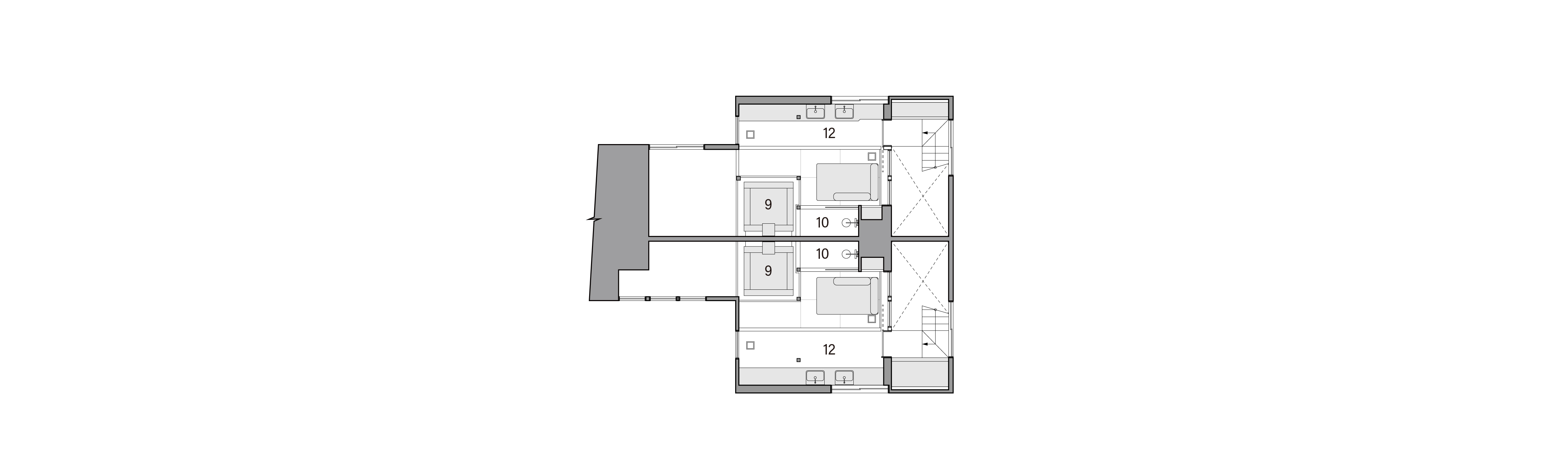
서측 2층의 세 객실에서는 벚꽃 너머로 히가시혼간지 사찰이 조망되며, 히노키 욕조를 갖춘 욕실이 마련되어 있다. 욕실 천장에는 원형 그대로의 지붕 판재와 흙벽이 노출되어 있다. 동측 건물 1층의 두 객실에는 재사용 목재로 제작한 도코노마(장식 공간)가 있고, 침대 옆 노천탕은 정원과 자연스럽게 이어진다. 2~3층에 걸쳐 구성된 복층 객실은 전통 마치야의 흙바닥과 생활 공간을 재현하였으며, 서랍 계단을 통해 접근하는 3층에는 개방형 히노키 욕실이 설치되었다. 기존 건축의 역사성과 수공예 흔적을 살리면서도, 숙박 기능에 맞게 조정된 공간으로 리모델링되었다.



디자이너 스튜디오 알루크 (STUDIO ALUC)
위치 일본, 교토, 시모교, 가미주몬도리, 가미시즈야마치, 가메마치 2
연면적 596.05㎡
규모 지상 3층
준공 2024. 10.
조명 ModuleX Inc.
시공 Kawana Industries Co., Ltd.
발주자 Nazuna Co.,Ltd.
사진작가 Kenta Hasegawa
'Interior Project > Hospitality' 카테고리의 다른 글
| 집으로 돌아가는 안내서, 레지던스 로비 리모델링 / 스슈어 디자인 오피스 (0) | 2025.07.16 |
|---|---|
| 힐튼 상하이 시티 센터 / 씨씨디 (0) | 2025.07.09 |
| 리젠트 상하이 온 더 번드 / 이씨에이디아이 + 씨씨디 (0) | 2025.04.08 |
| 휴가의 막이 오르는 호텔 / 펀 크리에이티브 디자인 컨설턴트 (0) | 2025.03.27 |
| 지역의 색을 담아 도시와 이어지는 호텔 / 더블유제이 스튜디오 (0) | 2025.03.14 |
마실와이드 | 등록번호 : 서울, 아03630 | 등록일자 : 2015년 03월 11일 | 마실와이드 | 발행ㆍ편집인 : 김명규 | 청소년보호책임자 : 최지희 | 발행소 : 서울시 마포구 월드컵로8길 45-8 1층 | 발행일자 : 매일



