
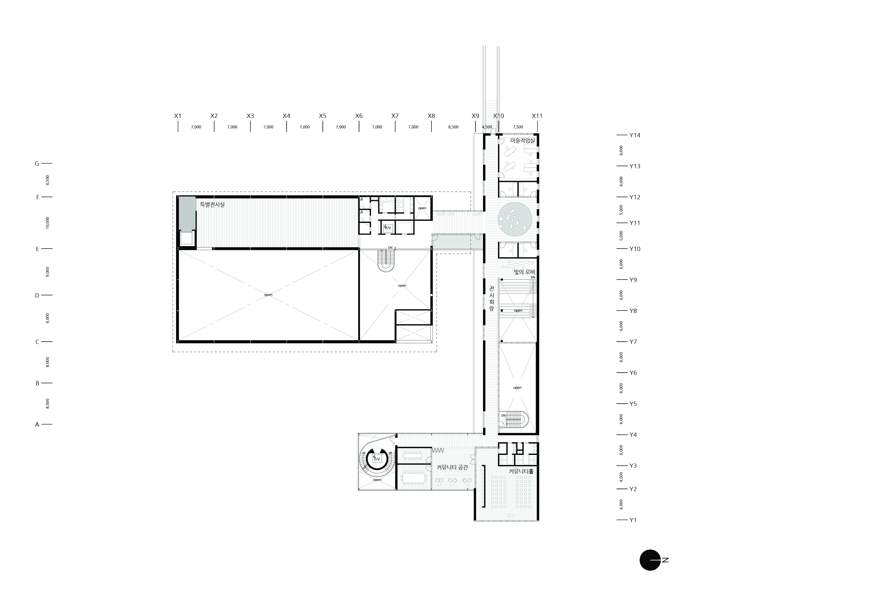
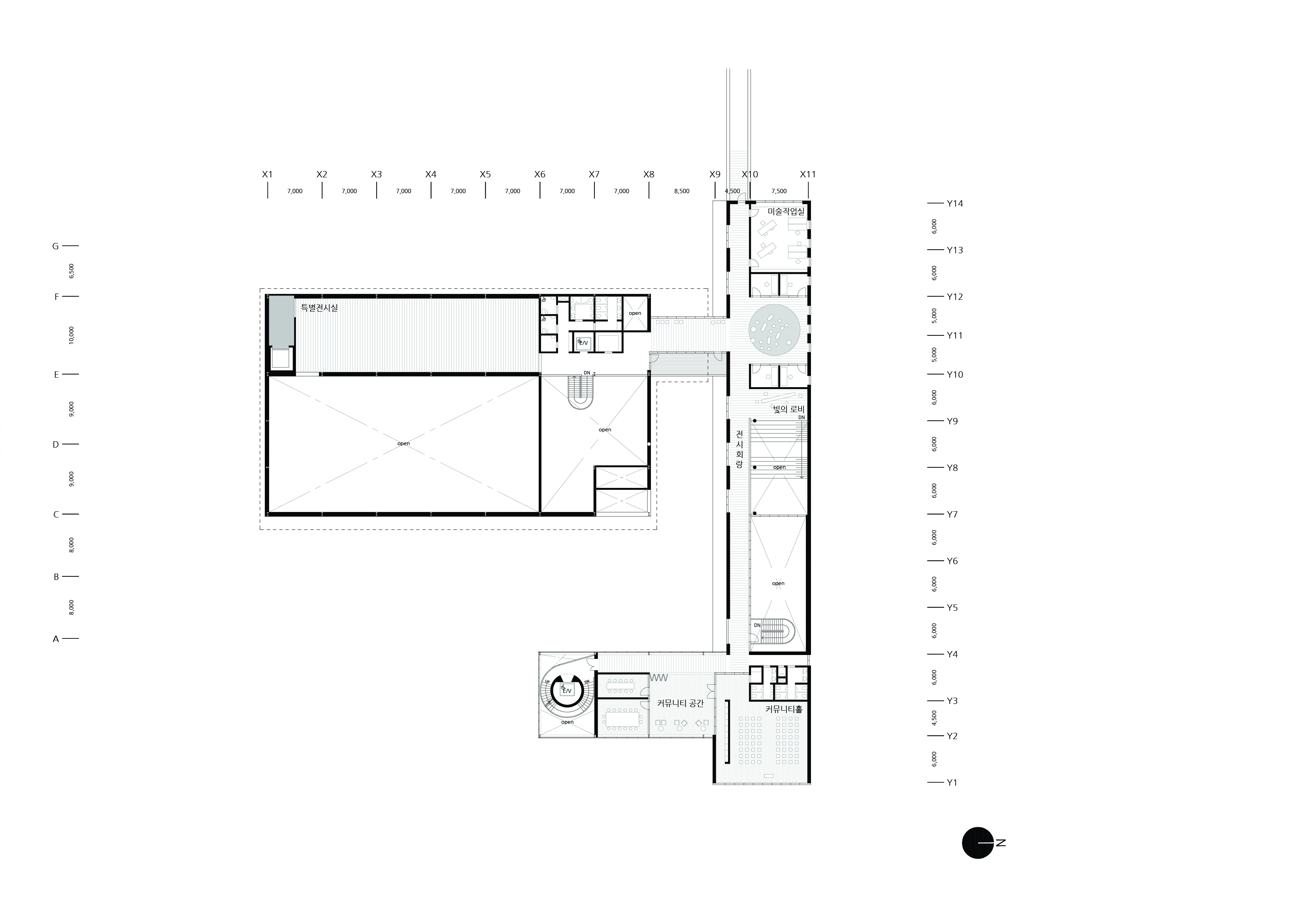
환대의 풍경, 느슨한 연계
보령 문화테마파크 리모델링 제안은 기존 질서를 존중하는 태도에서 시작한다.
기존의 지형을 따라 옥마산-박숙들-만수산으로 이어지며 대지를 관통하는 자연의 축은 통경축이 되어 내외부 프로그램을 연결하고, 자연을 확장, 연속시켜 대지를 아우르는 느슨한 산책로가 된다.
진입로를 따라 걷다보면 물과 숲이 어우러지는 고즈넉한 외부정원을 조우한다.
문화 테마파크의 모든 공간이 나뉘고 엮이는 구심점이 되는 외부정원은 대지의 중심에서 유연하게 확장하며 외부 전시공간, 휴식공간, 공공커뮤니티 공간 등 다양하게 기획되고, 필로티, 연결브릿지, 캐노피 등으로 형성되는 반외부 공간이 동선을 따라 내외부로 이어지며 내부의 프로그램이 보다 효과적으로 연계된다.
기존의 폐산업시설은 풍성한 자연환경을 사유하고 여유롭게 거닐며 문화와 예술을 매개로 지역 주민들과 서로 교류하고 소통하며 호젓하고 즐거운 경험을 조우하는 예술문화 플랫폼으로 재탄생할 것이다.












건축사사무소 오드투에이
당선작_ 건축사사무소 오드투에이 (http://www.odeto-a.com/)
대표건축가 정은주, 이희원
대지면적 13,218㎡
연면적 3,719.0㎡
건축면적 2,415.46㎡
건폐율 18.27%
용적률 28.14%
최고높이 12.6m
층수 지상3층
구조 철골조 / 철근콘크리트구조
대표건축가 정은주, 이희원
디자인팀 임주영, 이미래
조경면적 8,174.42㎡
주차대수 60대
발주처 보령시
'Plans' 카테고리의 다른 글
| 고창 터미널 도시재생 혁신지구사업 설계공모_ 5등작 / 가까운 건축사사무소 (0) | 2025.07.02 |
|---|---|
| 백세건강스포츠센터 건립사업 건축 설계공모_ 2등작 / (주)삼풍이엔지종합건축사사무소 (0) | 2025.07.02 |
| 화랑대철도공원 커뮤니티센터 신축공사 설계용역 설계공모_ 4등작(가작 2) / 소나건축사사무소 (0) | 2025.06.30 |
| 화랑대철도공원 커뮤니티센터 신축공사 설계용역 설계공모_ 5등작(가작 3) / 건축사사무소 오삼일비 (0) | 2025.06.30 |
| 갯벌치유 관광플랫폼 조성 설계공모_ 당선작 / 와이즈건축사사무소 (0) | 2025.06.30 |
마실와이드 | 등록번호 : 서울, 아03630 | 등록일자 : 2015년 03월 11일 | 마실와이드 | 발행ㆍ편집인 : 김명규 | 청소년보호책임자 : 최지희 | 발행소 : 서울시 마포구 월드컵로8길 45-8 1층 | 발행일자 : 매일


