
사업대지는 부산시 기장읍 대라리 중에서도 주거지역과 자연녹지지역이 만나는 경계 부근에 위치해 있다. 부산 중심지에서는 꽤 떨어진 곳이지만, 반대로 기장군 전역으로 보면 부산 도심으로 나가기 용이한 위치적 장점 때문에 많은 공장과 창고들이 주거지역과 한데 어우러져 형성되었다. 하지만 동해남부선 기장역이 개통되어 이 일대의 대중교통 환경이 개선되며 거주성이 높아진 데다, 토지가격 상승 등의 이유로 최근 많은 공장과 창고들이 철거되고 다가구, 다세대 주택과 이에 따른 근린생활시설 등이 속속 생겨나고 있다. 이러한 도시 맥락을 충분히 감안하여 작은 규모의 건물이지만 공장과 창고를 대체하는 주거 친화적 분위기의 건축물을 계획하고자 하였다.

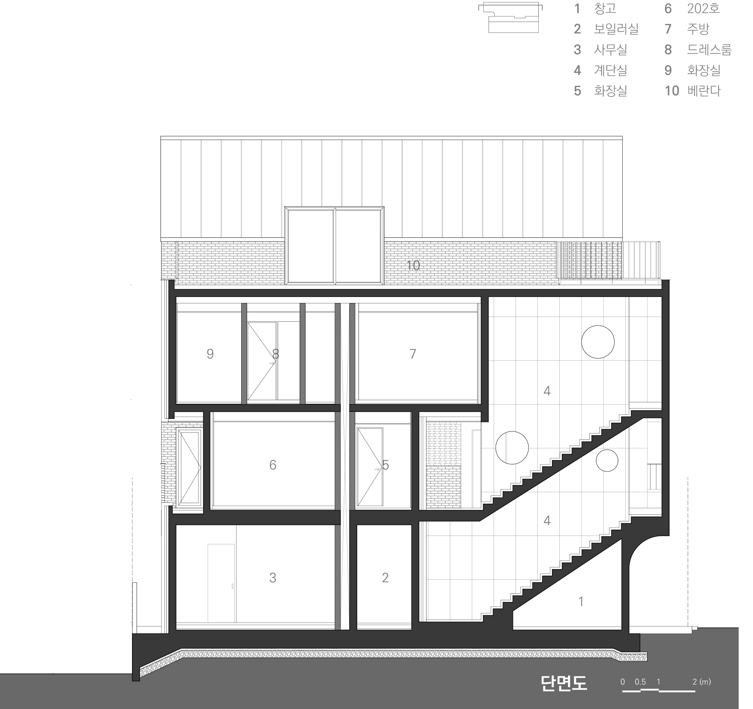
1층은 건물에 입주할 거주자뿐 아니라 도로를 지나는 보행자가 건물과 관계 맺게 되는 시각적 스킨십이 일어나는 공간이다. 뿐만 아니라 건물이 이곳에 단단히 뿌리내려지게 함으로써 시간을 초월하는 장소성을 가질 수 있게 만드는 시작점이다. 필로티 주차장을 취할 수밖에 없는 상황이지만, 기둥 수를 최소화하고 상부 매스와 이격 및 이질 재료를 사용하여 상부를 가볍게 받치도록 처리하였다. 또한 기하학적 형태를 살려 한 그루의 나무가 땅으로부터 솟아난 듯 견고히 이곳을 움켜쥐도록 계획하였다.


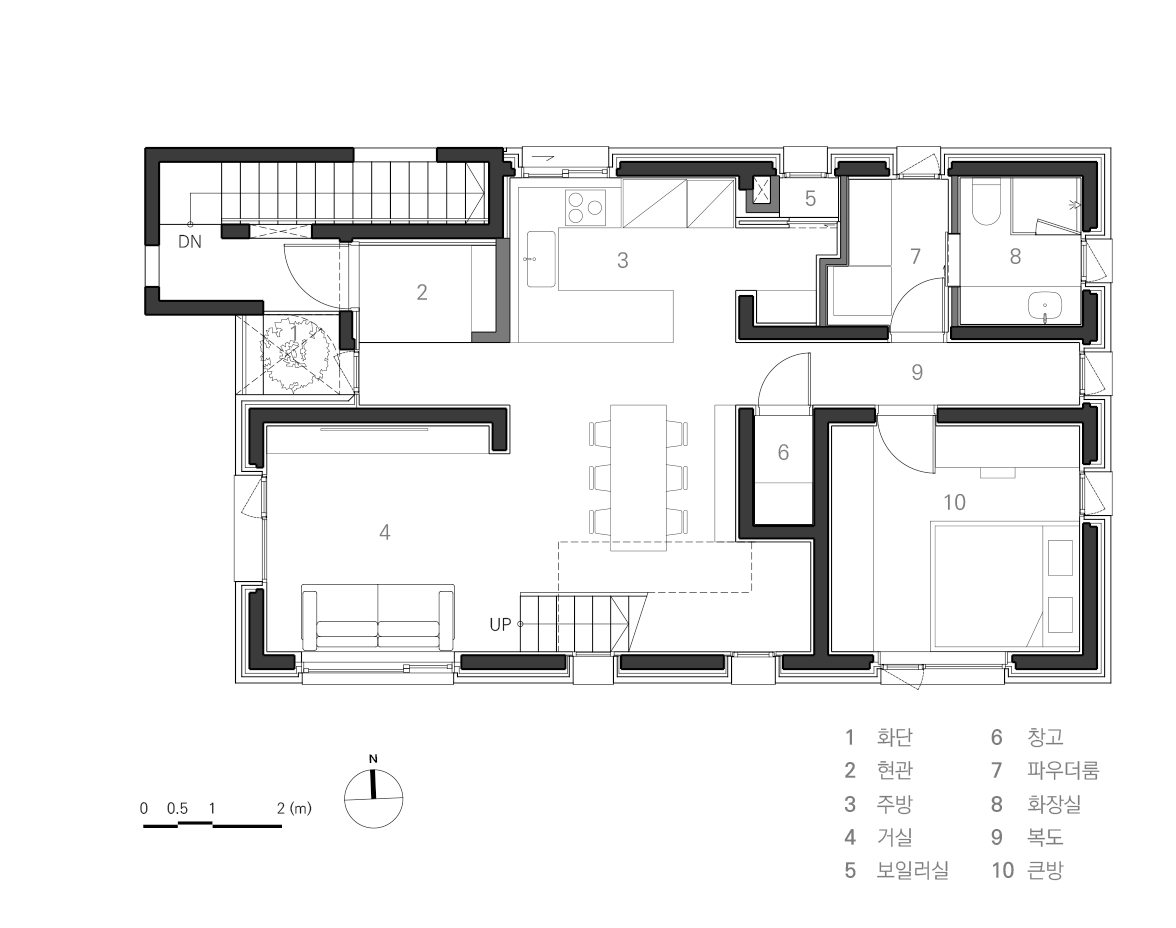
협소한 대지 내에서의 계단실은 최대한 북측으로 배치되어야 했다. 전용면적을 최대한 많이 확보하기 위해 공용부의 내·외부 마감을 유로폼 노출 콘크리트로 처리하여 조금이라도 거주자를 위해 쓰이도록 하였다. 북측의 계단실이 어두컴컴하고 단순히 수직 이동의 목적만으로 사용되지 않도록 적절한 위치에 자유로운 형태의 개구부를 뚫어 채광을 확보하고, 외부와의 시선 주고받음이 가능하도록 하였다. 내력벽 사이의 개구부(Cheese Eyes)는 빛의 관통뿐 아니라 오가는 거주자들이 갑자기 마주쳐 놀라게 되는 상황을 사전에 방지하는 “눈”으로서의 장치이다.

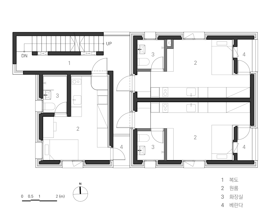
넓지 않은 주택 내에서 공간을 풍성하게 느끼기 위해 시선이 멀리 뻗어나갈 수 있는 동-서 축을 형성하였다. 집 내부로 들어오면 복도를 통한 깊이 있는 공간을 볼 수 있고, 반대로 집을 나갈 때도 현관에 위치한 창을 통해 서측의 먼 곳을 바라볼 수 있다. 이 축을 기준으로 남측에는 밝은 공간이 필요한 안방과 거실, 식탁 등을 배치하였고, 북측에는 기능적인 드레스룸, 화장실, 주방 등을 배치하여 빛에 의해 공간이 좀 더 명확히 규정될 수 있도록 하였다.


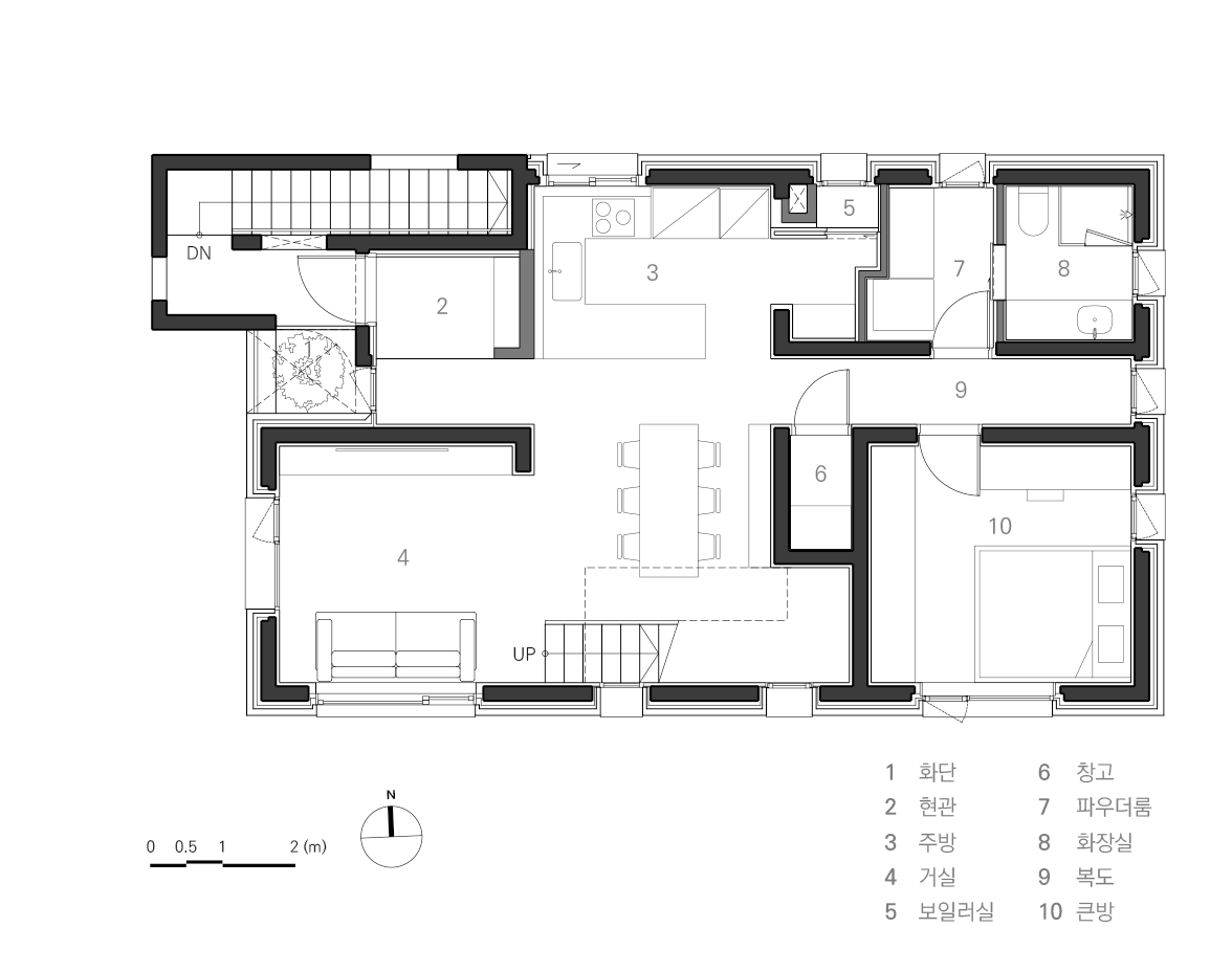
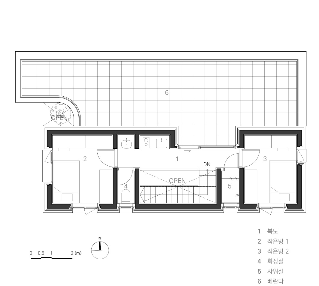
북측 일조권 사선 제한을 최대한 활용하고자 사선 하부의 자투리 공간을 세면대와 작은 싱크 공간으로 계획하여 공간 활용성을 극대화하였다. 그리고 북측의 1:2 각도의 사선에 대응하는 남측 사선을 맞대어 어긋난 각도의 박공을 만들면서 동시에 내부의 용마루는 완만하게 휘어잡았다. 이는 외부 디자인 어휘를 최대한 내부까지 유지해 “온휴”라는 이름에 맞는 따스한 휴식이 가능한 곡면, 즉 온곡(溫曲)의 공간이 될 것이다.

기능적인 구성은 갖춘 채 그 틀 안에서 자유 곡선과 자유로운 개구부를 내어 유쾌하면서도 동시에 생경한 얼굴을 만들었다. 시간이 지날수록 다양한 표정의 생경함은 주변과 관계맺음으로 하여 점차 녹아들며 익숙해질 것이다. 이 건물이 이 일대의 따뜻한 공간을 선도하는 마중물이 되기를 바란다.





건축가 리얼스페이스건축사사무소(Realspace Architects)
위치 부산, 기장, 대청로, 36번길31
용도 단독주택, 제2종근린생활시설
대지면적 148.8㎡
건축면적 89.2㎡
연면적 257.95㎡
규모 지상 4층
건폐율 59.95%
용적률 173.35%
설계기간 2019. 11. - 2021. 03.
시공기간 2021. 04. - 2023. 03.
준공 2023.03.
대표건축가 이현승
프로젝트건축가 이현승
구조엔지니어 ㈜세움구조엔지니어링
기계엔지니어 ㈜민성엔지니어링
전기엔지니어 ㈜전기설계 협인
시공 ㈜채헌종합건설
발주자 이성수, 김종숙
사진작가 박영채
'Architecture Project > Single Family' 카테고리의 다른 글
| 온전한 휴식을 위한 포르투갈 단독주택 / 인셉션 아키텍츠 스튜디오 (0) | 2025.06.02 |
|---|---|
| 여러 층이 쌓인 단독주택 / 파비안 탄 아키텍트 (0) | 2025.05.30 |
| 지붕에서 빛이 내리는 단독주택 / 파비안 탄 아키텍츠 (0) | 2025.05.23 |
| 목재 루버를 걸친 세뇨스의 단독주택 리모델링 / 자바 아키텍처 (0) | 2025.05.22 |
| 유리 큐브로 빛을 들이는 주택 / 후지와라무로 건축사사무소 (0) | 2025.05.20 |
마실와이드 | 등록번호 : 서울, 아03630 | 등록일자 : 2015년 03월 11일 | 마실와이드 | 발행ㆍ편집인 : 김명규 | 청소년보호책임자 : 최지희 | 발행소 : 서울시 마포구 월드컵로8길 45-8 1층 | 발행일자 : 매일



