
Sunroom house in Tsukaguchi
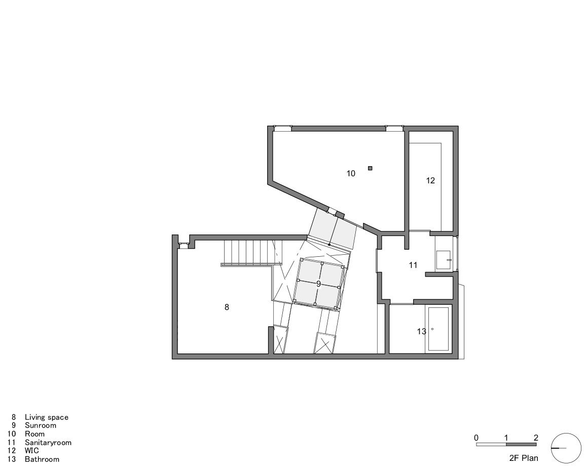
츠카구치의 선룸 하우스는 기존 가족 주택이 있던 조용한 주거지에 지어진 신축 주택이다. 건물은 두 개의 매스로 나뉘며, 공용 공간인 거실·식당·주방과 사적 공간이 구분되어 배치되었다.

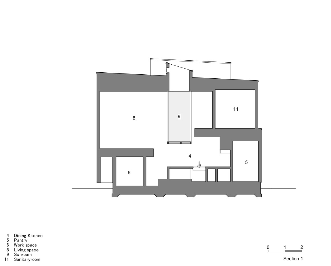
주요 공용 공간은 단차를 활용해 시각적 개방감을 확보했으며, 수평뿐만 아니라 수직 방향에서도 시선과 소통이 가능하도록 설계되었다. 건축가는 선룸을 중심으로 공간을 계획했으며, 비용 절감과 형태적 간결성, 체류 경험을 고려해 이를 공중에 띄운 형태로 구현했다.





집 중심에 배치된 유리 박스형 선룸은 천창을 통해 들어오는 빛을 반사하고 확산시키며, 공간 전체에 예기치 않은 방식으로 빛을 퍼뜨린다. 선룸 내부의 식물은 아래층에서도 감상할 수 있도록 배치되었으며, 야간에는 집 전체를 은은하게 밝히는 등불처럼 작용한다. 구조는 철골과 콘크리트 마감을 그대로 드러내어 재료의 변화와 시간의 흔적을 즐길 수 있도록 했고, 다양한 감각과 시선을 수용할 수 있는 개방적 주거 공간으로 완성되었다. 이 집은 거주자가 일상 속에서 집을 새롭게 바라보고 경험할 수 있는 다양한 가능성을 제안한다.









건축가 후지와라무로 건축사사무소 (Fujiwaramuro Architects)
위치 일본, 효고, 아마가사키
용도 단독주택
대지면적 109.22㎡
건축면적 57.57㎡
연면적 105.61㎡
규모 지상 2층
준공 2024
대표건축가 Shintaro Fujiwara, Yoshio Muro
사진작가 Katsuya. Taira (studioREM)
'Architecture Project > Single Family' 카테고리의 다른 글
| 지붕에서 빛이 내리는 단독주택 / 파비안 탄 아키텍츠 (0) | 2025.05.23 |
|---|---|
| 목재 루버를 걸친 세뇨스의 단독주택 리모델링 / 자바 아키텍처 (0) | 2025.05.22 |
| 능선 위 파빌리온과 두 채의 단독주택 / 아르히텍티 포치바셰크 페트라노비치 (0) | 2025.05.20 |
| 호수와 숲 사이에 앉은 멕시코 단독주택 / 에이치이엠에이에이 (0) | 2025.05.15 |
| 베트남 산업지대 사이의 단독주택 / 타드 아틀리에 (0) | 2025.05.15 |
마실와이드 | 등록번호 : 서울, 아03630 | 등록일자 : 2015년 03월 11일 | 마실와이드 | 발행ㆍ편집인 : 김명규 | 청소년보호책임자 : 최지희 | 발행소 : 서울시 마포구 월드컵로8길 45-8 1층 | 발행일자 : 매일



