
LAPATOO HOUSE
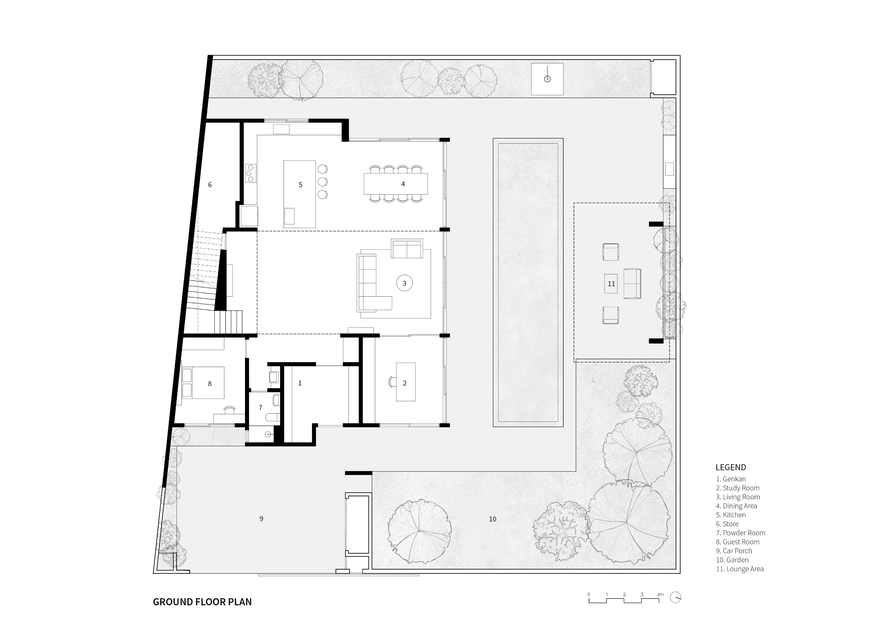
Lapatoo House는 말레이시아 쿠알라룸푸르의 주거 지역에 위치한 3층 규모의 주택으로, 이웃과 한쪽 벽을 공유하는 형태로 계획되었다. 대지 형태와 동일한 정사각형 평면으로 구성되었다. 현관에 들어서면 아래로 낮아진 현관 공간을 지나 거실, 주방, 식당이 하나로 이어지는 개방형 구조가 펼쳐진다.




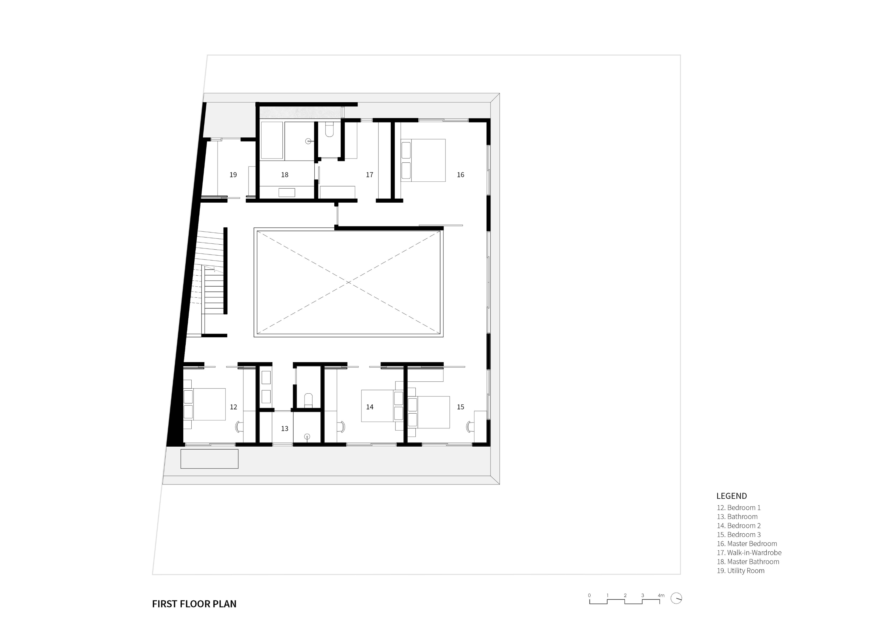
좌측에는 게스트룸이 배치되어 있고, 주요 생활 공간은 전면과 측면, 후면의 데크로 확장된다. 데크는 수면이 데크와 맞닿는 인피니티 풀, 라운지 파빌리온, 조경 정원과 자연스럽게 연결된다. 주택의 중심에는 3층 높이의 개방 공간이 형성되어 있으며, 목재 마감의 박공지붕과 천창이 설치되어 내부로 자연광이 유입된다.


이 공간은 가족 구성원 간의 수평 및 수직적 연결을 고려하여 설계되었다. 1층으로 이어지는 계단은 대지의 경계선을 따라 배치되었고, 2층 계단은 그와 직각으로 구성되어 빛이 계단실 사이로 스며들 수 있도록 했다. 2층에는 마스터룸과 자녀 침실이 중앙 void를 따라 복도로 연결되어 있으며, 모두 큰 슬라이딩 도어로 닫거나 열 수 있다.

\상부층은 네 방향으로 돌출된 콘크리트 구조로 구성되어 데크 아래 그늘을 형성하며 입면을 정의한다. 세 방향으로 뻗은 경사 지붕은 얇은 가장자리 마감으로 건물의 조형을 통일시킨다. 옥상에는 가족용 오락실이 있으며, 그 위의 박공지붕 꼭대기에는 은밀하게 마련된 전망 공간이 있어 주변 경관을 조망할 수 있도록 계획되었다.






건축가 파비안 탄 아키텍츠 (Fabian Tan Architect)
위치 말레이시아, 쿠알라룸푸르
용도 단독주택
대지면적 6,150sf²
건축면적 5,000sf²
사진작가 Bricksbegin
'Architecture Project > Single Family' 카테고리의 다른 글
| 여러 층이 쌓인 단독주택 / 파비안 탄 아키텍트 (0) | 2025.05.30 |
|---|---|
| 따스한 휴식이 있는 주택, 온휴 / 리얼스페이스건축사사무소 (0) | 2025.05.26 |
| 목재 루버를 걸친 세뇨스의 단독주택 리모델링 / 자바 아키텍처 (0) | 2025.05.22 |
| 유리 큐브로 빛을 들이는 주택 / 후지와라무로 건축사사무소 (0) | 2025.05.20 |
| 능선 위 파빌리온과 두 채의 단독주택 / 아르히텍티 포치바셰크 페트라노비치 (0) | 2025.05.20 |
마실와이드 | 등록번호 : 서울, 아03630 | 등록일자 : 2015년 03월 11일 | 마실와이드 | 발행ㆍ편집인 : 김명규 | 청소년보호책임자 : 최지희 | 발행소 : 서울시 마포구 월드컵로8길 45-8 1층 | 발행일자 : 매일



