
인도네시아 발리 쿠라쿠라섬에 위치한 쿠라쿠라 발리 유니티 인 다이버시티(UID) 캠퍼스는 약 60×140미터의 면적을 차지하는 복합 시설로, 상업, 교육, 사무 및 이벤트 프로그램이 결합된 곳이다. 이 건물은 발리섬에서 가장 높은 산인 아궁산을 향해 배치됐다.


설계의 컨셉을 구축하는 과정에서 건물은 두 개의 축을 중심으로 작동했다. 수평 축은 건물에 수평적 디자인 언어를 부여하며, 아궁산을 향한 기울어진 축은 건물의 길쭉한 형태를 대각선으로 가로지르며 공간을 구성했다.


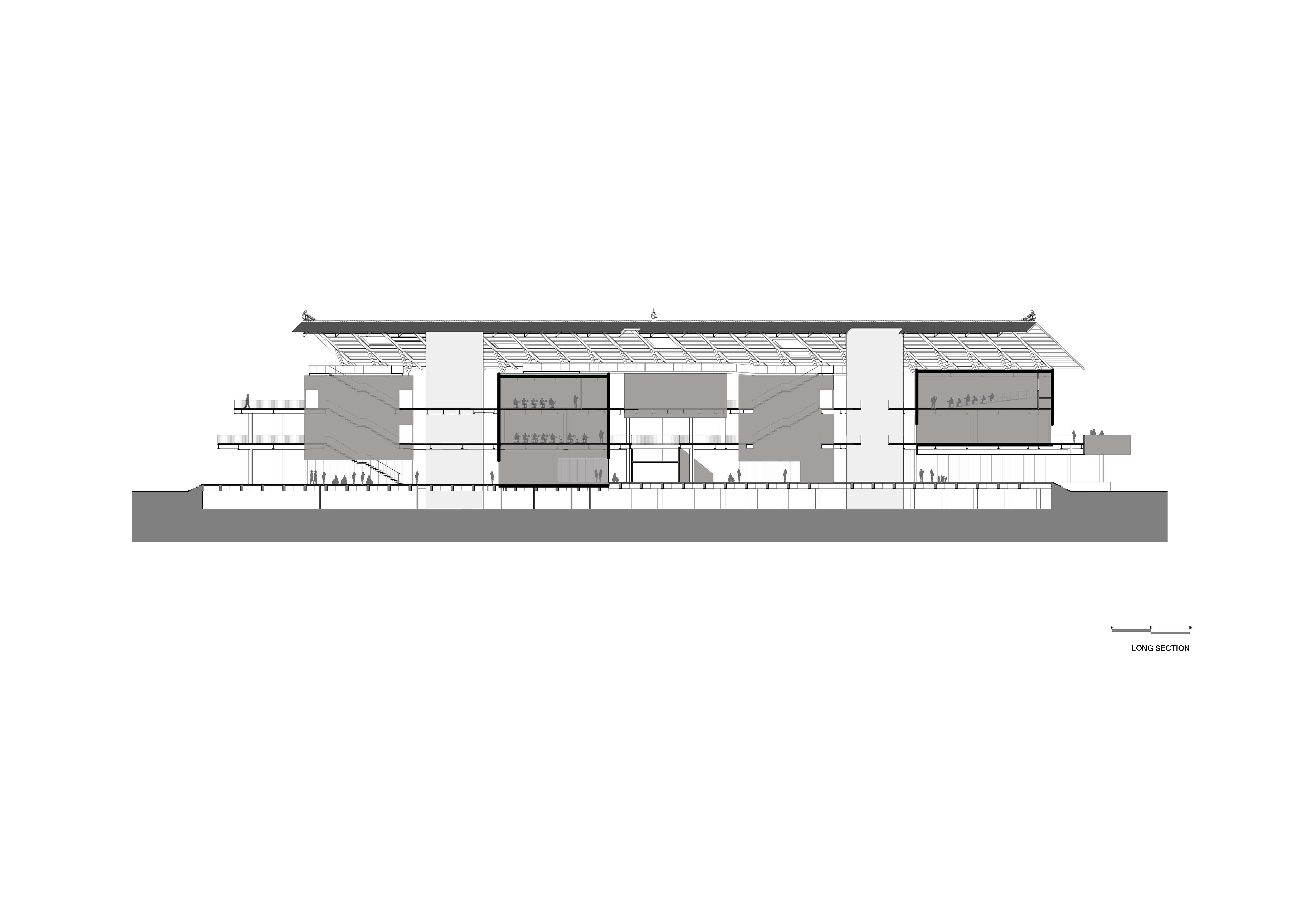
디자인은 ‘발레(Bale)’라는 전통적인 발리 건축 양식을 기반으로 한다. 발레는 초가지붕을 갖춘 구조로, 사람들이 모일 수 있는 다목적 공간으로 해석된다. 이 지붕 형태는 상징적으로 산과 하늘을 향해 뻗어 있다. 윌리스 쿠수마 건축사무소는 이 전통적 형태를 확장해 하나의 거대한 지붕 구조를 만들고, 그 아래 모든 프로그램을 배치했다. 이 건물은 열대 환경에 대한 세심한 이해를 바탕으로 설계됐으며, 발리 유산을 참조해 현대적인 시설로 재해석했다.


이름의 유래가 된 쿠라쿠라 발리 유니티 인 다이버시티 캠퍼스의 다양한 프로그램은 개별 벽돌 구조물로 나뉘어 있으며, 별동 건축물 위에 철제 기둥 위에 얹힌 거대한 지붕이 올려진다. 이로 인해 건물 내부와 주변에 개방된 공용 공간이 형성되며, 기후 조건에 따라 자연스럽게 변화하는 환경을 조성했다.



1층에는 상업 공간과 발리 유산을 전시하는 ‘발리 어보드 박물관’이 있다. 2층과 3층에는 코워킹 스페이스와 강의실이 있으며, 3층에는 개인 사무실, 다목적 홀, 미디어룸이 마련되었다. 실내 및 실외 원형 극장은 비공식적인 모임 공간을 만들며, 거대한 지붕 아래 있는 데크에서는 주변 섬의 경관을 감상할 수 있다. 폐쇄적인 벽돌 구조물과 지붕 아래 열린 공용 공간이 상호 작용하며 독특한 공간 경험을 창출한다. 이를 통해 건물 이용자들은 시각적, 청각적으로 역동적인 공간과 소통할 수 있다.





건축가 윌스 쿠수마 아키텍츠 (Willis Kusuma Architects)
위치 인도네시아, 발리, 사우스 덴파사르, 세랑안 섬
용도 교육시설
연면적 13,100㎡
준공 2022
대표건축가 Willis Kusuma
프로젝트건축가 Laurencia Angelia
디자인팀 Marco Victorio, Valenzia Natasha, Seulgi Yoon Suak
구조엔지니어 PT. Cipta Sukses
MEP PT. Sumber Daya Agung
조경 PT. Bukit Kembar Permai
사진작가 Mario Wibowo Photography Studio
'Architecture Project > Education' 카테고리의 다른 글
| 관목지대에 걸터앉은 등대같은 공간, 카우스 초등학교 체육관 / 프로젝트 12 아키텍처 (0) | 2025.04.02 |
|---|---|
| 나무 속의 학교 / 에이치이엠에이에이 아키텍츠 (0) | 2025.03.28 |
| 탄화목 사이로 들여다 보는 교육 공간 / 기욤 하밀리앙 아키텍처 (0) | 2025.03.24 |
| 띄워서 다시 사용하는 침수된 학교 / 언 티에이지 아키텍처&인테리어스 (0) | 2025.03.19 |
| 뉴 레스트 밸리 크레쉬 / 더 엠에이에이케이 (0) | 2025.03.06 |
마실와이드 | 등록번호 : 서울, 아03630 | 등록일자 : 2015년 03월 11일 | 마실와이드 | 발행ㆍ편집인 : 김명규 | 청소년보호책임자 : 최지희 | 발행소 : 서울시 마포구 월드컵로8길 45-8 1층 | 발행일자 : 매일



