
Les Violettes School Complex and Recreation Center
레 비올레트 학교 그룹 – 나무 속의 학교
레 비올레트 학교 단지는 마레유-말리시 마을 안에 또 하나의 작은 마을처럼 자리 잡고 있다. 마을의 높은 지대에 위치한 이곳은 수많은 보호수로 둘러싸여 있으며, 서쪽으로는 파리 대도시권이 한눈에 보이고, 멀리 라 데팡스의 고층 빌딩들이 시야에 들어온다. 다양한 시대적 건축 양식을 반영한 기존 건물들은 무성한 나무와 녹지 사이에 있어 아이들이 특별한 환경을 누릴 수 있다.



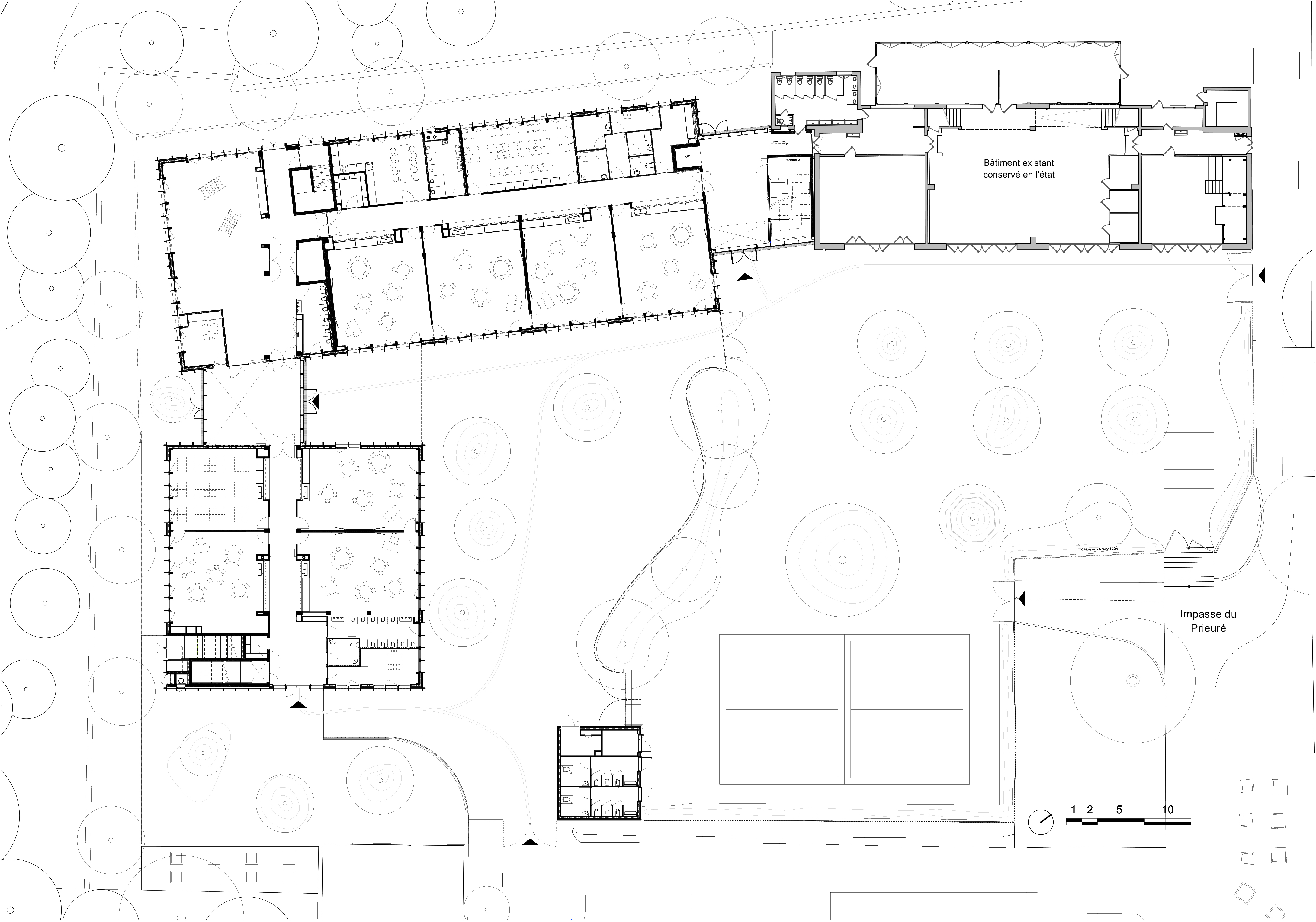
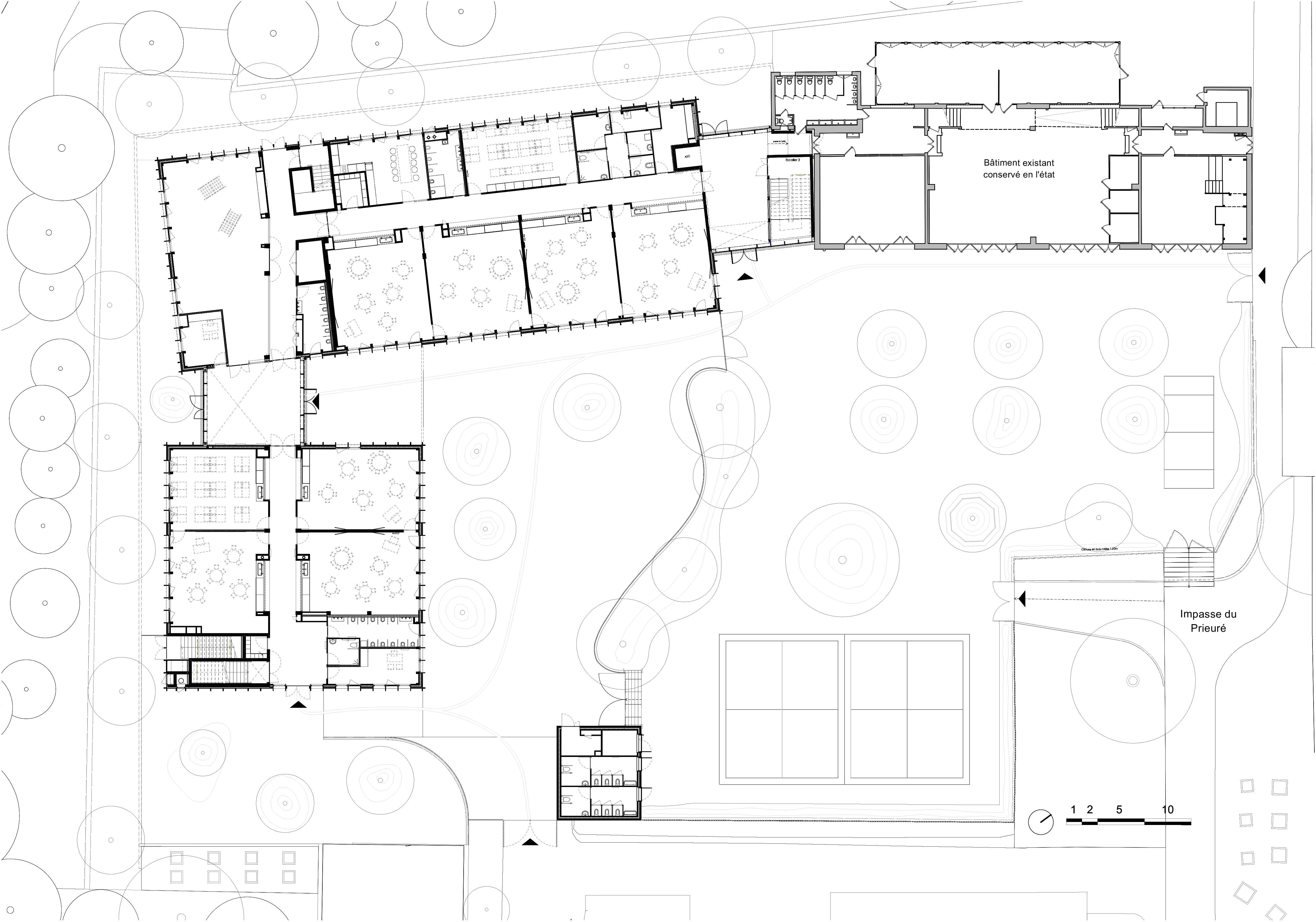
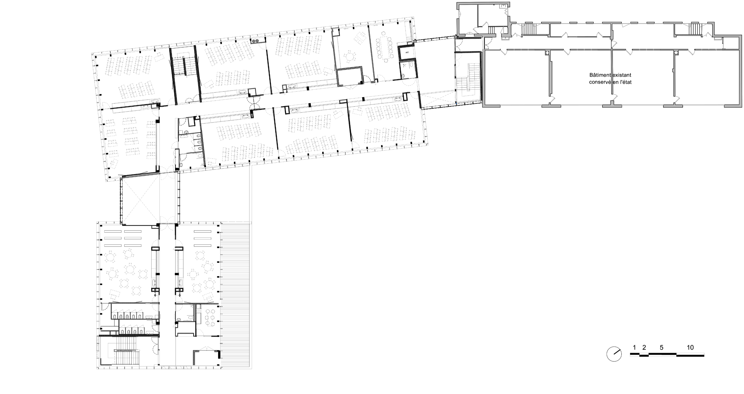
HEMAA는 자연환경을 보존하며 강조하는 ‘정원 속 학교’를 설계했다. 건축물은 나무와 유리 재료를 조합하여 주변 나뭇잎의 색감을 반영하고, 건물 사이의 투명성과 하늘을 향한 개방성을 극대화했다. 건축물로 불어오는 바람을 막아줄 수 있는 놀이터를 최대한 확보하기 위해 두 개의 신축 건물을 부지 서쪽 모서리에 계획했다. 두 개의 신축 동과 기존 초등학교 건물은 두 개의 개방형 복도를 통해 연결된다.


유치원은 1층에 배치됐으며, 모든 교실에서 바로 중정으로 나갈 수 있도록 설계했다. 중정에서는 기존 나무 주위로 흙의 면적을 넓혀, 우수가 땅으로 흡수될 수 있도록 했다.
[감성을 자극하는 건축적 요소]
가벼운 프랑스산 목조 프리패브 구조를 선택해 공사 소음을 줄이고 공사 기간을 단축했으며, 운영 중인 학교에 미치는 영향을 최소화했다. 설계는 건물의 분절된 구성을 강조하면서 1층과 상층의 마감 처리를 다르게 했다.
1층은 아이들에게 시각적으로 안정감을 주는 역할을 하며, 중정으로 넓게 개방되어 있다. 공장에서 사전 가공된 프랑스산 더글러스 퍼(Douglas Fir) 목재를 사용한 루버로 마감됐으며, 회색 마감 처리를 통해 시간이 지나도 안정적인 외관을 유지하도록 했다. 상층부는 반사율이 높은 알루미늄 패널과 유리창으로 감싸져 있어, 주변 나뭇잎과 하늘, 멀리 보이는 풍경을 반사하며 계절과 날씨에 따라 변화하는 외관을 만들어낸다. 부드럽게 곡선을 이루는 지붕은 마치 공중에 떠 있는 듯한 인상을 준다.


내부는 자연 그대로의 재료를 강조했다. 목조 프레임은 그대로 드러나 있으며, 구조적 안정성을 담당하는 프리캐스트 콘크리트 벽은 별도의 마감 없이 노출됐다. 음향 처리는 구조용 보 사이에 압축된 천연 목섬유를 삽입해 해결했다. 단열재는 목재 울(Wood Wool)을 사용했다.

컴팩트한 설계를 통해 최대한 많은 놀이 공간을 확보했으며, 중앙 복도를 중심으로 양쪽에 교실을 배치했다. 자연 채광을 위해 교실과 복도를 나누는 벽에는 창을 설치했으며, 복도 끝부분도 유리로 마감해 건물 어느 곳에서든 바깥 자연경관을 조망할 수 있도록 했다.





건축가 에이치이엠에이에이 아키텍츠 (HEMAA Architectes)
위치 프랑스, 마레이 말리
용도 교육시설
건축면적 1,852㎡
연면적 1,997㎡
규모 지상 2층
프로젝트기간 2020 - 2024
디자인팀 Hemaa Architectes (lead architects), Hesters Oyon Architectes (competition phase), OTE - Engineering Office, OTELIO - Environmental Engineering Office
발주자 Municipality of Mareil-Marly
사진작가 Nicolas Da Silva and Sergio Grazia
'Architecture Project > Education' 카테고리의 다른 글
| 사회와 지역을 포용하는 매도우즈 초등학교 / 프로젝트 12 아키텍처 (0) | 2025.04.03 |
|---|---|
| 관목지대에 걸터앉은 등대같은 공간, 카우스 초등학교 체육관 / 프로젝트 12 아키텍처 (0) | 2025.04.02 |
| 아궁산 모양 지붕이 앉은 교육 공간 / 윌스 쿠수마 아키텍츠 (0) | 2025.03.27 |
| 탄화목 사이로 들여다 보는 교육 공간 / 기욤 하밀리앙 아키텍처 (0) | 2025.03.24 |
| 띄워서 다시 사용하는 침수된 학교 / 언 티에이지 아키텍처&인테리어스 (0) | 2025.03.19 |
마실와이드 | 등록번호 : 서울, 아03630 | 등록일자 : 2015년 03월 11일 | 마실와이드 | 발행ㆍ편집인 : 김명규 | 청소년보호책임자 : 최지희 | 발행소 : 서울시 마포구 월드컵로8길 45-8 1층 | 발행일자 : 매일



