
Rebuilding Flood Resilience: Saraswati Vidyalaya, Kelthan, Maharashtra
이 프로젝트는 마하라슈트라주 팔가르 지역의 켈탄 부족 마을에 위치한 농촌 공립학교로, 탄사 강변에 자리하고 있다. 이곳에서는 8학년부터 10학년까지 약 180명의 학생들이 공부하고 있다. 그러나 2019년 홍수로 인해 학교 시설이 심각하게 침수되었고, 건물 인프라가 손상되면서 학생과 교직원이 안전하게 사용할 수 없는 상황에 처했다. 2020년부터 시작된 학교 재건 프로젝트는 지역 NGO, 교사, 학생들이 협력해 진행되었다. 학습이 중단되지 않도록 공사의 단계를 두 개의 단계로 나누었다.


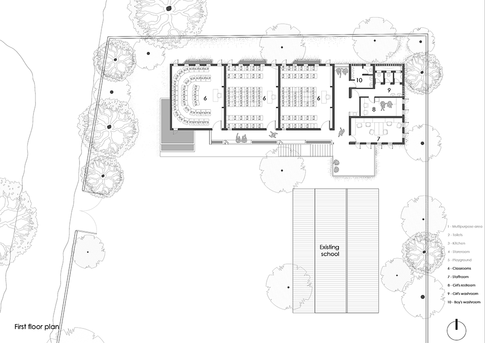
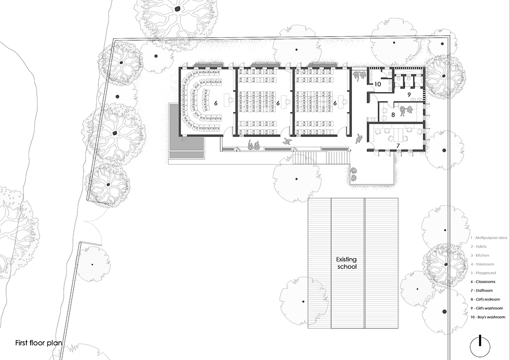
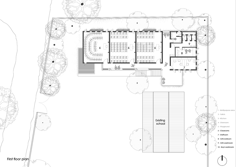
새롭게 설계된 학교는 태양광 시스템을 적용하여, 지역의 기후 및 환경적 요소를 반영했다. 1에이커 부지의 북동쪽에 학교 건물을 배치하여 운동장을 넓게 확보하고, 스틸트구조를 도입해 지속적인 홍수 피해를 최소화했다. 1단계에서는 밝고 통풍이 좋은 교실 세 개가 마련되었으며, 자연 채광을 극대화하기 위해 북쪽에 채광을 위한 지붕을 계획했다. 교실에서는 만다키니 언덕과 논밭이 보이는 전망을 제공하여 학생들에게 쾌적한 학습 환경을 조성했다.


학교에는 공동 주방이 마련되어 학생들이 점심 급식을 해결할 수 있고, 기둥 위에 떠 있는 구조를 활용해 다목적 커뮤니티 공간이 만들어졌다. 학교 건설은 현지에서 조달한 재료를 활용해 저탄소 방식으로 진행되었다. 철근 콘크리트 구조를 기반으로 적벽돌을 쌓아 단열 성능을 높였으며, 자알리 방식을 적용해 공기 순환과 빛 조절 기능을 강화했다. 이 프로젝트는 단순한 학교 재건을 넘어, 지역 공동체의 지속 가능성과 자립을 위한 중요한 이정표가 되었다.



건축가 언 티에이지 아키텍처&인테리어스(unTAG Architecture & Interiors)
위치 인도, 마하라슈트라
용도 교육시설(고등학교)
연면적 578㎡
준공 2024
대표건축가 Tejesh Patil, Gauri Satam, Nikita Patil
사진작가 ash Prabhu, Vibhu Viraj, unTAG Architecture & Interiors
'Architecture Project > Education' 카테고리의 다른 글
| 아궁산 모양 지붕이 앉은 교육 공간 / 윌스 쿠수마 아키텍츠 (0) | 2025.03.27 |
|---|---|
| 탄화목 사이로 들여다 보는 교육 공간 / 기욤 하밀리앙 아키텍처 (0) | 2025.03.24 |
| 뉴 레스트 밸리 크레쉬 / 더 엠에이에이케이 (0) | 2025.03.06 |
| 어린이 숲 보육원 / 타카시게 야마시타 오피스 (0) | 2025.02.19 |
| 갈락시에 에르 바른스도르프 유치원 / 알지 아키텍츠 스튜디오 (0) | 2025.02.18 |
마실와이드 | 등록번호 : 서울, 아03630 | 등록일자 : 2015년 03월 11일 | 마실와이드 | 발행ㆍ편집인 : 김명규 | 청소년보호책임자 : 최지희 | 발행소 : 서울시 마포구 월드컵로8길 45-8 1층 | 발행일자 : 매일



