
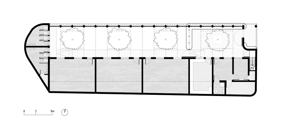
뉴 레스트 밸리 크레쉬는 뉴레스트 밸리 지역에서 완공된 첫 번째 공공시설이다. 뉴 레스트 밸리 크레쉬는 남아프리카공화국 케이프타운의 자선 단체인 부야 재단(Vuya Fondation)과 자원봉사 단체인 뉴랜즈 로타리 클럽(Rotary Club of Newlands)의 협력을 통해 완공됐다. 완공된 시설은 약 90명의 어린이를 수용할 수 있는 3개의 교실, 놀이 공간, 주방, 사무실 등을 포함한다.




단층 주택들로 둘러싸인 환경 속에서 우뚝 솟아있는 뉴 레스트 밸리 크레쉬는 지역의 랜드마크 역할을 한다. 건물의 지붕은 남쪽을 향해 상승하는 사선 지붕의 형태이며 입면에 창문을 만들어 부드러운 빛이 교실에 들어오도록 디자인했다. 북쪽의 야외 놀이 공간 위 지붕에는 구멍을 뚫어 나무가 성장할 수 있도록 했다. 나무가 자라면서 자연스럽게 그늘을 형성해 뉴 레스트 밸리의 뜨거운 햇빛을 피할 수 있다. 이러한 자연을 설계에 통합한 방식은 이 프로젝트의 특징이다.


건물에 사용된 다양한 색상의 기둥은 아동친화적인 분위기를 조성하며 주변 환경에 생기를 불어넣는다. 북쪽 경계에는 브리즈 벽돌 벽을 사용해 놀이 공간과 거리를 구분했다.






위치 남아프리카 공화국, 스와트랜드, 뉴 레스트 밸리
용도 보육원
대지면적 491.00㎡
건축면적 392.00㎡
건폐율 79.80%
용적률 0.65%
설계기간 2021. 6. - 2022. 7.
시공기간 2022. 7. - 2023. 3.
준공 2023
대표건축가 Max Melvill
디자인팀 The MAAK
구조엔지니어 Graham Lowden
기계엔지니어 Jo Lubbe
전기엔지니어 Jo Lubbe
소방엔지니어 Neil Moir and Associates
시공 BM Williams
발주자 The Vuya Foundation
사진작가 Kent Andreasen
해당 프로젝트는 건축문화 2025년 2월호(Vol. 525)에 게재되었습니다.
The project was published in the November, 2025 recent projects of the magazine(Vol. 525).
February 2025 : vol. 525
Contents : COMPETITION : BOOKS : RECENT PROJECT Y22007 PJ_012 / BSN ARCHI.연남동 리모델링 프로젝트 / 비에스엔 건축사사무소 GD House / Adarq - André David Arquitecto지디 하우스 / 아다르크 - 안드레 다비
anc.masilwide.com
'Architecture Project > Education' 카테고리의 다른 글
| 탄화목 사이로 들여다 보는 교육 공간 / 기욤 하밀리앙 아키텍처 (0) | 2025.03.24 |
|---|---|
| 띄워서 다시 사용하는 침수된 학교 / 언 티에이지 아키텍처&인테리어스 (0) | 2025.03.19 |
| 어린이 숲 보육원 / 타카시게 야마시타 오피스 (0) | 2025.02.19 |
| 갈락시에 에르 바른스도르프 유치원 / 알지 아키텍츠 스튜디오 (0) | 2025.02.18 |
| 시립장지하나어린이집 / (주)건축사사무소오씨에이 OCA (0) | 2025.02.14 |
마실와이드 | 등록번호 : 서울, 아03630 | 등록일자 : 2015년 03월 11일 | 마실와이드 | 발행ㆍ편집인 : 김명규 | 청소년보호책임자 : 최지희 | 발행소 : 서울시 마포구 월드컵로8길 45-8 1층 | 발행일자 : 매일



