
TU 1000 Trees Store
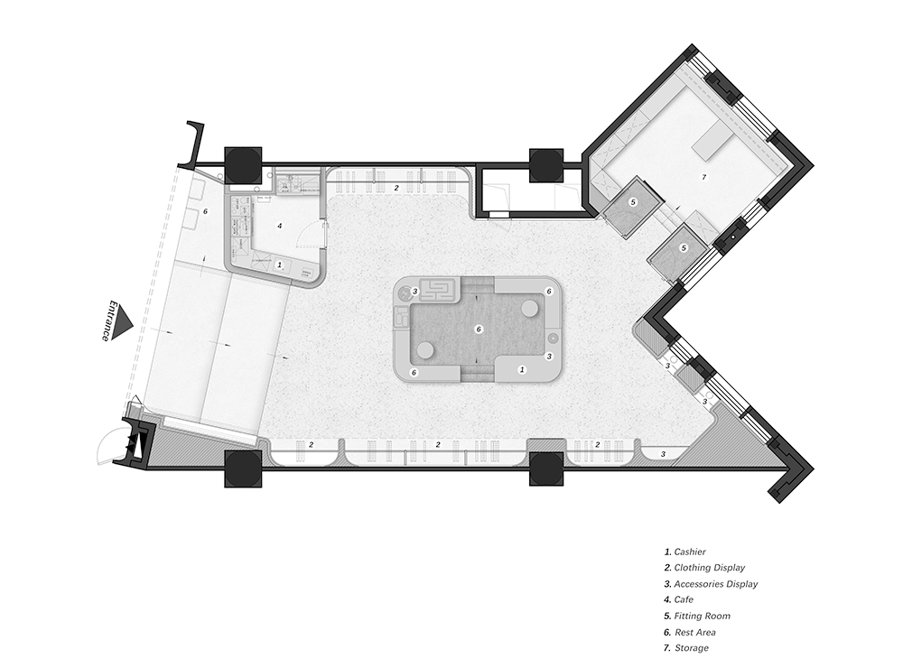
디자인은 브랜드의 개념을 계승하여 녹색과 자연, 개방성을 강조했다. 실내를 마치 야외 공공 공간처럼 조성하여 고객이 도시 거리를 걷는 듯한 경험을 할 수 있도록 설계했다.


특히, 대형 야외 계단, 선큰 플라자(지하광장), 코너 카페라는 세 가지 요소를 도입해, 자연스럽고 편안한 쇼핑 경험을 제공했다. 매장 입구의 대형 계단은 1000 Trees 내부의 ‘거리’와 연결되어 실내외의 경계를 흐리게 하고, 고객이 자유롭게 오갈 수 있도록 했다. 또한, 상하이 거리의 작은 카페에서 영감을 받아 입구 계단에 좌석을 배치해, 고객들이 잠시 머물며 쉴 수 있는 공간을 마련했다.


매장 내부의 선큰 플라자는 휴식과 교류의 공간으로 조성됐다. 강렬한 오렌지색을 사용해 시각적 중심을 형성했으며, 천장의 녹색 구조물과 대비를 이루며 자연 속 휴식 같은 분위기를 연출했다. 이 공간은 단순한 휴게 공간을 넘어, 사람들이 자연스럽게 모이고 소통할 수 있는 도시 속 작은 광장이 되도록 기획됐다. TU의 신규 매장은 단순한 의류 매장이 아닌, 실내와 실외의 경계를 허물고 자연과 도시를 연결하는 열린 공간으로 자리 잡고 있다. 브랜드와 고객이 보다 친근하게 소통할 수 있는 새로운 개념의 공간 경험을 제안한다.

디자이너 텐스 아틀리에(Tens Atelier)
위치 중국, 상하이
프로젝트면적 161㎡
준공 2022. 01.
대표디자이너 Tanen
프로젝트디자이너 Thomas
디자인팀 Tanen, Thomas, Yui, Honber
발주자 Shanghai Shiran Garment co. ltd (Stefanice, Helina Xue)
사진작가 MRC
'Architecture Project > Retail' 카테고리의 다른 글
| 디제이아이 플래그십 스토어 / 베리어스 어소시에이츠 (0) | 2025.05.02 |
|---|---|
| 산불의 아픔을 기억하는 땅, 탄목원 / 유저 + 나우엑스랩 + 이지 건축사사무소 (0) | 2025.04.04 |
| 칭저우 붉은 산을 품은 탄보어 아웃도어 체험 콘셉트 스토어 6.0 / 스틸 영 (0) | 2025.03.10 |
| 라파르 / 레이어드 건축사사무소 (0) | 2025.03.05 |
| 배경이 되는 건축 / 타다시 히라이 디자인 스튜디오 (0) | 2025.02.28 |
마실와이드 | 등록번호 : 서울, 아03630 | 등록일자 : 2015년 03월 11일 | 마실와이드 | 발행ㆍ편집인 : 김명규 | 청소년보호책임자 : 최지희 | 발행소 : 서울시 마포구 월드컵로8길 45-8 1층 | 발행일자 : 매일



