
JINS Hikone Store
시가현의 비와호는 일본에서 가장 큰 호수이다. 지역 주민들에게는 “어머니 호수”라고 불리며 지역의 역사를 담고 있는 곳이다. 안경 브랜드인 진스는 하코네 지점을 비와호 근처에 지었다. 호숫가를 따라 만들어진 도로를 사이에 두고 호수와 마주보는 건물은 주변의 환경과는 다르게 압도적인 규모를 자랑한다.

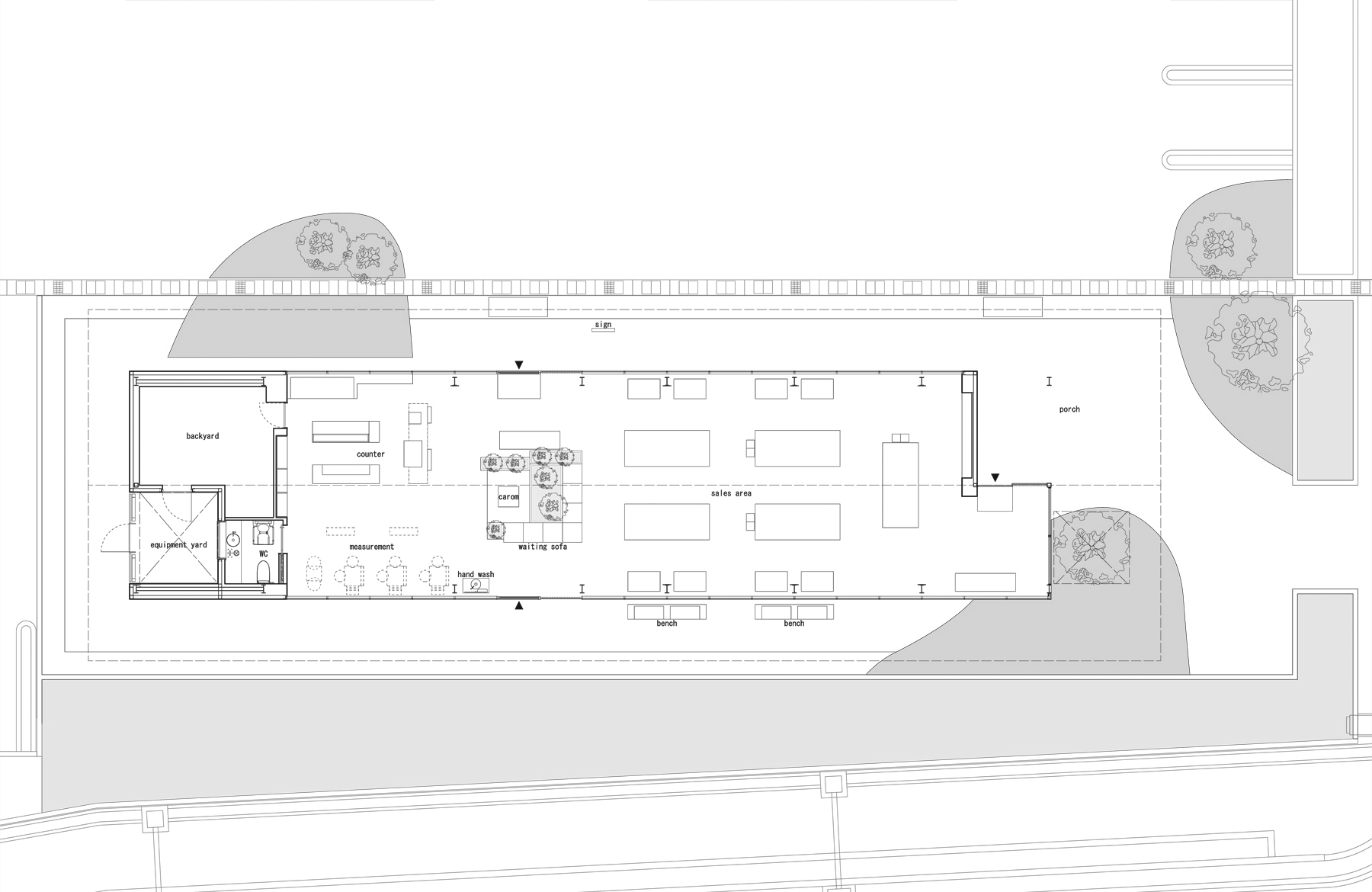
큰 지붕을 가진 매장은 마치 공원에 지붕만 설치하여 쉼터처럼 이용할 수 있는 정자같은 모습이다. 매장 안에서는 호수를 넓게 바라볼 수 있는데, 이는 건축가가 고객들에게 풍부한 자연에 둘러싸여 안경을 구경하며 즐거운 시간을 보낼 수 있도록 의도한 것이다.


건축가는 비와 호수가 가진 자연환경을 반영하여 매장의 대규모 공간을 가볍고 긴 지붕으로 덮었다. 길게 뻗은 처마 아래 넓은 공간에는 식재를 심어 카페처럼 쉴 수 있게 했다.


길쭉한 지붕을 지지하는 서까래는 나무로 만들어졌으며, 철골 프레임 위에 놓여 있다. 건축가는 주차장에서 건축물을 바라볼 때 이 공간이 중요해 보이길 원했으며, 투명한 벽을 통해 매장 안에 전시되어 있는 안경 상품들이 시각적으로 돋보이길 바랐다. 철골과 창호 프레임의 모듈을 기준으로 설계된 건축물은 내부와 외부의 투명성을 더욱 높여준다. 지붕과 내부 공간, 외부 벽은 모두 비슷한 색상으로 통일되었고, 이로써 건축물은 진스의 안경을 보여주는 배경으로서 존재하게 된다.


건축가 타다시 히라이 디자인 스튜디오(Tadashi Hirai Design Studio)
위치 일본, 시가, 히코네
연면적 187.36㎡
대표건축가 Tadashi Hirai
인테리어 Tadashi Hirai Design Studio(Tadashi Hirai)
구조 S3 associates(Ichiro Hashimoto)
조경 Ryokuensha
발주자 JINS
사진작가 Daichi Ano
'Architecture Project > Retail' 카테고리의 다른 글
| 칭저우 붉은 산을 품은 탄보어 아웃도어 체험 콘셉트 스토어 6.0 / 스틸 영 (0) | 2025.03.10 |
|---|---|
| 라파르 / 레이어드 건축사사무소 (0) | 2025.03.05 |
| 삼차원 정원 - 난징 챔피언 신터드 스톤 쇼룸 / 비하이브 아키텍츠 (0) | 2025.02.26 |
| 새 안경으로 볼 수 있는 곳 / 다위안 디자인 (0) | 2025.01.31 |
| Nujiang Grand Canyon Bookstore of Librairie Avant-Garde (0) | 2024.11.05 |
마실와이드 | 등록번호 : 서울, 아03630 | 등록일자 : 2015년 03월 11일 | 마실와이드 | 발행ㆍ편집인 : 김명규 | 청소년보호책임자 : 최지희 | 발행소 : 서울시 마포구 월드컵로8길 45-8 1층 | 발행일자 : 매일



