
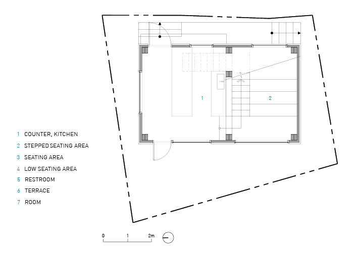
대상지는 새만금방조제에서 다리를 두 번 건너서 방문할 수 있는 장자도에 위치한다. 건축가는 낙조와 고군산군도를 조망할 수 있는 카페를 계획하며, 좁은 대지의 한정된 공간에서 땅의 특성을 최대한 살릴 수 있는 방법을 고민했다. 건축물의 매스는 카페에 필요한 공간을 대지에 세로로 쌓아 등대처럼 우뚝 솟은 형태가 됐다.

이를 바탕으로 ‘장자도에서 빛을 비추는 등대’라는 전체적인 디자인 콘셉트를 마련했다.


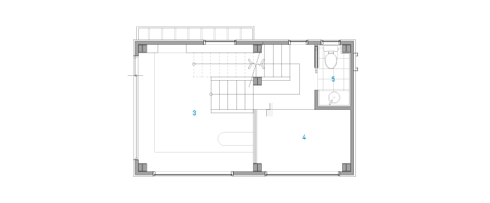
라파르는 계단이 많은 등대의 특성에서 착안하여, 내부의 계단을 숨기지 않고 디자인 요소로 부각했다. 1층부터 루프톱까지 이어지는 수직 동선은 다양한 조망을 바라보면서 이동할 수 있다. 계단으로 생긴 스킵 플로어는 계단식 좌석과 평상이 됐다. 이를 통해 각 층을 이동하면서 숨은 공간을 발견하는 기대감을 만들고 내부 공간이 넓게 느껴지게 한다. 창의 높이와 비율은 계단을 콘셉트로 하는 각각의 공간을 따라 최적의 뷰를 바라볼 수 있도록 조절했다. 내부에서 바라본 창은 하늘과 바다가 만들어 내는 자연의 풍경이 액자처럼 벽에 걸리고, 외부에서 바라본 건축물은 불빛이 새어나와 등대를 바라보는 것 같은 인상을 준다.




건축가 레이어드 건축사사무소(LAYERED ARCHITECTS)
위치 전북특별자치도 군산시 옥도면
용도 근린생활시설
대지면적 66.00m2
건축면적 26.40m2
연면적 65.74m2
규모 지상 3층
건폐율 40.00%
용적률 99.61%
설계기간 2019. 7. - 11.
시공기간 2019. 11. - 2020. 3.
준공 2020. 3.
프로젝트건축가 김선용
시공 (주)공간기록
사진 최진보
해당 프로젝트는 건축문화 2025년 2월호(Vol. 525)에 게재되었습니다.
The project was published in the November, 2025 recent projects of the magazine(Vol. 525).
February 2025 : vol. 525
Contents : COMPETITION : BOOKS : RECENT PROJECT Y22007 PJ_012 / BSN ARCHI.연남동 리모델링 프로젝트 / 비에스엔 건축사사무소 GD House / Adarq - André David Arquitecto지디 하우스 / 아다르크 - 안드레 다비
anc.masilwide.com
'Architecture Project > Retail' 카테고리의 다른 글
| 외부와 경계를 허물고 소통하는 의류 상점 / 텐스 아틀리에 (0) | 2025.03.12 |
|---|---|
| 칭저우 붉은 산을 품은 탄보어 아웃도어 체험 콘셉트 스토어 6.0 / 스틸 영 (0) | 2025.03.10 |
| 배경이 되는 건축 / 타다시 히라이 디자인 스튜디오 (0) | 2025.02.28 |
| 삼차원 정원 - 난징 챔피언 신터드 스톤 쇼룸 / 비하이브 아키텍츠 (0) | 2025.02.26 |
| 새 안경으로 볼 수 있는 곳 / 다위안 디자인 (0) | 2025.01.31 |
마실와이드 | 등록번호 : 서울, 아03630 | 등록일자 : 2015년 03월 11일 | 마실와이드 | 발행ㆍ편집인 : 김명규 | 청소년보호책임자 : 최지희 | 발행소 : 서울시 마포구 월드컵로8길 45-8 1층 | 발행일자 : 매일



