
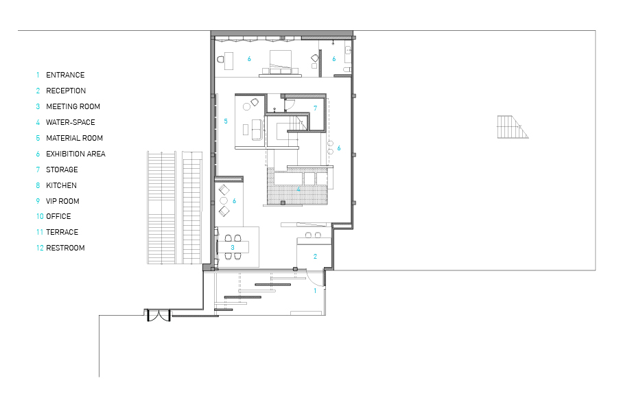
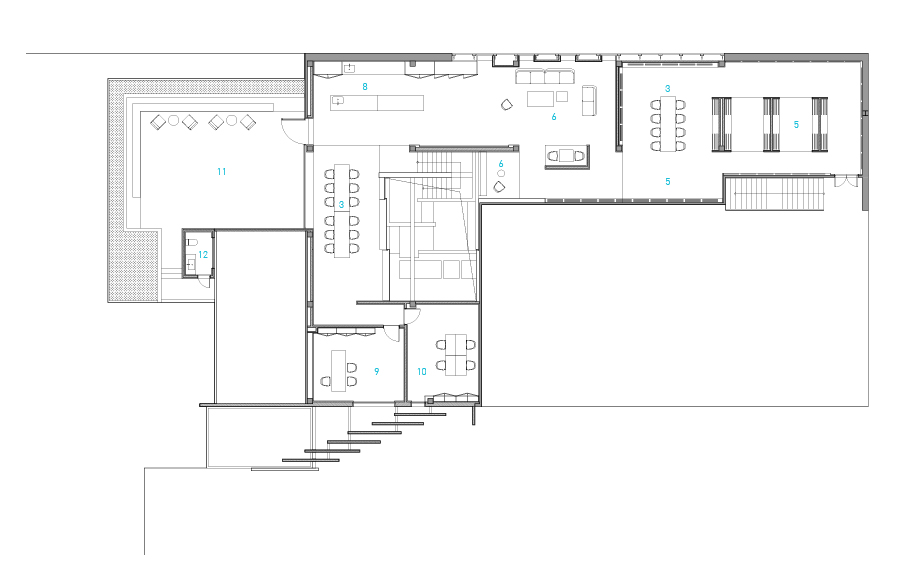
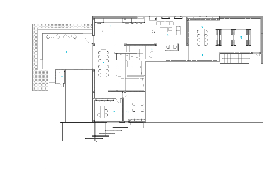
난징의 챔피언 신터드 스톤 쇼룸은 다양한 활동을 위한 다목적 공간이다. 전통적인 소매 매장과는 다른 갤러리형 공간으로 비즈니스 회의, 창의적인 교류를 위한 살롱, 제품 전시가 가능하다. ‘신터드 스톤’은 자연에서 채취한 재료로 만들어져 그 자체로 장소의 풍경을 반영한다. 건축가는 ‘신터드 스톤’에서 영감을 받아 지어진 쇼룸을 통해 자연 경관의 아름다움에 경의를 표하고자 했다.


건축 공간은 사람들이 그 안을 거닐고 탐험할 수 있는 삼차원 정원이 되며, 신터드 스톤을 적용한 벽은 주요한 건축 요소로 사용되었다. 다양한 크기의 벽을 결합하고 쌓아 올려 여러 층, 리듬, 분위기를 가진 공간은 마치 중국 정원에 있는 것처럼 감각적인 경험을 제공한다. 부지는 좁고 깊은 형태로, 실내와 외부, 1층과 2층 간의 경계를 허물고 모든 공간을 하나로 다루었다.

벽 사이에는 다양한 테마 전시 공간과 샘플 구역이 배치되어 있어 사람들이 벽 사이를 거닐며 제품의 특성을 느낄 수 있다. 때로는 물 위를 걷고, 때로는 벽에 기대어 휴식을 취하는 등 마치 산을 걷는 것 같은 자연스러운 경험을 제공한다. 층을 이루는 벽은 주요한 시각적인 요소로, 건물의 외관에서 내부 공간으로 이어지며 부지의 깊이를 극대화한다. 간결하고 깔끔한 흰 매스는 복잡한 도시 환경에서 돋보이며 브랜드의 시각적 아이덴티티를 강화한다. 층을 이루는 벽은 왼쪽에서 오른쪽으로 비스듬히 배치된다. 이러한 배치는 일부는 땅에 서 있고 일부는 공중에 떠 있는 바위 같은 질감의 모습은 산을 공간적으로 해석한 것이다.



건축가 비하이브 아키텍츠(BEHIVE ARCHITECTS)
위치 중국, 난징
용도 전시관
건축면적 700.00㎡
준공 2024
대표건축가 Darcy Chang, Rachael Ouyang
디자인팀 Darcy Chang, Rachael Ouyang,Xin Kai, Jie Deng, Tianye Zhou
구조엔지니어 Jianbo Miu, Mingwei Li
조경 BEHIVE Architects
시공 Nanjing Yintai Building Decoration Engineering Co., Ltd
발주자 Champion Tile
사진작가 Qingshan Wu
해당 프로젝트는 건축문화 2025년 2월호(Vol. 525)에 게재되었습니다.
The project was published in the November, 2025 recent projects of the magazine(Vol. 525).
February 2025 : vol. 525
Contents : COMPETITION : BOOKS : RECENT PROJECT Y22007 PJ_012 / BSN ARCHI.연남동 리모델링 프로젝트 / 비에스엔 건축사사무소 GD House / Adarq - André David Arquitecto지디 하우스 / 아다르크 - 안드레 다비
anc.masilwide.com
'Architecture Project > Retail' 카테고리의 다른 글
| 라파르 / 레이어드 건축사사무소 (0) | 2025.03.05 |
|---|---|
| 배경이 되는 건축 / 타다시 히라이 디자인 스튜디오 (0) | 2025.02.28 |
| 새 안경으로 볼 수 있는 곳 / 다위안 디자인 (0) | 2025.01.31 |
| Nujiang Grand Canyon Bookstore of Librairie Avant-Garde (0) | 2024.11.05 |
| Nude Project Ibiza (0) | 2024.08.28 |
마실와이드 | 등록번호 : 서울, 아03630 | 등록일자 : 2015년 03월 11일 | 마실와이드 | 발행ㆍ편집인 : 김명규 | 청소년보호책임자 : 최지희 | 발행소 : 서울시 마포구 월드컵로8길 45-8 1층 | 발행일자 : 매일



