
군산시 대야면에 위치한 산월은 방문객에게 조용하고 편안한 쉼을 제공하는 스테이 시설이다. 복잡한 도심을 벗어나 쉼을 위해
찾아온 투숙객은 화이트 톤의 외벽을 마주하며 깨끗하고 편안한 첫인상을 받을 수 있다.


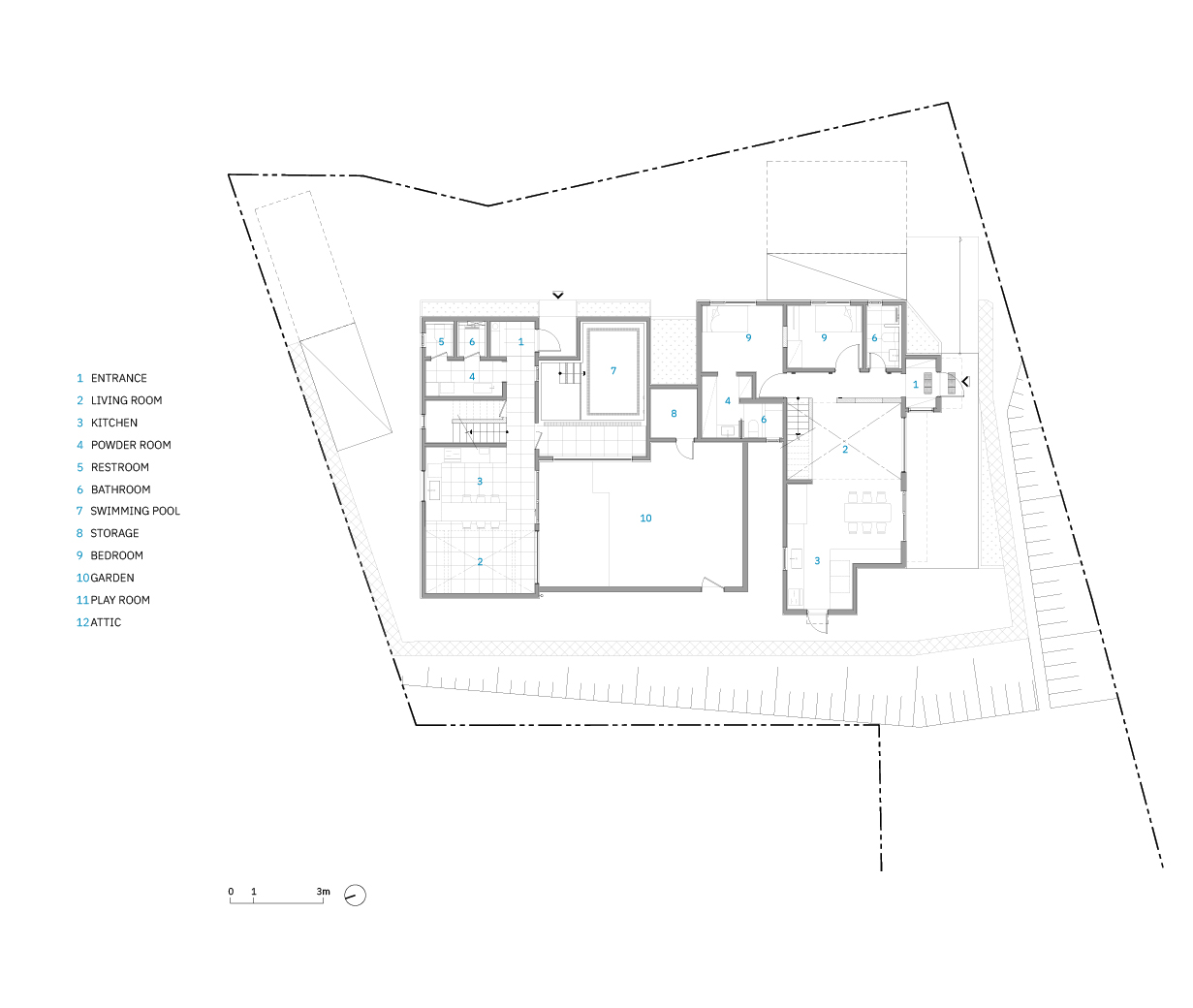
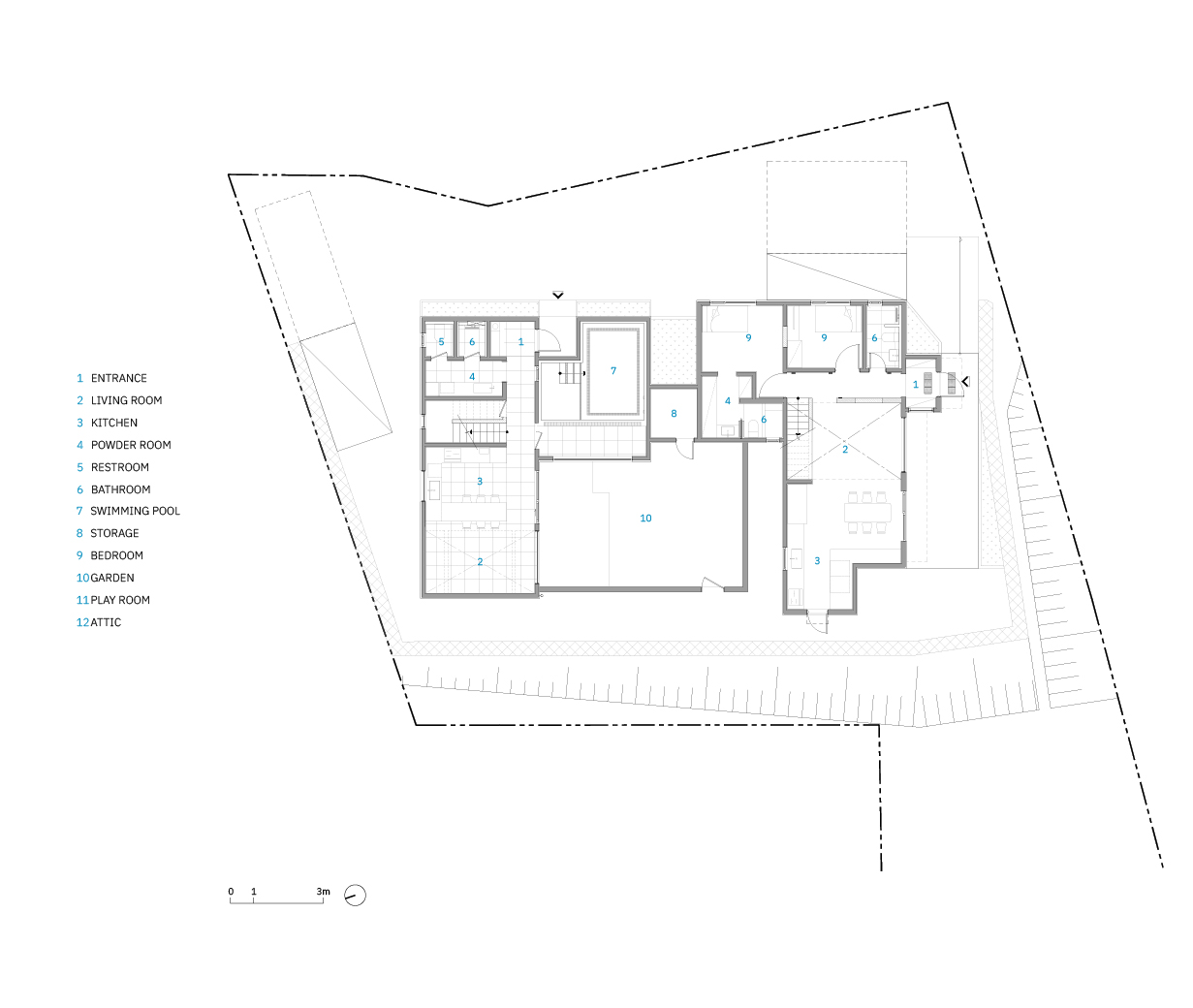
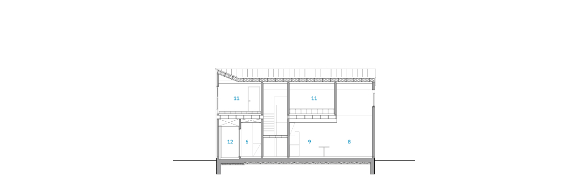
안마당을 중심으로 구분된 공간은 투숙객의 프라이버시를 보장하며, 경사 지붕은 자연과 조화를 이루면서 다채로운 입면으로 구성되었다. 1층의 큰 유리창은 자연광을 풍부하게 끌어들이고, 개방감 있게 구성된 거실과 주방은 많은 인원의 투숙객이 함께 모여 어울리기에 적합한 공간이 되었다.



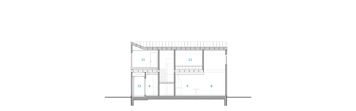
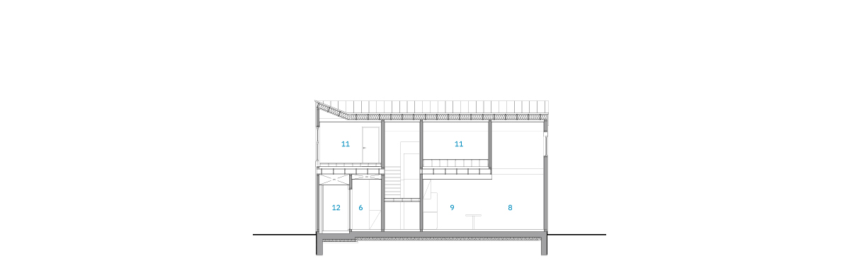
실내에 마련된 수영장은 산월에 특별함을 더하는데, 전면의 통창을 통해 외부 공간과 시각적으로 연결되고 사계절 내내 이용할 수 있는 장점이 있다. 2층에는 두 개의 객실과 작은 놀이방이 마련되어 있다. 경사 지붕 아래 다락 공간을 활용한 놀이방은 아이들의 눈높이에 맞춘 특별한 놀이 공간이다. 원형의 개구부는 아이들의 상상력을 자극하고 즐거움을 준다.





건축가 레이어드 건축사사무소(LAYERED ARCHITECTS)
위치 전북특별자치도 군산시 대야면
용도 숙박시설
대지면적 925.00㎡
건축면적 181.08㎡
연면적 235.98㎡
규모 지상 2층
건폐율 19.57%
용적률 25.51%
설계기간 2022. 11. - 2023. 10.
시공기간 2023. 5. - 2024. 7.
준공 2024. 7.
프로젝트건축가 김선용
구조엔지니어 SM구조엔지니어링
기계엔지니어 월드기술단
전기엔지니어 월드기술단
시공 (주)공간기록
사진 김봉수
해당 프로젝트는 건축문화 2025년 2월호(Vol. 525)에 게재되었습니다.
The project was published in the November, 2025 recent projects of the magazine(Vol. 525).
February 2025 : vol. 525
Contents : COMPETITION : BOOKS : RECENT PROJECT Y22007 PJ_012 / BSN ARCHI.연남동 리모델링 프로젝트 / 비에스엔 건축사사무소 GD House / Adarq - André David Arquitecto지디 하우스 / 아다르크 - 안드레 다비
anc.masilwide.com
'Architecture Project > Hospitality' 카테고리의 다른 글
| 미트버리 퍼블릭 하우스 / 더블유오에스 아키텍츠 (0) | 2025.03.21 |
|---|---|
| 유리 지붕으로 드는 빛을 품는 방갈로르 펍 / 코친 크리에이티브 콜렉티브 (0) | 2025.03.11 |
| 과거의 나무로 녹음이 진 곳 / 에스티디 디자인 컨설턴트 (0) | 2025.02.11 |
| 제주 사슴책방 / 바이핸드 건축사사무소 (0) | 2025.02.07 |
| 과거를 현재로 읽는 법 / 손.스튜디오 (0) | 2025.01.20 |
마실와이드 | 등록번호 : 서울, 아03630 | 등록일자 : 2015년 03월 11일 | 마실와이드 | 발행ㆍ편집인 : 김명규 | 청소년보호책임자 : 최지희 | 발행소 : 서울시 마포구 월드컵로8길 45-8 1층 | 발행일자 : 매일



