
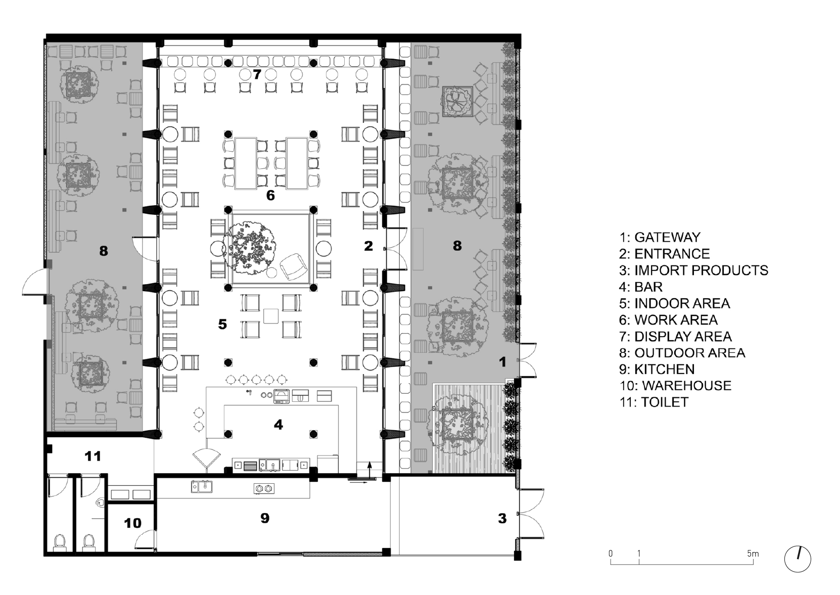
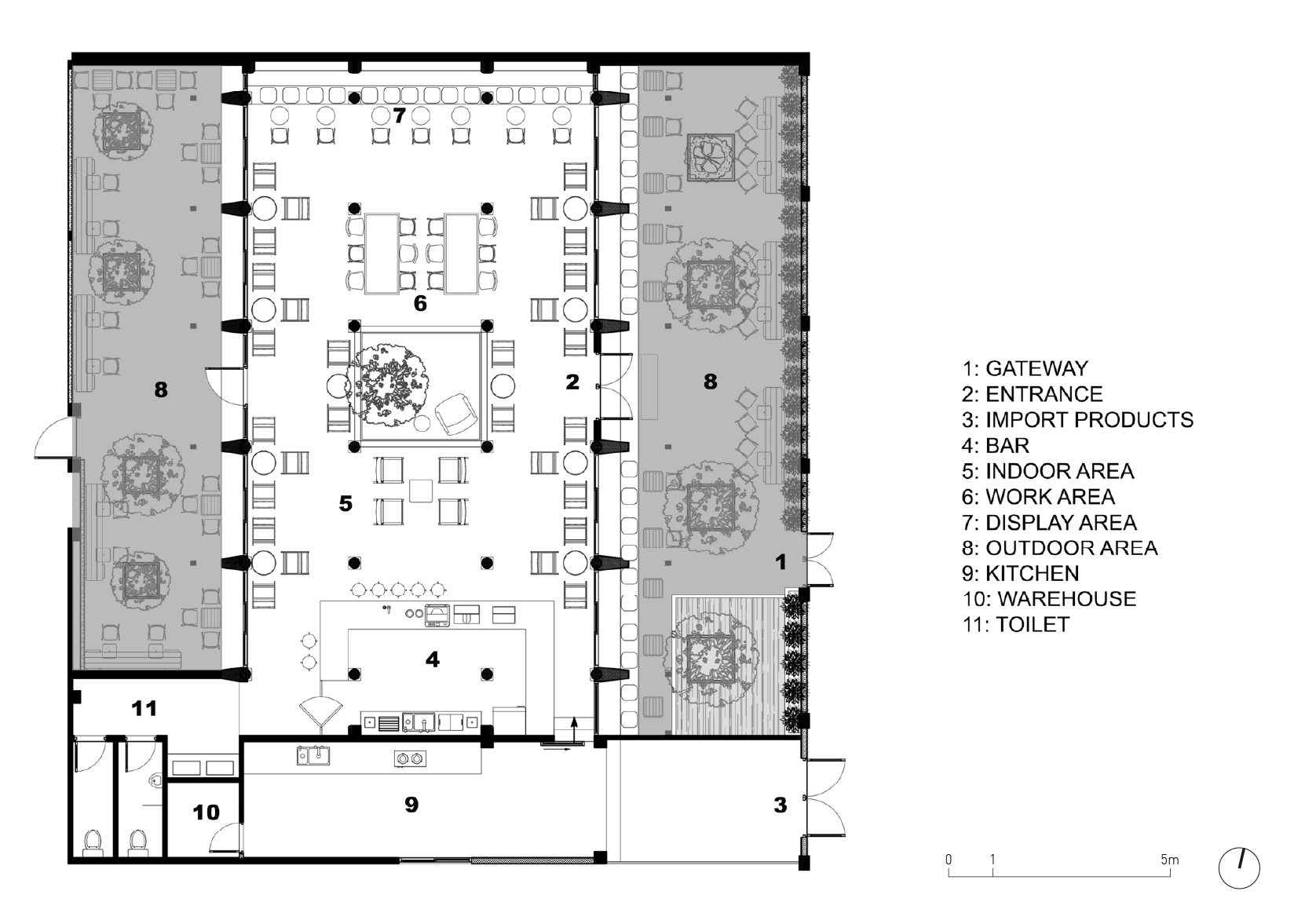
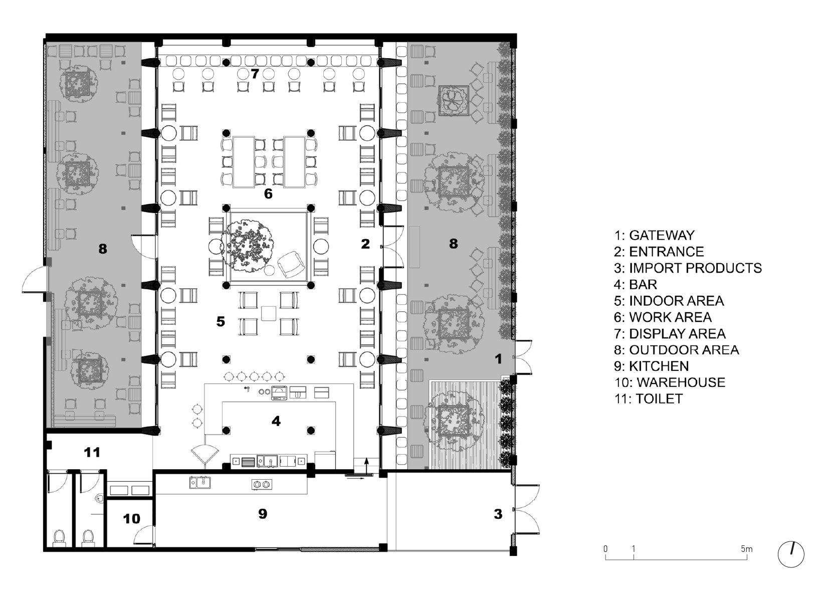
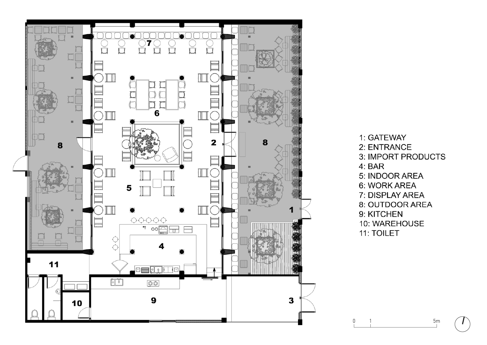
DeHue 구조는 현지 방언으로 "dề Huế"라고 발음한다. 이 프로젝트는 전통적인 건축의 양상을 유지하면서 현대적인 커피숍으로 재구성된 목조 주택이다. 기존 건축물의 기둥, 빔, 지붕 시스템을 그대로 유지하였으며, 오른쪽 코너에 바를 설치하고, 자연광을 들이기 위해 열린 지붕을 추가하며, 전통적인 집과 대비되는 돌로 된 장식 기둥을 사용 했다.



또한, 앞뒤 지붕을 확장한 것은 바다와 건축물이 가까이 있기 때문에 기후 환경에 적응하기 위함이다. 유리 커버링을 사용하여 내부와 주변 정원을 연결하고, 편안한 실내 온도를 유지할 수 있도록 했다. 정원에는 다양한 과일 나무들이 심어져 있다. 내부는 Hue의 여러 다른 집에서 사용했던 목재를 사용하여, 환경 친화적인 접근 방식을 반영하고 있다. 앞마당에는 큰 나무 옆에 작은 연못을 추가하여 온도를 조절하며, 낮아진 울타리는 외부에서 건축물을 더 잘 볼 수 있게 해준다. 이 프로젝트는 Hue의 전통적인 집들이 반드시 고대적이어야 한다는 고정관념에 도전하며, 상징적인 건축 스타일에 대한 현대적인 해석이다.


건축가 손.스튜디오(son.studio)
위치 베트남, 끼앤 장, 락 자
연면적 400㎡
준공 2024
대표건축가 Nguyen Bao Son
디자인팀 Huynh Van Duong
사진작가 Quang Dam
'Architecture Project > Hospitality' 카테고리의 다른 글
| 과거의 나무로 녹음이 진 곳 / 에스티디 디자인 컨설턴트 (0) | 2025.02.11 |
|---|---|
| 제주 사슴책방 / 바이핸드 건축사사무소 (0) | 2025.02.07 |
| The Curciu Fortified Church Ensemble (0) | 2024.08.07 |
| Klein Blue Hills and White Cliff (0) | 2024.07.23 |
| Villa A (0) | 2024.04.29 |
마실와이드 | 등록번호 : 서울, 아03630 | 등록일자 : 2015년 03월 11일 | 마실와이드 | 발행ㆍ편집인 : 김명규 | 청소년보호책임자 : 최지희 | 발행소 : 서울시 마포구 월드컵로8길 45-8 1층 | 발행일자 : 매일



