
Just Loaf Bangalore
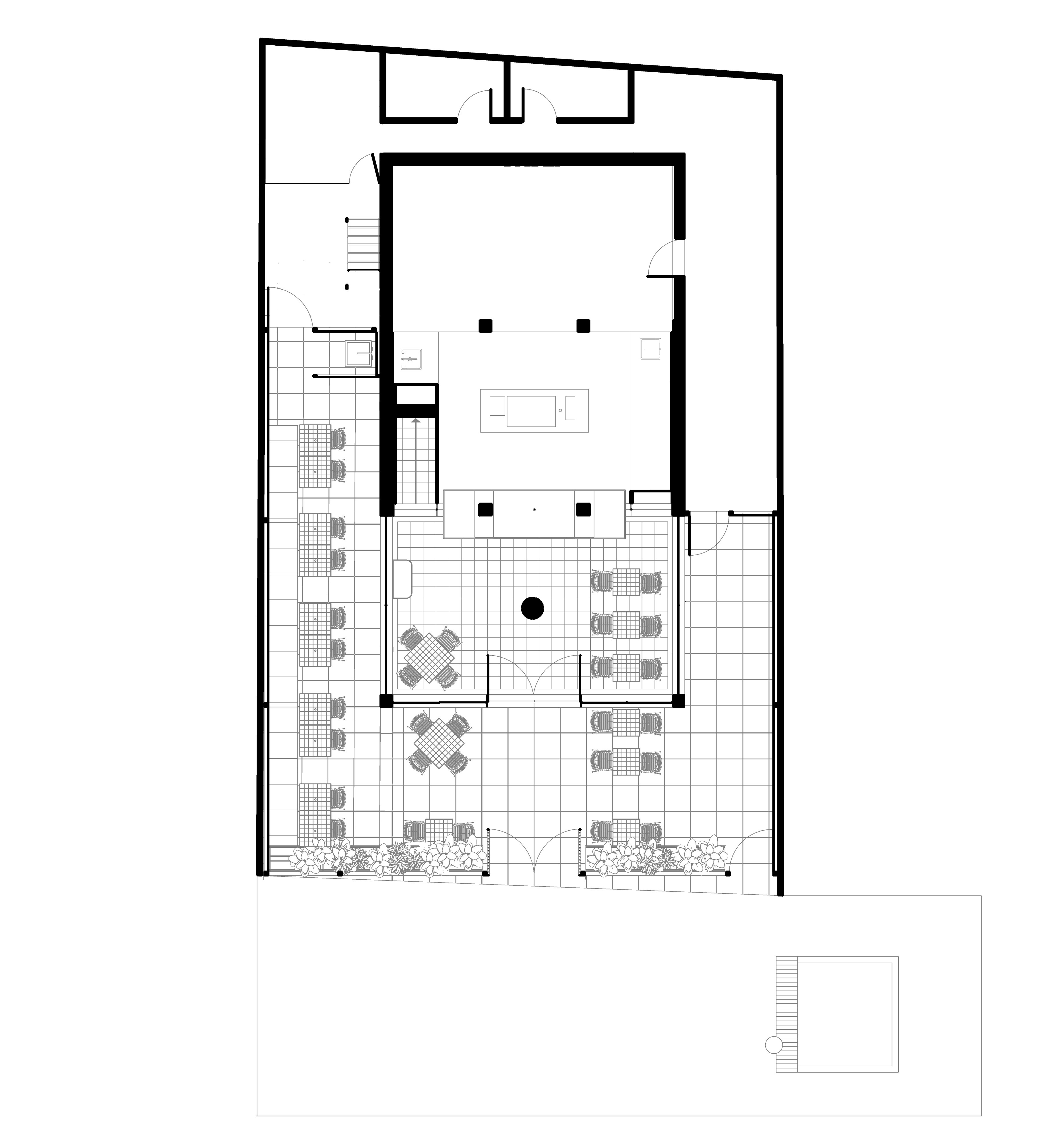
방갈로르 도심 한가운데, 40년 된 콘크리트 건물이 울창한 레인 트리 아래 자리하고 있다. 전형적인 도시와 마찬가지로 건물은 양옆이 다른 건물들로 막혀 있었고, 유일하게 열린 공간은 도로와 하늘뿐이었다. 이러한 조건 속에서 건축가는 부분적으로 높이를 다르게 하여 수직적 확장을 구상했다.

건물 상부에는 유리 지붕을 설치하여 레인 트리의 은은한 빛과 그림자가 실내로 스며들도록 했다. 건물의 구조적 중심이 되는 기둥은 각 층의 커뮤니티 테이블을 연결하며, 건물은 하늘과 거리로 자연스럽게 확장됐다. 건물의 입구는 단순한 출입구를 넘어, 식물이 자라는 완충 지대이자 활성화된 앞마당으로 설계되었다. 1층 발코니 난간은 높은 테이블로 활용되어 거리 풍경을 즐길 수 있는 공간이 되었다.


이 프로젝트는 서빙 공간과 서비스 공간을 명확히 구분했으며, 거울을 활용해 공간이 연속적으로 확장되는 듯한 시각적 효과를 연출했다. 기둥은 단순한 구조적 요소를 넘어, 키치한 디자인과 팝 컬러 조명을 활용해 생동감 있는 분위기를 만든다. 또한, 할로윈같은 축제 기간에는 색상과 패턴이 변하며 공간에 역동적인 변화를 더한다.


색감은 방갈로르의 활기찬 펍 문화를 연상시키며, 흑백 체커보드 타일은 미국식 다이너의 레트로 감성을 불러일으킨다. 한정된 면적 안에서도 소재를 조화롭게 배치해 개방감을 극대화했으며, 유리를 적극 활용해 실내와 실외가 자연스럽게 연결되도록 했다. 자연광은 건물의 가장 낮은 층까지 스며들어, 원래 어둡고 폐쇄적일 수 있는 공간을 환하게 비춘다. 지하층에서도 하늘을 바라볼 수 있도록 설계하여, 빛과 그림자가 시간에 따라 변화하는 과정을 경험할 수 있다.

이곳에서는 레인 트리의 잎사귀가 유리 지붕을 통해 영구적인 전시작품처럼 드리워지며, 빛과 그림자가 끊임없이 변화하는 풍경을 만들어낸다. 이전 프로젝트의 요소들이 이곳에서 새로운 의미를 부여받으며, 카페는 단순한 건축물이 아닌 기억과 경험이 쌓이는 하나의 캔버스로 자리 잡았다.




건축가 코친 크리에이티브 콜렉티브 (Cochin Creative Collective)
위치 인도, 카르나타카, 뱅갈루루
프로젝트면적 2,890㎡
준공 2024.02
디자인팀 Madhushitha CA, Lijo John Mathew, Gopika Ramesh
인테리어 F2F Consultants
사진작가 Syam Sreesylam
'Architecture Project > Hospitality' 카테고리의 다른 글
| 씨삼엘 / 이즈모어앤씨건축사사무소 (0) | 2025.03.21 |
|---|---|
| 미트버리 퍼블릭 하우스 / 더블유오에스 아키텍츠 (0) | 2025.03.21 |
| 산월 / 레이어드 건축사사무소 (0) | 2025.02.28 |
| 과거의 나무로 녹음이 진 곳 / 에스티디 디자인 컨설턴트 (0) | 2025.02.11 |
| 제주 사슴책방 / 바이핸드 건축사사무소 (0) | 2025.02.07 |
마실와이드 | 등록번호 : 서울, 아03630 | 등록일자 : 2015년 03월 11일 | 마실와이드 | 발행ㆍ편집인 : 김명규 | 청소년보호책임자 : 최지희 | 발행소 : 서울시 마포구 월드컵로8길 45-8 1층 | 발행일자 : 매일



