
연남동 미로길 끝자락 이면 주택가에 있었던 기존 건축물은 새로 신축된 주변 건물에 비해 작고 낡은 모습이었다. 주변 건물들은 계속해서 개발되고 있지만, 기존의 연남동 건물은 붉은색 벽돌 마감의 다가구주택으로 사용되고 있었다. 연남동 리모델링 프로젝트(Y22007 PJ)는 대수선 공사를 통해 여러 종류의 음식점과 카페, 사무실 등 다양한 용도를 담을 수 있도록 새롭게 설계됐다.

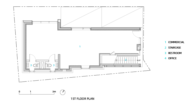
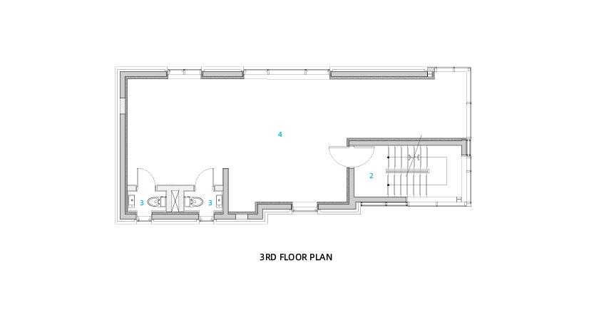
작은 면적이지만 1개 층을 수직 증축하여 공간을 확보했다. 평면은 승강기를 신설하는 대신 각 층의 내부 공간을 최대한 확보하도록 구성됐다. 기존건축물 내력벽을 철거해 내부 공간에 간섭되는 기둥과 보를 최소화하여 공간의 활용성을 높였다. 양쪽 건물 사이에 끼어있는 입지로 인해 발생하는 제약은 커튼 월 디자인으로 정면을 최대한 노출하는 것으로 해결했다.

옥상에는 일조권 사선제한을 피해 가벽 형식의 철골 프레임을 제작했다. 정면의 커튼 월은 때때로 변화하는 주변 풍경을 여러 가지 모습으로 비춰주며 가로의 다양한 모습을 보여주고 있다. 외부 공간과 연계된 4층은 파티룸으로 사용된다. 연남동 리모델링 프로젝트(Y22007 PJ)는 작은 규모로 골목길에 위치해 있지만 다양한 모습을 비추면서 골목의 분위기를 주도하는 매개체가 될 것이다.





위치 서울특별시 마포구 연남동
용도 근린생활시설
대지면적 134.20㎡
건축면적 79.93㎡
연면적 267.86㎡
규모 지상 4층
건폐율 59.56%
용적률 199.60%
설계기간 2022. 4. - 9.
시공기간 2022. 10. - 2023. 6.
준공 2023. 6.
대표건축가 김준석
프로젝트건축가 권용준
디자인팀 박창수, 박기정, 박호형, 오수진
구조엔지니어 (주)푸른구조엔지니어링
기계엔지니어 (주)동신앤공간 엔지니어링
전기엔지니어 (주)동신앤공간 엔지니어링
시공 지음씨엠(주)
발주자 디에이치파인(주)
사진작가 김한빛
'Architecture Project > Other' 카테고리의 다른 글
| 모던클로이스터 / 건축과환경 (0) | 2025.02.11 |
|---|---|
| 부르는 대로 정의 되는 곳 / 라프리마스탄차 (0) | 2025.02.06 |
| 부유하는 지붕과 표류하는 바닥 / 피플 아키텍처 오피스 & 리우 커청 디자인 스튜디오 + 피플스 (0) | 2025.02.05 |
| 성수동 신축 프로젝트(S21020 PJ) / 비에스엔 건축사사무소 (0) | 2025.01.31 |
| 더 피크 성수 / 제로투엔건축사사무소종합건설(주) (0) | 2025.01.24 |
마실와이드 | 등록번호 : 서울, 아03630 | 등록일자 : 2015년 03월 11일 | 마실와이드 | 발행ㆍ편집인 : 김명규 | 청소년보호책임자 : 최지희 | 발행소 : 서울시 마포구 월드컵로8길 45-8 1층 | 발행일자 : 매일



