
Porcelain Factory Plugin Revival
징더전의 황실 가마 역사 지구 중심부에 위치한 옛 도자기 공장 부지의 재생은 PAO가 '플러그인 건축' 접근법이라 부르는 역사 보존과 도시 재생 방식으로 진행됐다. 중국의 '도자기 수도'로 알려진 징더전은 1,000년이 넘는 고대 도자기 생산의 역사를 가지고 있다.



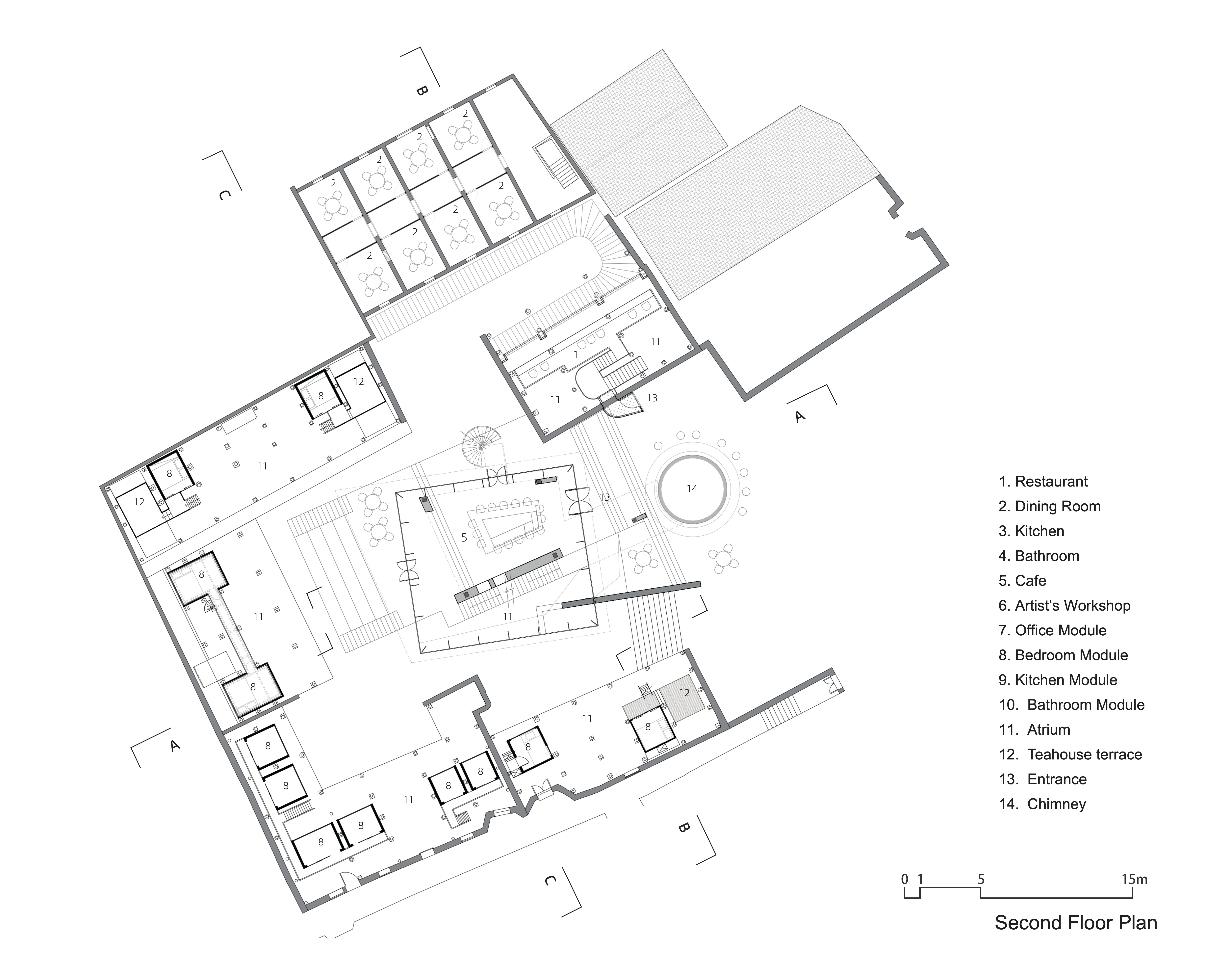
이 프로젝트는 역사적 주변 환경의 중심부와 완벽하게 통합하는 이중 경사 지붕을 얹은 3층 유리 건물이다. 전시 공간과 카페가 있는 이 건축물은 메인 공공 광장의 중요한 앵커 역할을 하며, 역사적 연속성을 존중하면서 현대적 디자인과 조화를 이룬다. 유리 외피의 투명성은 개방감을 주며, 주변의 견고한 전통 건물들과 대비된다. 전통 점토 기와로 덮인 지붕은 투명한 외피 위에 떠 있는 듯하며, 공공 광장을 확장한 것 처럼 보인다.


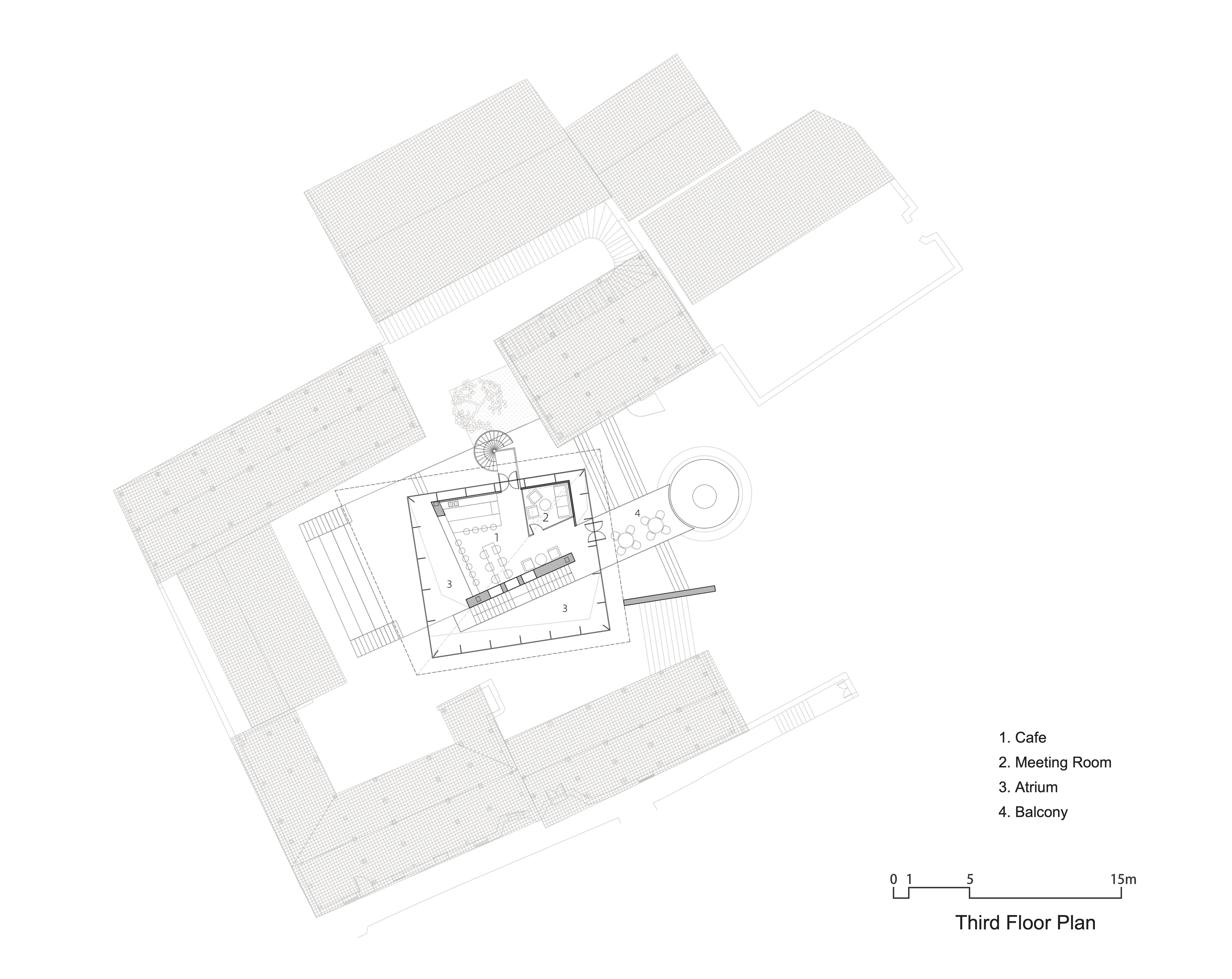
멀리서 보면 이 프로젝트의 지붕은 주변의 점토 기와 지붕들 사이에서 솟아나와 징더전의 전통 건축과 시각적으로 어우러진다. 공공 광장 레벨에서는 중정의 벽돌 포장이 건물 내부로 끊김없이 이어져 실내외 공간의 연결성을 높이고, 옛것과 새것을 잇는다. 벽돌 포장은 공공 광장과 중정 사이의 높이 차이를 수용하며 벤치로도 사용할 수 있다. 아래쪽과 광장 반대편에서는 배럴 볼트형 벽돌 공간이 건물 기초부의 외관을 만들어 역사적 맥락에 뿌리를 내린다. 3층에서는 발코니가 기존 굴뚝을 향해 뻗어나가 통일된 구성을 완성하고, 건물과 역사적 환경을 연결한다. 유리 건물의 세 면을 둘러싼 새로운 레스토랑과 오래된 도자기 공방은 플러그인 건축 접근법을 통해 활성화됐다. 원래의 목재와 벽돌 구조는 그대로 유지하면서 새로운 건축적 삽입으로 필요에 맞게 오래된 건물들을 업그레이드했다. 내부에서 이러한 모듈은 숙소, 사무실, 회의실로 디자인 됐다. 주방과 욕실 모듈은 새로운 기능을 더한다. 계단과 통로는 공간을 연결하고, 공간활용을 극대화하기 위해 내외부에 삽입됐다. 중정 공간으로 접근성을 높이기 위해 하나의 건물을 회전시켜 두 개의 원래 중정을 하나로 통합했다. 이런 재구성은 공공 광장과 유리 건물에서 중정 내부로의 접근을 가능하게 해 전체 단지를 하나로 연결시킨다.







건축가 피플 아키텍처 오피스 & 리우 커청 디자인 스튜디오 + 피플스(Liu Kecheng Design Studio + People’s)
위치 중국, 징더전
대표건축가 Liu Kecheng, Xiao Li
프로젝트건축가 Yuan Yingzi, Zhang Meng
디자인팀 Yang Quanyue, Yang Qian, Huang Liying, Zhang Mengyuan, Zhou Shimin, Han Xiao, Liu Yixin, Wang He, Wen Hao, Jiang Ying, Liu Yifeng
구조디자이너 Liu Su/Beijing Shouan Architectural Structure Studio
발주자 Jingdezhen Ceramic Culture Tourism Group
사진작가 Zhu Yumeng, People’s Architecture Office
'Architecture Project > Other' 카테고리의 다른 글
| 부르는 대로 정의 되는 곳 / 라프리마스탄차 (0) | 2025.02.06 |
|---|---|
| 연남동 리모델링 프로젝트 / 비에스엔 건축사사무소 (0) | 2025.02.06 |
| 성수동 신축 프로젝트(S21020 PJ) / 비에스엔 건축사사무소 (0) | 2025.01.31 |
| 더 피크 성수 / 제로투엔건축사사무소종합건설(주) (0) | 2025.01.24 |
| 더블유-미션 본사 / 베트 본트치오 린 아르히테크츠 + 조병수건축연구소 (0) | 2025.01.23 |
마실와이드 | 등록번호 : 서울, 아03630 | 등록일자 : 2015년 03월 11일 | 마실와이드 | 발행ㆍ편집인 : 김명규 | 청소년보호책임자 : 최지희 | 발행소 : 서울시 마포구 월드컵로8길 45-8 1층 | 발행일자 : 매일



