
더 피크 성수는 하루가 다르게 변화하는 성수동에 위치한 작은 대지에 자리 잡았다. 최대 용적률 400% 개발이 가능한 준공업지역이지만 제한적인 사항들에 의해 최대 개발 대신 적정 규모 산정이 중요했다. 대지 특성상 지상 1층의 전략이 매우 중요했다.


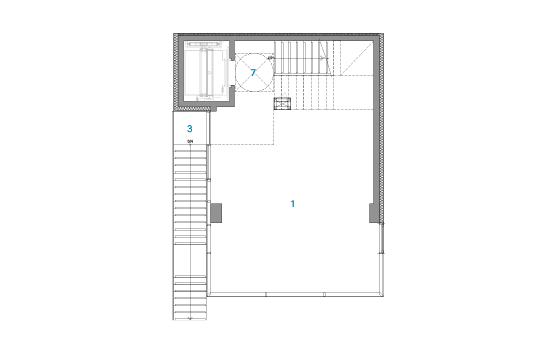
보행자 접근성을 고려한 저층부 계획으로 코어를 후면에 배치하여 건물의 전용률과 정면성을 최대로 확보했다. 외부 계단을 별도로 마련해 지상과 연결하고, 외부 계단에 의해 셋백된 공간을 인접 건물의 조경을 활용하여 조망을 확보하도록 서측 변에 배치했다. 내부는 투시형이 아닌 골조 난간으로 개방형 공용실과 전용실 영역과 구분 짓고 추후 임대 방향에 따라 가변적으로 활용할 수 있다. 지상 5층 규모의 기본적인 평면 형태는 온전한 전용 공간을 가질 수 있도록 범용성을 높였다.

저층부의 차량과 보행 동선에 의해 좌우 너비가 달라지는 공간을 특수구조로 풀었다. 저층부 트랜스퍼 구간은 곡선의 디테일을 더해 수직적 개방감이 강조된다. 기준층 슬라브도 특수구조를 활용해 전면으로 확장했다. 개방감 있는 유리 커튼 월에 의해 구조체가 떠 있는 형상을 극적으로 보여준다. 사방의 가시성 높은 후면부는 매시브한 입면으로 정체성을 형성한다. 전면부는 개방감 있는 커튼 월을 통해 도시와 상호적 관계성을 맺고, 대비되는 입면 재료의 조화는 복잡한 도심 속 하나의 단일한 풍경을 만든다.


외장재의 거친 질감의 텍스처는 시간대에 따른 태양 빛에 의해 다양한 표정을 만들어 낸다. 질감을 자연스럽게 노출시킴으로써 변화하는 구조의 유기적인 형태를 곡선의 디테일과 외장재로 극대화하여 협소한 내부 공간에서는 개방감을, 외부에서는 깊이감을 만든다.




건축가 제로투엔건축사사무소종합건설(주) (ZERO TO N)
위치 서울특별시 성동구 성수동 1가 656-1094
용도 근린생활시설
대지면적 102.00㎡
건축면적 61.20㎡
연면적 288.20㎡
규모 지상 5층
건폐율 60.00%
용적률 282.55%
설계기간 2023. 5. - 11.
시공기간 2023. 11. - 2024. 6.
준공 2024. 6.
대표건축가 임지환
프로젝트건축가 정다연
디자인팀 제로투엔건축사사무소종합건설(주)
구조엔지니어 라임구조엔지니어링
기계엔지니어 (주)선이엔지
전기엔지니어 (주)선이엔지
시공 제로투엔건축사사무소종합건설(주)
발주자 피에스티(주)
사진작가 정희석
해당 프로젝트는 건축문화 2025년 1월호(Vol. 524)에 게재되었습니다.
The project was published in the November, 2025 recent projects of the magazine(Vol. 524).
January 2025 : vol. 524
Contents : RECORDS : COMPETITION : BOOKS : RECENT PROJECT Toegye-dong Community Center / ZANGINSOO.ARCHITECTS + SIMMI ARCHITECTURE & ENGINEERING퇴계동 행정복지센터 / 장인수건축사사무소 + 심미건축사사무소 Kanagawa De
anc.masilwide.com
'Architecture Project > Other' 카테고리의 다른 글
| 부유하는 지붕과 표류하는 바닥 / 피플 아키텍처 오피스 & 리우 커청 디자인 스튜디오 + 피플스 (0) | 2025.02.05 |
|---|---|
| 성수동 신축 프로젝트(S21020 PJ) / 비에스엔 건축사사무소 (0) | 2025.01.31 |
| 더블유-미션 본사 / 베트 본트치오 린 아르히테크츠 + 조병수건축연구소 (0) | 2025.01.23 |
| 필로미 빌딩/ 소수건축사사무소 (0) | 2025.01.22 |
| 에메랄드 스크린 퍼걸러 / 우토피아 랩 (0) | 2025.01.20 |
마실와이드 | 등록번호 : 서울, 아03630 | 등록일자 : 2015년 03월 11일 | 마실와이드 | 발행ㆍ편집인 : 김명규 | 청소년보호책임자 : 최지희 | 발행소 : 서울시 마포구 월드컵로8길 45-8 1층 | 발행일자 : 매일



