
양평의 작은 마을 길을 따라 걸으면 시골집 사이로 높은 노출 콘크리트 건축물이 시야에 들어온다.

곧게 뻗은 직육면체의 매스와 최상층의 독특한 사선 벽체는 건물의 용도와 구조적 기능에 대한 궁금증을 불러일으키며 시선을 자연스럽게 사로잡는다. 모던클로이스터는 클래식 음악을 전공하고 오랜 기간 음악에 대한 이상적인 공간을 고민해 온 건축주를 위한 공간이다.

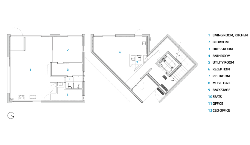
모던클로이스터의 가장 중심이 되는 공간은 2층의 음악당이다. 오디오 역사상 가장 아름다운 스피커로 불리는 ‘JBL 파라곤(Paragon)’ 스피커가 음악당 가운데 자리 잡고 있다. 건축주는 ‘JBL 파라곤 (Paragon)’ 스피커를 중심으로 음악을 향유할 수 있는 공간을 원했고, 이에 따라 건축가는 스피커를 음악당의 공간 요소로써 해석했다.

음악당을 들어오면 가장 먼저 보이는 것은 스피커와 그 위의 거대한 송판 무늬 노출 콘크리트 벽체다. 음악당의 벽체는 아름다운 곡선 형태의 스피커처럼 곡선 형태로 만들어진 디자인 요소이자 객석에 소리를 고르게 전달하는 역할을 한다. 내부는 7.5m의 높은 천장고를 가지고 있으며, 사선으로 배치된 기둥 사이로 길게 뻗은 유리창을 통해 다양한 빛의 모습을 볼 수 있다. 사선 기둥은 건물의 삼면에 모두 창호를 사용할 수 있도록 구조적으로 건물을 지지하며, 동시에 소리를 적절하게 반사하여 풍부한 음향을 경험할 수 있는 공간을 만드는 역할을 한다. 내부에서 파생된 사선 기둥은 외부로 확장되며 디자인적인 통일성을 부여한다. 이러한 공간 요소들은 사용자가 쉼과 명상을 통해 내면의 소리를 마주할 수 있는 특별한 공간을 만든다.







건축가 건축과환경(CNE)
위치 경기도 양평군 서종면 수능리
대지면적 496.00㎡
건축면적 198.35㎡
연면적 494.23㎡
규모 지상 4층
건폐율 39.99%
용적률 99.64%
준공 2024. 4.
대표건축가 홍성철
프로젝트건축가 이건욱, 성지아
사진작가 김진철
해당 프로젝트는 건축문화 2025년 2월호(Vol. 525)에 게재되었습니다.
The project was published in the November, 2025 recent projects of the magazine(Vol. 525).
February 2025 : vol. 525
Contents : COMPETITION : BOOKS : RECENT PROJECT Y22007 PJ_012 / BSN ARCHI.연남동 리모델링 프로젝트 / 비에스엔 건축사사무소 GD House / Adarq - André David Arquitecto지디 하우스 / 아다르크 - 안드레 다비
anc.masilwide.com
'Architecture Project > Other' 카테고리의 다른 글
| 트리폴리스 파크/ 엠브이알디브이 (0) | 2025.02.24 |
|---|---|
| 푸른 도화지에 붉은 점으로 일상의 끝을 맺으며 / 시구르드 라센 (0) | 2025.02.20 |
| 부르는 대로 정의 되는 곳 / 라프리마스탄차 (0) | 2025.02.06 |
| 연남동 리모델링 프로젝트 / 비에스엔 건축사사무소 (0) | 2025.02.06 |
| 부유하는 지붕과 표류하는 바닥 / 피플 아키텍처 오피스 & 리우 커청 디자인 스튜디오 + 피플스 (0) | 2025.02.05 |
마실와이드 | 등록번호 : 서울, 아03630 | 등록일자 : 2015년 03월 11일 | 마실와이드 | 발행ㆍ편집인 : 김명규 | 청소년보호책임자 : 최지희 | 발행소 : 서울시 마포구 월드컵로8길 45-8 1층 | 발행일자 : 매일



