
La Grange Rouge
오베르뉴의 울창한 숲, 그리고 언덕 정상에 자리한 라 그랑 루즈는 화산 지대 한가운데 있는 특별한 휴양지다. 오랜 역사를 간직한 이곳은 원래 헛간이었지만, 리모델링을 거쳐 모임과 휴식을 위한 공간으로 새롭게 태어났다.

라 그랑 루즈는 마치 연극 무대처럼 설계되었으며, 매일 저녁 자연이 펼치는 장대한 공연의 무대가 된다. 정상에 자리한 집에서는 탁 트인 파노라마 전망이 펼쳐지며, 특히 서쪽 계곡을 향한 일몰은 황금빛과 붉은빛이 어우러져 황홀한 풍경을 감상할 수 있다. 기존 헛간의 강철 골조는 그대로 유지하되, 붉은색으로 칠했다. 이 색은 해질녘 하늘에서 영감을 받은 것으로, 집 전체에 따뜻한 분위기를 더하며 주변의 푸른 자연과 조화를 이룬다.




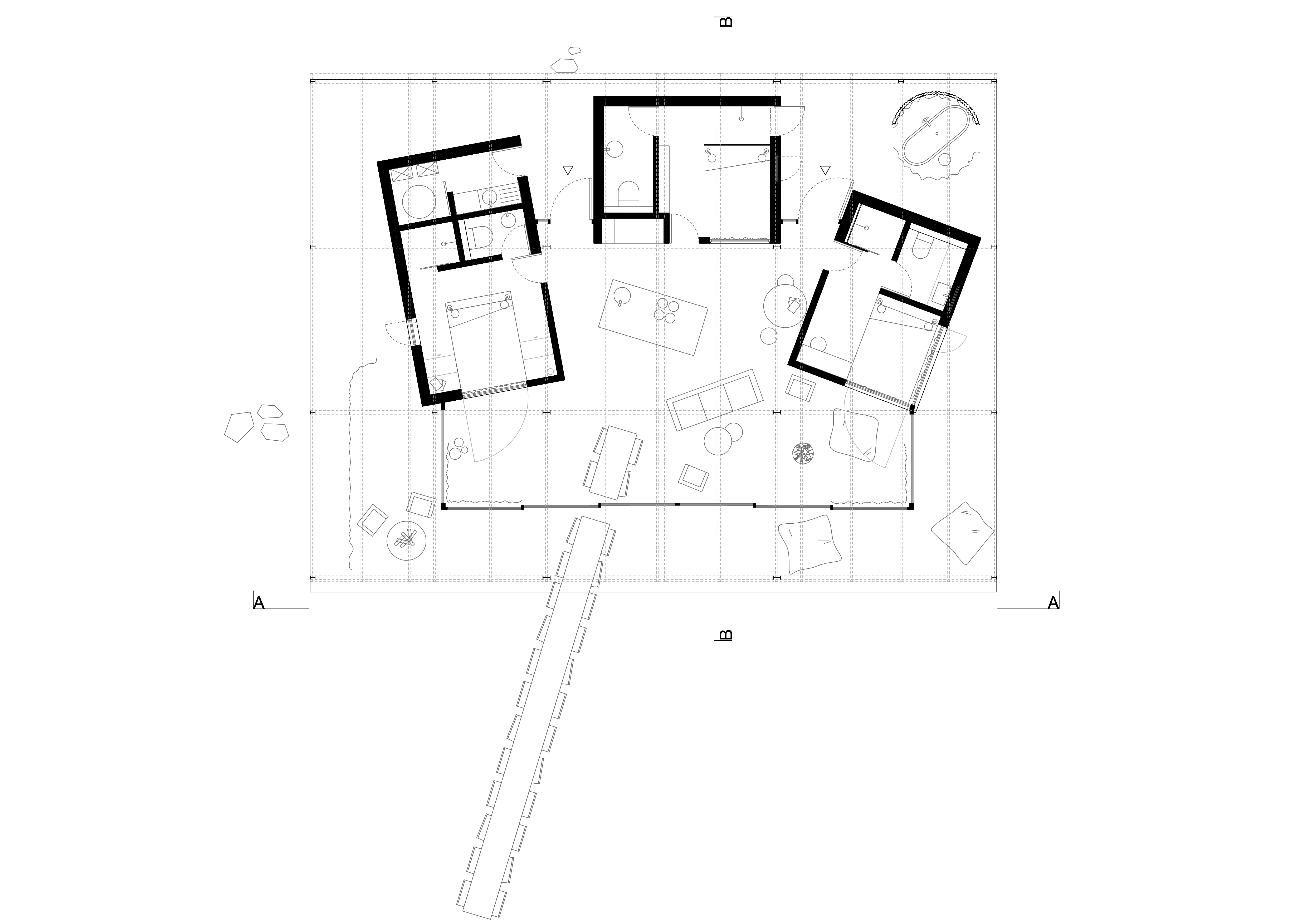
이 프로젝트의 세 개의 침실은 각각 독립된 작은 집처럼 보인다. 각 침실은 이용자에게 안식처가 되어 주며, 침대에 누운 채로도 계곡의 경이로운 풍경을 감상할 수 있도록 배치되었다. 개인 공간 사이에는 마치 작은 마을 광장처럼 공용 공간이 자리 잡고 있다. 서로 다른 개인 공간들을 자연스럽게 연결하며 모두가 함께 서쪽 지평선을 가득 채우는 장대한 풍경을 감상할 수 있도록 했다. 주방은 공용 공간의 중심 역할을 하며 다이닝 테이블은 자연을 향해 길게 뻗어 있어 식사 시간에 자연 속 으로 빨려들어가는 듯 한 경험을 할 수 있다. 이 집의 가장 독특한 요소 중 하나는 지붕 처마 아래 마련된 야외 욕조다. 투숙객들은 아침 햇살을 맞으며 여유로운 목욕을 즐길 수도 있고, 차가운 겨울 공기를 맞으며 온수에 몸을 담글 수도 있다. 계절에 상관없이 자연과 연결되는 특별한 순간을 선사하는 공간이다.

붉게 빛나는 집의 강렬한 색감과 울창한 초록빛 자연이 이루는 대비는 더욱 인상적인 시각적 효과를 만들어 내며, 두 요소가 서로의 아름다움을 돋보이게 한다. 라 그랑 루즈는 자연의 아름다움과 지역의 유산을 기념하기 위해 세심하게 설계되었다. 고요한 휴식을 원하는 이들에게 완벽한 도피처가 되어 주며, 숨 막히는 풍경과 함께 시간을 초월한 오베르뉴의 자연과 깊이 연결될 수 있는 공간을 제공한다.



'Architecture Project > Other' 카테고리의 다른 글
| 드 팔렌시아 / 프르포 로드리게스 & 오리올 (0) | 2025.02.27 |
|---|---|
| 트리폴리스 파크/ 엠브이알디브이 (0) | 2025.02.24 |
| 모던클로이스터 / 건축과환경 (0) | 2025.02.11 |
| 부르는 대로 정의 되는 곳 / 라프리마스탄차 (0) | 2025.02.06 |
| 연남동 리모델링 프로젝트 / 비에스엔 건축사사무소 (0) | 2025.02.06 |
마실와이드 | 등록번호 : 서울, 아03630 | 등록일자 : 2015년 03월 11일 | 마실와이드 | 발행ㆍ편집인 : 김명규 | 청소년보호책임자 : 최지희 | 발행소 : 서울시 마포구 월드컵로8길 45-8 1층 | 발행일자 : 매일



