
Edu Step
높은 건물 하나 없이 전면으로 두류산의 산세가 펼쳐지는 경사진 대지 그리고 과거엔 군인들로 북적이던 이 곳에는 자연경사에 순응한 스카이라인과 많은 외부공간이 전면의 산세를 향해 열려 있는 랜드스케이프형 매스가 요구된다.
또한 턱없이 부족한 도서관과 단 두 곳의 학원이 있는 사내면 내에서 초등학생부터 고등학생까지 다양한 연령대의 학생들이 마음껏 공부할 수 있도록 학년별 시설의 적절한 분리와 아이들 간의 학습교류를 위한 교육 커뮤니티 공간이 있어야 한다.
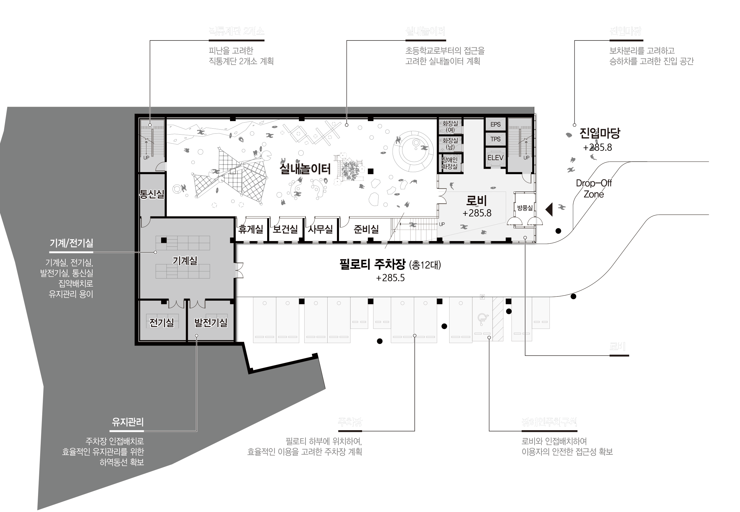
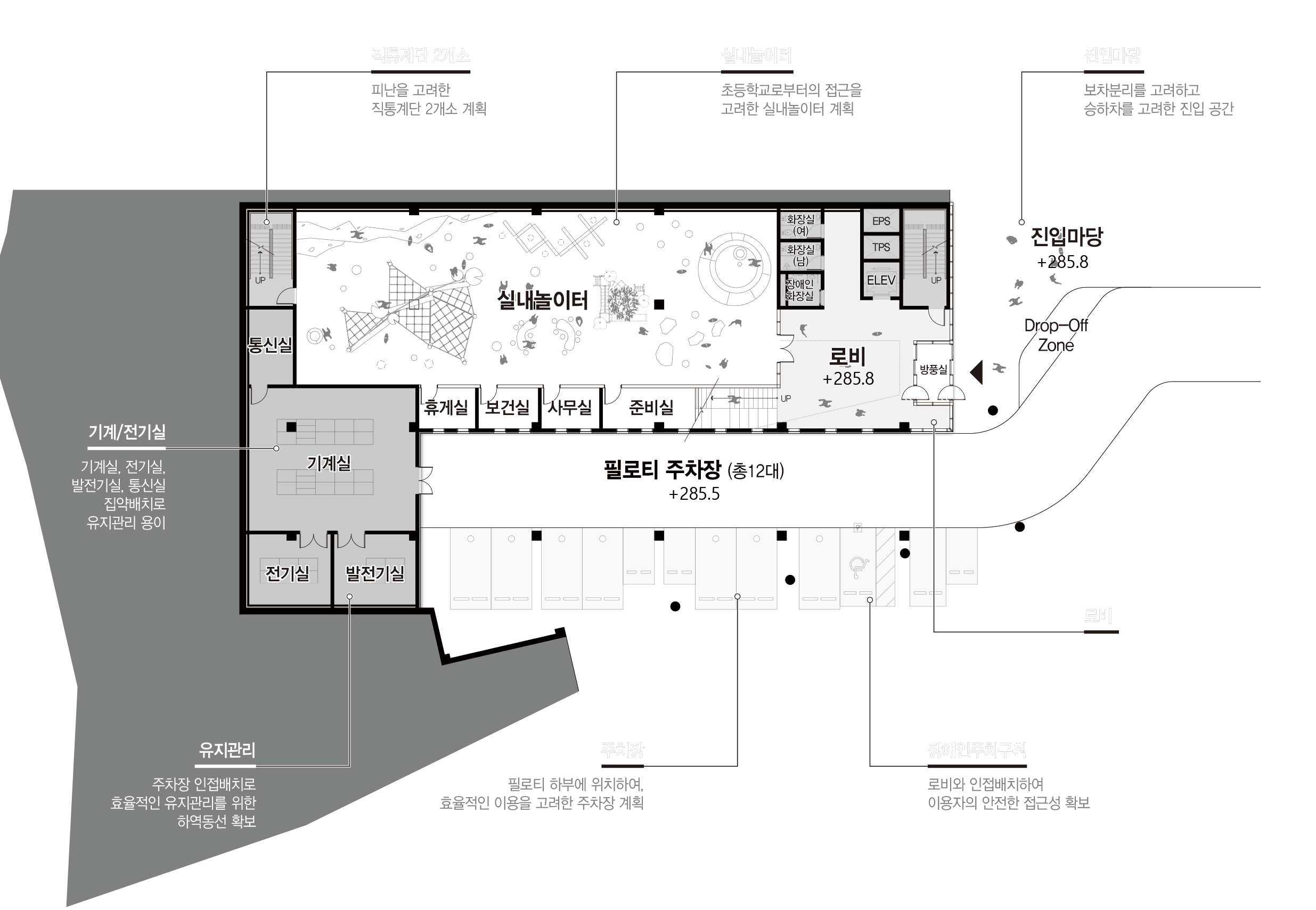
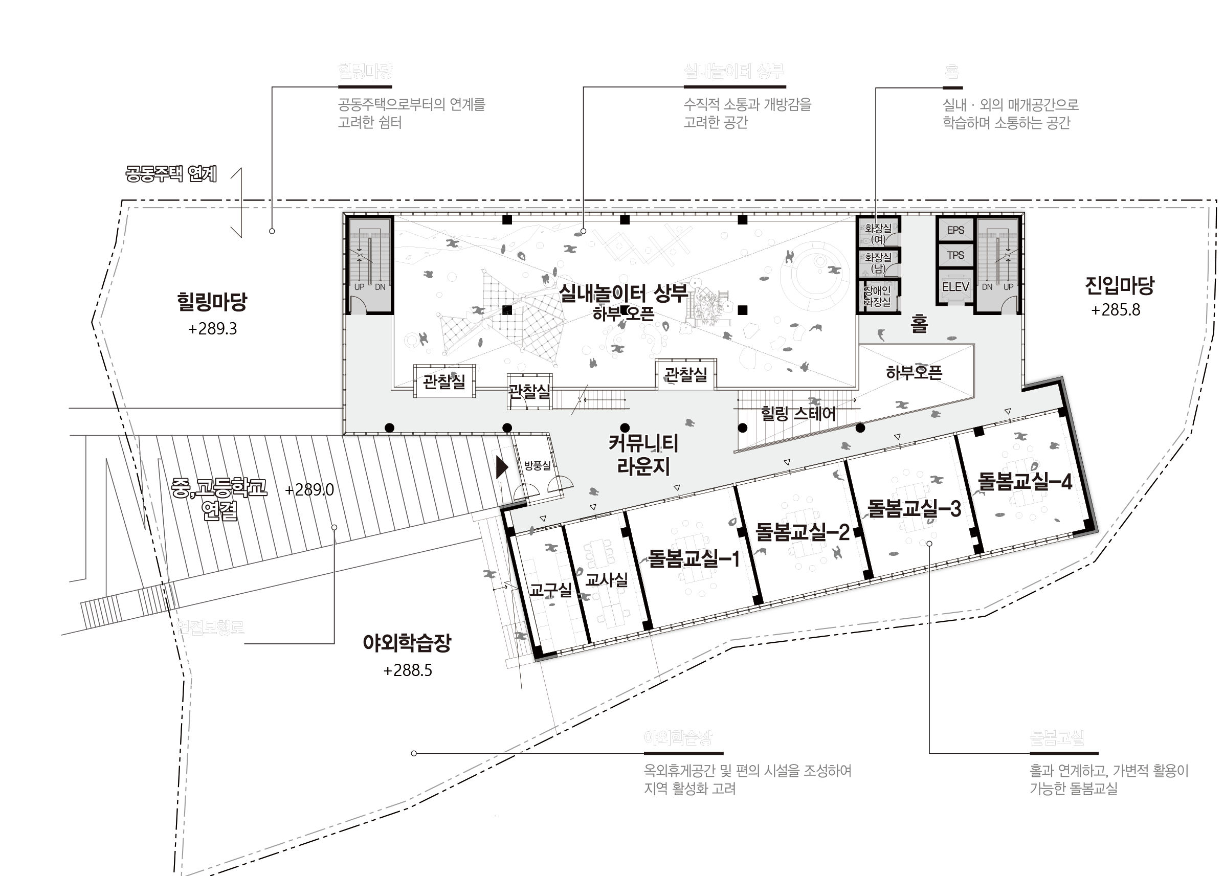
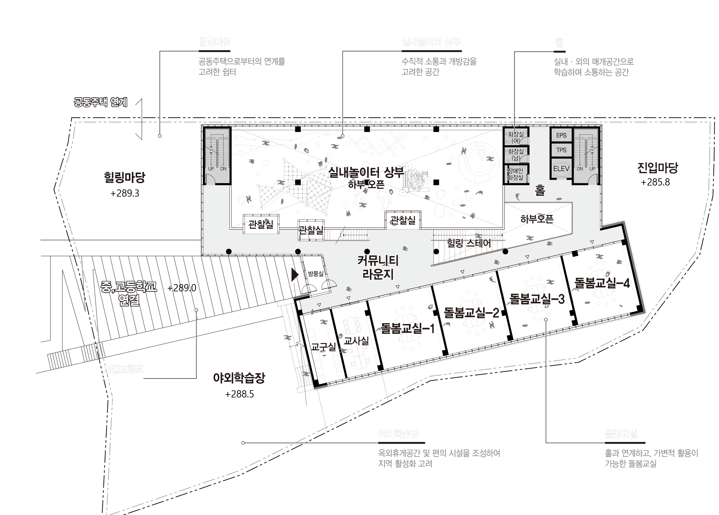
따라서, 아이들 연령에 맞게 분리된 프로그램을 서로 다른 레벨과 접근 동선에 따라 배치하였다. 상상력과 창의력이 필요한 초등학생의 돌봄교실은 다양한 외부공간과 함께 저층부에 배치하고, 정숙한 환경이 필요한 중,고등학생의 학습공간은 상층부에 배치하였다. 중심에는 내,외부공간을 입체적으로 연결하여 사내면의 모든 아이들이 마음껏 공부하고 서로 소통할 수 있는 에듀스텝을 제안한다.






사내교육커뮤니티센터 건립 신축공사 기본 및 실시설계용역
당선작_㈜테이블오건축사사무소
대지면적 2,301㎡
건축면적 1,026.10㎡
연면적 2,610.09㎡
규모 지하 1층, 지상3층 (최고높이 11.85m)
건폐율 자연녹지지역 18.79%, 준공업지역 64.43%
용적률 자연녹지지역 68.78%, 준공업지역 147.76%
주차개요 12대
대표건축가 현재호
발주자 화천군
'Plans' 카테고리의 다른 글
| 이천시 통합보훈회관 건립 설계공모 _ 3등작 / (주)슬로프트건축사사무소 (0) | 2024.12.19 |
|---|---|
| 이천시 통합보훈회관 건립 설계공모 _당선작 / (주) 엠아이디건축사사무소 (0) | 2024.12.18 |
| 서구 보훈회관 건립 건축설계공모 _ 당선작 / 건축사사무소 씨마 (0) | 2024.12.16 |
| 사천시 혁신지원센터 구축사업 설계공모 _ 당선작 / (주)무위건축사사무소 (2) | 2024.12.12 |
| 서초 성뒤마을 공공주택지구(A1) 건축설계공모 _ 당선작 / (주)시아플랜건축사사무소 (0) | 2024.12.11 |
마실와이드 | 등록번호 : 서울, 아03630 | 등록일자 : 2015년 03월 11일 | 마실와이드 | 발행ㆍ편집인 : 김명규 | 청소년보호책임자 : 최지희 | 발행소 : 서울시 마포구 월드컵로8길 45-8 1층 | 발행일자 : 매일



