
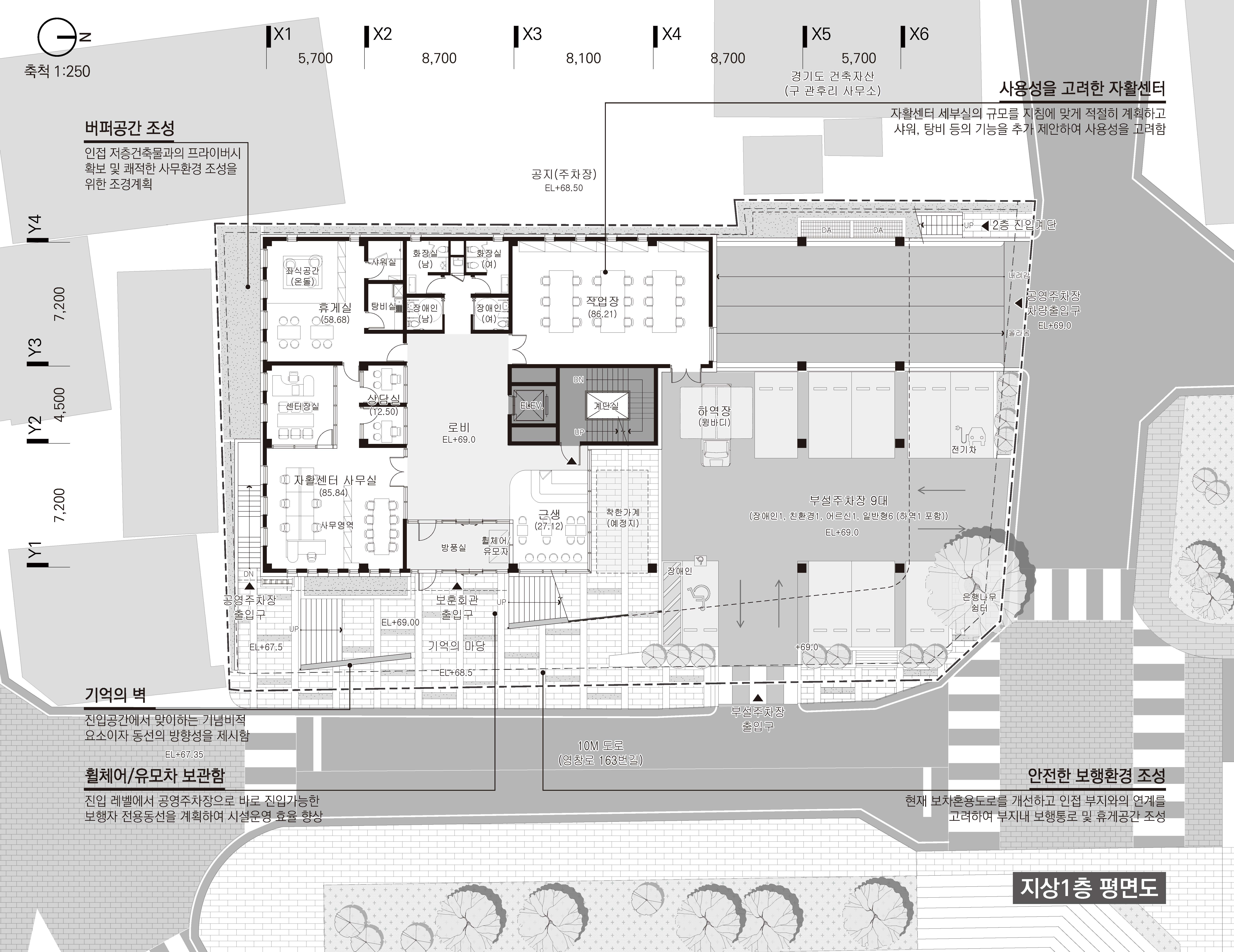
대지는 이천의 구 도심지에 위치하며 창전동 행정복지센터 예정지와 10M 도로를 마주하고 있으며, 대상지에 담아 내어야 할 프로그램은 보훈센터(노유지시설, 자활센터)와 공영주차장으로 이용자와 차량(부설주차장 및 공영주차장)의 안전한 보차분리를 우선으로 했다. 동측 10M 도로와 면하여 진입광장을 형성, 남측에서의 대중교통을 이용한 보행자와 횡단보도에서의 보행흐름을 유입하도록 하였으며 대지 내 북측에 부설주차장과 공영주차장의 진입동선을 계획하여 안전한 보차환경을 조성하고자 하였다.
매스는 상징성 및 정면성 확보를 위하여 전면 10M 도로와 대응하며 남북측 긴 매스를 계획하여 자활센터, 시민 개방공간, 보훈센터의 순서로 적층하여 이용자에 따른 기능적 분리를 하였다. 보훈회관의 진입부로써 차분한 기단부의 solid함을 강조한 매스, 중심부는 시설이용객/ 지역주민들에게 열린 공간으로 분절된 매스, 상층부는 보훈회관의 기능적 공간으로써 상징적인 매스로 계획하였다.
통합보훈회관의 아이덴티티를 위하여 과거, 현재, 미래가 쌓인 시간의 층위를 기본 컨셉으로 담아내고자 하였다. 각 시설의 이용군을 파악하여 명확한 층별 조닝을 하고 주민 공동영역을 버퍼존으로 하여 각각의 주 영역이 분리되어 보일 수 있게 하였다. 기억/ 세월/ 희생정신이 세대를 거듭할수록 쌓이고 쌓여감을 수평적 요소를 통해 표현되어지도록 하였고, 재료 질감을 통해 수평/ 수직성을 반복적으로 적층함으로써 다양한 세월의 흔적이 쌓여감을 표현하고자 하였다. 진입마당에서 2층으로 연결된 외부 수직동선은 세월의 흔적을 관통하여 자연스럽게 흘러 들어감을 표현하고자 하였다. 대지 진입 마당에 시설이용객/ 지역주민들의 추모와 치유를 위한 공간을 계획하고 주민개방영역 내에 추모관을 배치하여 기억의 벽-기억의 마당-자유의 계단-추모기념관으로 이어지는 문화와 교류가 함께하는 보훈공간을 계획하였다. 또한 다목적강당, 회의실의 가변적 공간계획 및 내외부 확장공간을 통하여 다양한 상황에 따라 시민들과 이용자들의 다목적 활용이 가능하도록 유연한 공간계획을 하고자 하였다.


이천시 통합보훈회관 건립 건축 설계공모
3등작_(주)슬로프트건축사사무소
대지면적 1,252.40㎡
건축면적 672.02㎡
연면적 2,529.59㎡
규모 지하 1층, 지상 4층 (최고높이 17.7m)
건폐율 53.66%
용적률 131.34%
주차개요 31대
대표건축가 신명숙
발주자 경기도 이천시
'Plans' 카테고리의 다른 글
| 개봉1동 어울림복합플랫폼 설계공모 _ 당선작 / (주)건축사사무소 스튜디오 뮤트 + Studio M.U.Te. (0) | 2024.12.23 |
|---|---|
| 중앙동행정복지센터 이전 건립 건축설계공모 _ 당선작 / (주)더에이치디자인건축사사무소 (0) | 2024.12.20 |
| 이천시 통합보훈회관 건립 설계공모 _당선작 / (주) 엠아이디건축사사무소 (0) | 2024.12.18 |
| 사내교육커뮤니티센터 건립 설계공모 _ 당선작 / ㈜테이블오건축사사무소 (0) | 2024.12.17 |
| 서구 보훈회관 건립 건축설계공모 _ 당선작 / 건축사사무소 씨마 (0) | 2024.12.16 |
마실와이드 | 등록번호 : 서울, 아03630 | 등록일자 : 2015년 03월 11일 | 마실와이드 | 발행ㆍ편집인 : 김명규 | 청소년보호책임자 : 최지희 | 발행소 : 서울시 마포구 월드컵로8길 45-8 1층 | 발행일자 : 매일



