
Context Relation (주변과 관계맺기)
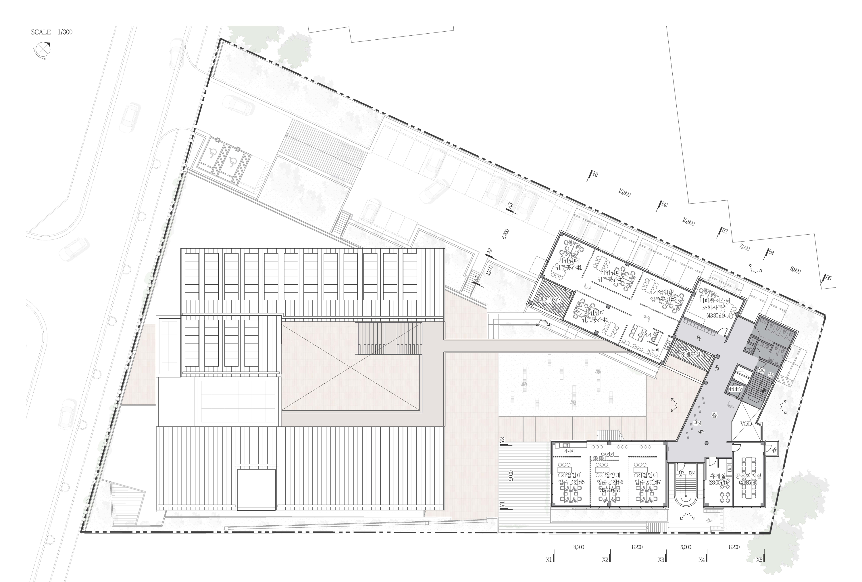
사천 제2산단 내에 건립될 혁신지원센터는 인접한 건축물과 자연환경, 주변환경 속 관계맺기를 통하여 단지의 마스터플랜을 완성하고, 장소의 공간적 활용을 극대화 한다. 비움공간을 확장하여 개방적이고 경쾌한 외부공간을 함께 공유하고, 기존건축물을 존중한 배치계획은 혁신지원센터의 독립적인 정체성이 아닌 마스터플랜의 완결성을 중요시한다.

'열린공간을 품은 혁신지원센터'
혁신지원센터의 맞이공간인 '교류마당'은 열린 야외공간으로서 대상지의 활력과 에너지를 품고있다. 혁신지원센터를 배경삼아 다양한 시각적교류와 휴식이 가능한 공간이다.
'복합문화센터와의 관계설정'
복합문화센터의 중정(비움공간)을 확장하여 사이트의 개방적이고 경쾌한 외부공간을 함께 공유한다. 기존건축물(사천제2산단 복합문화센터)을 존중한 배치계획은 혁신지원센터의 독립적인 정체성이 아닌, 마스터플랜의 어우러짐을 중요시한다.
'다양한 시각적 관계'
다양한 높이에서 이루어지는 시각적관계는 내외부공간의 활력을 더한다. 방지공원으로 향하는 시야는 시각적 막힘이 없어 공용공간을 가볍게 만들고, 내외부공간에서 다양한 장면을 만들어준다.





사천시 혁신지원센터 구축사업 설계공모
당선작_㈜무위건축사사무소, 엠플레이건축
대지면적 5,188㎡
건축면적 2,179.09㎡
연면적 3,348.79㎡
규모 지상3층 (최고높이 16.20M)
건폐율 40.00%
용적률 64.55%
주차개요 39대
대표건축가 서정석, 김태윤
발주자 사천시
'Plans' 카테고리의 다른 글
| 사내교육커뮤니티센터 건립 설계공모 _ 당선작 / ㈜테이블오건축사사무소 (0) | 2024.12.17 |
|---|---|
| 서구 보훈회관 건립 건축설계공모 _ 당선작 / 건축사사무소 씨마 (0) | 2024.12.16 |
| 서초 성뒤마을 공공주택지구(A1) 건축설계공모 _ 당선작 / (주)시아플랜건축사사무소 (0) | 2024.12.11 |
| 서울강북우체국 건립공사 설계용역 _ 4등작 / 제이오에이 건축사사무소 (0) | 2024.12.10 |
| 서울강북우체국 건립공사 설계용역 _ 당선작 / (주)건축사사무소 티오피 (0) | 2024.12.09 |
마실와이드 | 등록번호 : 서울, 아03630 | 등록일자 : 2015년 03월 11일 | 마실와이드 | 발행ㆍ편집인 : 김명규 | 청소년보호책임자 : 최지희 | 발행소 : 서울시 마포구 월드컵로8길 45-8 1층 | 발행일자 : 매일



