
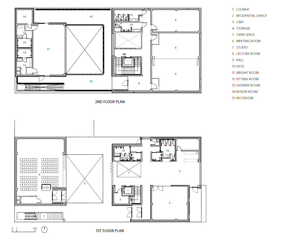
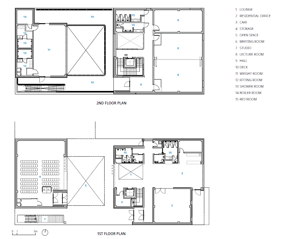
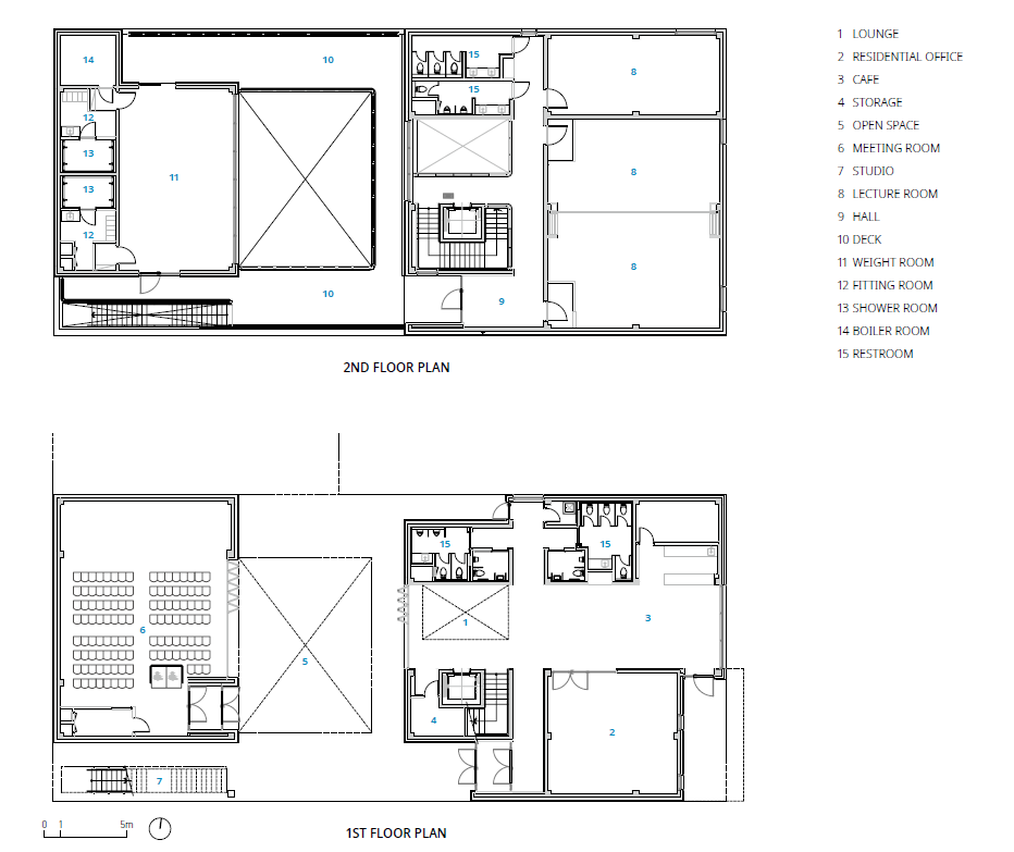
광탄면 행정복지센터는 다양한 프로그램을 작은 스케일로 나눈 건물에 담아내어 건물과 건물, 나아가 건물과 자연이 중첩된 공간을 가지고 있다. 광탄면 지역의 새로운 중심공간인 마당은 보행자 동선의 중심지로서 주민들이 머무르게 만든다.
혜음로에서 행정복지센터의 열린마당까지 자연스럽게 이어지는 동선, 내부의 프로그램의 확장을 가능하게 하는 마당 공간은 이 공공건축물이 마을 주민들에게 공동의 거실임을 명확히 한다. 특히, 열린마당은 2층의 테라스와 함께 공간을 더욱 입체적으로 만들고, 주민들에게 시원한 그늘과 눈과 비를 피하는 처마가 되기도 한다. 기존 대지에는 창고가 있었는데, 이를 허물고 행정복지센터를 증축하게 되었다. 앞에서 보면 2개의 매스를 가지고 있는 것처럼 보이지만 마당을 통해 유기적으로 연결되어 한 건축물임을 보여준다.
열린마당은 주민들의 소통과 회합을 위한 공간이며 양쪽의 폴딩 도어를 열면 카페 - 열린마당 - 대회의실이 하나로 통합되어 광탄면 지역행사 등을 열 수도 있다. 또한, 열린마당은 행정복지센터 건너편 남쪽의 논과 밭을 물리적, 시각적으로 연결한다. 나즈막하게 자리 잡은 광탄면 행정복지센터는 광탄면이 가지고 있었던 기존 환경에 자연스럽게 녹아들며 현재 지역 주민들의 커뮤니티 중심지 역할을 하고 있다.





건축가 Janghwan Cheon(Kyung Hee University) + COSMOS architecture(Gyeonghun Ha)
위치 경기도 파주시 광탄면 혜음로 1044
대지면적 6,611.00㎡
건축면적 647.41 ㎡
연면적 1,035.51m²
설계기간 2021. 5. - 10.
공사기간 2021. 12. - 2022. 8.
대표건축가 천장환(경희대학교) + 코스모스건축사사무소(하경훈)
프로젝트설계자 천장환(경희대학교), 코스모스건축사사무소(하경훈)
감리 (주)동원건축사사무소
설계사후관리 천장환(경희대학교), 코스모스건축사사무소(하경훈)
구조 철근 콘크리트조, 철골조
시공 유티엘 종합건설(주)
발주처 파주시청
사진작가 이건엽(스튜디오 쿠이펜)
'Architecture Project > Cultural' 카테고리의 다른 글
| 부안 어울림센터 + 어울림쉐어하우스 (0) | 2024.12.13 |
|---|---|
| 순환하는 고리 (0) | 2024.12.12 |
| 파주문산청소년수련관 (0) | 2024.11.29 |
| 광탄도서관 복합문화공간 (0) | 2024.11.28 |
| Geumchon Oulim Centre (0) | 2024.11.25 |
마실와이드 | 등록번호 : 서울, 아03630 | 등록일자 : 2015년 03월 11일 | 마실와이드 | 발행ㆍ편집인 : 김명규 | 청소년보호책임자 : 최지희 | 발행소 : 서울시 마포구 월드컵로8길 45-8 1층 | 발행일자 : 매일



