
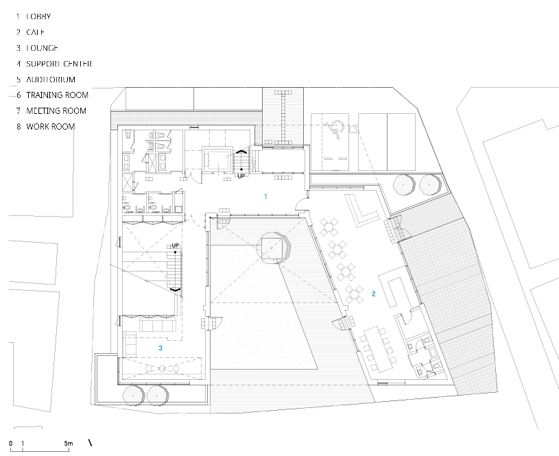
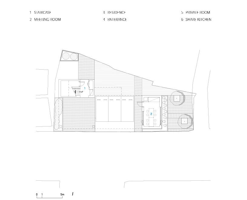
부안 어울림센터는 부안군 매화풍류마을 도시재생사업의 지역 거점시설 설치를 위한 사업으로 진행되었다. 떨어진 두 개 대지에 자리 잡은 어울림센터와 어울림쉐어하우스는 각각의 건축물로 지어졌지만 하나의 건축물로 느껴진다. 사업 초기에 어울림센터와 어울림쉐어하우스는 하나의 대지에 짓는 것으로 기획되었으나, 구도심의 토지 매입 과정에서 최종적으로 두 개의 떨어진 대지에 짓기로 결정되었다. 어울림센터는 부안군에서 진행하는 도시재생사업을 지원하는 현장지원센터와 마을기업 작업장, 카페 등 주민 활동을 담은 근린생활시설이다. 어울림쉐어하우스는 도시재생사업으로 진행되는 집수리 기간 동안 지역 주민들이 임시 거처로 사용할 주거용 시설이다.



건축가는 직접 맞닿아 있지 않은 두 건축물을 하나의 건축물처럼 느껴지도록 연결성을 만들고자 했다. 두 건축물은 각각 인접한 도로에서 접근이 가능하며, 두 개의 건축물을 관통하는 틈을 따라서도 다닐 수 있다. 두 건축물은 작은 틈을 두고서 서로 상호작용한다. 각각의 건축물은 독립적으로 존재하지만 하나의 건물군을 이루고 같은 공동체를 구성한다. 이렇게 틈으로 공간을 연결한 방식은 단일 건물(어울림센터)을 구성하는 방식에서도 적용되어 있다.



어울림센터의 각 층은 중정을 향하며 열린 틈인 테라스가 있다. 각기 다른 기능을 가진 공간들 사이의 테라스는 사람들을 연결하고 하나의 공동체를 완성한다. 따뜻한 느낌을 주는 사비석 외장재는 지역 주민들이 친근함을 가질 수 있도록 만든다. 2층과 3층은 밝은 외단열 시스템 외장에 리듬감 있는 창문을 설치하여 부안 어울림센터만의 개성을 지닌다.
2021년 6월 제안공모 당선으로 시작된 부안 어울림센터 프로젝트는 팬데믹과 급변하는 국제 정세 흐름을 관통하며, 2024년 5월이 되어서야 비로소 완공되었다. 오랜 기간에 걸쳐 진행되는 중에 공간의 사용자도 내부의 실 구성도 조금씩 변경되었다. 하지만, 프로젝트의 이름이자 의미인 ‘어울림(센터)’은 부안의 새로운 공동체 공간으로 유지될 수 있었다. 부안 어울림센터가 지역 주민들이 어울려 지내기 위한 공동체의 바탕이 되길 기대해 본다.










(어울림센터)
위치 전라북도 부안군 부안읍 부풍로 9-30
용도 근린생활시설
대지면적 889.30㎡
건축면적 457.52㎡
연면적 964.19㎡
규모 지상 3층
준공 2024. 5.
시공 한미종합건설
(어울림쉐어하우스)
위치 전라북도 부안군 부안읍 동중길 5
용도 다가구주택
대지면적 324.90
건축면적 150.30
연면적 293.58
규모 지상 3층
준공 2022. 8.
시공 은송
설계기간 2021. 6. - 2022. 2.
대표건축가 신세철, 표하림
구조엔지니어 윤구조기술사사무소
기계엔지니어 성지이앤씨
전기엔지니어 성지이앤씨
발주자 부안군청
사진작가 김용수
해당 프로젝트는 건축문화 2024년 12월호(Vol. 523)에 게재되었습니다.
The project was published in the November, 2024 recent projects of the magazine(Vol. 523).
December 2024 : vol. 523
Contents : COMPETITION : RECENT PROJECTUrban Lining - KN GLOBAL Headquarter / ZAIRA Architects & Engineers(주)케이엔글로벌 사옥 / (주)자이라 건축사사무소 yeon.ju.je.sun / SEOGA ARCHITECTS연주제선 / (주)서가건축
anc.masilwide.com
'Architecture Project > Cultural' 카테고리의 다른 글
| 자연을 품는 요람, 양저우 판다 퍼포먼스 센터 / 지엑스디 아키텍츠 (0) | 2025.04.15 |
|---|---|
| 차이 위안페이 광장과 제민 도서관 / 유에이디 (0) | 2025.01.14 |
| 순환하는 고리 (0) | 2024.12.12 |
| 마당깊은 집 (광탄면 행정복지센터 증축) (0) | 2024.12.02 |
| 파주문산청소년수련관 (0) | 2024.11.29 |
마실와이드 | 등록번호 : 서울, 아03630 | 등록일자 : 2015년 03월 11일 | 마실와이드 | 발행ㆍ편집인 : 김명규 | 청소년보호책임자 : 최지희 | 발행소 : 서울시 마포구 월드컵로8길 45-8 1층 | 발행일자 : 매일



