
광탄도서관 복합문화공간은 문화공간과 시설이 거의 전무한 광탄면의 생활문화 공간을 조성하기 위해 추진된 공공건축 사업이다. 광탄도서관은 공모 당시 과거의 도서 열람 중심의 전통적인 도서관이 아니라, 지역에 활기를 주고 주민들에게 유용한 생활밀착형 복합문화공간으로 설계해야 했다.
또한 파주시는 광탄도서관의 건립을 통해 모든 읍면동에 공공도서관이 있는 최초의 자치단체라는 의미가 있었기 때문에, 당시 도서관 건립에 대한 발주처과 지역 주민들의 기대가 컸다. 생활형 SOC 사업으로 교육청이 신산초등학교 부지의 일부를 내주었고, 파주시가 ‘공공건축 고도화 사업’의 일환으로 광탄도서관의 건립을 추진했다.
광탄도서관 복합문화공간은 마당을 품고 있는 일상 속 공간이다. 마당은 마치 한옥의 안마당처럼 삶의 다양한 활동들의 배경이 되어주고, 건물과 마을의 경계를 느슨하게 풀어 놓는다. 마을로 열린 동시에 아늑한 분위기를 형성하여 마을 주민들은 내·외부 공간에서 자유롭게 책을 읽거나 커피를 마시면서 사색에 잠기거나 담소를 나눈다. 도서관을 목적에 얽매이지 않으며 기분 좋고 편하게 머물고 싶은 장소로 만드는 것을 주요 과제로 해석했고, 이에 다양한 활동으로 채울 수 있는 빈 마당을 시작으로 설계를 시작했다.
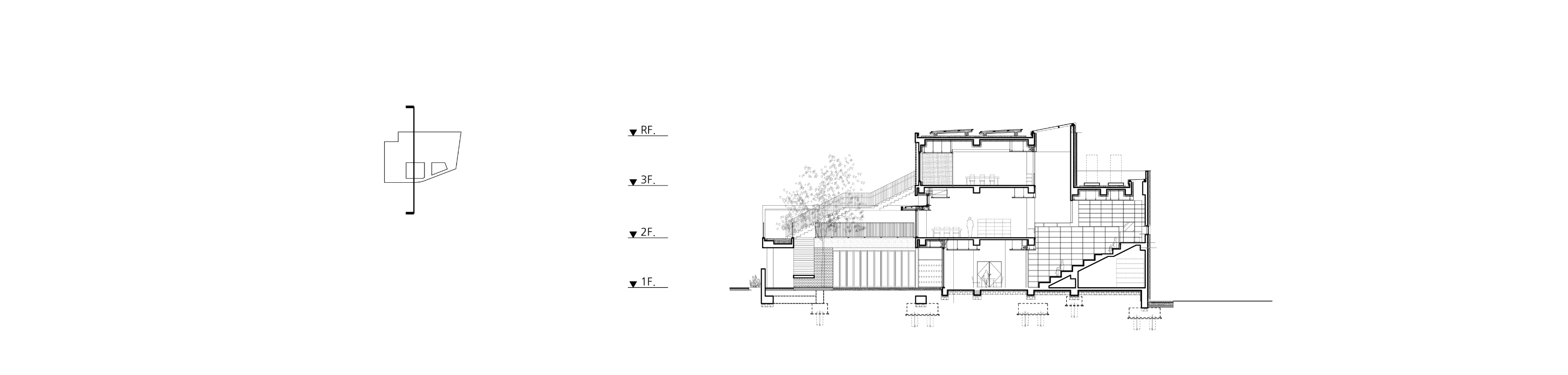
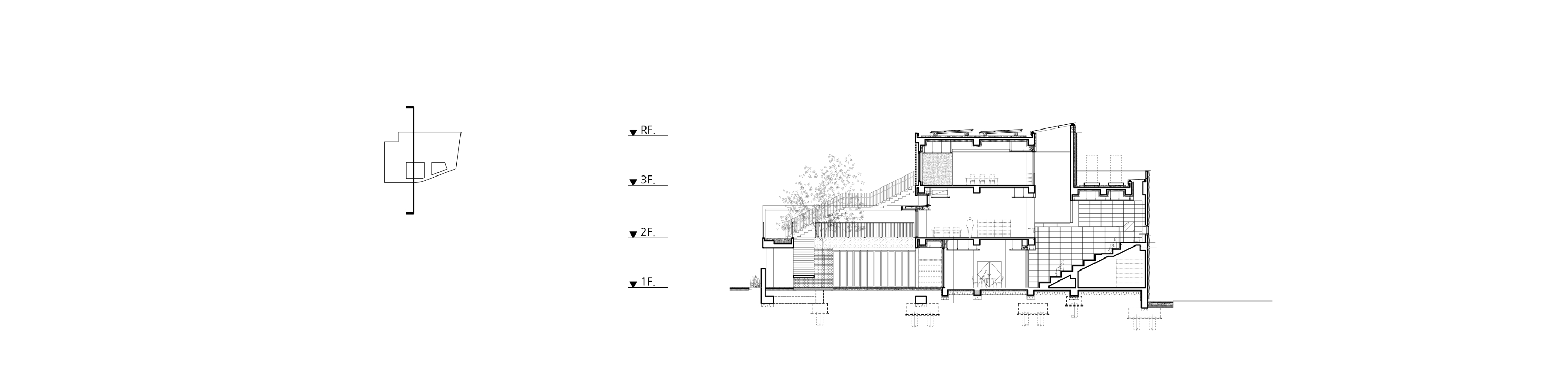
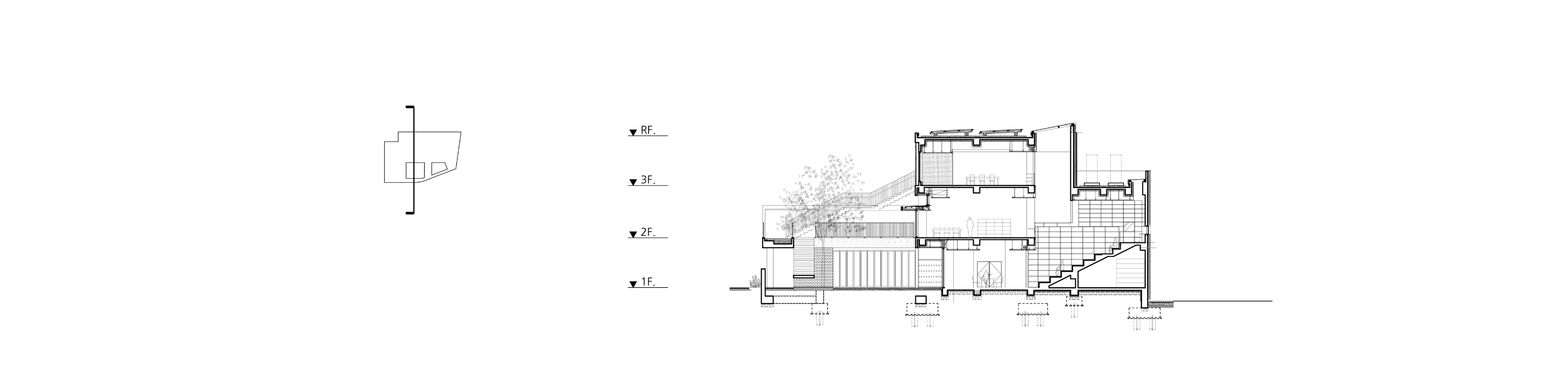
한적한 주변의 첫인상처럼 도서관과의 만남도 조급하거나 급격하지 않고 점진적이다. 방문객은 마당으로 먼저 들어서게 된다. 마당에는 자그마한 나무가 있는데, 오랜 세월이 지나면서 점차 마을의 정자목으로 자라나길 기대하며 고른 회화나무다. 바닥의 붉은 점토벽돌은 반듯한 마당에 적당한 활기를 불어넣고, 필로티로 구획된 안쪽 마당은 초화류로 조성되어 싱그러운 느낌을 준다. 마당과 면한 내부공간은 지역 주민과 인근 학생을 위한 다양한 행사와 전시, 소공연 등이 열리는 마주침 공간과 다목적실이다. 이곳에는 폴딩도어가 설치되어 문을 열면 마당으로 확장된다. 마당은 접지면에만 있는 것이 아니다.
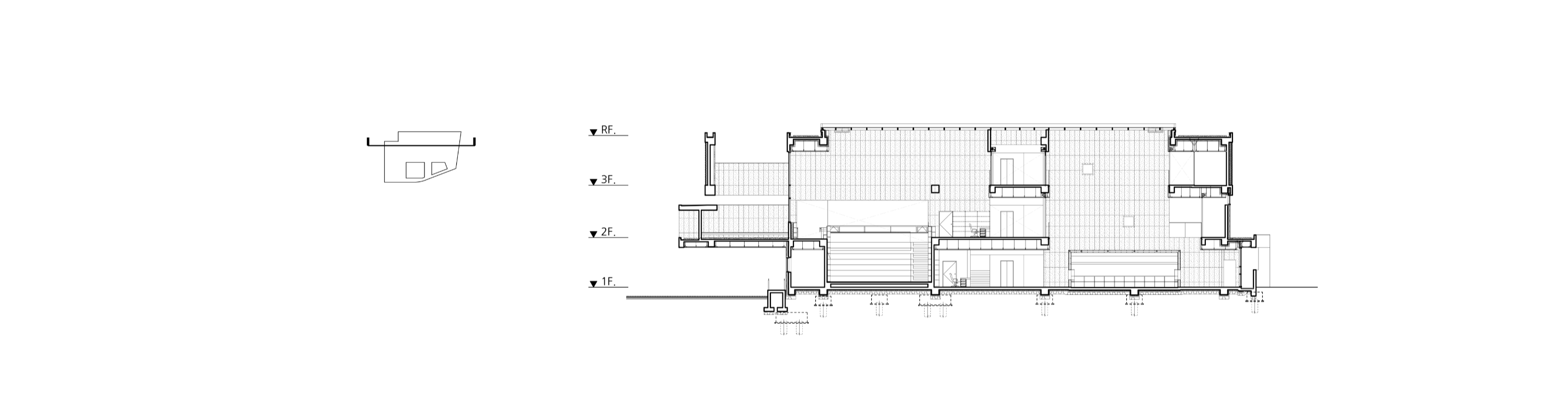
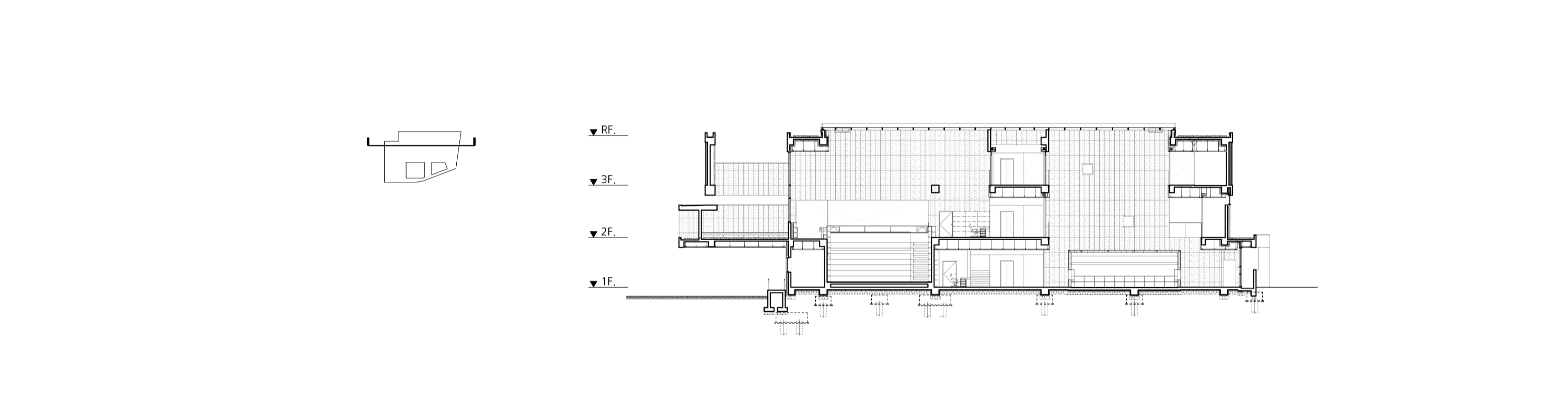
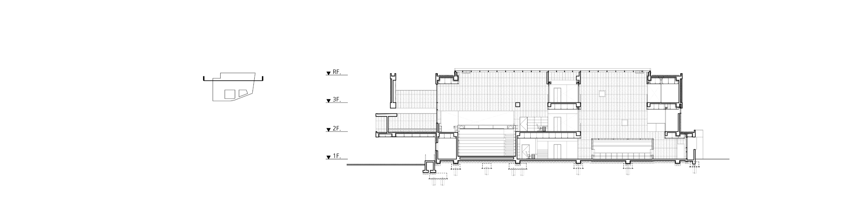
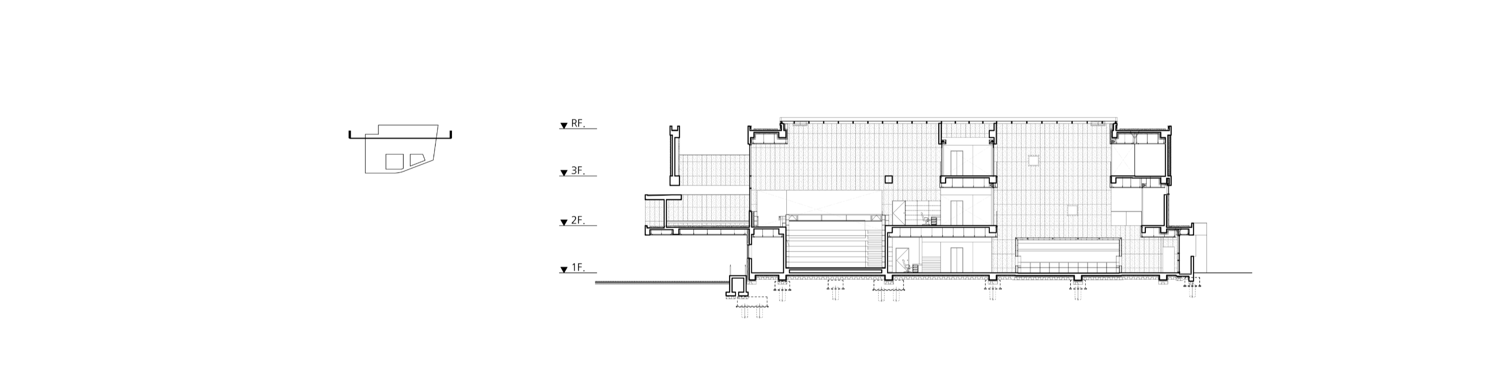
2, 3층에 다양한 크기의 마당이 자리잡고 있으며 모든 마당들은 내부와 연결되어 쉽게 안팎을 드나들 수 있다. 도서관 전면의 좁은 도로는 화물 차량의 통행이 많은 편인데, 촘촘히 배치된 마당들은 도로와 도서관 사이에서 완층 공간의 역할을 하며 도시와 건축물 사이의 경계를 느슨하게 만들며 지역 주민이나 이용객의 교류를 발현시키는 곳이 된다. 광탄도서관은 작지도 않고 크지도 않은 다소 애매한 규모의 도서관이다. 제한적인 규모 내에서 지역 주민들에게 가능한 한 넓고 여유롭게 펼쳐진 공간을 제공하고자, 2층의 종합열람실을 부지 폭만큼 동서로 길게 펼쳐진 공간이 되도록 설계했다. 내부에서 외부로 향한 시선은 넓은 창을 통해 마당을 넘어 사계절을 느낄 수 있는 수목으로 확장된다. 확장된 시선은 내부 공간의 실제 규모보다 더 큰 여유로움을 느끼게 한다. 또한 내부 공간은 전면도로로부터 벽체, 마당, 열람실, 아트리움, 코어의 순으로 솔리드와 보이드가 켜켜이 교차되고 배치되어 있다. 이것은 실폭이 깊은 내부 안쪽까지 자연광을 들이고, 방문객에게 내·외부 또는 수평·수직 공간을 관통하는 공간적 체험을 준다. 3층에는 메이커 스페이스겸 다목적 공간이 있어, 주민을 위한 다양한생활강좌나 인접 초등학교 아이들에게 흥미로운 놀이터가 된다.












건축가 (주)이집건축사사무소
위치 경기도 파주시 광탄면 심궁로 23
대지면적 1,630.00㎡
건축면적 931.30㎡
연면적 859.94m²
건폐율 12.52%
용적률 27.21%
설계기간 2020. 5. - 2021. 3.
시공기간 2021. 4. - 2022. 6.
준공 2022. 6.
대표건축가 이현우
프로젝트건축가 이현우
구조엔지니어 이건구조
기계엔지니어 수양엔지니어링
전기엔지니어 수양엔지니어링
시공 시네마건설
발주자 파주시청
사진작가 진효숙, (주)이집건축사사무소
해당 프로젝트는 건축문화 2024년 11월호(Vol. 522)에 게재되었습니다.
The project was published in the November, 2024 recent projects of the magazine(Vol. 522).
November 2024 : vol. 522
Contents : COMPETITION : RECENT PROJECTAON BLDG / LKSA에이온빌딩 / (주)엘케이에스에이 건축사사무소 N22014 PJ / BSN ARCHI. 논현동 리모델링 프로젝트 / 비에스엔 건축사사무소 GGDD / CIID(Contemporary Idea fo
anc.masilwide.com
'Architecture Project > Cultural' 카테고리의 다른 글
| 마당깊은 집 (광탄면 행정복지센터 증축) (0) | 2024.12.02 |
|---|---|
| 파주문산청소년수련관 (0) | 2024.11.29 |
| Geumchon Oulim Centre (0) | 2024.11.25 |
| Museum for paper art (0) | 2024.11.19 |
| Simple Art Museum (0) | 2024.11.11 |
마실와이드 | 등록번호 : 서울, 아03630 | 등록일자 : 2015년 03월 11일 | 마실와이드 | 발행ㆍ편집인 : 김명규 | 청소년보호책임자 : 최지희 | 발행소 : 서울시 마포구 월드컵로8길 45-8 1층 | 발행일자 : 매일



