
파주문산청소년수련관은 청소년들의 이야기를 담는 장이자, 플랫폼의 역할을 수행하기 위하여 파주 시내에 최초로 건립된 청소년수련관이다.2020년 3월 청소년수련관을 두고 설계공모가 진행되었으며 이진욱황정헌 건축사사무소의 제안이 당선되었다.
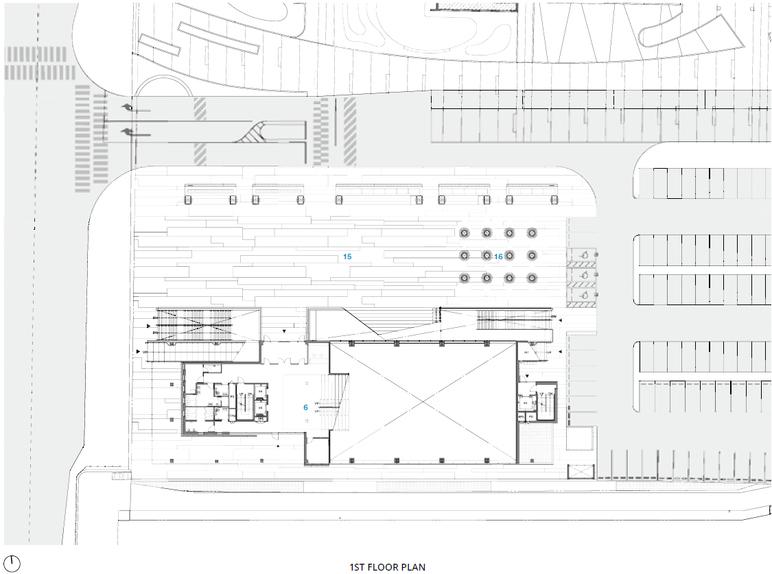
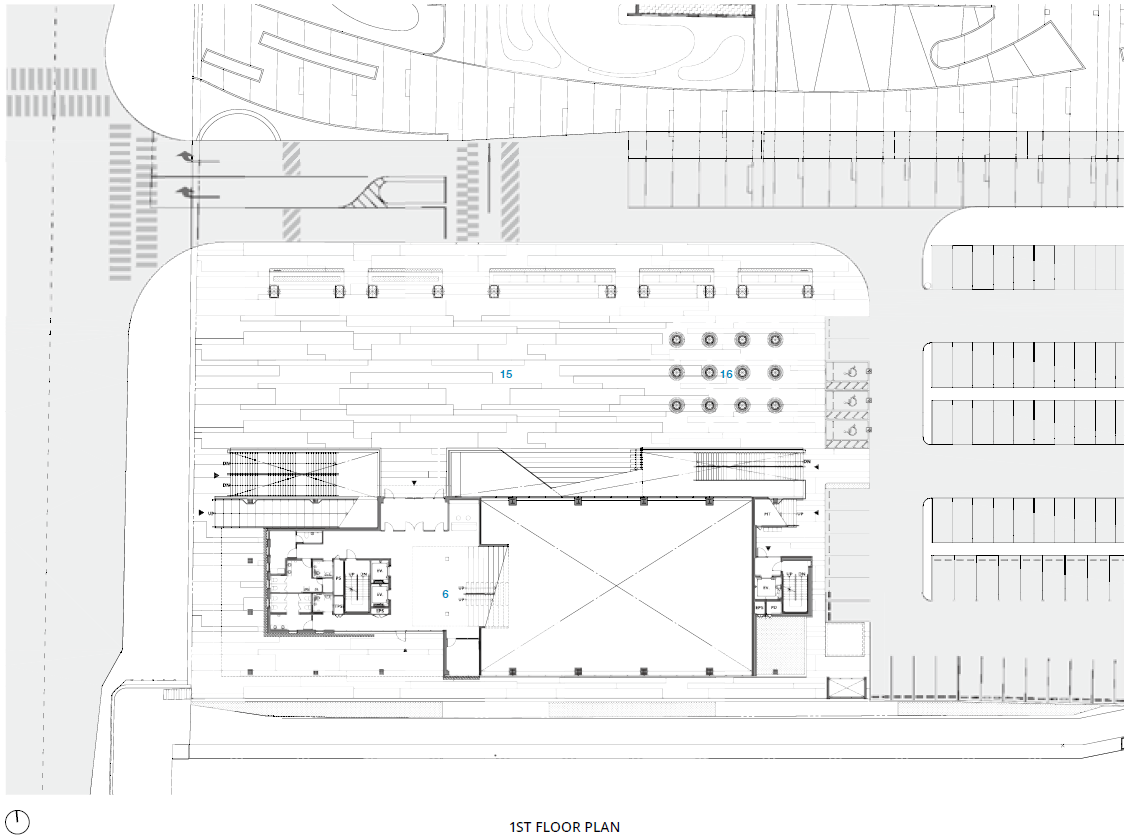
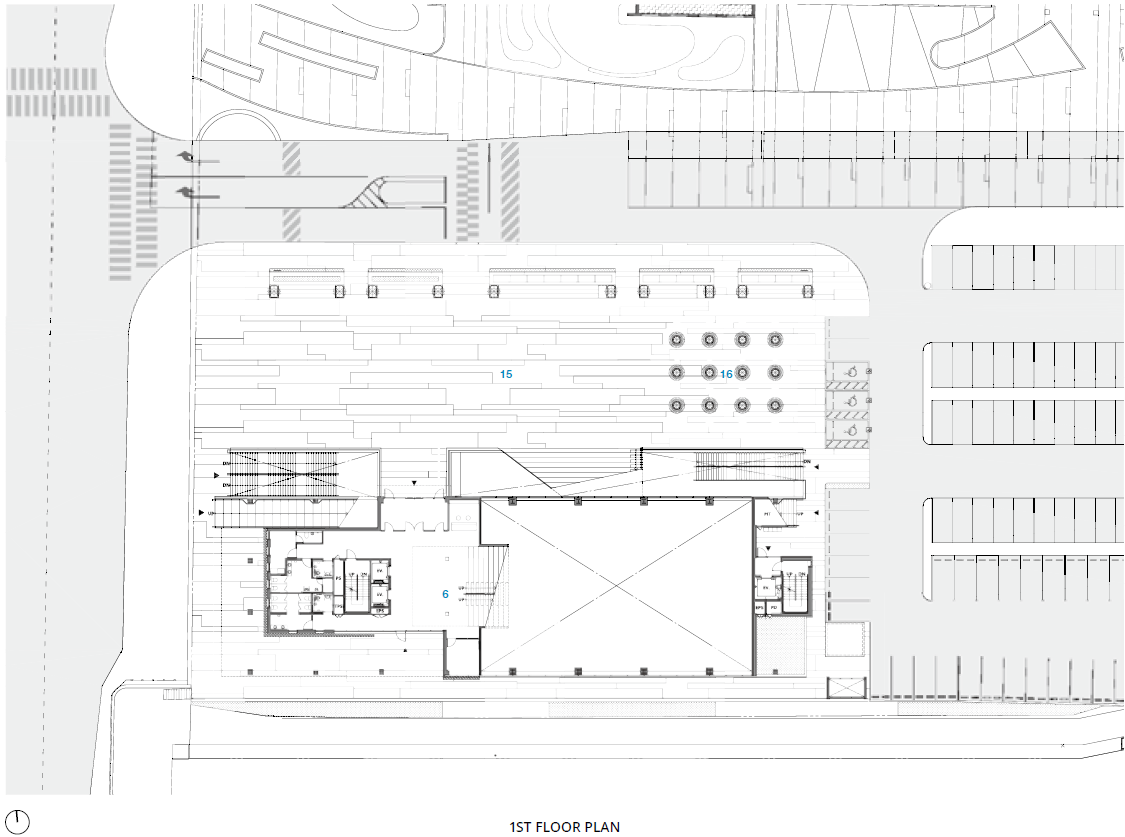
2023년 12월 준공된 파주문산청소년수련관은 다양한 시선의 교차가 이뤄지며 개방적인 공간의 성격을 지닌다. 문산읍 주변 풍경이 유기적으로 청소년수련관 안으로 스며들며 특별한 건축적 공간성을 가지고 있다. 특히, 2층의 북카페는 청소년수련관의 중심 공간이다. 북카페는 지면보다 2.8m 살짝 들어 올려진 체육관 위, 층간트러스의 구조로 만들어진 넓고 개방감 있는 공간이다. 나지막하면서 시원한 개방성과 높은 접근성, 다양한 활용도를 보이는 유연성을 갖춘 플랫폼이다. 플랫폼북카페는 어울림 마당을 통해 외부와 적극적으로 연계되며 파주시 청소년의 여러 외부 활동을 수용하고 자극하면서 인접한 문산행정복지센터와의 조화로운 관계를 형성한다.
지하의 체육관과 수영장은 자연 채광이 가능한 썬큰과 레벨이 낮은 농로 쪽으로 채광을 확보한다. 3, 4층은 강의실, 동아리실 등 청소년수련관의 다양한 프로그램을 수용할 수 있는 공간들이 배치되어 있으며, 중앙의 아트리움은 상호 소통하고 교류하기 위한 공간의 장점을 극대화한다. 주변의 자연 및 도농 복합적 경관과 유기적으로 관계 맺으며 지역의 거점으로 만들어진 파주문산청소년수련관은 잠재력을 가진 파주 지역 청소년들의 이야기를 담고, 지역 주민들과의 소통으로 지속 가능한 활동을 이끌어 내고 있다.











건축가 이진욱황정헌건축사사무소
위치 경기도 파주시 문산읍 선유리 문산행정복지센터 내
대지면적 30,418.80㎡
건축면적 1,314.96㎡
연면적 7,304.86m²
규모 지하 1층, 지상 5층
건폐율 19.93%
용적률 56.52%
설계기간 2020. 7. – 2021. 8.
시공기간 2021. 12. – 2023. 11.
준공 2023. 12.
대표건축가 이진욱, 황정헌
구조엔지니어 터구조 주식회사
기계엔지니어 (주)주성이엔지
전기엔지니어 (주)성지이앤씨
시공 (주)지오종합건설
발주자 파주시청
사진작가 양태영
해당 프로젝트는 건축문화 2024년 11월호(Vol. 522)에 게재되었습니다.
The project was published in the November, 2024 recent projects of the magazine(Vol. 522).
November 2024 : vol. 522
Contents : COMPETITION : RECENT PROJECTAON BLDG / LKSA에이온빌딩 / (주)엘케이에스에이 건축사사무소 N22014 PJ / BSN ARCHI. 논현동 리모델링 프로젝트 / 비에스엔 건축사사무소 GGDD / CIID(Contemporary Idea fo
anc.masilwide.com
'Architecture Project > Cultural' 카테고리의 다른 글
| 순환하는 고리 (0) | 2024.12.12 |
|---|---|
| 마당깊은 집 (광탄면 행정복지센터 증축) (0) | 2024.12.02 |
| 광탄도서관 복합문화공간 (0) | 2024.11.28 |
| Geumchon Oulim Centre (0) | 2024.11.25 |
| Museum for paper art (0) | 2024.11.19 |
마실와이드 | 등록번호 : 서울, 아03630 | 등록일자 : 2015년 03월 11일 | 마실와이드 | 발행ㆍ편집인 : 김명규 | 청소년보호책임자 : 최지희 | 발행소 : 서울시 마포구 월드컵로8길 45-8 1층 | 발행일자 : 매일



