
금촌은 100여 년의 역사를 가진 ‘금촌 전통시장(금촌 오일장)’을 중심으로 형성된 지역이다. 오래된 소규모 상가와 주택이 모여 주민 간의 교류가 빈번하고 조밀한 도시 환경을 만들어 온 지역은 거리마다 임시 천막 아래 펼쳐 놓은 물건과 먹거리, 오가는 사람들로 인해 역동적이며 독특한 도시 풍경으로 변화한다. 금촌 오일장과 어울림센터는 서로 다른 성격과 활용을 보여주지만, 한편으로는 도시적 공공성을 공유하여 서로 공명한다.
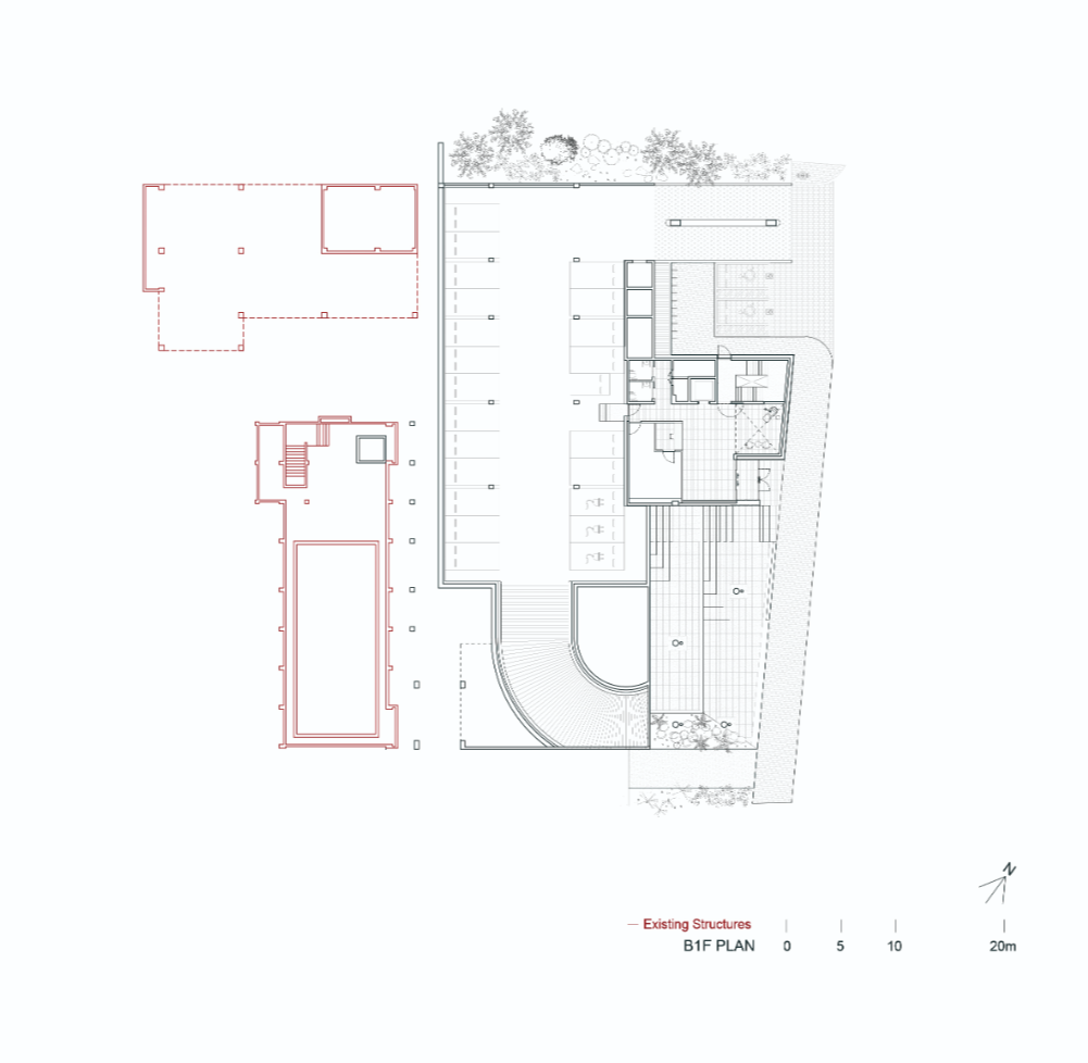
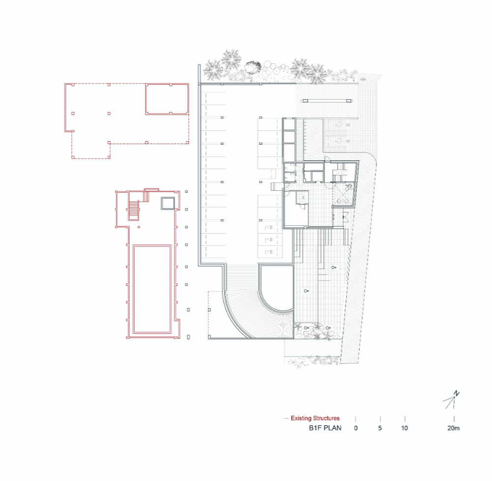
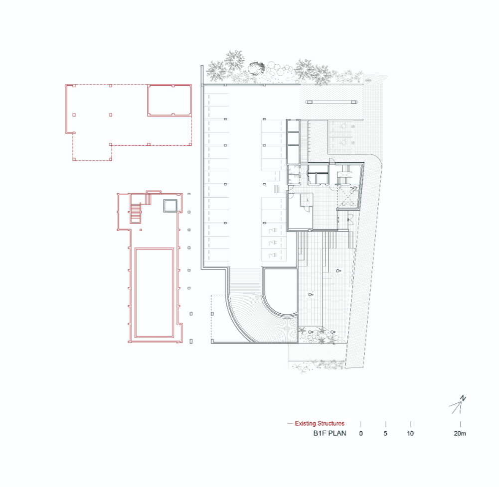
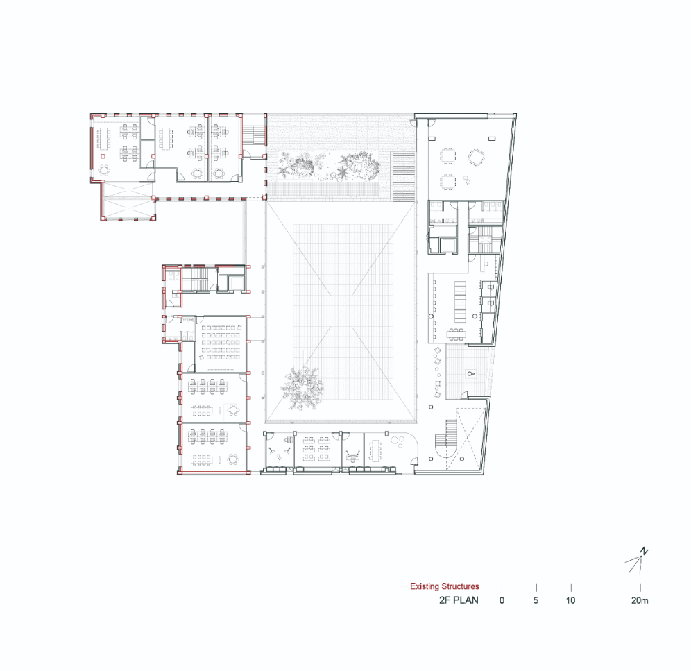
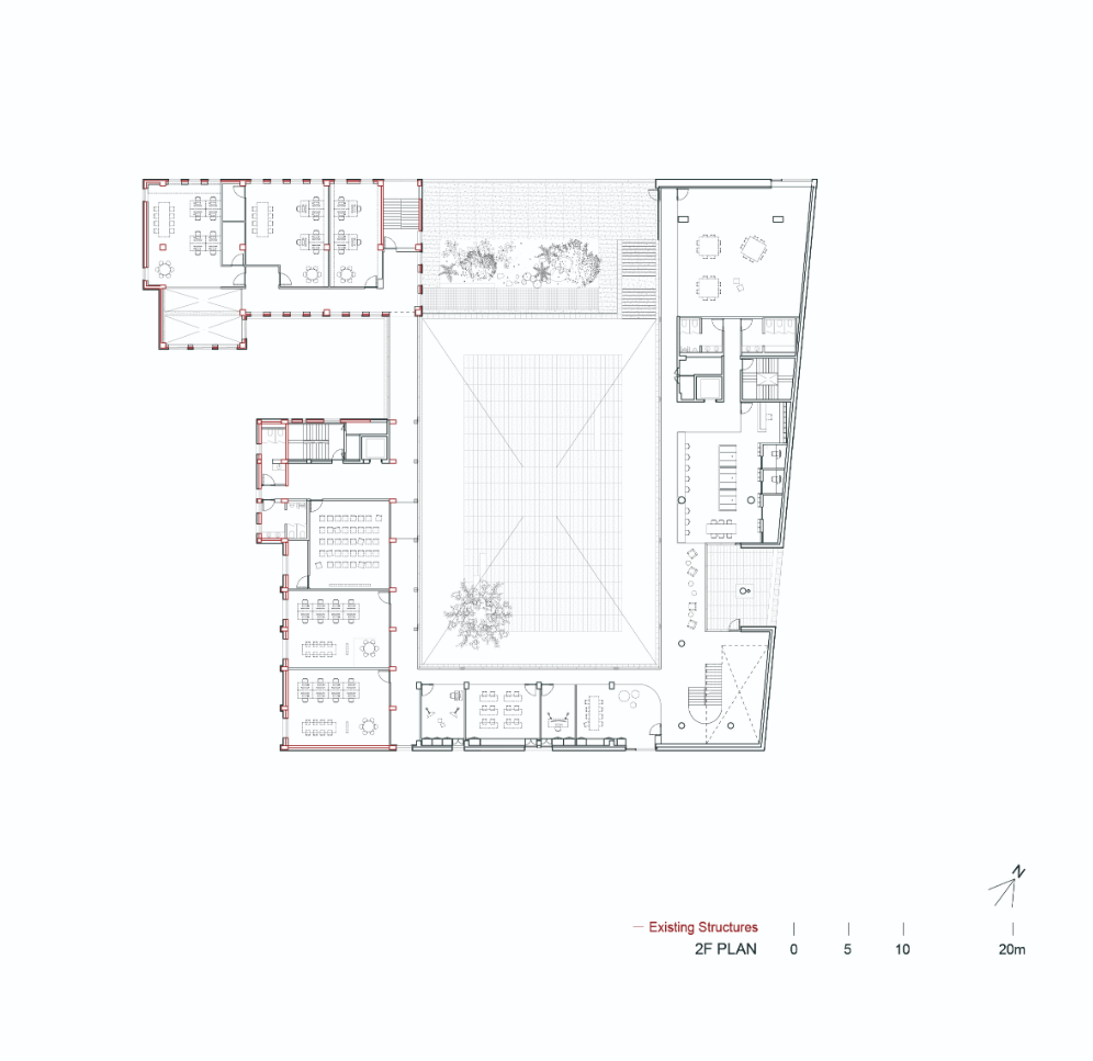
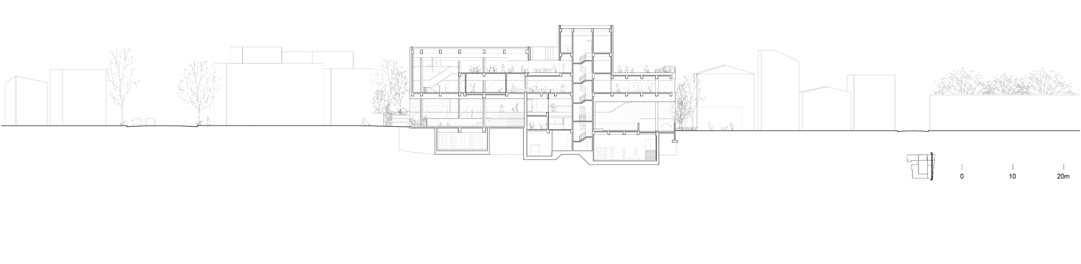
대지와 맞닿아 있는 도로인 금정로가 보여주는 특수성과 일상성, 차이와 공공성에 상응하는 이중적 경계면 설정이 어울림센터 설계의 중요한 출발점이 되었다. 건축은 도시의 일부이며 전체를 닮아 있다. 부지는 주민들이 20년 넘게 이용해 온 등기소와 법원 건물이 위치하고 있으며, 도로변과 2.7m의 단차가 있었다. 기존의 등기소와 법원 건물, 대지의 단차는 그대로 유지된 채 도로변 대부분을 비워 넓은 계단 광장을 조성하여 금정로와 연결했다. 주변 건물들과 대비되는 스케일의 팽팽한 면을 가로와 평행하게 배치하여 가로의 흐름과 공간을 드러내고, 오일장의 배경이 되도록 한다. 금촌어울림센터는 설계공모 당선 이후 민간과 군인의 복합커뮤니티 시설에서 도시재생시설로 프로그램의 성격과 구성이 전면 변경되었다. 어린이, 청소년, 청년, 군인의 교육, 문화, 복지, 창업 등을 위한 7개 부서 13개 팀이 운영하는 센터는 복합적인 시설 이용자를 통합하고, 각자 활용이 가능한 공간 구성을 필요로 한다. 사방으로 열리고 이어지는 다공질의 마당은 어울림센터에 전용되거나 도시에 일방적으로 귀속되지 않으며, 서로 다른 이들을 허용하고 교류하게 하는 공공적 커뮤니티 장소가 되었다. 공간은 필요의 정도와 쓰임의 밀도에 유기적으로 대응하며, 다양한 요구와 변화를 담아내는 공간으로 기능하게 된다.















건축가 818 건축사사무소
위치 경기도 파주시 금정로 45
대지면적 3,840㎡
건축면적 1,720 ㎡
연면적 5,660m²
건폐율 44.70%
용적률 88.50%
설계공모 당선 2021. 6.
설계기간 2021.6. - 2022.8.
시공기간 2022.10. - 2024.6.
준공 2024.7.
대표건축가 이정민, 고은비
디자인팀 김한빛, 유승현
구조엔지니어 서울구조
기계엔지니어 세아엔지니어링
전기엔지니어 우림전기
발주자 파주시청
사진작가 이용백
해당 프로젝트는 건축문화 2024년 11월호(Vol. 522)에 게재되었습니다.
The project was published in the November, 2024 recent projects of the magazine(Vol. 522).
November 2024 : vol. 522
Contents : COMPETITION : RECENT PROJECTAON BLDG / LKSA에이온빌딩 / (주)엘케이에이 건축사사무소 N22014 PJ / BSN ARCHI. 논현동 리모델링 프로젝트 / 비에스엔 건축사사무소 GGDD / CIID(Contemporary Idea for Int
anc.masilwide.com
'Architecture Project > Cultural' 카테고리의 다른 글
| 파주문산청소년수련관 (0) | 2024.11.29 |
|---|---|
| 광탄도서관 복합문화공간 (0) | 2024.11.28 |
| Museum for paper art (0) | 2024.11.19 |
| Simple Art Museum (0) | 2024.11.11 |
| Flickering Peak CP.SUN River Art Gallery (0) | 2024.11.08 |
마실와이드 | 등록번호 : 서울, 아03630 | 등록일자 : 2015년 03월 11일 | 마실와이드 | 발행ㆍ편집인 : 김명규 | 청소년보호책임자 : 최지희 | 발행소 : 서울시 마포구 월드컵로8길 45-8 1층 | 발행일자 : 매일



