
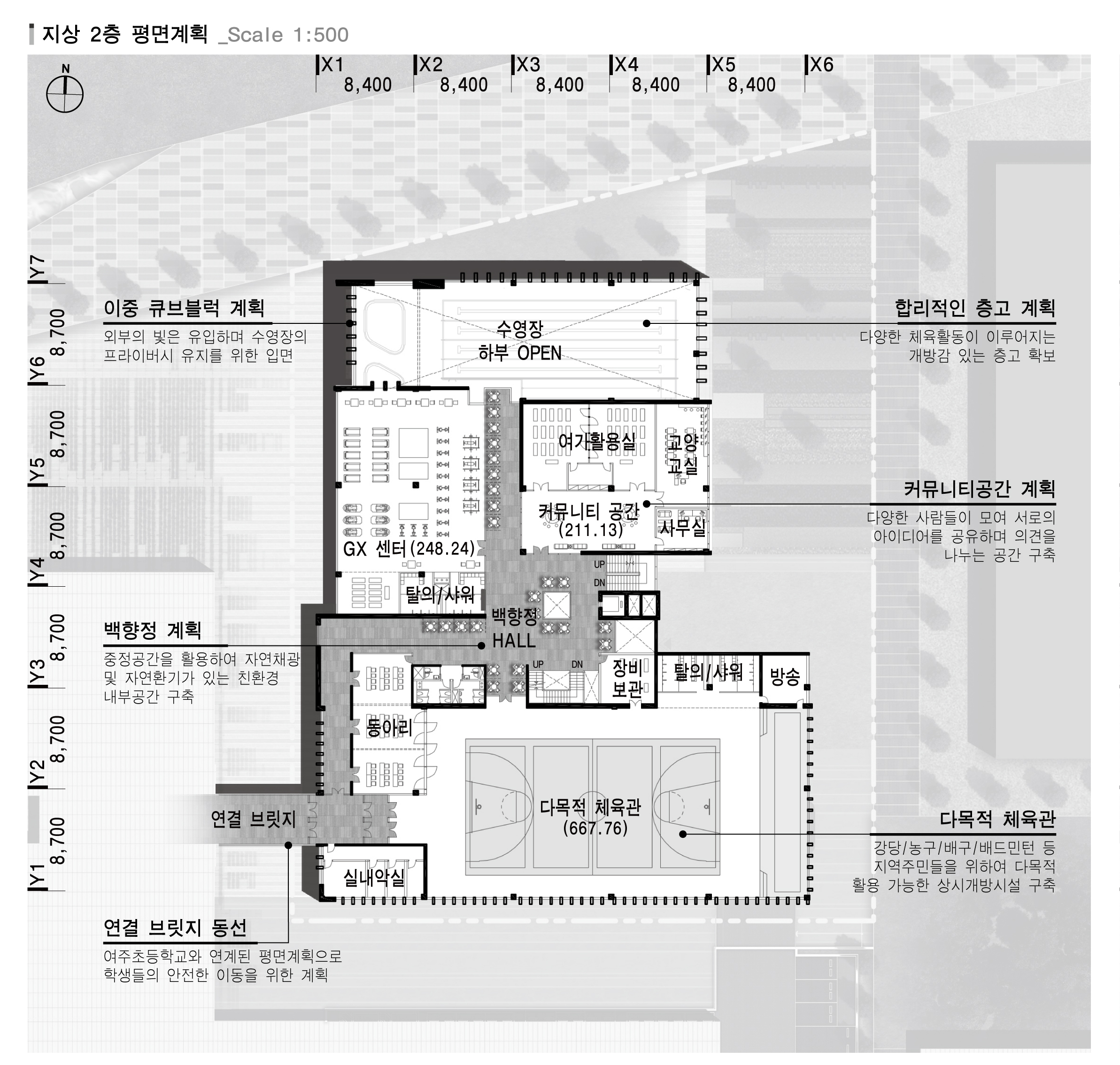
"백향원" 백[백로], 향기[香], 동산[園] : 백로의 향기가 가득한 정원을 구축하고자 합니다.
저희가 여주시에 제안하는 학교복합시설 "백향원"은 과거, 현재, 미래를 이어주고 대지에 존재하는 시간의 흔적을 기억하는 장소 입니다. 친환경적인 학교복합시설의 기술집약체적인 건축물을 구축합니다. 또한, 여주시가 지녀온 지역성(남한강), 역사성(영월루), 상징성(백로)을 추출하여 지역과 함께 호흡하는 학교복합시설이 되는 "백향원"을 제안합니다.
"백향원"
학교복합시설은 학생들과 더불어 지역주민들의 문화 욕구에 부응하며 다양한 이벤트들과 함께 지역의 발전을 이끌어 내는 [소통의 장이 되는 건축]이길 희망합니다. 이에 저희는 여주시 신접리 백로의 힘찬 날갯짓을 표현하는 입면을 디자인하여 여주초등학교와 지역사회가 함께 비상할 수 있는 학교복합시설을 구축하고자 합니다.





여주초 신설대체이전 학교복합시설 설계공모
입상작_ (주)더에이치디자인건축사사무소
대지면적 3,098.68㎡
건축면적 1,816.76㎡
연면적 6,619.09㎡
규모 지하 1층, 지상 4층( 최고높이 18.02m)
건폐율 58.63%
용적률 162.62%
주차개요 29대
대표건축가 고준혁
발주자 한국자산관리공사
'Plans' 카테고리의 다른 글
| 원곡동 스트리트몰 조성사업 _ 입상작A (0) | 2024.12.02 |
|---|---|
| 원곡동 스트리트몰 조성사업_당선작 (0) | 2024.11.29 |
| 여주초 신설대체이전 학교복합시설 설계공모 _ 입상작A (0) | 2024.11.27 |
| 남면 기초생활거점 조성사업 건축설계 간이공모_입상작C (0) | 2024.11.26 |
| 남면 기초생활거점 조성사업 건축설계 간이공모_입상작B (0) | 2024.11.25 |
마실와이드 | 등록번호 : 서울, 아03630 | 등록일자 : 2015년 03월 11일 | 마실와이드 | 발행ㆍ편집인 : 김명규 | 청소년보호책임자 : 최지희 | 발행소 : 서울시 마포구 월드컵로8길 45-8 1층 | 발행일자 : 매일



