
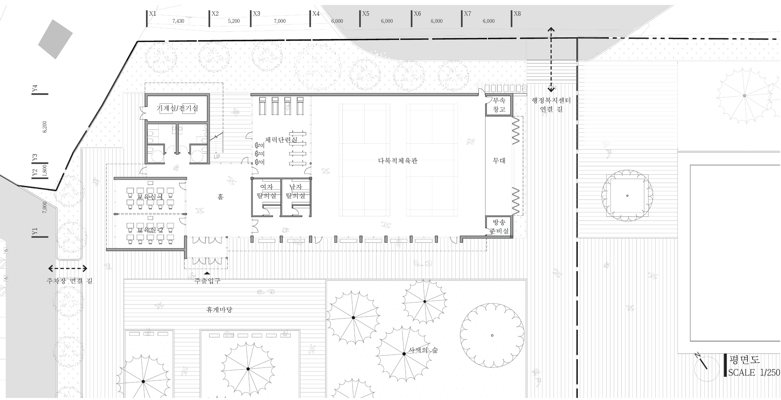
부여시 남면 보듬센터(기초생활거점) 건립사업은 기존 남성초등학교 부지를 활용하여 주민들에게 체육 및 문화활동 시설 및 프로그램 확충을 하는데 목적을 두고 있다. 금번 사업부지는 보호수목 영역을 제외하면 전면이 긴 형태의 건립가능 영역이 남게된다.
넓지 않은 전면 보행로에서 체육관의 형태가 위압적이지 않게 주민들에게 다가갈 수 있도록 석탑을 쌓듯이 수평의 선을 쌓아 형태를 분절하였다. 역사문화도시 부여의 단아한 모습을 드러내기 위해 저층부는 외벽재료로 석재를 사용하고, 주민들이 잠시 쉬어 보호수목 정원을 바라보며 쉴 수 있게 목재의 회랑을 제안한다.




남면 기초생활거점 조성사업 건축설계 간이공모
입상작_바운더리스 건축사사무소
대지면적 13,612㎡ / 4,860㎡ (금번 사업부지)
건축면적 795.36㎡
연면적 749.86㎡
규모 지상1층 (최고높이 11.67m)
건폐율 5.84%
용적률 5.50%
주차개요 30대
대표건축가 김윤수
발주자 충청남도 부여군
'Plans' 카테고리의 다른 글
| 여주초 신설대체이전 학교복합시설 설계공모 _ 입상작B (0) | 2024.11.28 |
|---|---|
| 여주초 신설대체이전 학교복합시설 설계공모 _ 입상작A (0) | 2024.11.27 |
| 남면 기초생활거점 조성사업 건축설계 간이공모_입상작B (0) | 2024.11.25 |
| 남면 기초생활거점 조성사업 건축설계 간이공모_입상작A (0) | 2024.11.22 |
| 하동 세계차 체험존 조성사업 설계용역 지명 및 제안공모 _ 당선작 (0) | 2024.11.21 |
마실와이드 | 등록번호 : 서울, 아03630 | 등록일자 : 2015년 03월 11일 | 마실와이드 | 발행ㆍ편집인 : 김명규 | 청소년보호책임자 : 최지희 | 발행소 : 서울시 마포구 월드컵로8길 45-8 1층 | 발행일자 : 매일



