
학교복합시설은 문화, 교육, 체육시설 등 서로 다른 여러 기능들이 결합된 형태입니다. 사용자 또한 학생과 외부이용자 등 다양한 계층의 사람들이 공유하는 공동체 시설로서, 공공을 위해 열린공간이자, 주변과 긴밀하게 연결되는 소통의 공간으로 만들고자 하였습니다.
사업 부지는 여주시 북쪽의 구도심과 도시개발사업이 활발히 진행중인 남쪽의 신도심의 중간지점에 위치하여 공공재로서의 좋은 입지적 환경을 가지고 있습니다. 사이트 주변으로 여주초, 청소년 수련시설, 공공청사, 어린이 공원, 수변공원이 근접하여있어,
이러한 여러 공공시설들의 중심적 역할을 할 수 있는 장소성이 요구되었습니다.
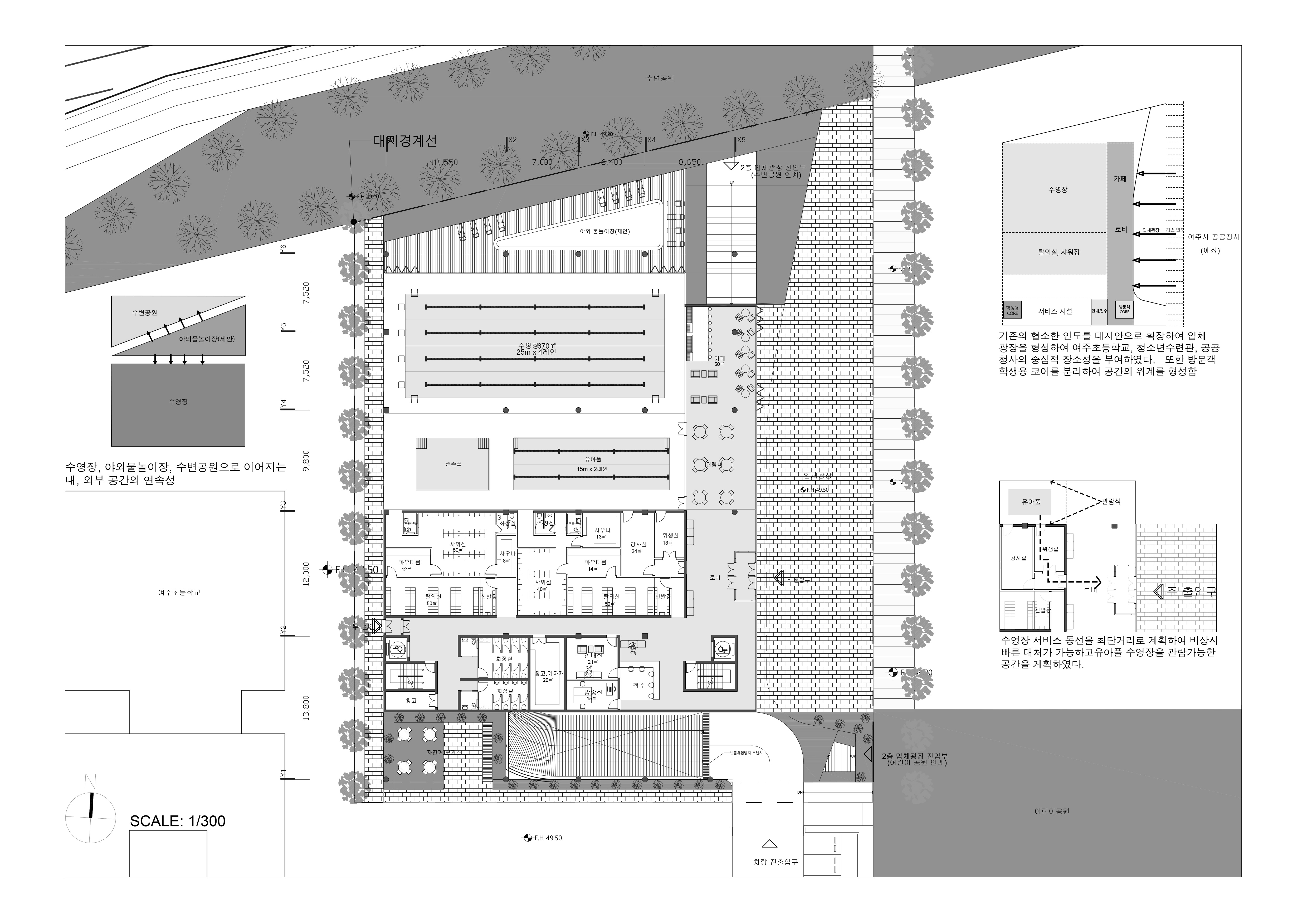
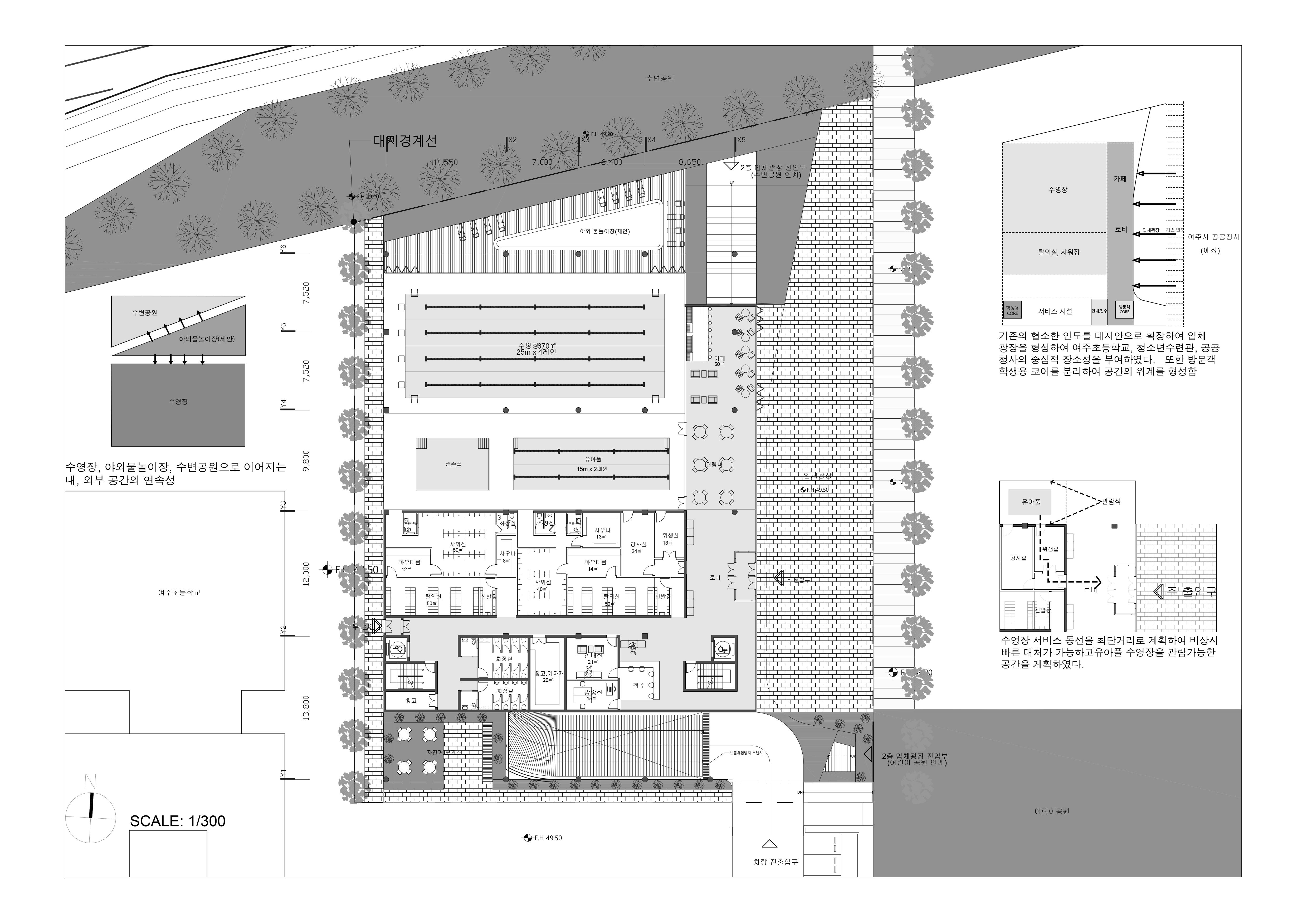
이러한 중심성을 가진 장소를 만들기 위해서 첫 번째로 남북으로 연결된 보행자가로를 확장하여 사람들이 모일 수 있는 중앙광장을 계획하였습니다. 두 번째, 주변시설들과의 연계를 고려하여 매스를 분절하였습니다. 이러한 매스의 분절을 통해 주변자연을 내부로 자연스럽게 끌어들일수 있고, 프로그램들과 동선을 효율적으로 분리하고 연결할수 있습니다.
여주초등학교와의 연결성과 외부이용자들의 접근성을 고려하여 주요시설들은 여주초등학교쪽으로 광장은 보행자도로쪽으로 배치하였고, 중앙의 공유마당을 통해 주변과 연결되고 소통할 수 있게 하였습니다.
보행가로와 광장의 휴먼스케일을 위해 상층부 매스를 셋백하였고, 광장을 2층까지 입체화하여 이벤트 공간이나 야외공연장 등 다양한 액티비티 공간으로 활용할 수 있게 하였습니다. 수변공원, 어린이공원에서 입체광장과 공유마당으로 연속되는 외부공간이 내부공간으로 확장되어 보다 유연하고 자연친화적인 공간으로 계획하였습니다.




여주초 신설대체이전 학교복합시설 설계공모
입상작_ 슈퍼스트링 건축사사무소
대지면적 3,098.68㎡
건축면적 1,855㎡
연면적 6,477㎡
규모 지하 1층, 지상 4층( 최고높이 23.9m)
건폐율 59.86%
용적률 159.6%
주차개요 30대
대표건축가 전범우
발주자 한국자산관리공사
'Plans' 카테고리의 다른 글
| 원곡동 스트리트몰 조성사업_당선작 (0) | 2024.11.29 |
|---|---|
| 여주초 신설대체이전 학교복합시설 설계공모 _ 입상작B (0) | 2024.11.28 |
| 남면 기초생활거점 조성사업 건축설계 간이공모_입상작C (0) | 2024.11.26 |
| 남면 기초생활거점 조성사업 건축설계 간이공모_입상작B (0) | 2024.11.25 |
| 남면 기초생활거점 조성사업 건축설계 간이공모_입상작A (0) | 2024.11.22 |
마실와이드 | 등록번호 : 서울, 아03630 | 등록일자 : 2015년 03월 11일 | 마실와이드 | 발행ㆍ편집인 : 김명규 | 청소년보호책임자 : 최지희 | 발행소 : 서울시 마포구 월드컵로8길 45-8 1층 | 발행일자 : 매일



