
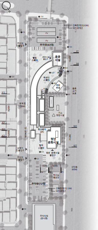
원곡동 스트리트몰은 원곡동 다문화 거리 인근에 위치하고 있으며 다문화 거리와 함께 지역 활성화를 이루고 청년, 지역 주민, 외국인들이 함께 어울릴 수 있는 공간을 만들고자 하였다.
다문화 거리와 대상지는 도로를 경계로 나뉘어 있으며 우리는 경계점을 허물기 위해서 다문화 거리에서 나오는 골목길을 보이드 공간으로 계획하여 건물 내부로 적극적으로 유도하였다. 지역의 문제점으로 꼽히는 주차난을 해소하기 위해 대지의 양 끝을 주차장으로 계획하고, 다양한 다문화 행사가 이루어질 수 있도록 야외무대를 배치하였다.야외무대를 중심으로 식음 공간과 스트리트몰을 배치하여 건물의 활용도를 높였으며, 스트리트몰의 경우 맞상가로 구성하였다.
가운데 통로를 통해 각 건물들로 유기적으로 연결하여 휴식 공간으로 이용될 수 있도록 쾌적하고 합리적인 공간을 만들었다.
모든 공간을 가변형 공간으로 구성하고 폴딩도어를 활용하였기 때문에 내·외부의 경계점이 없이 상황에 따라 다양하게 이용 가능하다. 원곡동 스트트몰은 다문화 거리와 함께 각국의 전통음식과 문화를 경험할 수 있는 특색있는 관광지로 지역 활성화가 이루어지는 것을 기대해 볼 수 있을 것 같다.




원곡동 스트리트몰 조성사업
당선작_ (주)건축사사무소 다보건축
대지면적 14,394.77㎡
건축면적 2,695.27㎡
연면적 3,524.22㎡
규모 지상3층 (최고높이 15m)
건폐율 18.72%
용적률 24.48%
주차개요 155대
대표건축가 김재정
발주자 안산시청
'Plans' 카테고리의 다른 글
| 국우동 행정복지센터 건립공사 설계공모_당선작 (0) | 2024.12.03 |
|---|---|
| 원곡동 스트리트몰 조성사업 _ 입상작A (0) | 2024.12.02 |
| 여주초 신설대체이전 학교복합시설 설계공모 _ 입상작B (0) | 2024.11.28 |
| 여주초 신설대체이전 학교복합시설 설계공모 _ 입상작A (0) | 2024.11.27 |
| 남면 기초생활거점 조성사업 건축설계 간이공모_입상작C (0) | 2024.11.26 |
마실와이드 | 등록번호 : 서울, 아03630 | 등록일자 : 2015년 03월 11일 | 마실와이드 | 발행ㆍ편집인 : 김명규 | 청소년보호책임자 : 최지희 | 발행소 : 서울시 마포구 월드컵로8길 45-8 1층 | 발행일자 : 매일



