
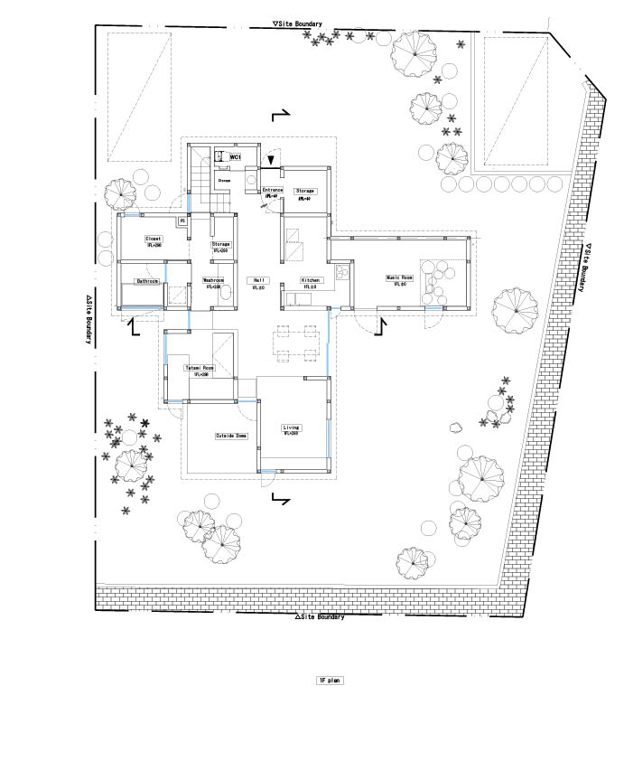
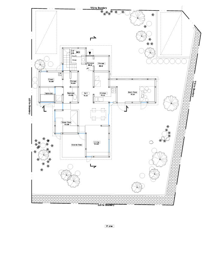
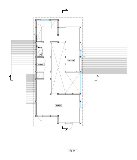
The site is located in Sendai City, Miyagi Prefecture. The client was attracted by the panoramic view from the elevated land and the proximity to a park, and decided to build their home here. The client's request was for a house where the family could always feel connected and where they could enjoy views of the garden, as they are fond of gardening. The architect referred to the traditional Nambu Magariya houses of the Tohoku region, which have an earthen floor (doma) as the central feature of the living space. The design places the earthen floor in a cross-shaped layout, with the kitchen, living room, Japanese-style room, and upstairs bedrooms all adjoining it. Each room connects to the earthen floor, creating a continuous space with various openings of different sizes. The building envelope includes skylights and large openings, forming multiple layers of boundaries between the interior and exterior, in conjunction with the openings on the mezzanine side. The architecture takes on a large cross-shaped form, positioned at the center of the rectangular site, creating four distinct gardens. This layout fosters a living environment with diverse relationships to the surrounding external environment.







건축가 Fukei
대표건축가 Midori Oshima, Daisuke Komatsu
위치 Sendai, Miyagi,Japan
대지면적 419.42㎡
연면적 135.21㎡
건축면적 92.77㎡
프로젝트 기간 2022 – 2024
공사기간 2023.6. - 2024.1.
용적률 32.23%
건폐율 22.11%
구조디자이너 Shohei Furuichi
사진작가 Fukei
'Architecture Project > Single Family' 카테고리의 다른 글
| Solar House (0) | 2024.11.15 |
|---|---|
| House in Muko (0) | 2024.11.15 |
| Rawda Radiance (0) | 2024.11.06 |
| Garden Stair House (0) | 2024.11.04 |
| Casa en la Sierra de Arteaga (0) | 2024.10.23 |
마실와이드 | 등록번호 : 서울, 아03630 | 등록일자 : 2015년 03월 11일 | 마실와이드 | 발행ㆍ편집인 : 김명규 | 청소년보호책임자 : 최지희 | 발행소 : 서울시 마포구 월드컵로8길 45-8 1층 | 발행일자 : 매일


